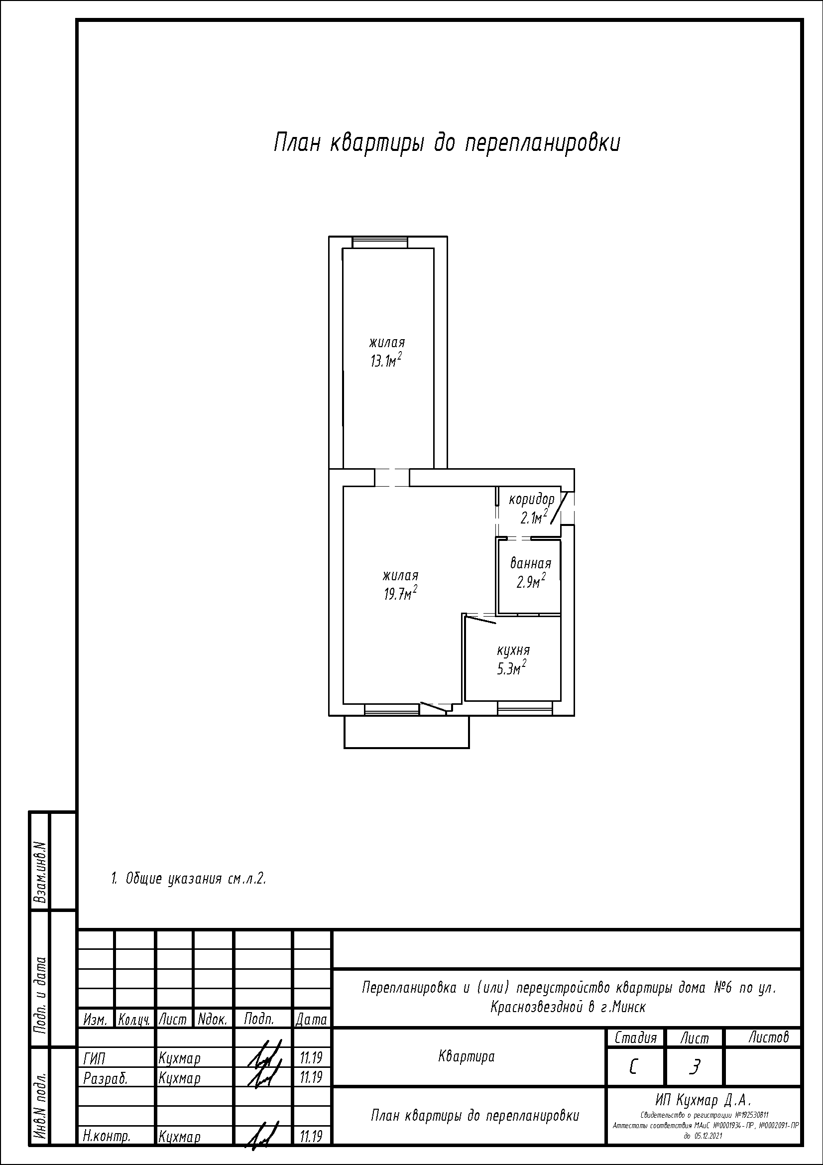
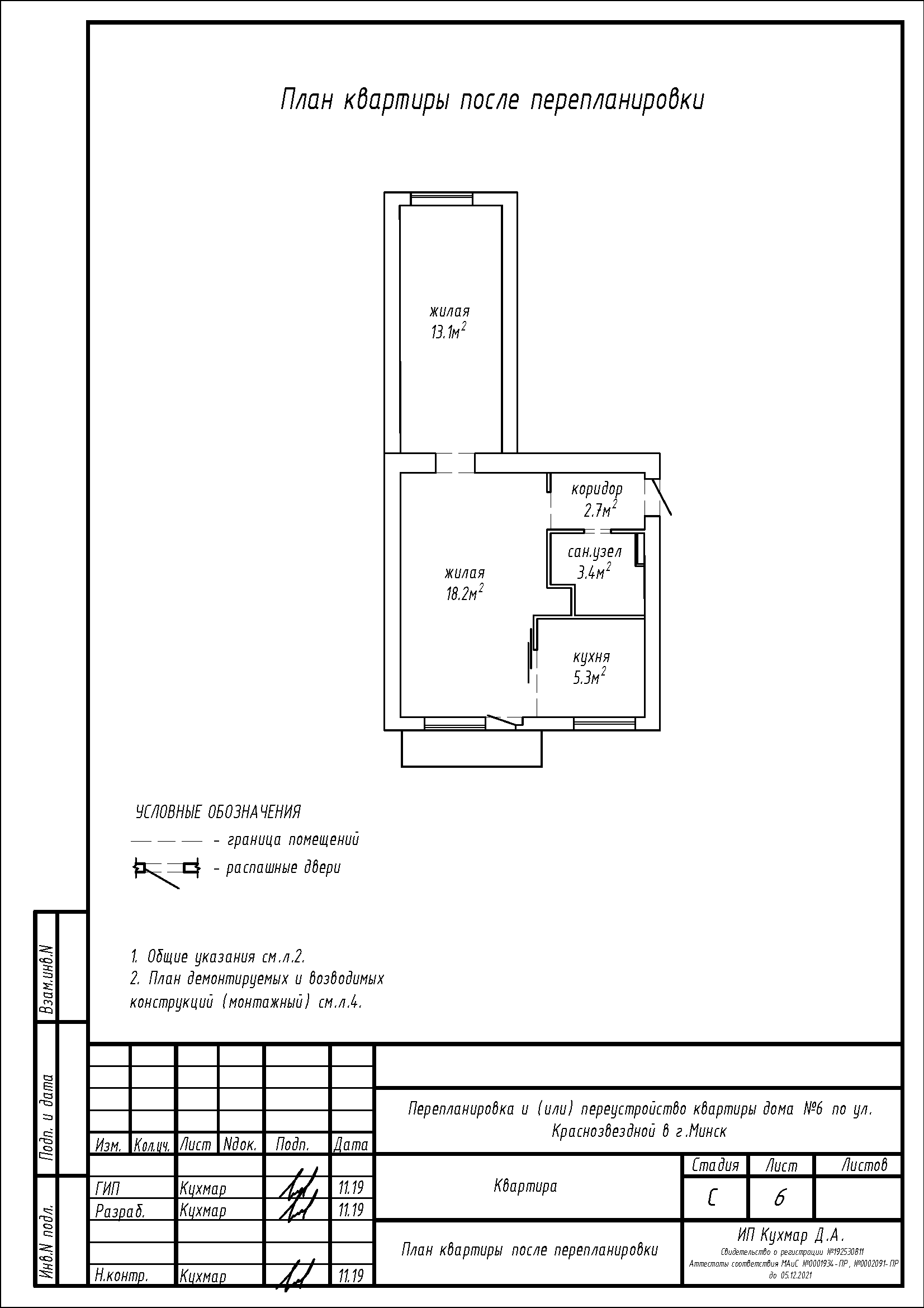
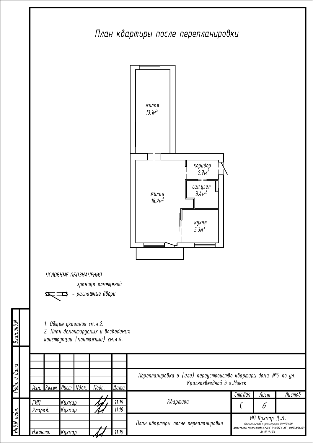
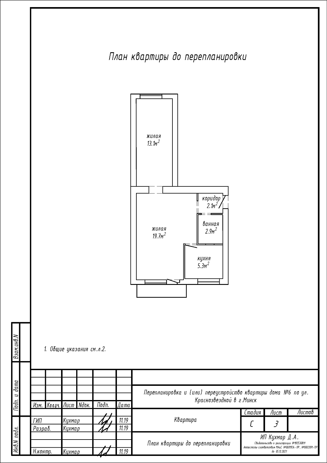
Перепланировка квартиры по ул. Краснозвёздная, 6
Пожелания заказчика:
- Демонтаж части перегородки с дверным проемом между коридором и жилой 19.7 м2 с последующим возведением перегородки на части площади жилой 19.7 м2 с целью увеличения площади коридора за счет жилой;
- Демонтаж части перегородки между ванной и жилой 19.7 м2 с последующим возведением новых перегородок на части площади жилой 19. 7 м2 и ванной с целью устройства сан.узла на данной площади;
- Закладка дверного проема в перегородке между кухней и жилой 19.7 м2 и устройство нового дверного проема с устройством двери в перегородке между кухней и жилой 19.7 м2:
- Закладка оконного проема в перегородке между ванной и кухней.
Нами были разработаны следующие разделы проектной документации для согласования в исполкоме:
- АС - архитектурно-строительные решения.
