Перепланировка квартиры по ул. Красная, 18 в г. Минске
Пожелания заказчика:
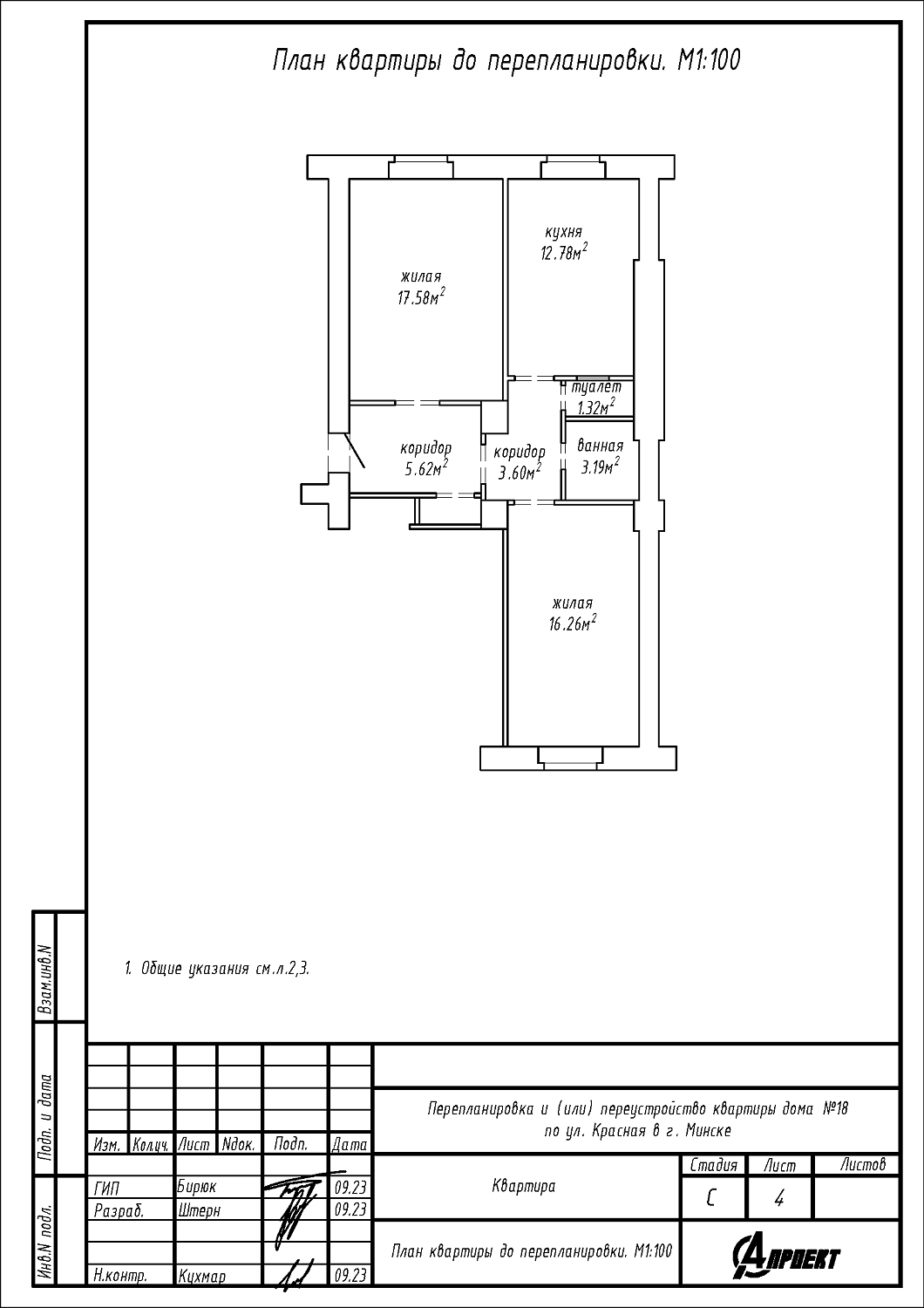
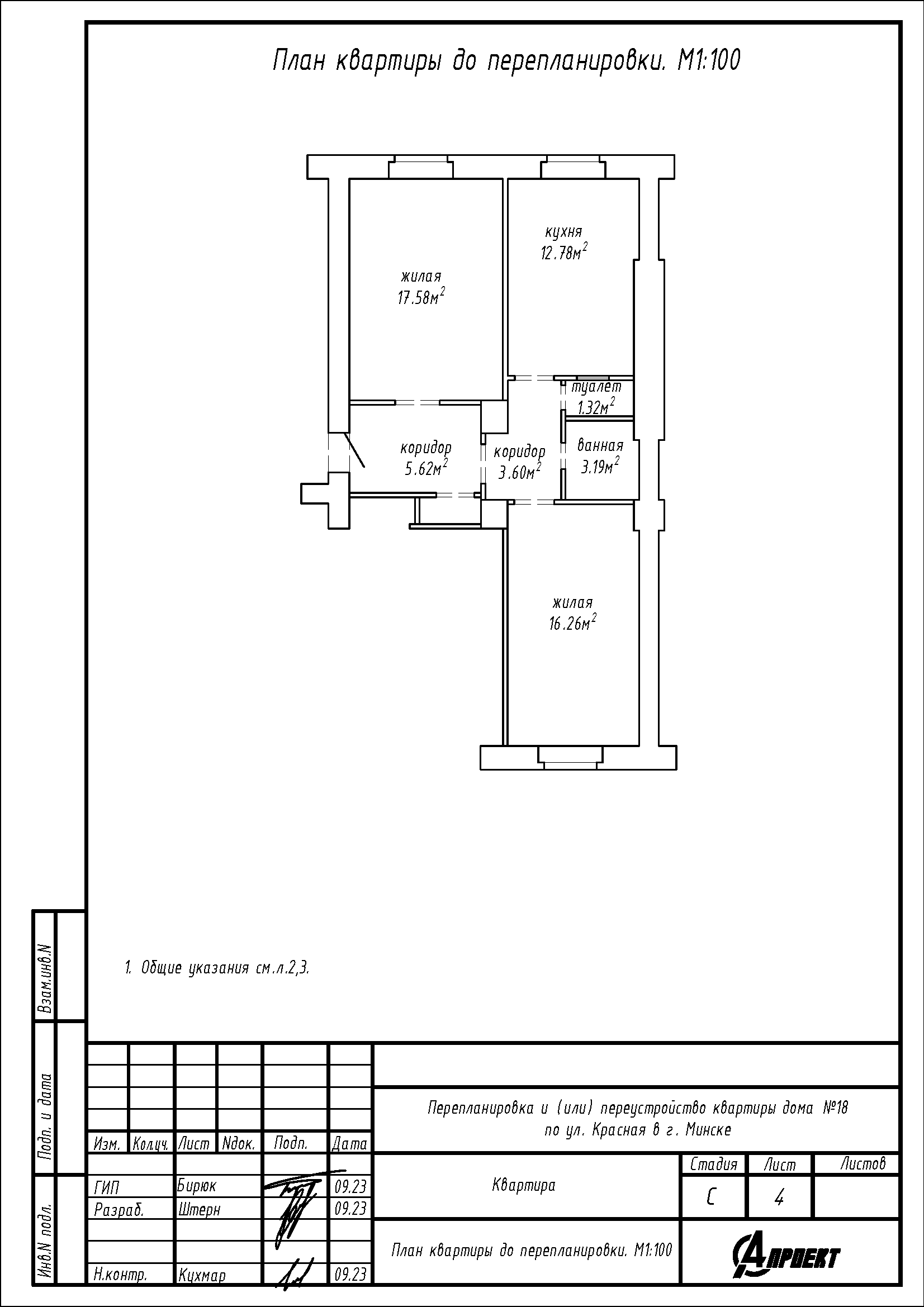
- Демонтаж перегородок с дверными проемами между коридором, жилой, кухней, коридором, встр. шкафом, туалетом, ванной и жилой с последующим устройством перегородок с дверными проемами на части площади коридора, жилой, кухни, коридора, туалета, ванной и жилой с целью устройства прихожей, коридора, туалета, ванной, кухни, кладовой, встр. шкафа и двух жилых;
- Замена дверного блока входной двери со сменой направления открывания;
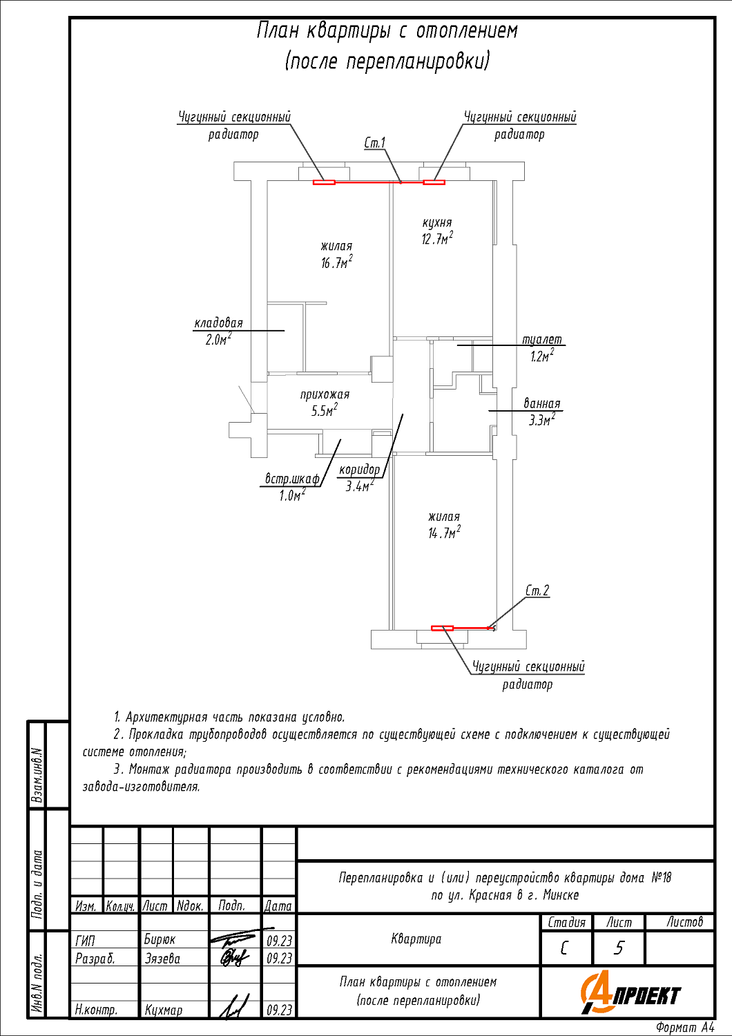
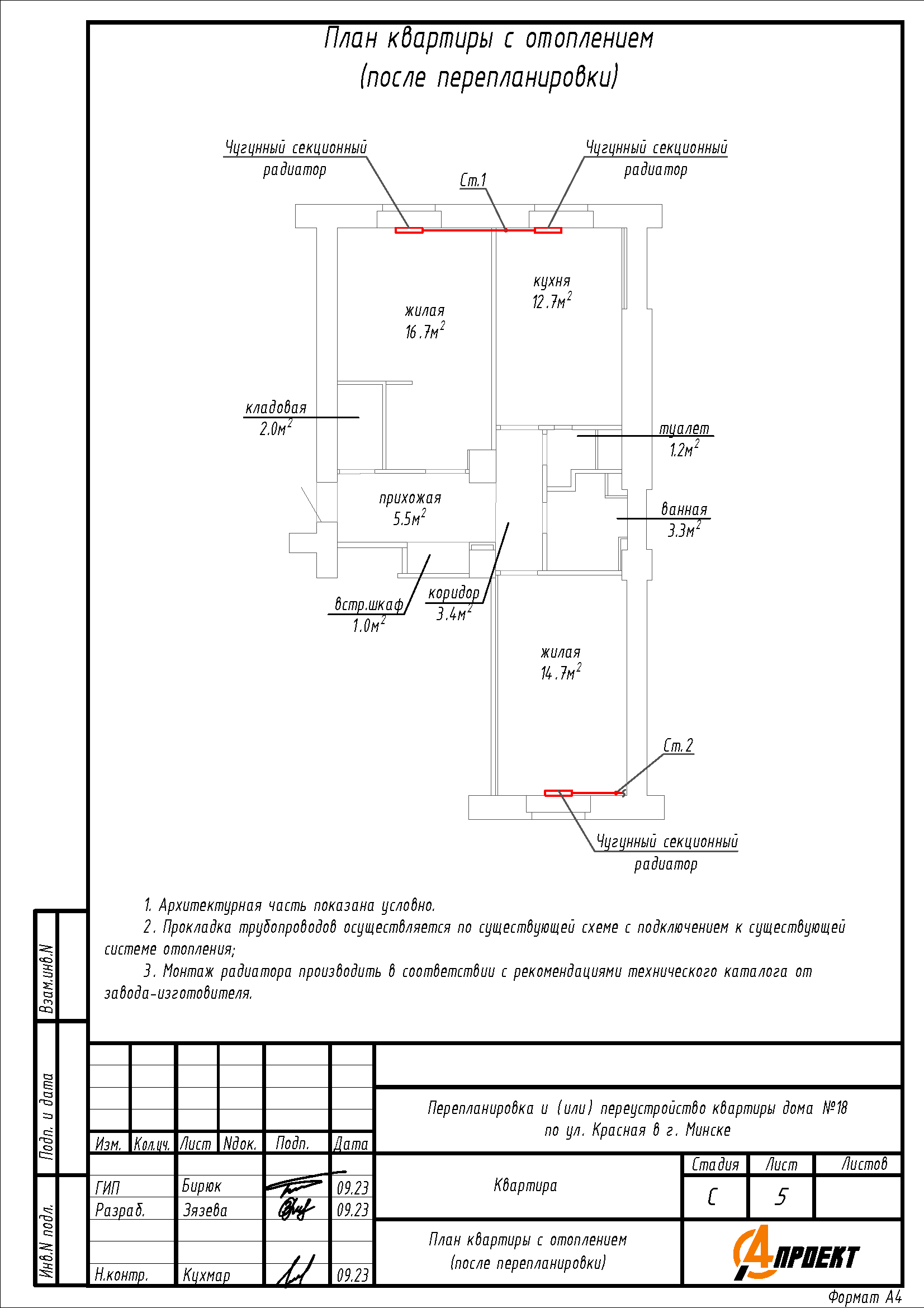
- Перенос одного существующего отопительного прибора, установка термостатических клапанов на подводках к отопительным приборам.
Нами были разработаны следующие разделы проектной документации для согласования в исполкоме:
- АС - архитектурно-строительные решения;
- ОВ - отопление и вентиляция.
