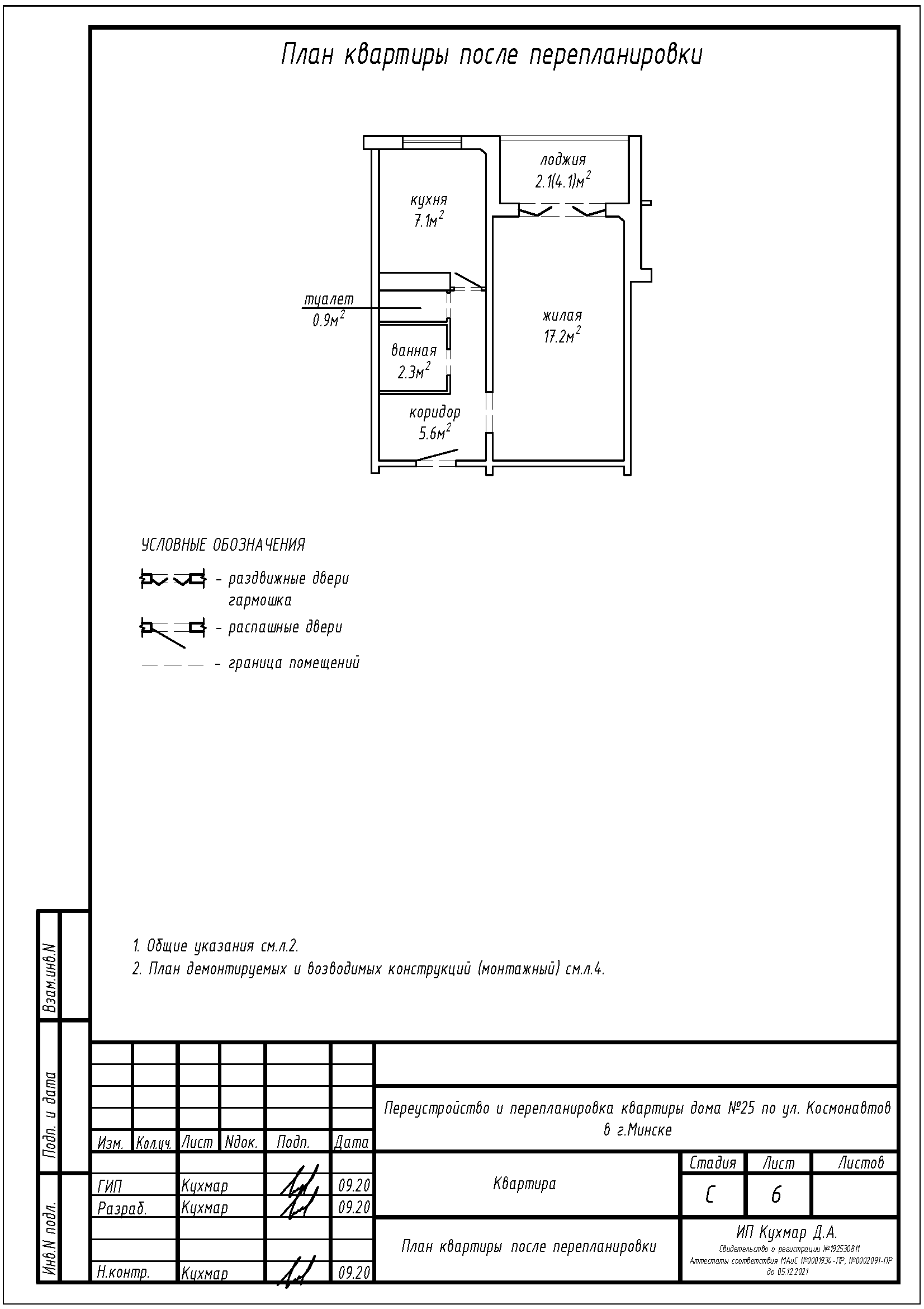
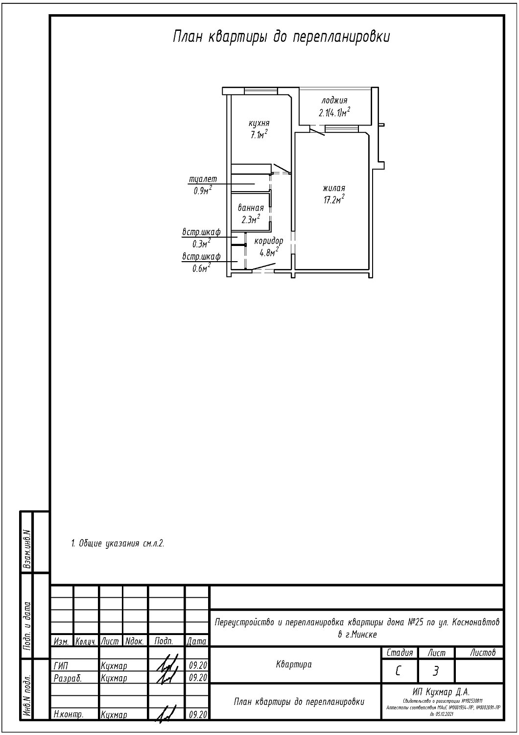
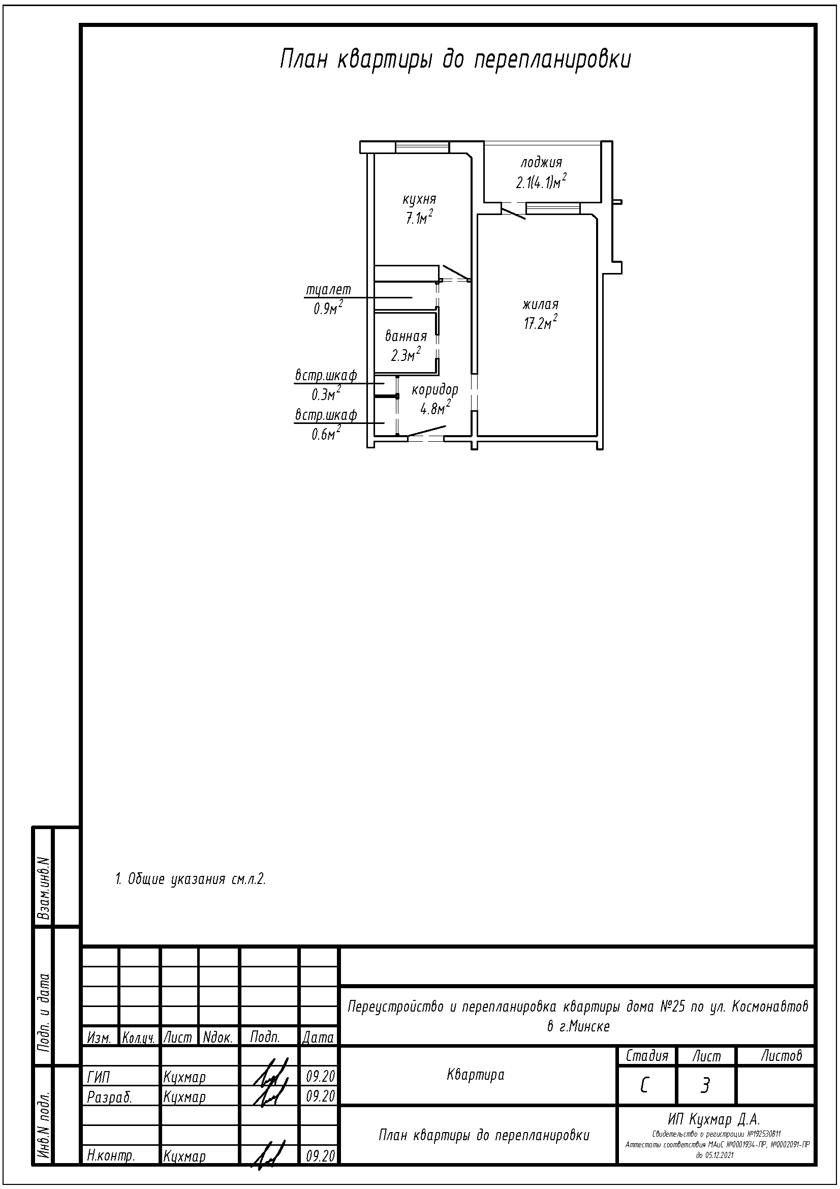
Перепланировка квартиры по ул. Космонавтов, 25 в г. Минске
Пожелания заказчика:
- Демонтаж встроенных шкафов;
- Демонтаж подоконной части стены между жилой комнатой и лоджией с установкой дверного блока;
- Замена нагревательных приборов системы отопления квартиры;
- Перенос и замена отопительных приборов.
Нами были разработаны следующие разделы проектной документации для согласования в исполкоме:
- АС - архитектурно-строительные решения;
- ОВ - отопление и вентиляция.
