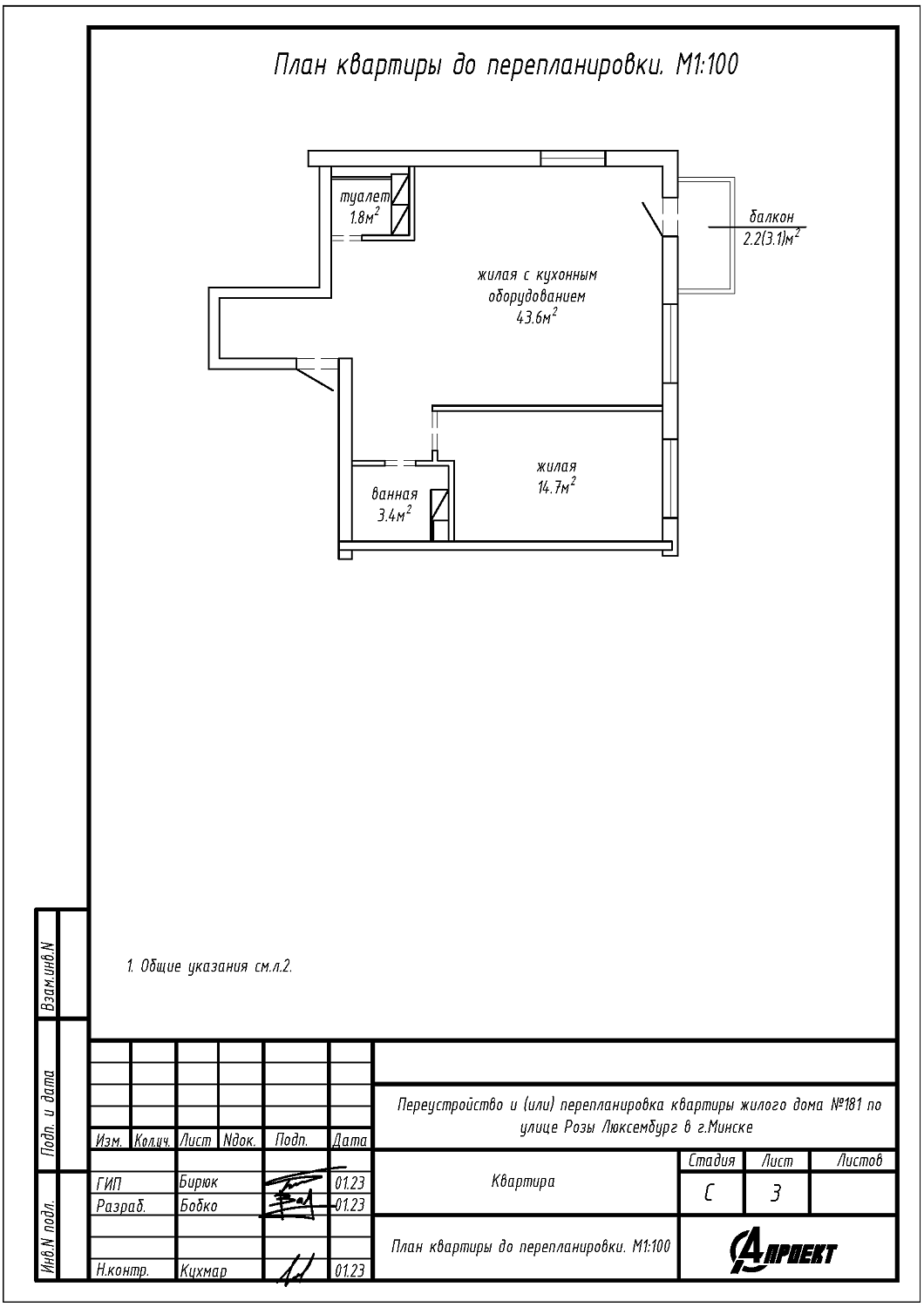
Перепланировка квартиры по ул. Розы Люксембург, 181 в г.Минске
Пожелания заказчика:
- Устройство санузла на площади существующей ванной;
- Увеличение площади санузла, но не более чем на 25%;
- Устройство санузла на площади существующего туалета;
- Разделение жилой с кухонным оборудованием на кухню, жилую и коридор.
Нами были разработаны следующие разделы проектной документации для согласования в исполкоме:
- АС - архитектурно-строительные решения.
