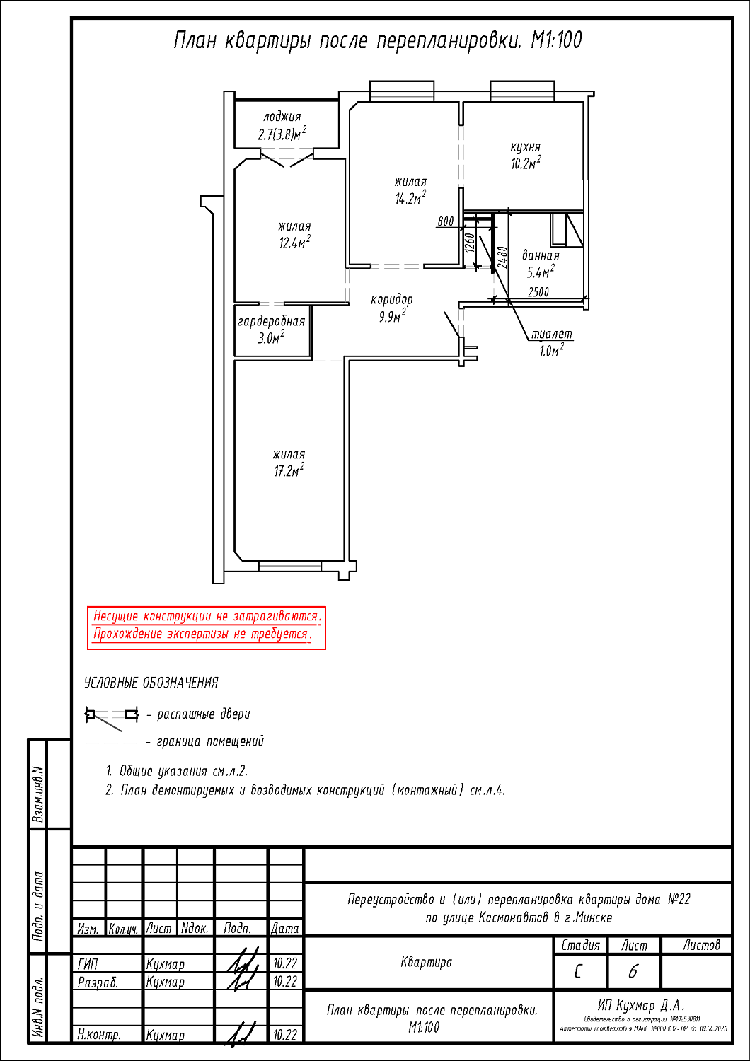
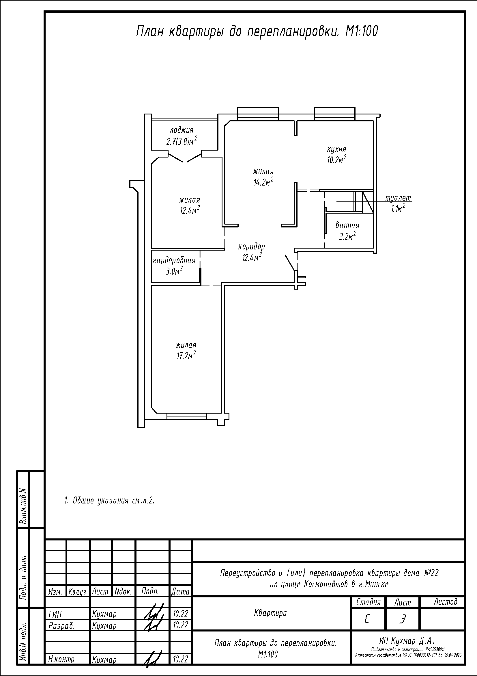
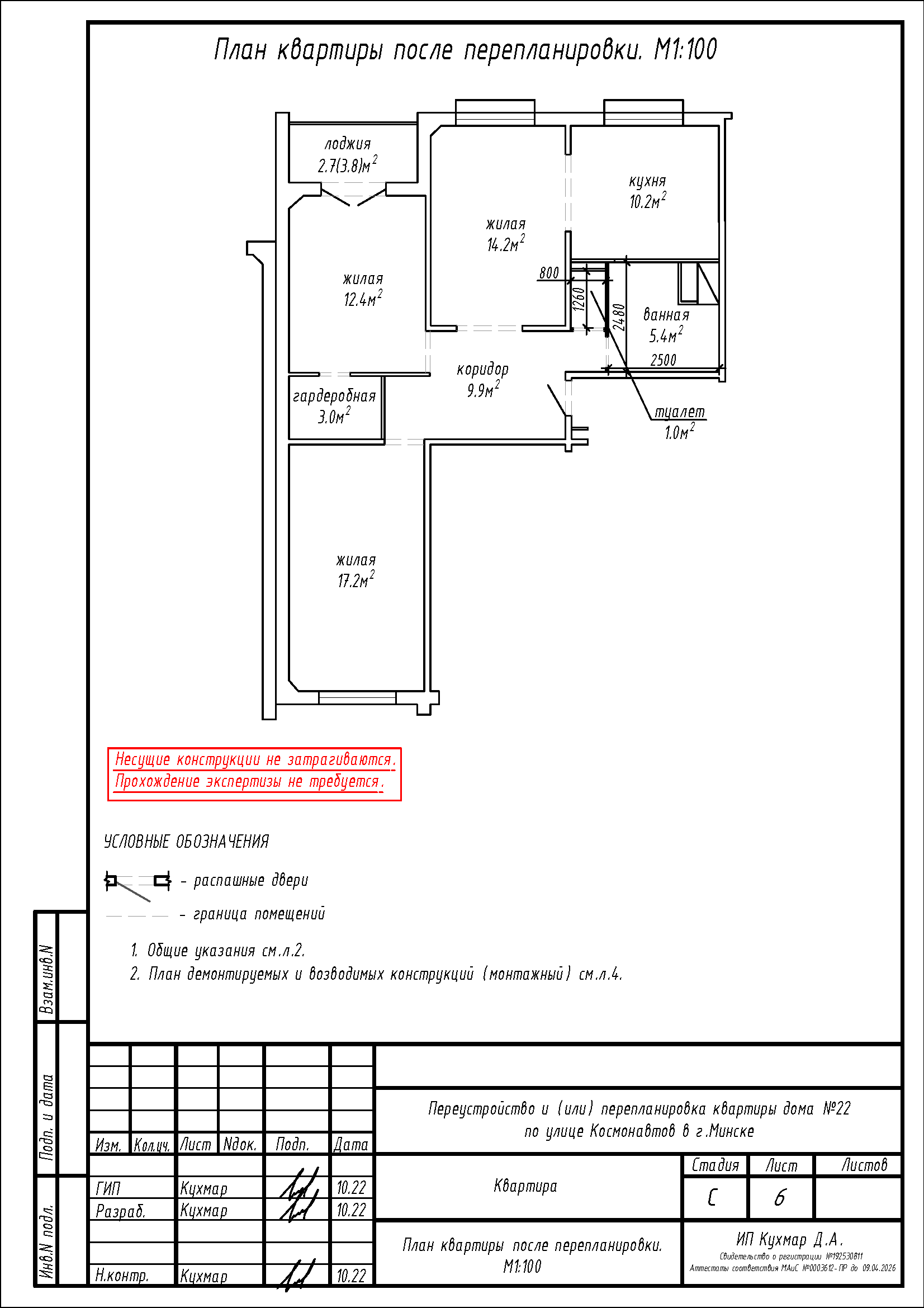
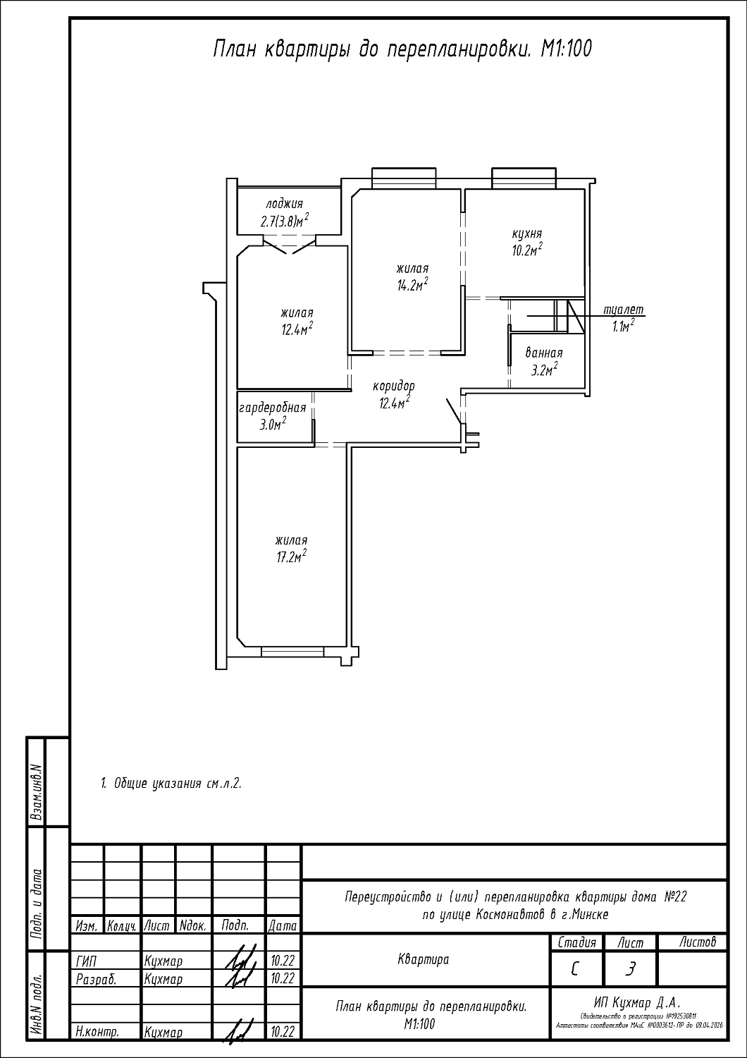
Перепланировка квартиры по ул. Космонавтов, 22 в г. Минске
Пожелания заказчика:
- Устройство дверного проема в перегородке между гардеробной и жилой комнатой;
- Закладка дверного проема в перегородке между гардеробной, кухней и коридором;
- Закладка части проема в стене между жилой комнатой 14.2м2, кухней и коридором;
- Демонтаж перегородок с дверными проемами между сан.узлами и коридором;
- Устройство перегородки с дверным проемом в коридоре с целью устройства сан.узла на площади сан.узлов, части площади коридора с устройством гидроизоляции;
- Устройство туалета на части площади коридора с устройством гидроизоляции.
Нами были разработаны следующие разделы проектной документации для согласования в исполкоме:
- АС - архитектурно-строительные решения.
