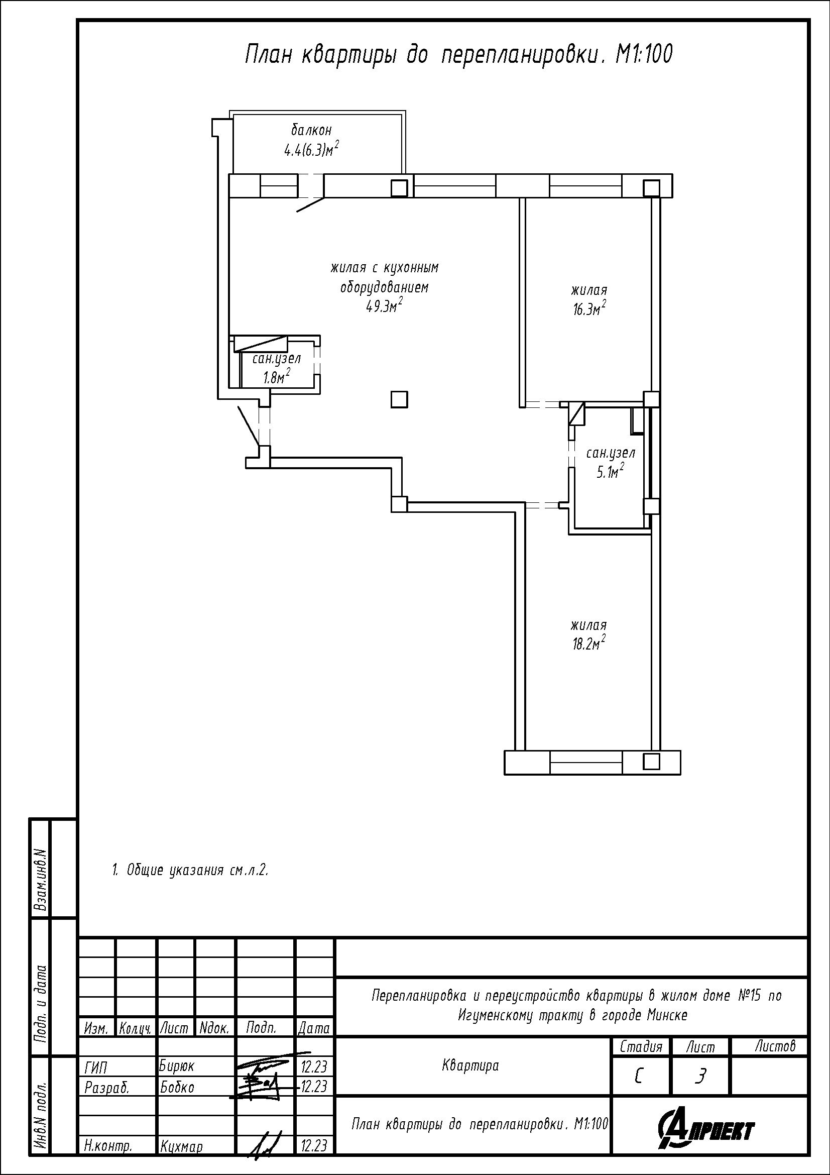
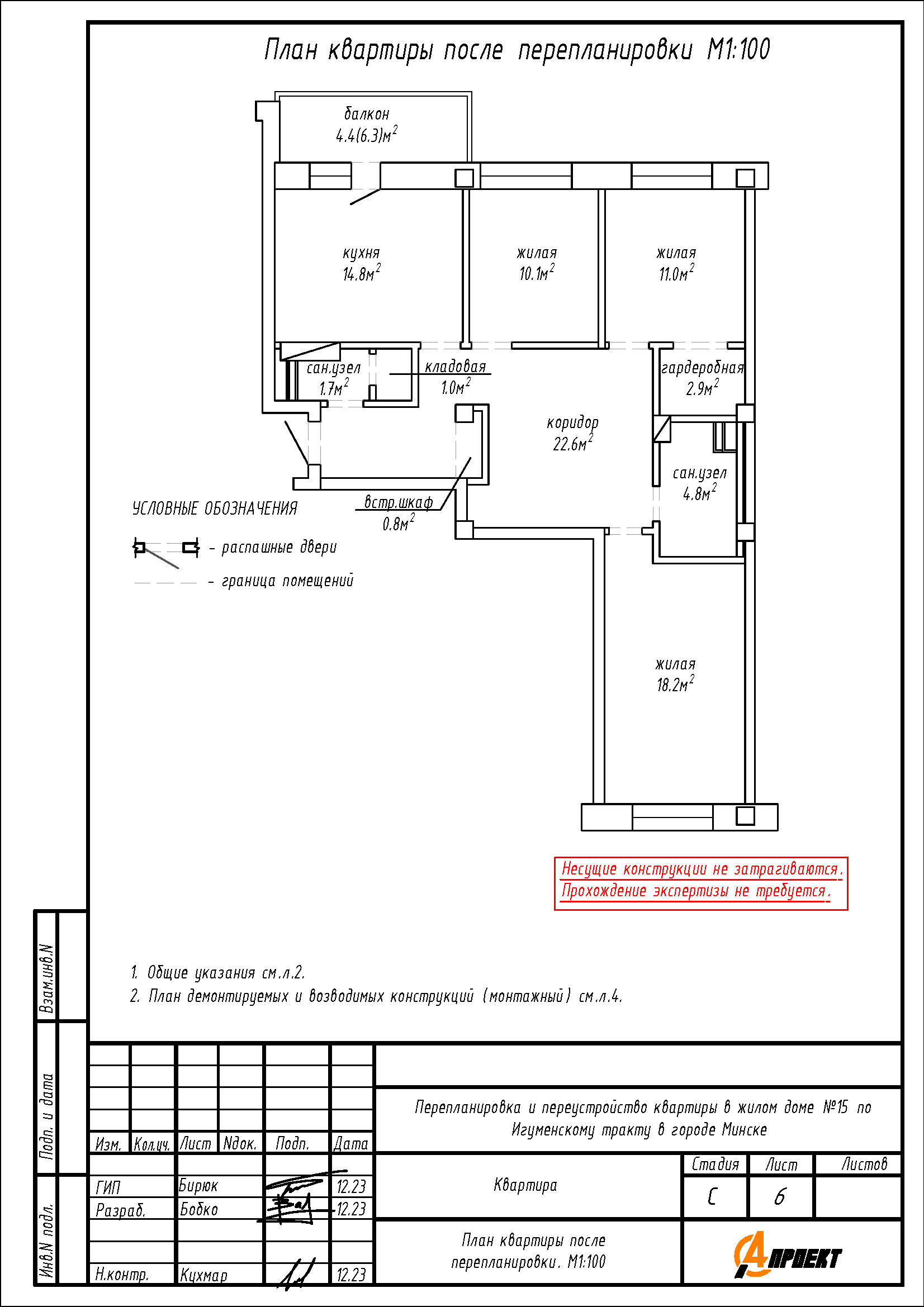
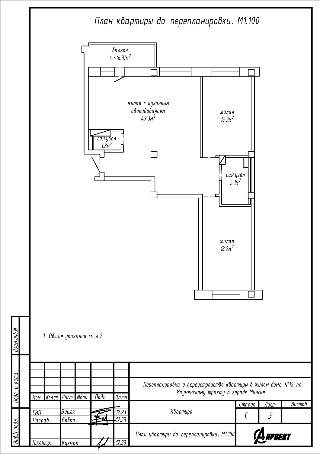
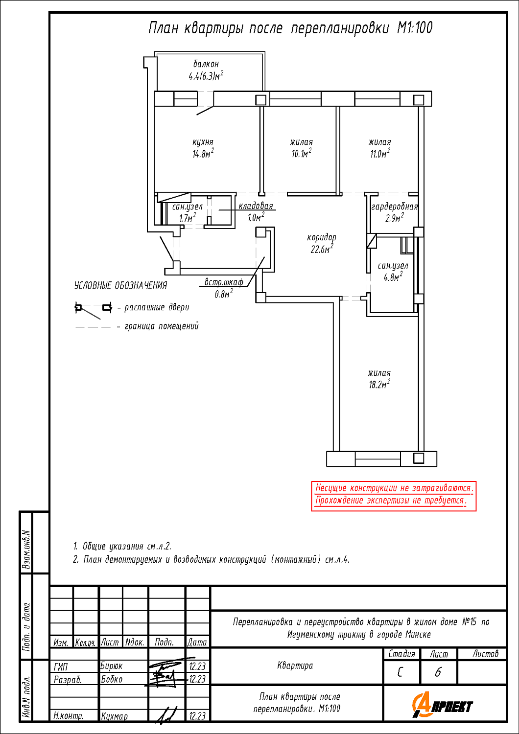
Перепланировка квартиры по Игуменскому тракту, 15 в г. Минске
Пожелания заказчика:
- Закладка дверного проёма в санузле, с целью устройства нового дверного проёма;
- Устройство гардеробной на части пл. жилой 16,3м2;
- Сужение дверного проёма между жилой и коридором;
- Образование новых помещений на площади жилой с кухонным оборудованием: кухня, жилая, кладовая и коридор;
- Устройство встроенного шкафа на площади коридора;
- Устройство инсталляции в санузлах;
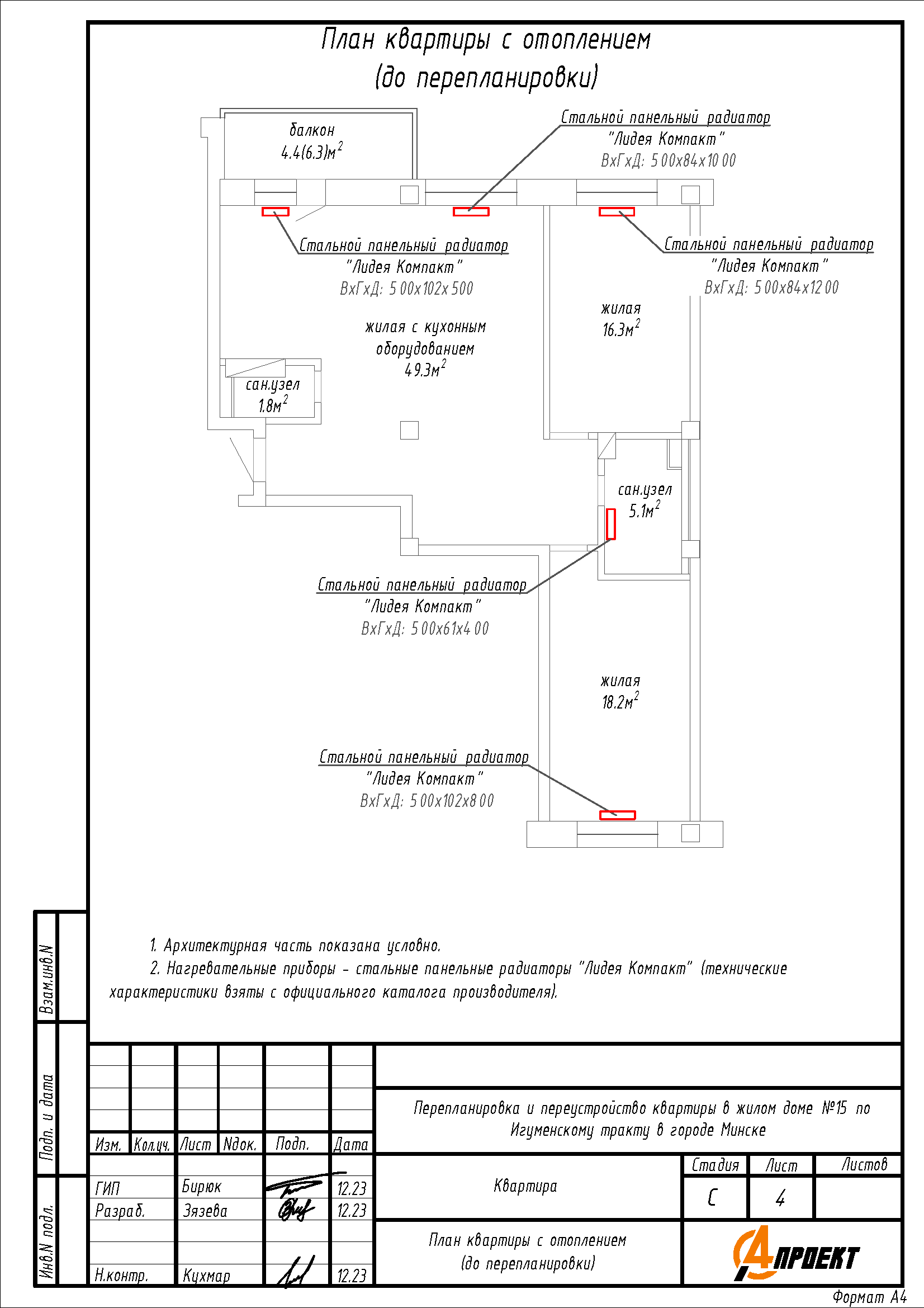
- Переподключение отопительных приборов, замена отопительного прибора в санузле.
Нами были разработаны следующие разделы проектной документации для согласования в исполкоме:
- АС - архитектурно-строительные решения;
- ОВ - отопление и вентиляция.
