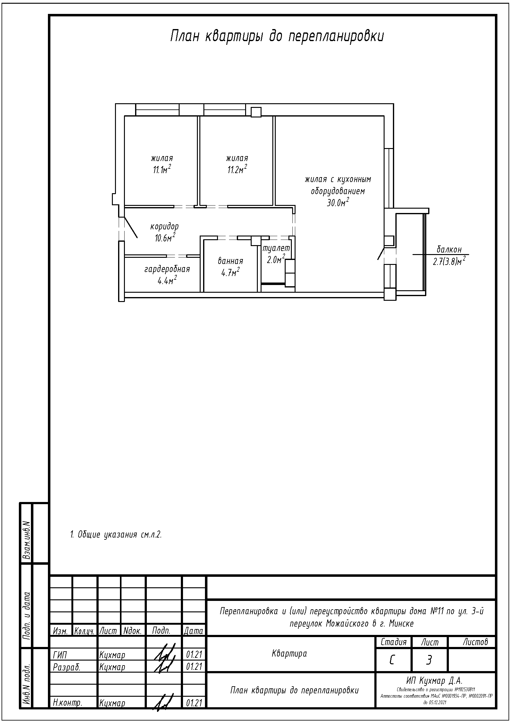
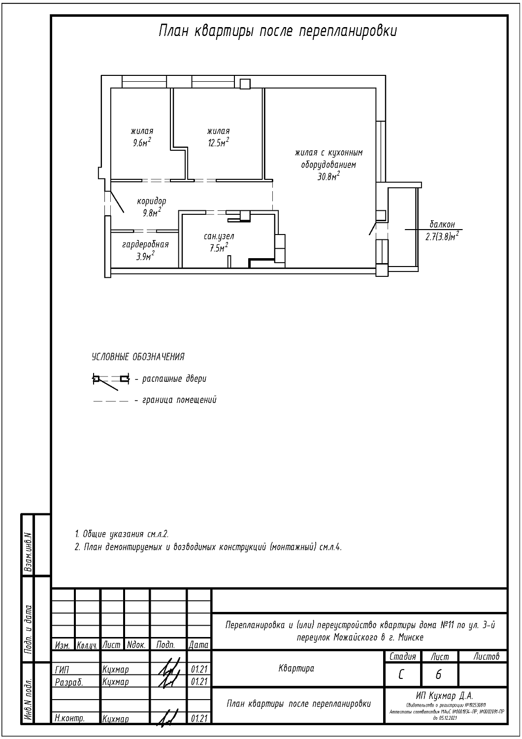
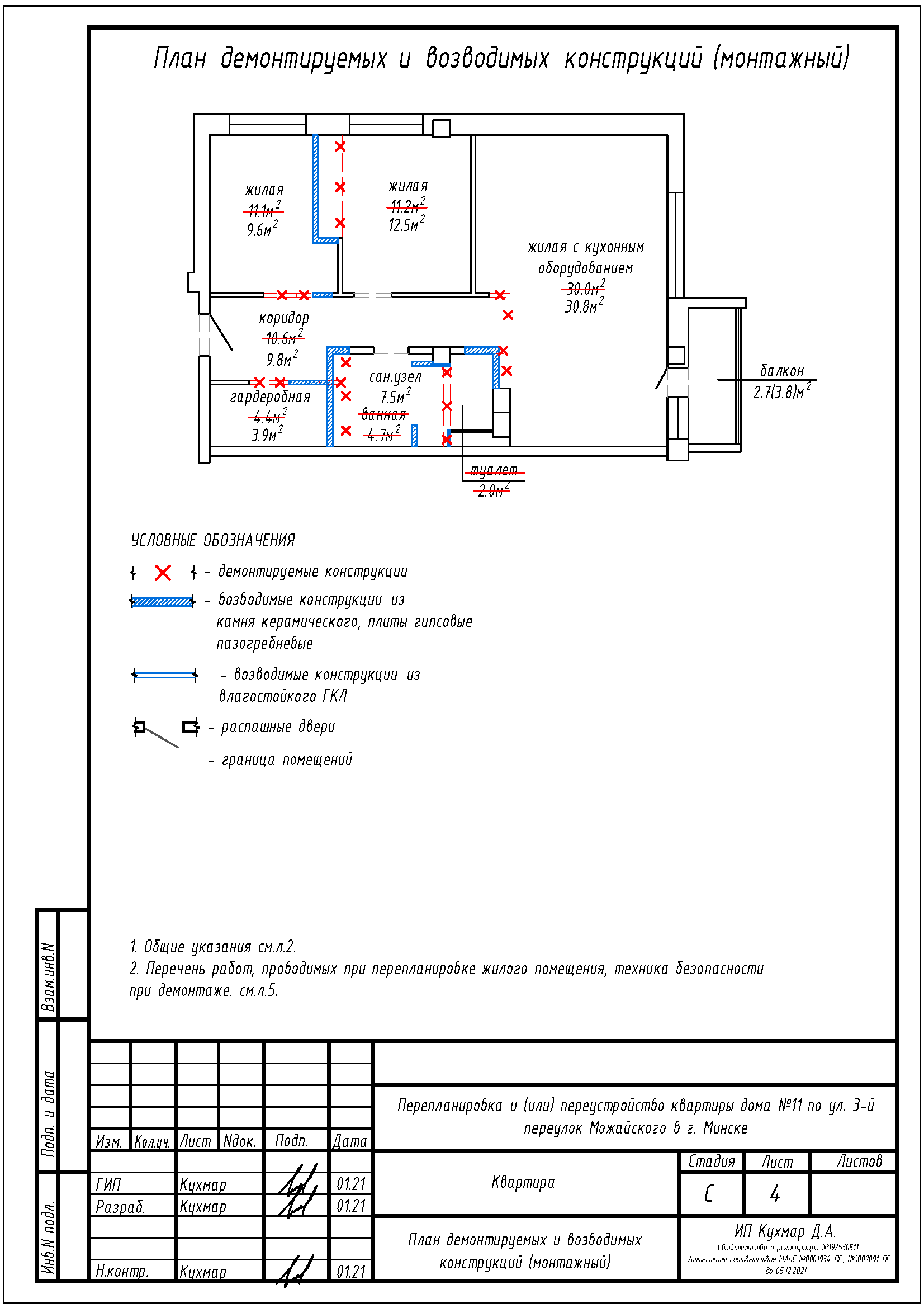
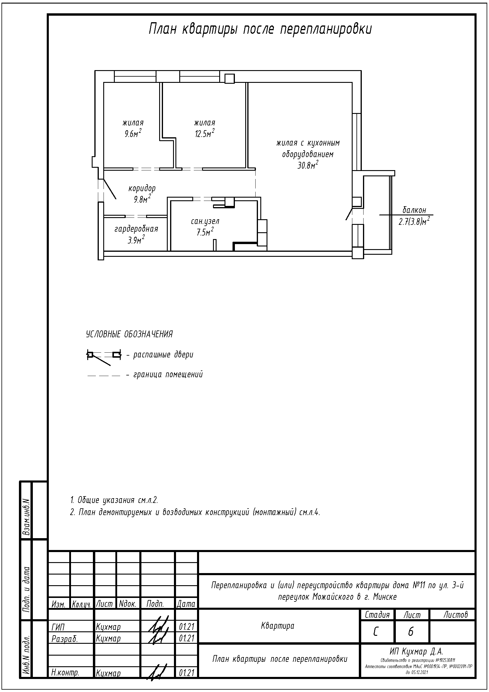
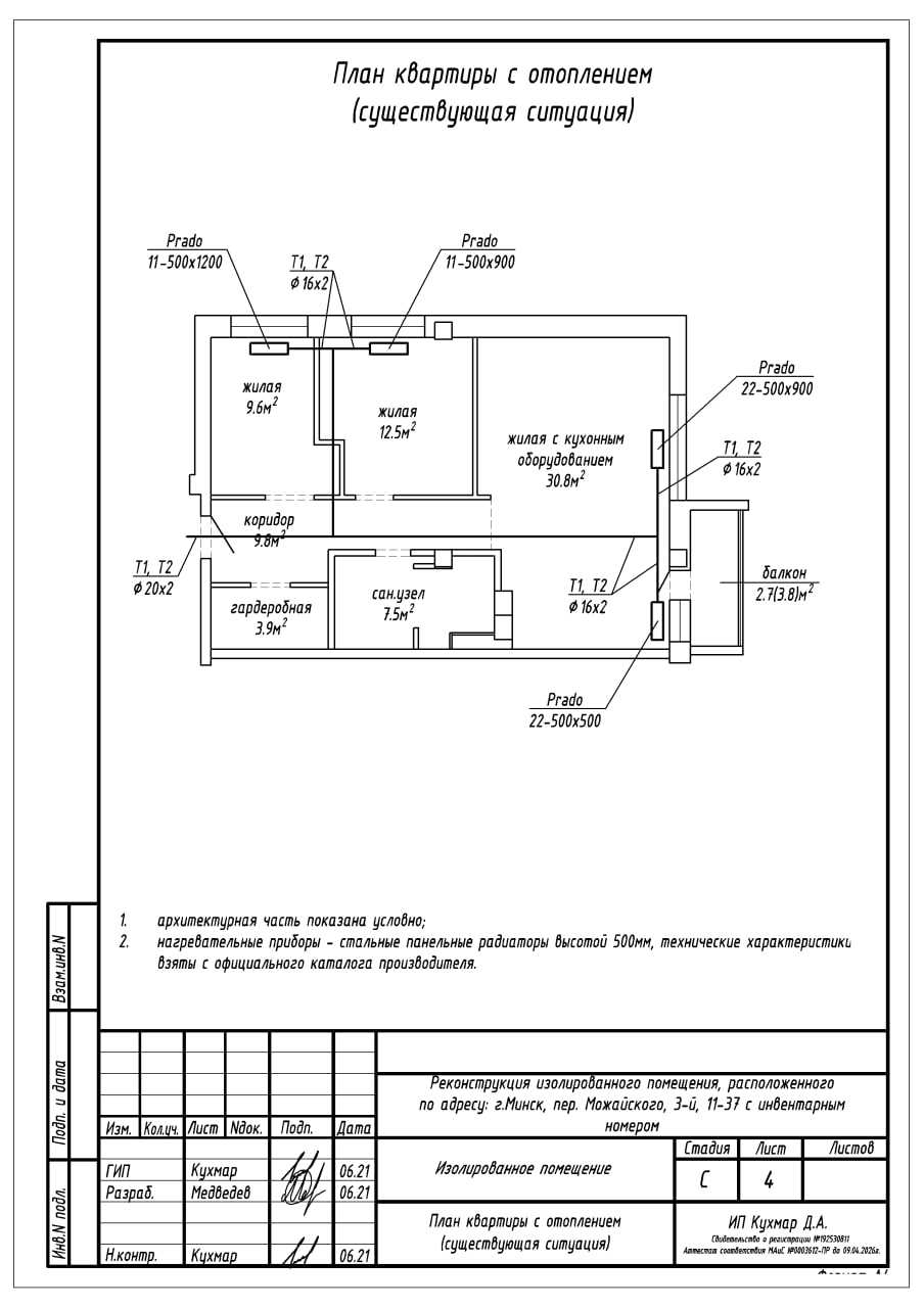
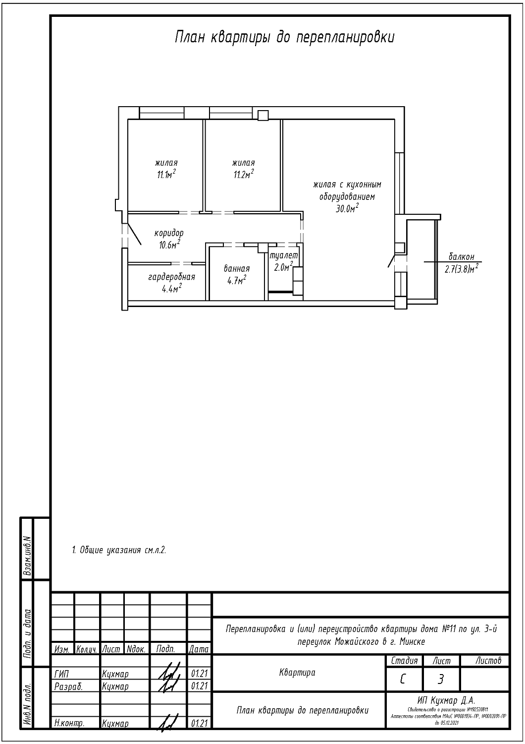
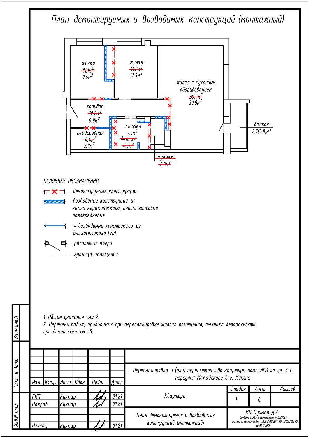
Перепланировка квартиры по 3-му переулку Можайского, 11 в г. Минске
Пожелания заказчика:
- Объединение туалета и ванной в единый санузел;
- Изменение площади санузла;
- Изменение площади помещений за счет демонтажа части перегородок;
- Замена отопительных приборов;
- Устройство распределительного коллектора отопления.
Нами были разработаны следующие разделы проектной документации для согласования в исполкоме:
- АС - архитектурно-строительные решения;
- ОВ - отопление и вентиляция.
