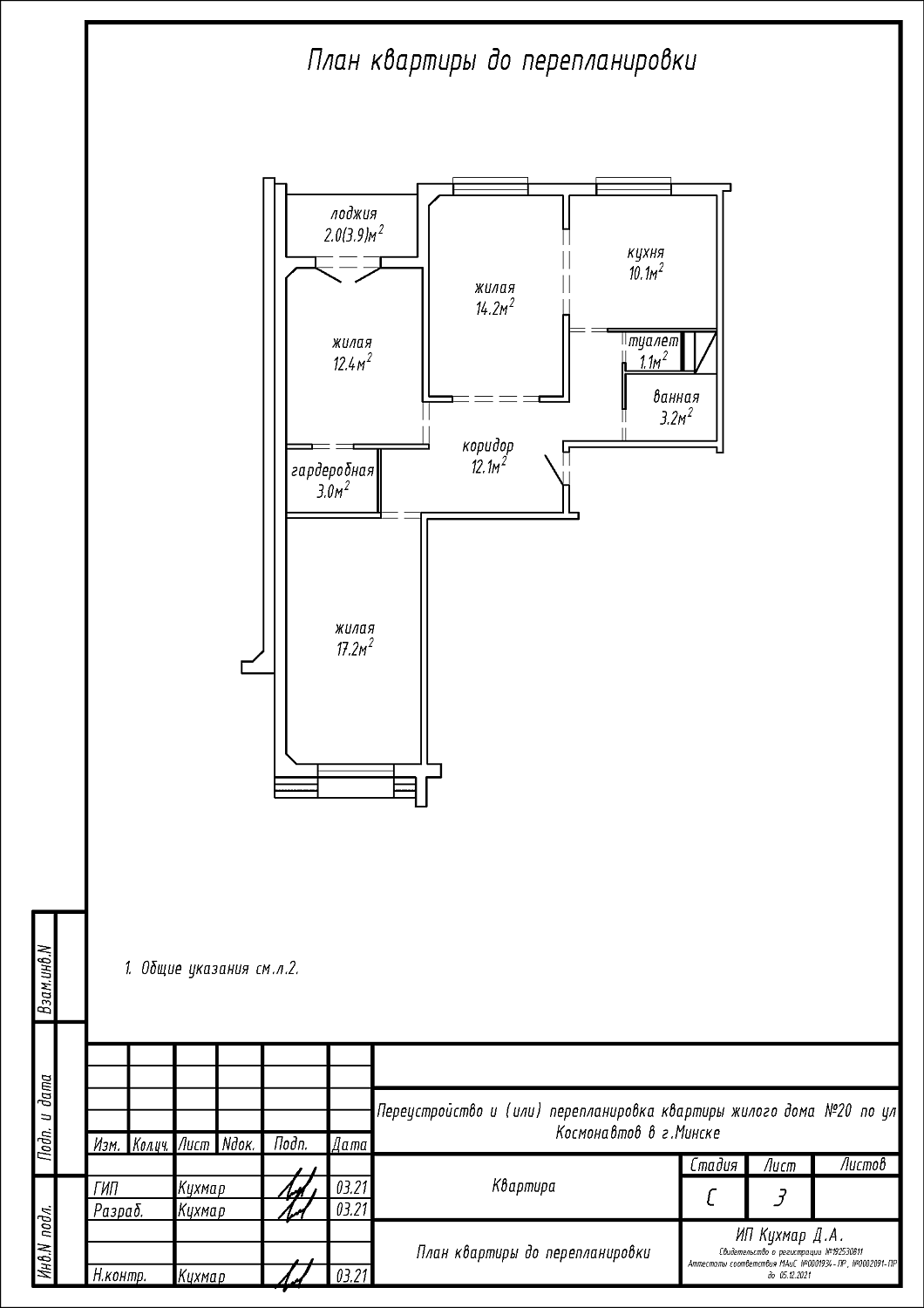
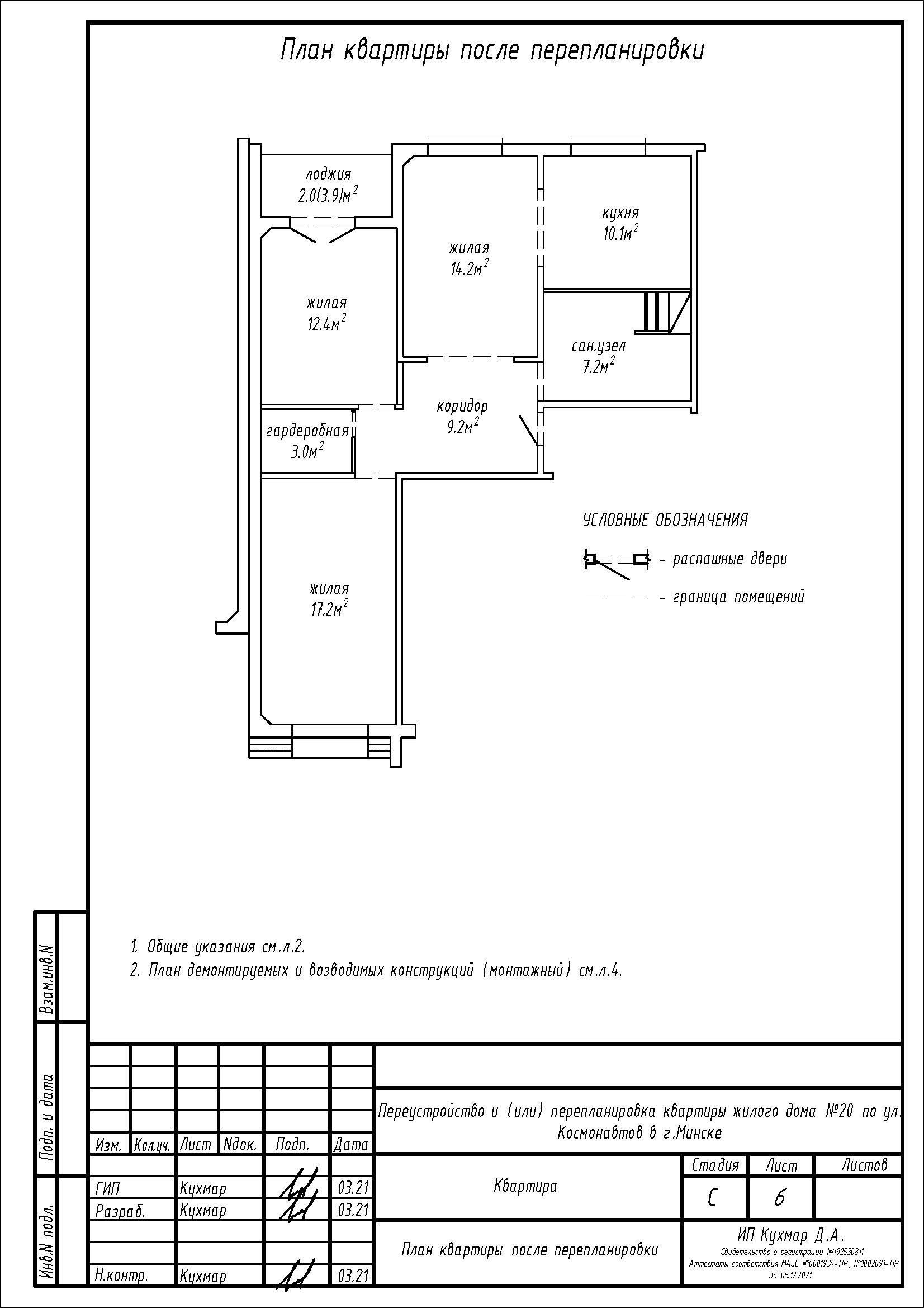
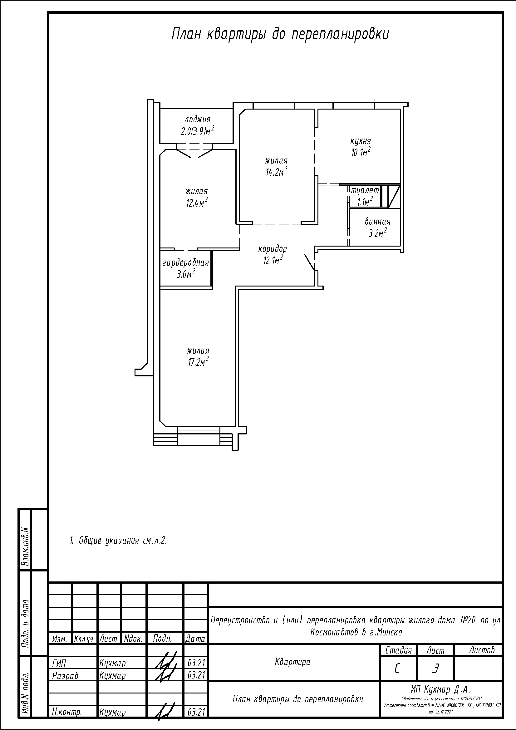
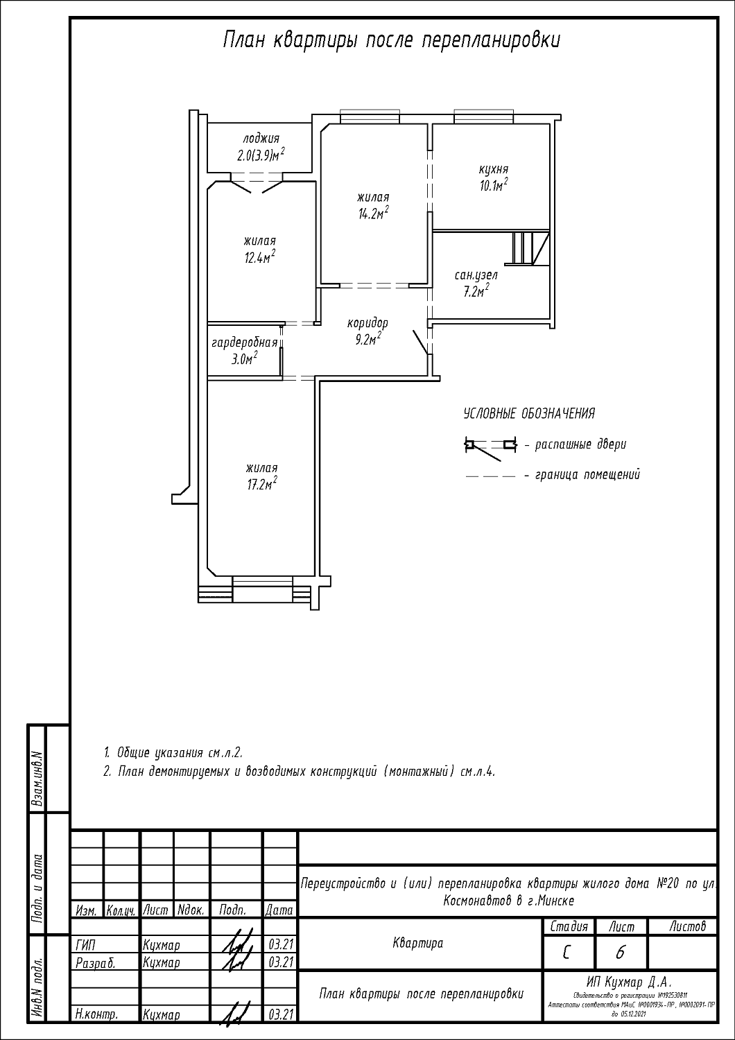
Перепланировка квартиры по ул. Космонавтов, 20 в г. Минске
Пожелания заказчика:
- Закладка дверного проёма между кухней и коридором, с целью устройства совмещенного санузла;
- Объединение ванной и туалета в единый санузел;
- Увеличение площади совмещённого санузла за счёт части площади коридора;
- Сужение дверного проёма между жилой комнатой и кухней;
- Закладка проёма между жилой комнатой и коридором, с целью устройства проёма в другом месте;
- Закладка дверного проёма между гардеробной и жилой комнатой, с целью устройства нового проёма.
Нами были разработаны следующие разделы проектной документации для согласования в исполкоме:
- АС - архитектурно-строительные решения.
