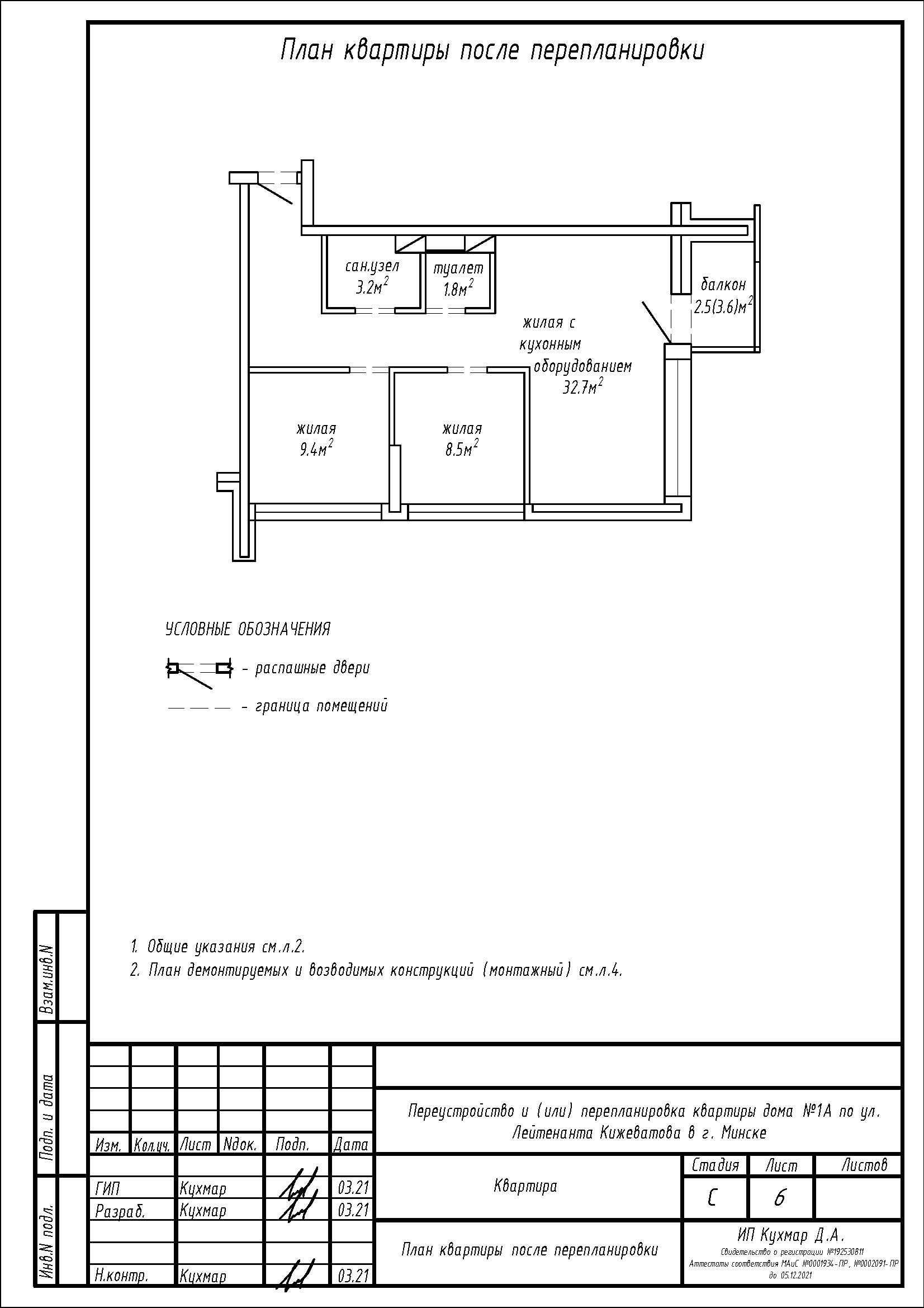
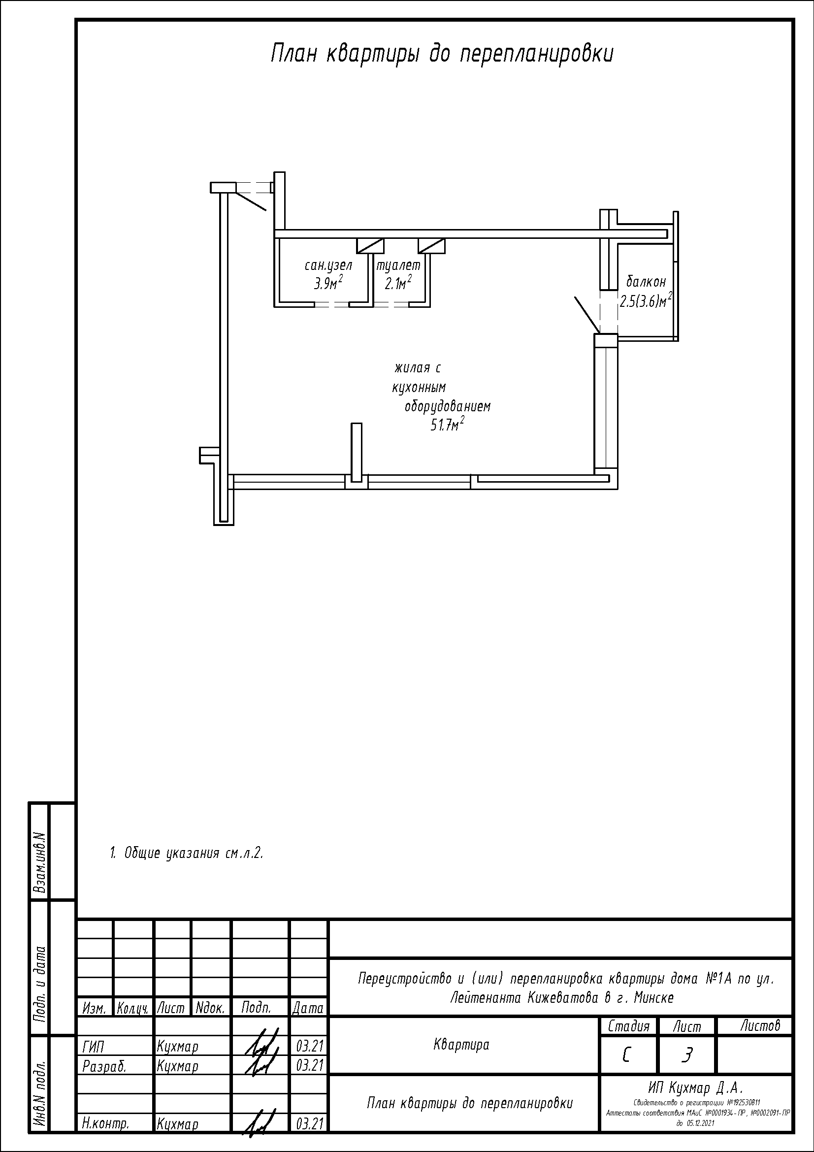
Перепланировка квартиры по ул. Кижеватова, 1А в ЖК «Минск Мир»
Пожелания заказчика:
- Изменение площади и границ помещений санузла и туалета;
- Разделение общего помещения жилой с кухонным оборудованием на две жилые и жилую с кухонным оборудованием.
Нами были разработаны следующие разделы проектной документации для согласования в исполкоме:
- АС - архитектурно-строительные решения.
