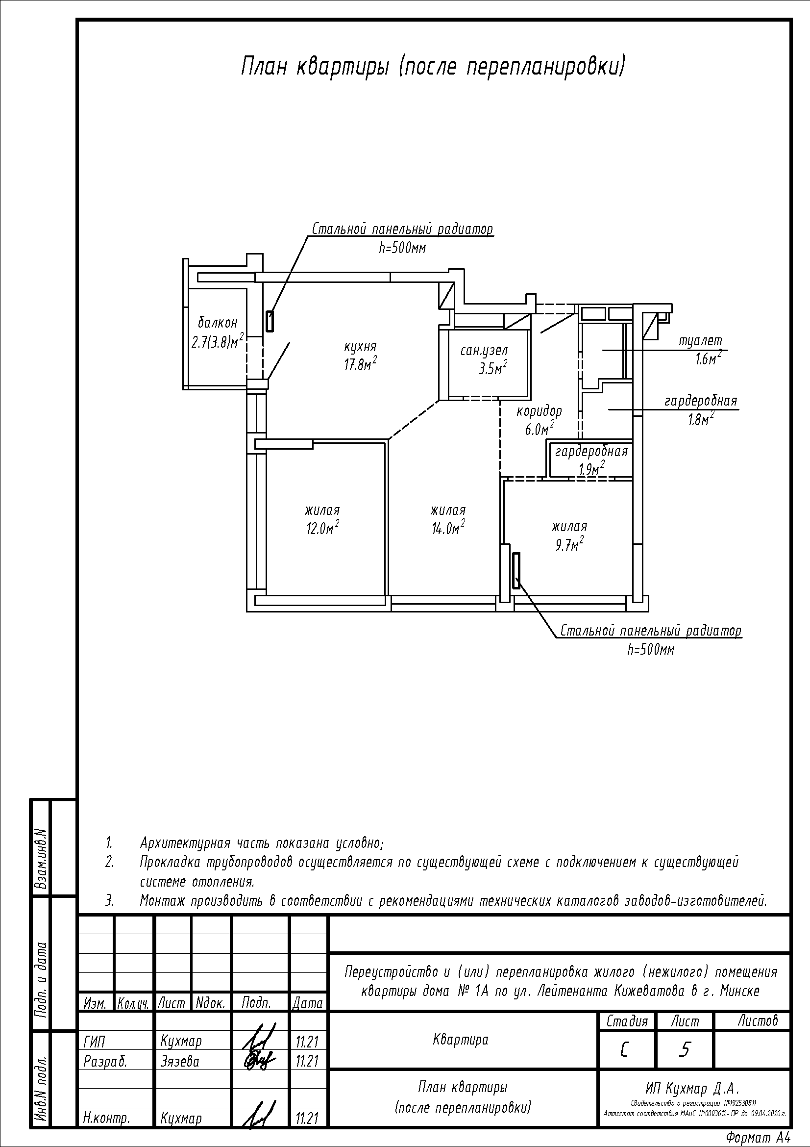
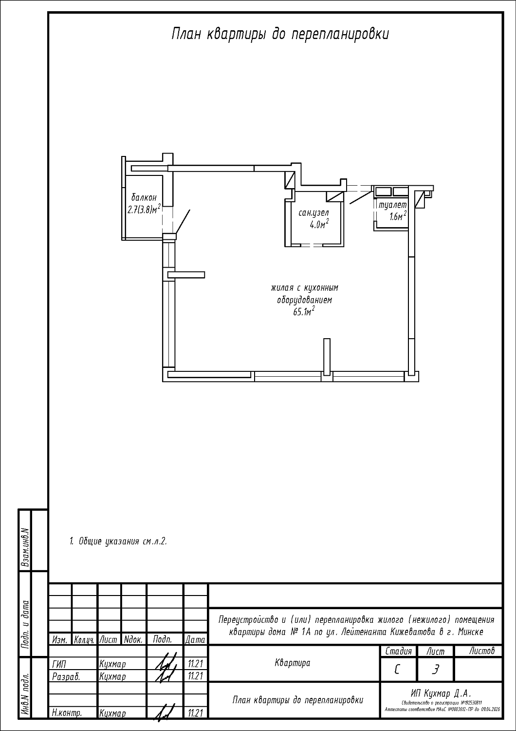
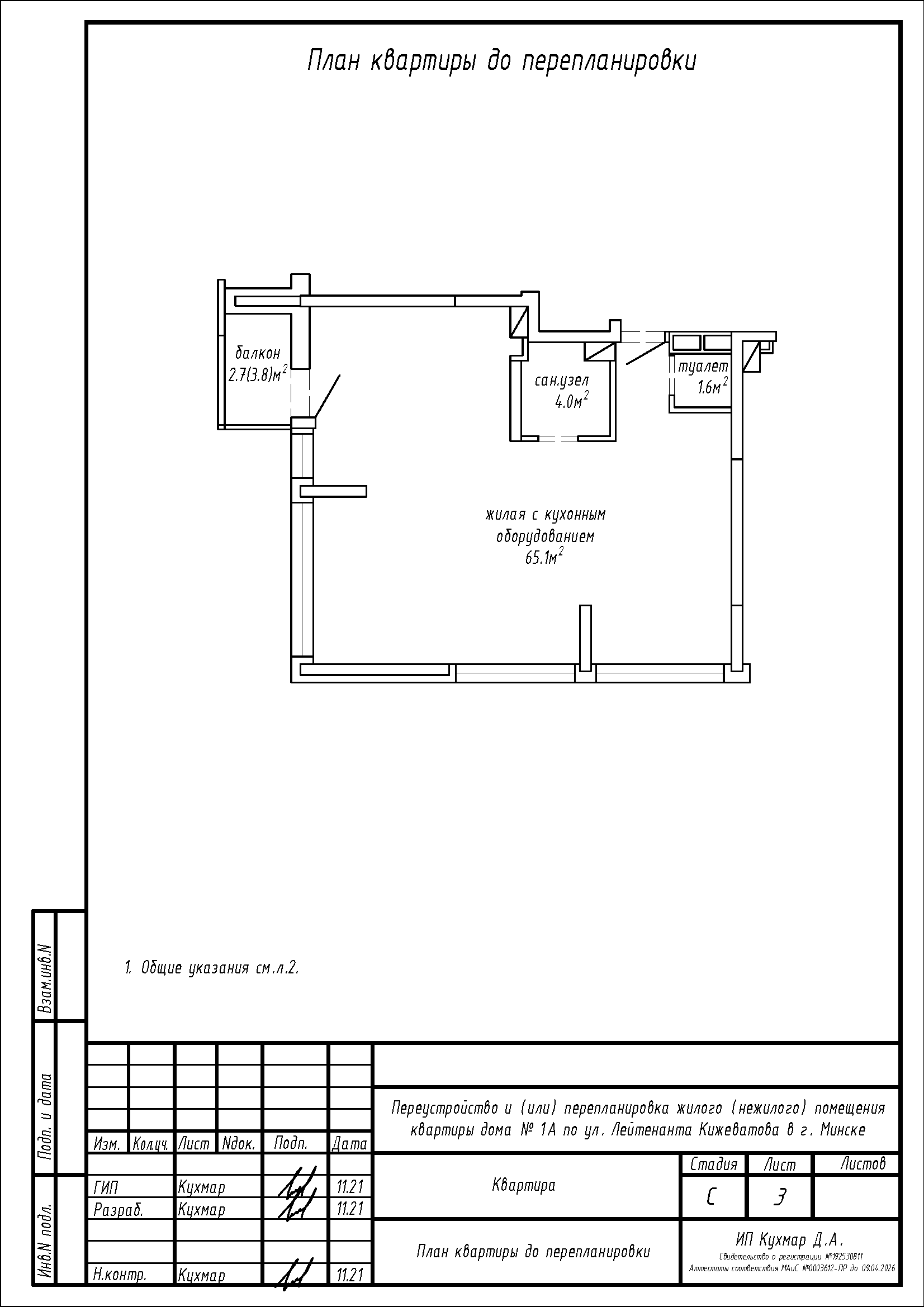
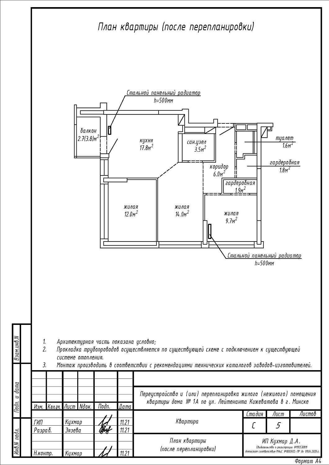
Перепланировка квартиры по ул. Кижеватова, 1А в ЖК «Минск Мир»
Пожелания заказчика:
- Разделение общей жилой с кухонным оборудованием на жилую с кухонным оборудованием, три жилые, коридор и две гардеробные;;
- Изменение габаритов санузла;
- Изменение габаритов туалета;
- Перенос существующего отопительного прибора.
Нами были разработаны следующие разделы проектной документации для согласования в исполкоме:
- АС - архитектурно-строительные решения;
- ОВ - отопление и вентиляция.
