Размер шрифта
Цвет фона и шрифта
Изображения
Озвучивание текста
Обычная версия сайта
Перепланировка квартир
Полный комплекс услуг по перепланировке квартир в Минске
+375 (44) 535-33-00
+375 (44) 535-33-00
+375 (44) 515-33-00
Заказать звонок
E-mail
inproekt100@gmail.com
Адрес
г. Минск, ул. Чапаева 3, офис 101
Режим работы
Пн. – Пт.: с 9:00 до 18:00
Подать заявку
Услуги
  • Квартиры
    • Дизайн-проект
    • Согласование перепланировки
    • Проект перепланировки
    • Технический надзор за выполнением работ
    • Строительно-монтажные работы
    • Согласование самовольной перепланировки
    • Техническое заключение
    • Обмеры
  • Нежилые помещения
    • Перепланировка, модернизация, реконструкция помещений
    • Обмеры нежилых помещений
  • Мастер-классы
    • Мастер-класс по перепланировке для дизайнеров
    • Мастер-класс по перепланировке для дизайнеров
Акции
Проекты
  • Санузлы
  • Батареи
  • Антресоль
  • Газ на электро
  • Дизайн
  • Кухня в жилую
  • Нежилые
  • Объединение / разделение квартир
  • Проём в несущей
Отзывы
Статьи
Мастер-класс
О нас
  • Лицензии
  • Сотрудники
  • Отзывы
Контакты
г. Минск, ул. Чапаева 3, офис 101
...
+375 (44) 535-33-00
+375 (44) 535-33-00
+375 (44) 515-33-00
Заказать звонок
E-mail
inproekt100@gmail.com
Адрес
г. Минск, ул. Чапаева 3, офис 101
Режим работы
Пн. – Пт.: с 9:00 до 18:00
Заказать звонок
Перепланировка квартир
Услуги
  • Квартиры
    Квартиры
    • Дизайн-проект
    • Согласование перепланировки
    • Проект перепланировки
    • Технический надзор за выполнением работ
    • Строительно-монтажные работы
    • Согласование самовольной перепланировки
    • Техническое заключение
    • Обмеры
  • Нежилые помещения
    Нежилые помещения
    • Перепланировка, модернизация, реконструкция помещений
    • Обмеры нежилых помещений
  • Мастер-классы
    Мастер-классы
    • Мастер-класс по перепланировке для дизайнеров
    • Мастер-класс по перепланировке для дизайнеров
Акции
Проекты
  • Санузлы
  • Батареи
  • Антресоль
  • Газ на электро
  • Дизайн
  • Кухня в жилую
  • Нежилые
  • Объединение / разделение квартир
  • Проём в несущей
Отзывы
Статьи
Мастер-класс
О нас
  • Лицензии
  • Сотрудники
  • Отзывы
Контакты
    Подать заявку
    Перепланировка квартир
    Услуги
    • Квартиры
      Квартиры
      • Дизайн-проект
      • Согласование перепланировки
      • Проект перепланировки
      • Технический надзор за выполнением работ
      • Строительно-монтажные работы
      • Согласование самовольной перепланировки
      • Техническое заключение
      • Обмеры
    • Нежилые помещения
      Нежилые помещения
      • Перепланировка, модернизация, реконструкция помещений
      • Обмеры нежилых помещений
    • Мастер-классы
      Мастер-классы
      • Мастер-класс по перепланировке для дизайнеров
      • Мастер-класс по перепланировке для дизайнеров
    Акции
    Проекты
    • Санузлы
    • Батареи
    • Антресоль
    • Газ на электро
    • Дизайн
    • Кухня в жилую
    • Нежилые
    • Объединение / разделение квартир
    • Проём в несущей
    Отзывы
    Статьи
    Мастер-класс
    О нас
    • Лицензии
    • Сотрудники
    • Отзывы
    Контакты
      +375 (44) 535-33-00
      +375 (44) 515-33-00
      Заказать звонок
      E-mail
      inproekt100@gmail.com
      Адрес
      г. Минск, ул. Чапаева 3, офис 101
      Режим работы
      Пн. – Пт.: с 9:00 до 18:00
      Подать заявку
      Перепланировка квартир
      Телефоны
      +375 (44) 535-33-00
      +375 (44) 515-33-00
      Заказать звонок
      Перепланировка квартир
      • Услуги
        • Услуги
        • Квартиры
          • Квартиры
          • Дизайн-проект
          • Согласование перепланировки
          • Проект перепланировки
          • Технический надзор за выполнением работ
          • Строительно-монтажные работы
          • Согласование самовольной перепланировки
          • Техническое заключение
          • Обмеры
        • Нежилые помещения
          • Нежилые помещения
          • Перепланировка, модернизация, реконструкция помещений
          • Обмеры нежилых помещений
        • Мастер-классы
          • Мастер-классы
          • Мастер-класс по перепланировке для дизайнеров
          • Мастер-класс по перепланировке для дизайнеров
      • Акции
      • Проекты
        • Проекты
        • Санузлы
        • Батареи
        • Антресоль
        • Газ на электро
        • Дизайн
        • Кухня в жилую
        • Нежилые
        • Объединение / разделение квартир
        • Проём в несущей
      • Отзывы
      • Статьи
      • Мастер-класс
      • О нас
        • О нас
        • Лицензии
        • Сотрудники
        • Отзывы
      • Контакты
      Подать заявку
      • +375 (44) 535-33-00
        • Телефоны
        • +375 (44) 535-33-00
        • +375 (44) 515-33-00
        • Заказать звонок
      • г. Минск, ул. Чапаева 3, офис 101
      • inproekt100@gmail.com
      • Пн. – Пт.: с 9:00 до 18:00
      Санузлы

      ул. Кальварийская, 3

      Перепланировка квартиры в г. Минске:
      psd_1.png Комплекс услуг: Проект
      projekt_1.png Разделы проекта: АС
      location_1.png Место: Фрунзенский р-н
      JK_1.png ЖК: 
      Подробнее
      ул. Кальварийская, 3
      Фотогалерея
      4 —
      1/4 —
      ул. Кальварийская, 3
      ул. Кальварийская, 3
      ул. Кальварийская, 3
      ул. Кальварийская, 3
      ул. Кальварийская, 3
      ул. Кальварийская, 3
      ул. Кальварийская, 3
      ул. Кальварийская, 3
      Оформите заявку на проект, мы свяжемся с вами в ближайшее время и ответим на все интересующие вопросы.
      Заказать проект
      ?
      • Описание
      • Вопросы и ответы

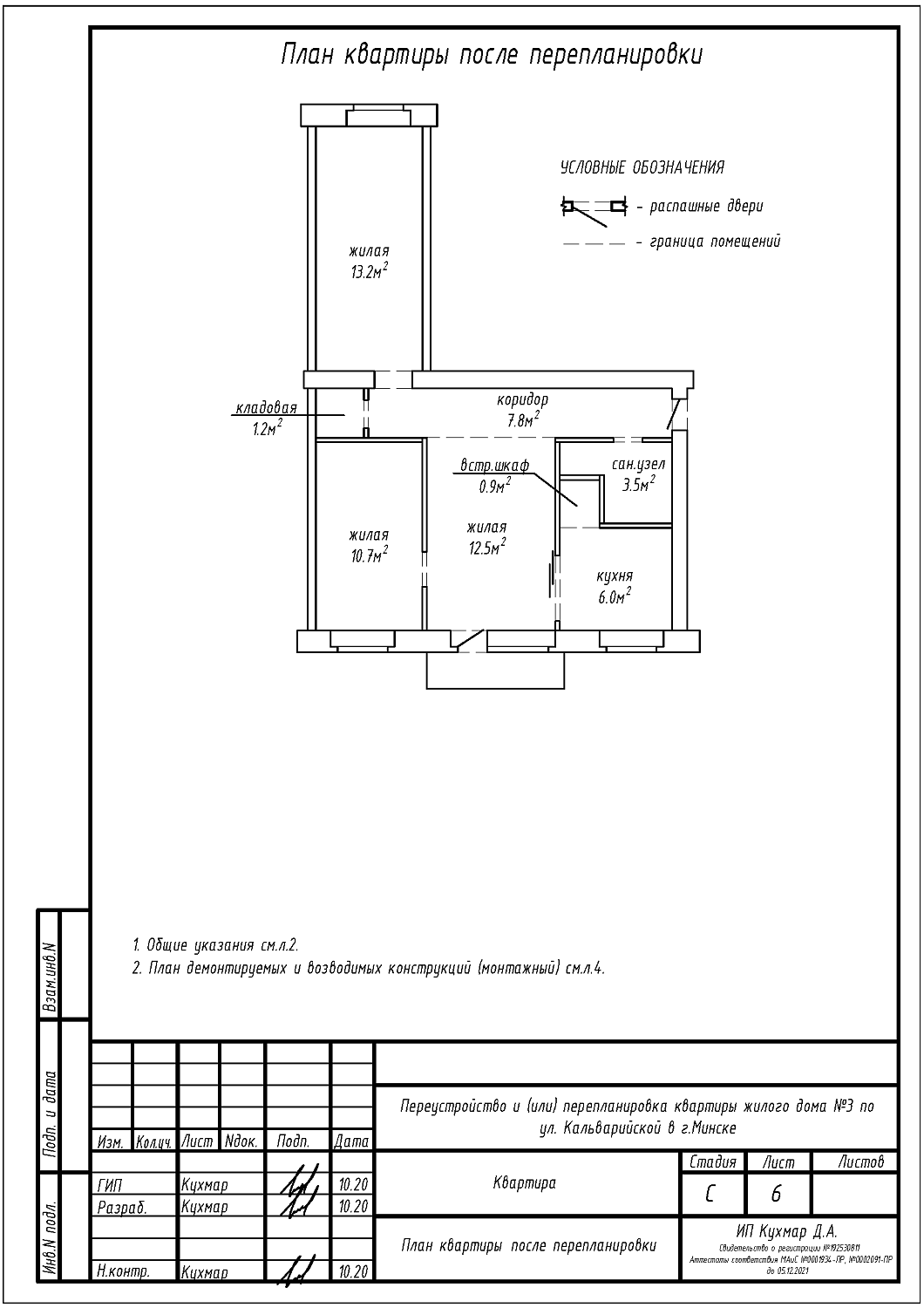
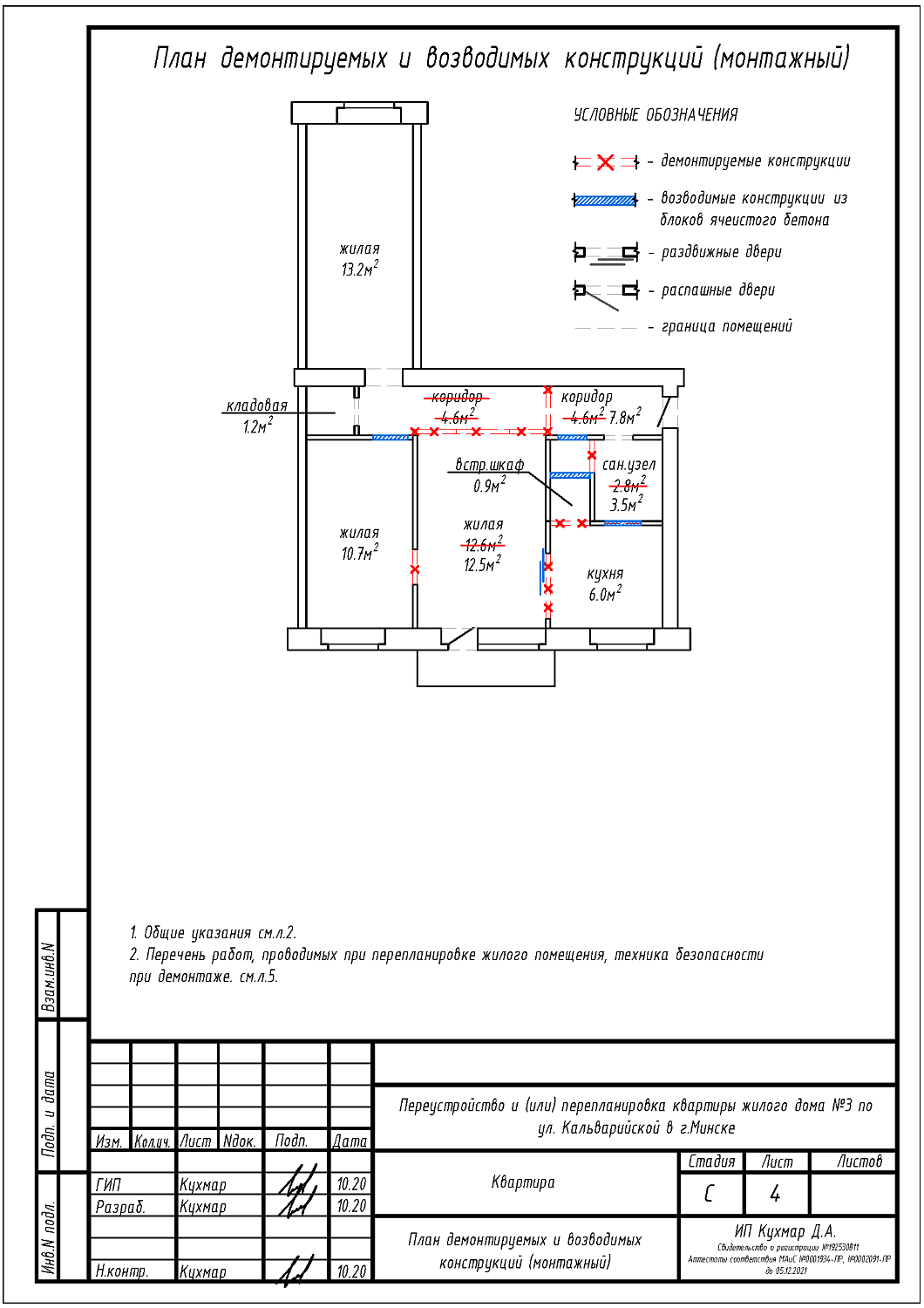
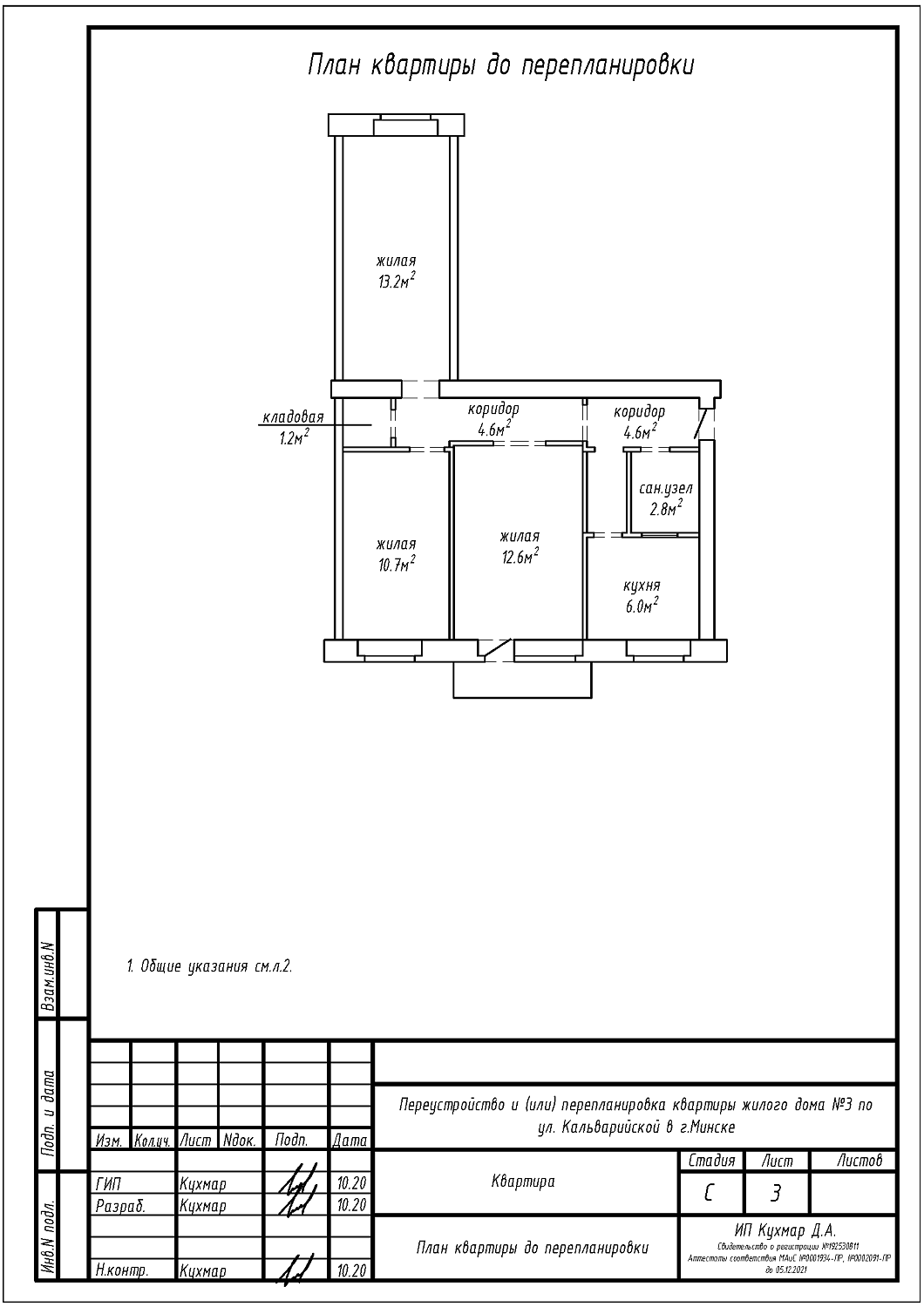
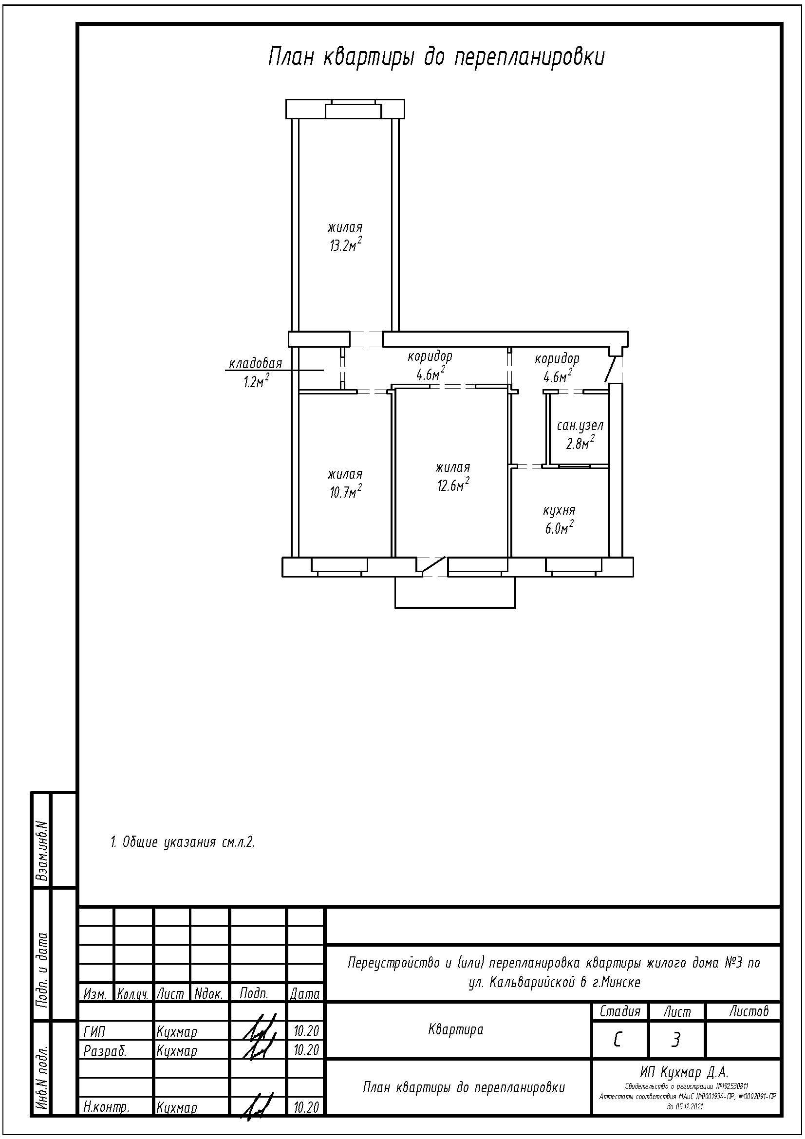
      Перепланировка квартиры по ул. Кальварийская, 3 в г. Минске

      Пожелания заказчика:

      1. Устройство дверного проёма между кухней и жилой;
      2. Демонтаж перегородок между коридором и коридором;
      3. Увеличение площади санузла за счет площади коридора;
      4. Устройство дверного проёма между жилыми;
      5. Закладка дверного проёма между жилой и кладовой;
      6. Демонтаж перегородок между коридором и жилой;
      7. Демонтаж части перегородок между санузлом и коридором.

      Нами были разработаны следующие разделы проектной документации для согласования в исполкоме:

      • АС - архитектурно-строительные решения.
      Вопросы и ответы
      Какие документы необходимы для согласования перепланировки квартиры?

      Чтобы получить разрешение на перепланировку в администрации вашего района, необходимо подготовить:

      • паспорт;
      • заявление на перепланировку;
      • техпаспорт квартиры;
      • свидетельство о гос.регистрации квартиры (документ подтверждающий право собственности на квартиру);
      • согласие прописанных в квартире совершеннолетних лиц на проведение работ либо их присутствие при подаче документов;
      • план-схема планируемой перепланировки или перечень работ в свободной форме;
      • акт осмотра квартиры, составленный обслуживающей организацией;
      • согласие залогодержателя (если помещение находится в залоге);
      • разрешение из банка (если квартира куплена в кредит);
      • выписка из лицевого счета.
      Карта
      загрузка карты...
      Сопутствующие услуги
      Проект перепланировки
      Разработка проектной документации для согласования перепланировки, реконструкции квартиры.
      от 400 BYN
      Технический надзор за выполнением работ
      Технический надзор за выполнением строительно-монтажных работ по перепланировке, реконструкции квартиры.
      от 300 BYN
      Строительно-монтажные работы
      Аттестованный подряд на выполнение работ по отопительным приборам, гидроизоляции, усилению проемов в несущих стенах и прочие виды скрытых работ. Черновые и чистовые сторительно-монтаные работы.
      от 300 BYN
      Похожие проекты
      Санузлы
      ул. Нововиленская, 39_8
      Перепланировка квартиры в ЖК «Левада»:
      psd_1.png Комплекс услуг: Проект
      projekt_1.png Разделы проекта: АС
      location_1.png Место: Центральный р-н
      JK_1.png ЖК «Левада»
      Санузлы
      ул. Тихая, 3А
      Перепланировка квартиры в г. Дзержинске:
      psd_1.png Комплекс услуг: Проект
      projekt_1.png Разделы проекта: АС
      location_1.png Место: г. Дзержинск
      JK_1.png ЖК:
      Батареи
      ул. Брилевская, 31
      Перепланировка квартиры в ЖК «Минск Мир»:
      psd_1.png Комплекс услуг: Проект
      projekt_1.png Разделы проекта: ОВ
      location_1.png Место: Октябрьский р-н
      JK_1.png ЖК «Минск Мир»
      Статьи
      5 июня 2023
      Алгоритм согласования перепланировки квартиры 2023
      Как согласовать перепланировку квартиры в Беларуси в 2023 году? Подробный алгоритм и ответы на важные вопросы в нашей статье.
      24 декабря 2019
      Проект на гидроизоляцию
      Назад к списку

      +375 (44) 535-33-00
      +375 (44) 535-33-00
      +375 (44) 515-33-00
      Заказать звонок
      E-mail
      inproekt100@gmail.com
      Адрес
      г. Минск, ул. Чапаева 3, офис 101
      Режим работы
      Пн. – Пт.: с 9:00 до 18:00
      Заказать звонок
      inproekt100@gmail.com
      г. Минск, ул. Чапаева 3, офис 101
      Услуги
      Квартиры
      Нежилые помещения
      Мастер-классы
      Компания
      Лицензии
      Сотрудники
      Отзывы
      Информация
      Вопрос-ответ
      Как оформить заказ
      платежные системы 1.png
      © 2026 Pereplan.by
      Общество с ограниченной ответственностью «А4-Проект»
      Свидетельство о государственной регистрации 193093030 выдано 13.06.2018 Минским горисполкомом.
      Юр. Адрес: Беларусь, г.Минск, ул. Чапаева, 3-101.
      Политика конфиденциальности
      Договор оферты
      Главная Услуги Проекты Лицензии Статьи FAQ Скидки Отзывы Поиск Сотрудники Контакты