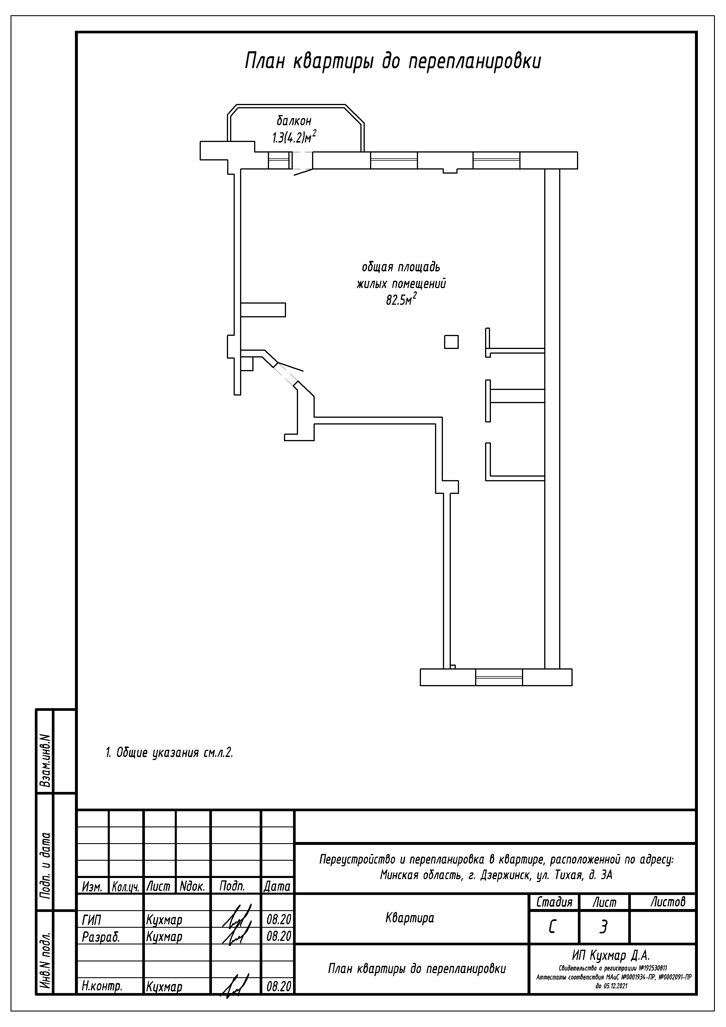
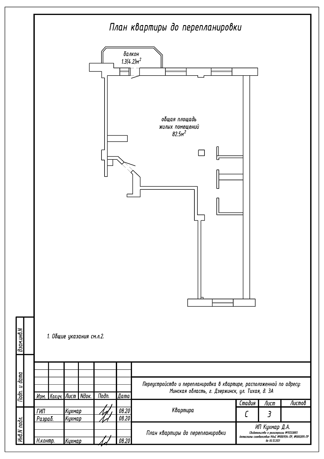
Перепланировка квартиры по ул. Тихая, 3А в г. Дзержинске
Пожелания заказчика:
- Разделение общего жилого помещения на жилую с кухонным оборудованием и жилую;
- Изменение габаритов туалета и санузла.
Нами были разработаны следующие разделы проектной документации для согласования в исполкоме:
- АС - архитектурно-строительные решения.
