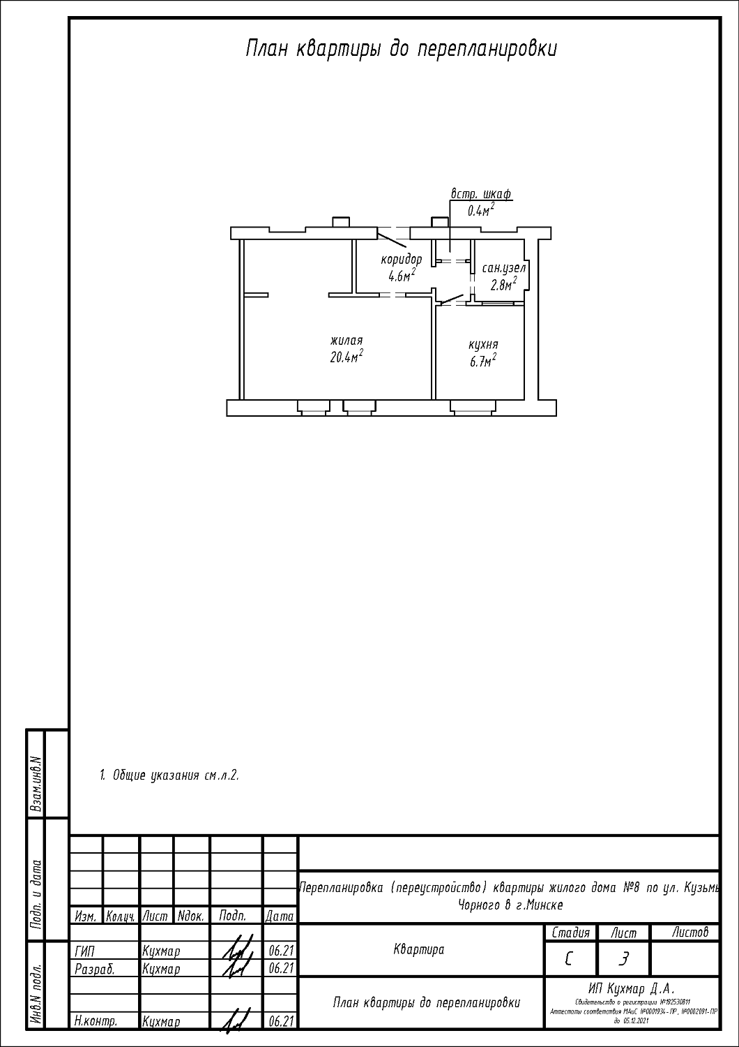
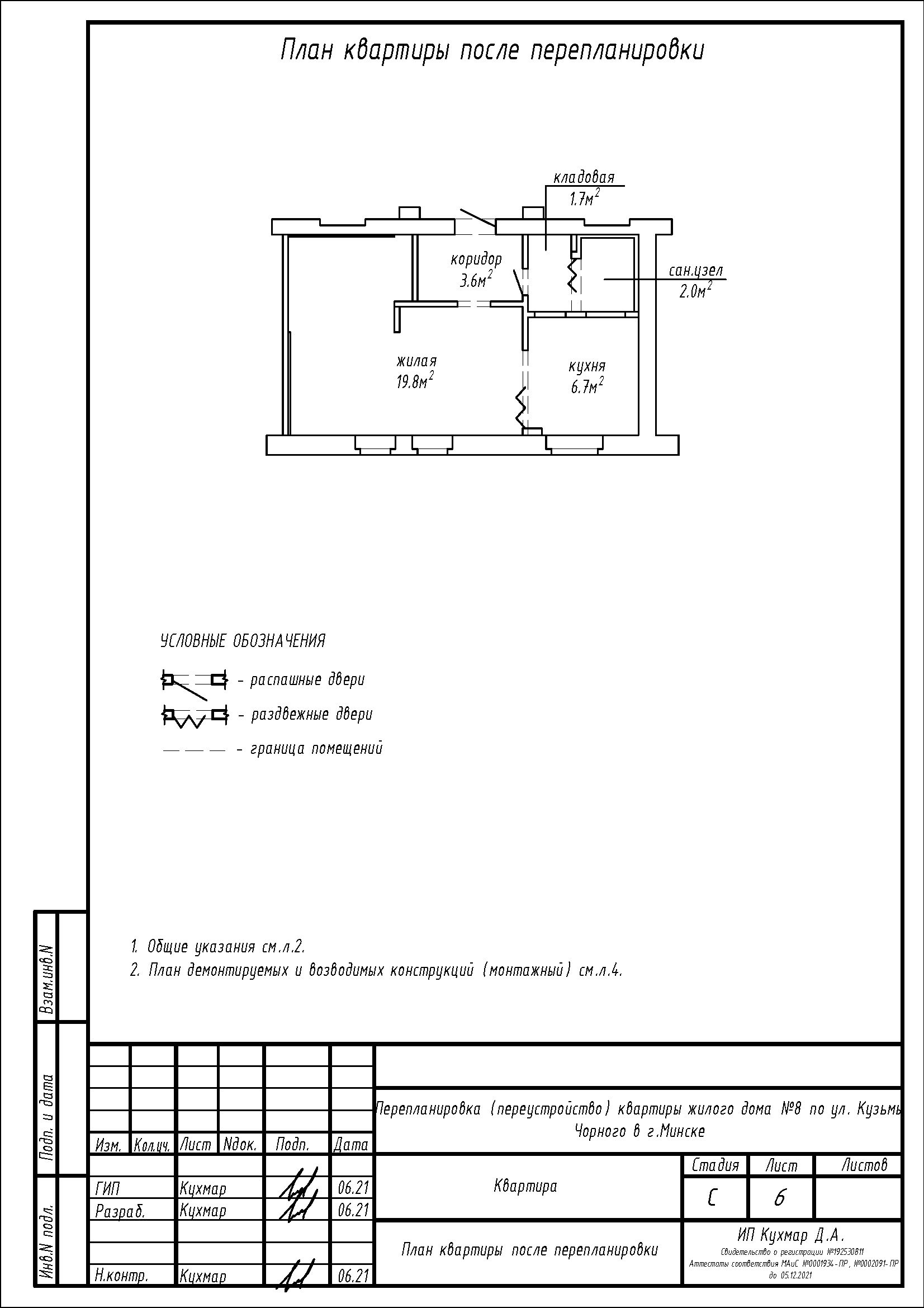
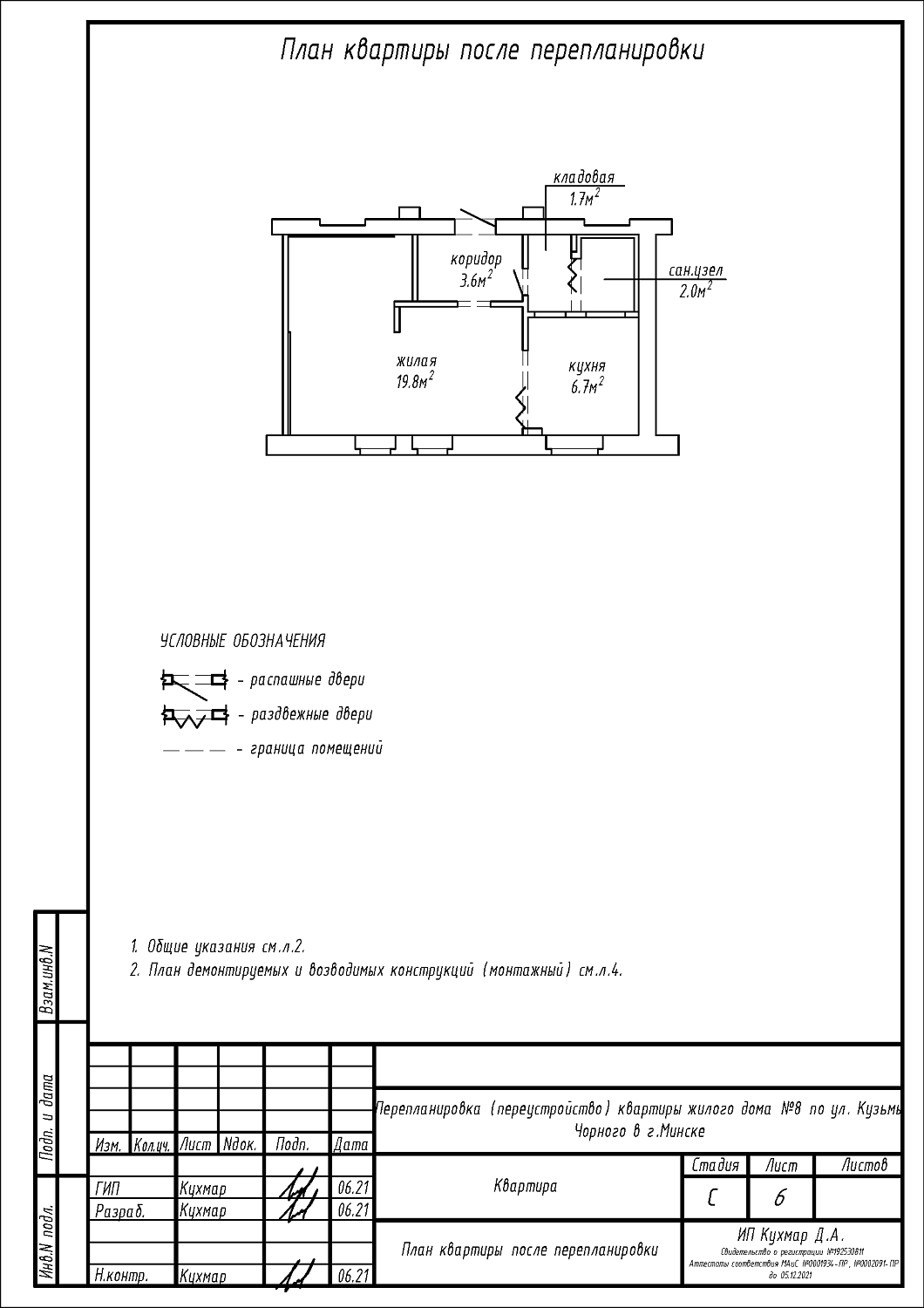
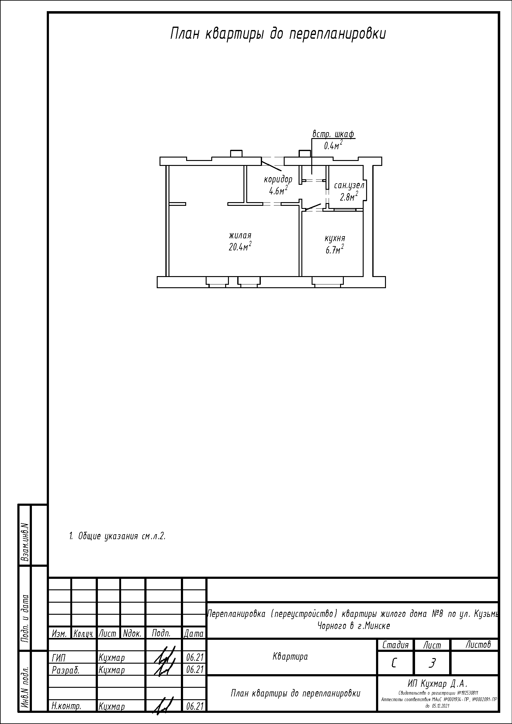
Перепланировка квартиры по ул. К. Чорного,8 в г. Минске
Пожелания заказчика:
- Демонтаж части перегородки с дверным проемом между коридором 4.6 м2 и сан.узлом, с последующим устройством дверного блока в сущ. проём на площади коридора, устройством перегородок с дверным проёмом и дверным полотном на части площади сан.узла, с целью устройства кладовой и сан.узла;
- Демонтаж встроенного шкафа;
- Демонтаж перегородки между коридором 4.6 м2 и жилой с последующим устройством перегородок и декоративных гипсовых панелей на части площади жилой;
- Закладка дверного и оконного проема в перегородке между коридором 4.6 м2, сан узлом и кухней;
- Устройство дверного проема с дверным полотном в перегородке между кухней и жилой;
- Демонтаж перегородки на площади жилой;
- Устройство зашивки на части площади кухни;
- Замена дверного полотна входной двери со сменой открывания
Нами были разработаны следующие разделы проектной документации для согласования в исполкоме:
- АС - архитектурно-строительные решения.
