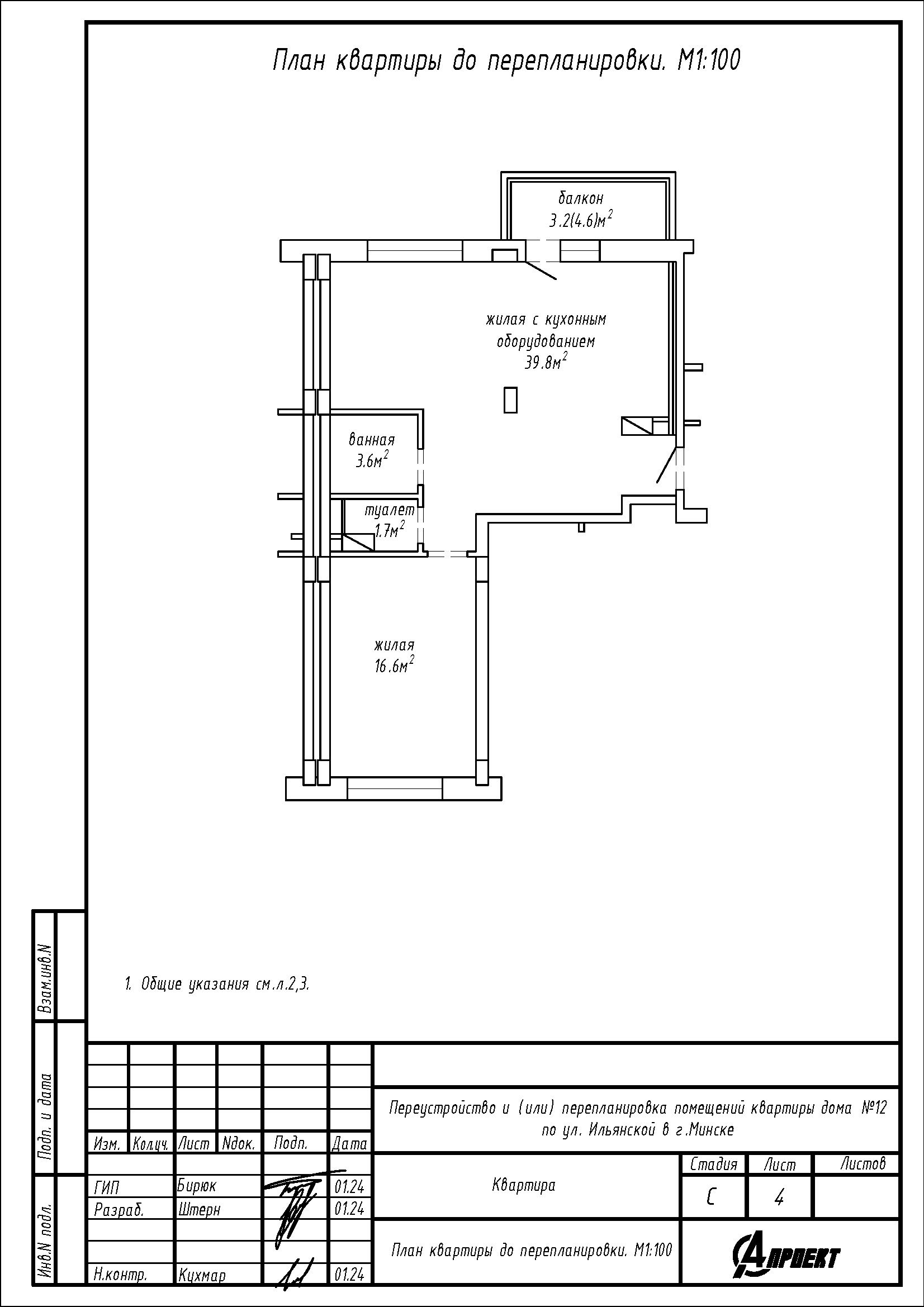
Перепланировка квартиры по ул. Ильянская, 12 в ЖК «Променад»
Пожелания заказчика:
- Объединение ванной и туалета в единый санузел;
- Смена направления открывания входной двери;
- Разделение общей жилой с кухонным оборудованием на жилую с кухонным оборудованием и две жилые;
- Устройство зашивки ГКЛ на части площади жилой 16,6 м2;
- Устройство инсталляции в образованном помещении.
Нами были разработаны следующие разделы проектной документации для согласования в исполкоме:
- АС - архитектурно-строительные решения.
