Перепланировка квартиры по ул. Игоря Лученка, 5 в ЖК «Минск Мир»
Пожелания заказчика:
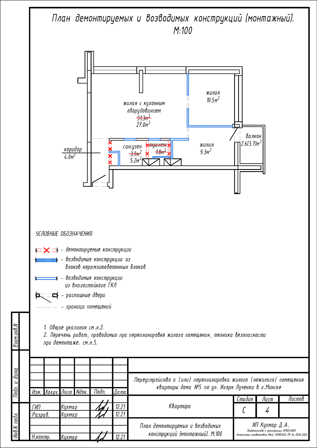
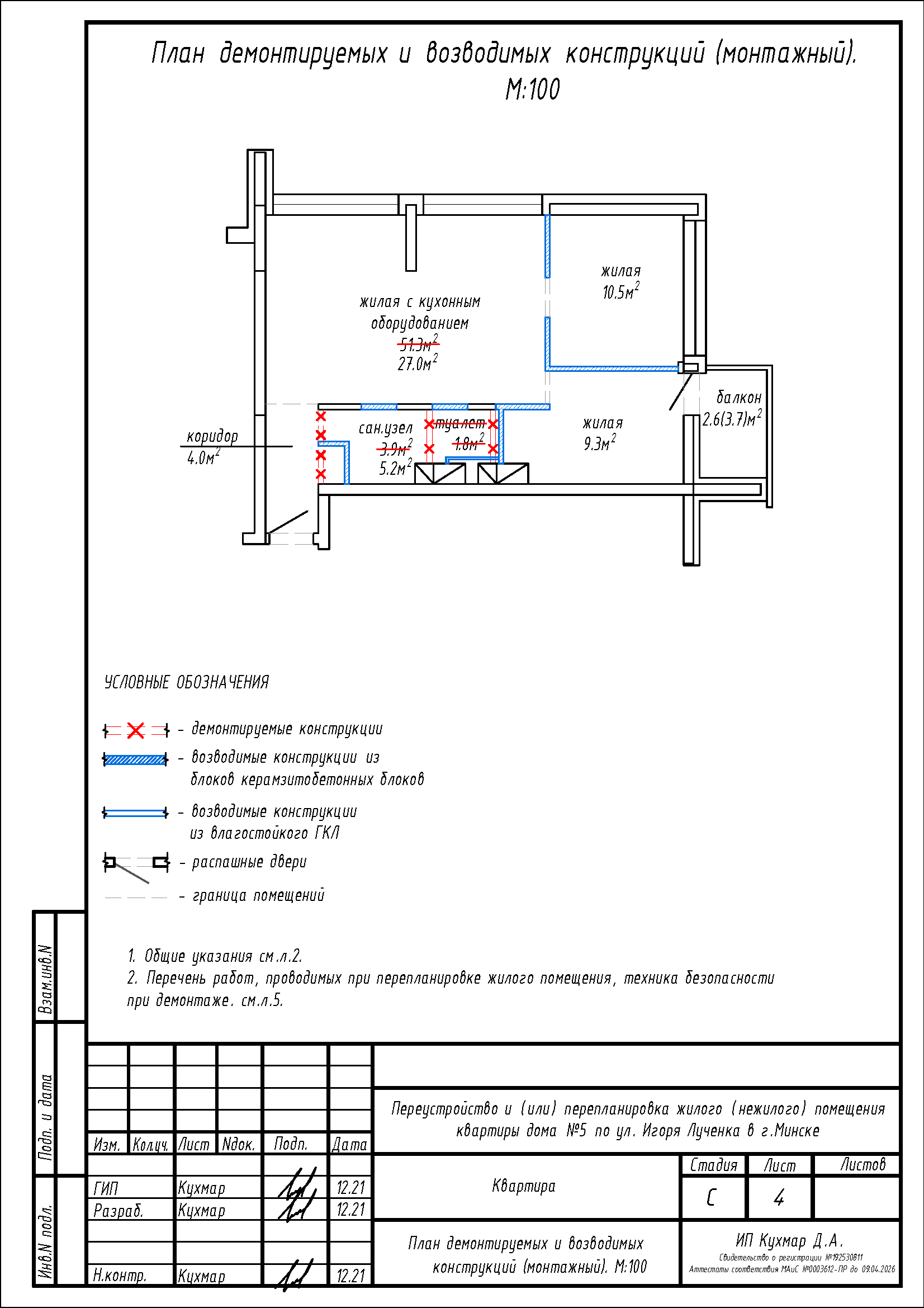
- Разделение общей жилой с кухонным оборудованием на жилую с кухонным оборудованием, две жилые и коридор;
- Объединение ванной и туалета в единый санузел;
- Смещение дверного проёма между санузлом и коридором;
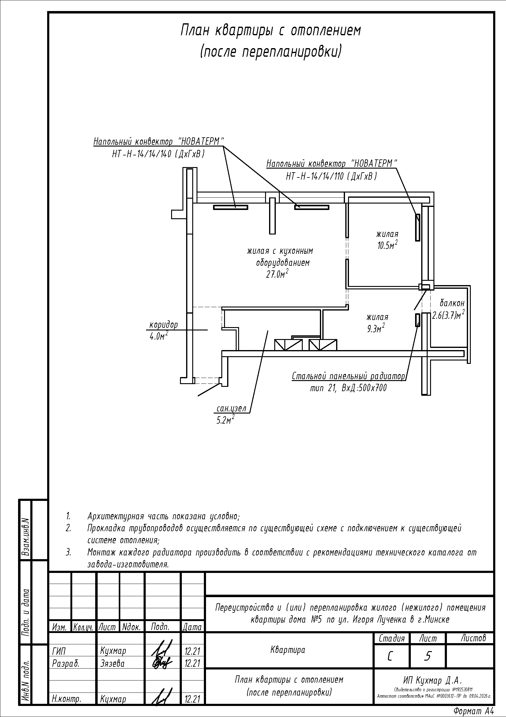
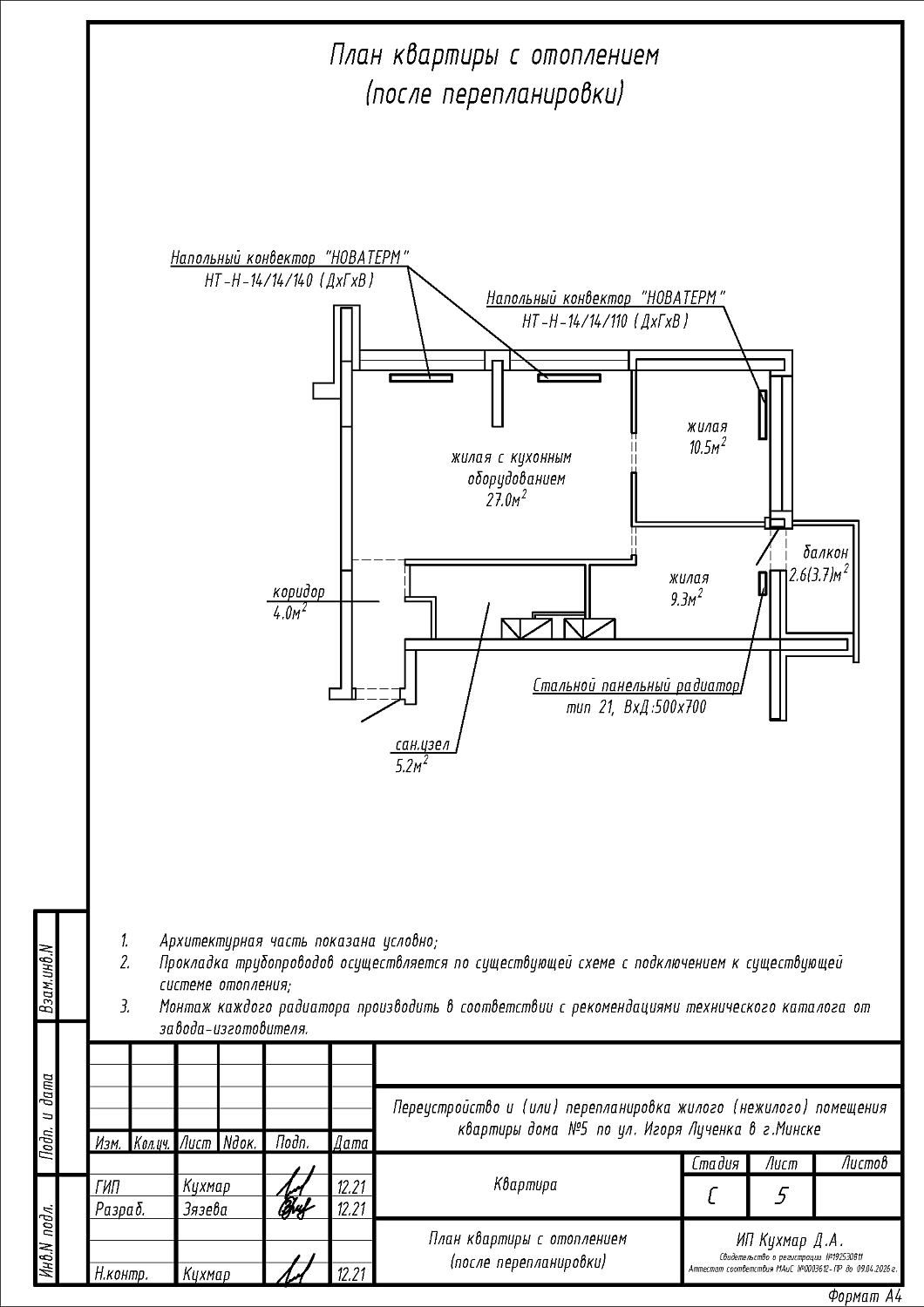
- Перенос и замена отопительных приборов.
Нами были разработаны следующие разделы проектной документации для согласования в исполкоме:
- АС - архитектурно-строительные решения;
- ОВ - отопление и вентиляция.
