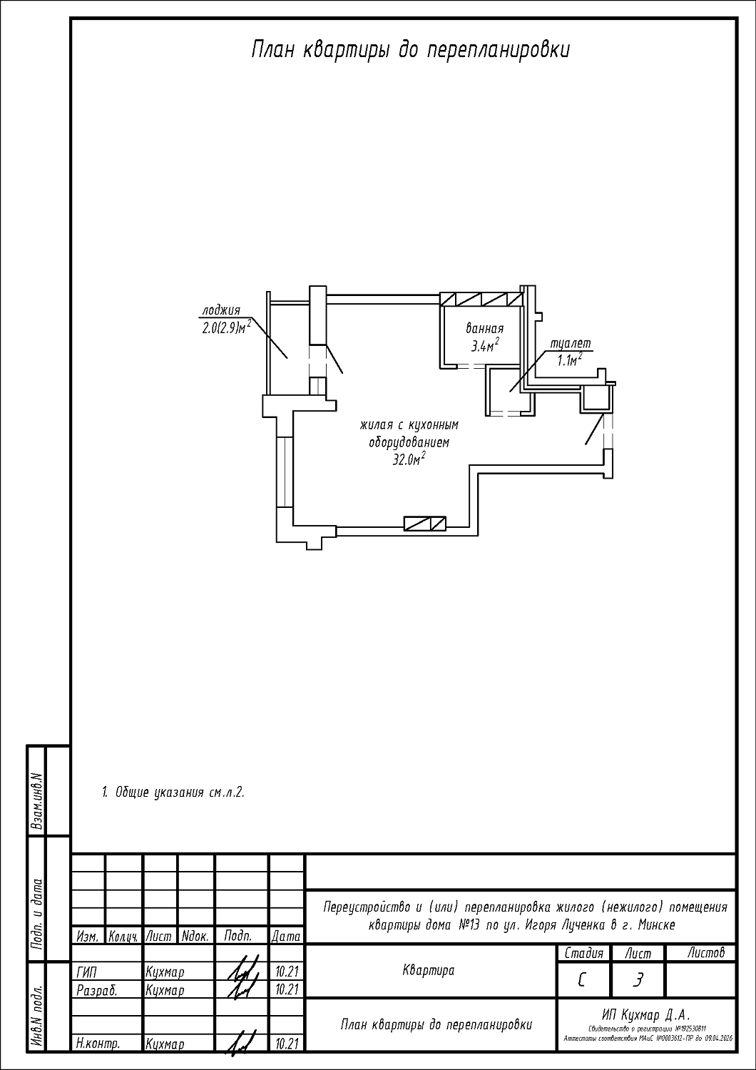
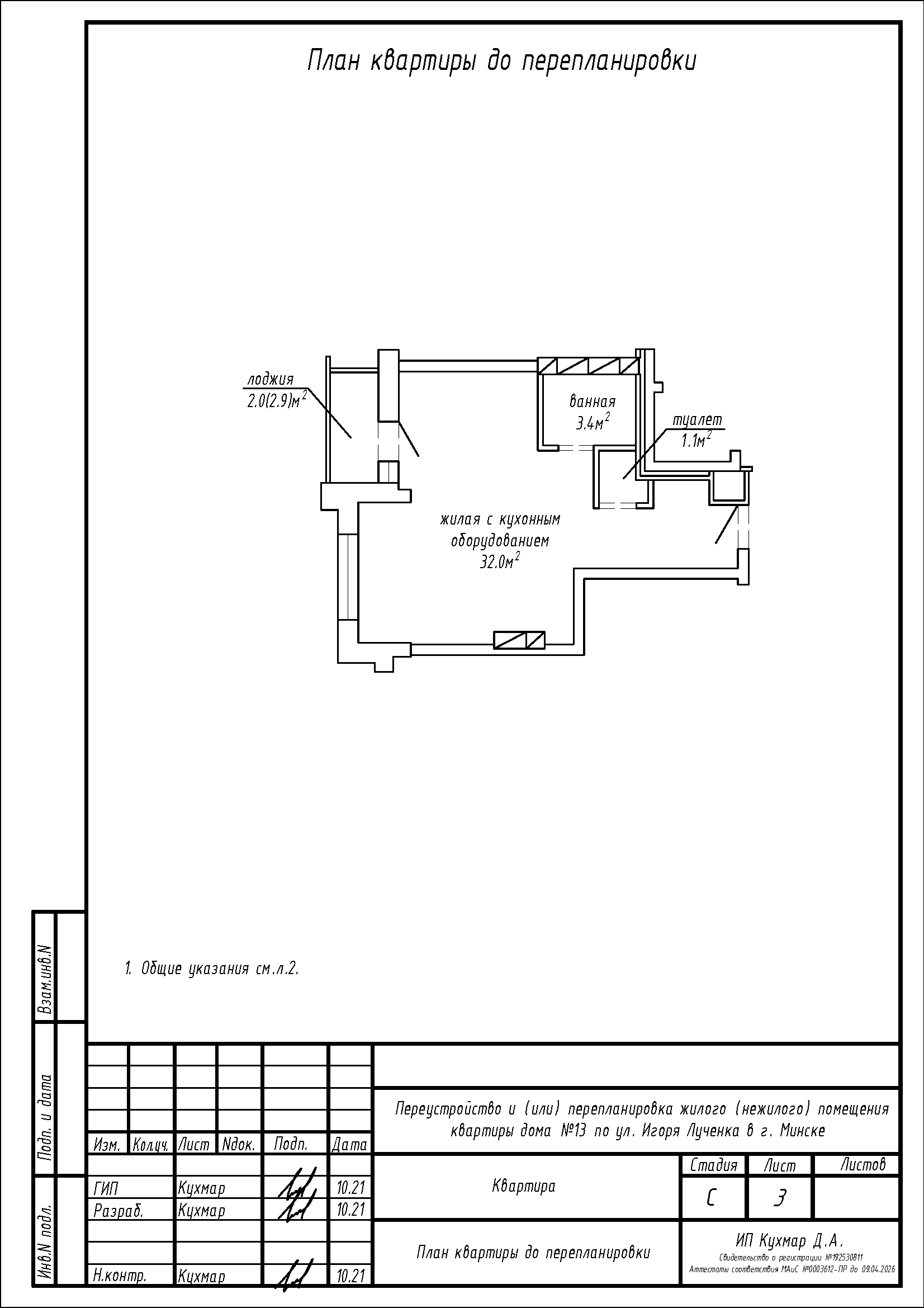
Перепланировка квартиры по ул. Игоря Лученка, 13 в ЖК «Минск Мир»
Пожелания заказчика:
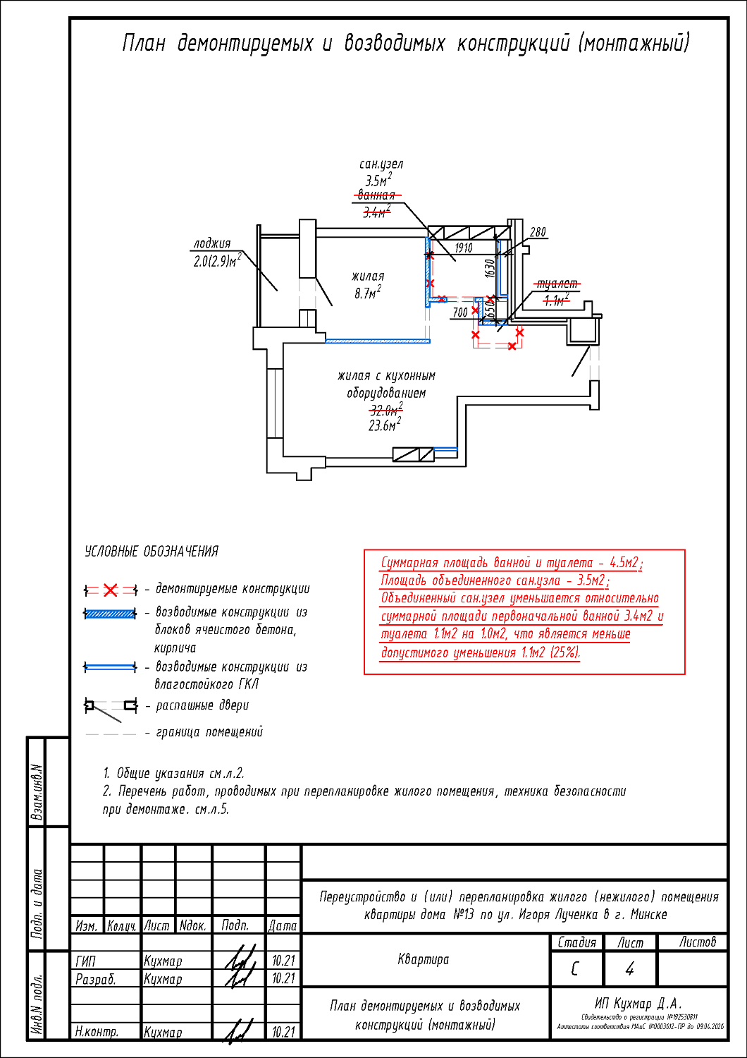
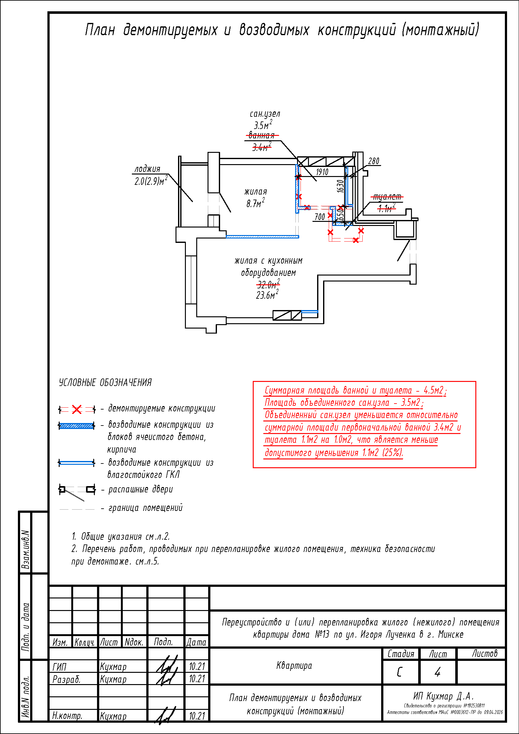
- Разделение общей жилой с кухонным оборудованием на жилую с кухонным оборудованием, жилую;
- Устройство зашивки на части площади жилой с кухонным оборудованием;
- Демонтаж перегородок туалета, с целью образования объединённого сан.узла;
- Устройство сан.узла на площади ванной.
Нами были разработаны следующие разделы проектной документации для согласования в исполкоме:
- АС - архитектурно-строительные решения.
