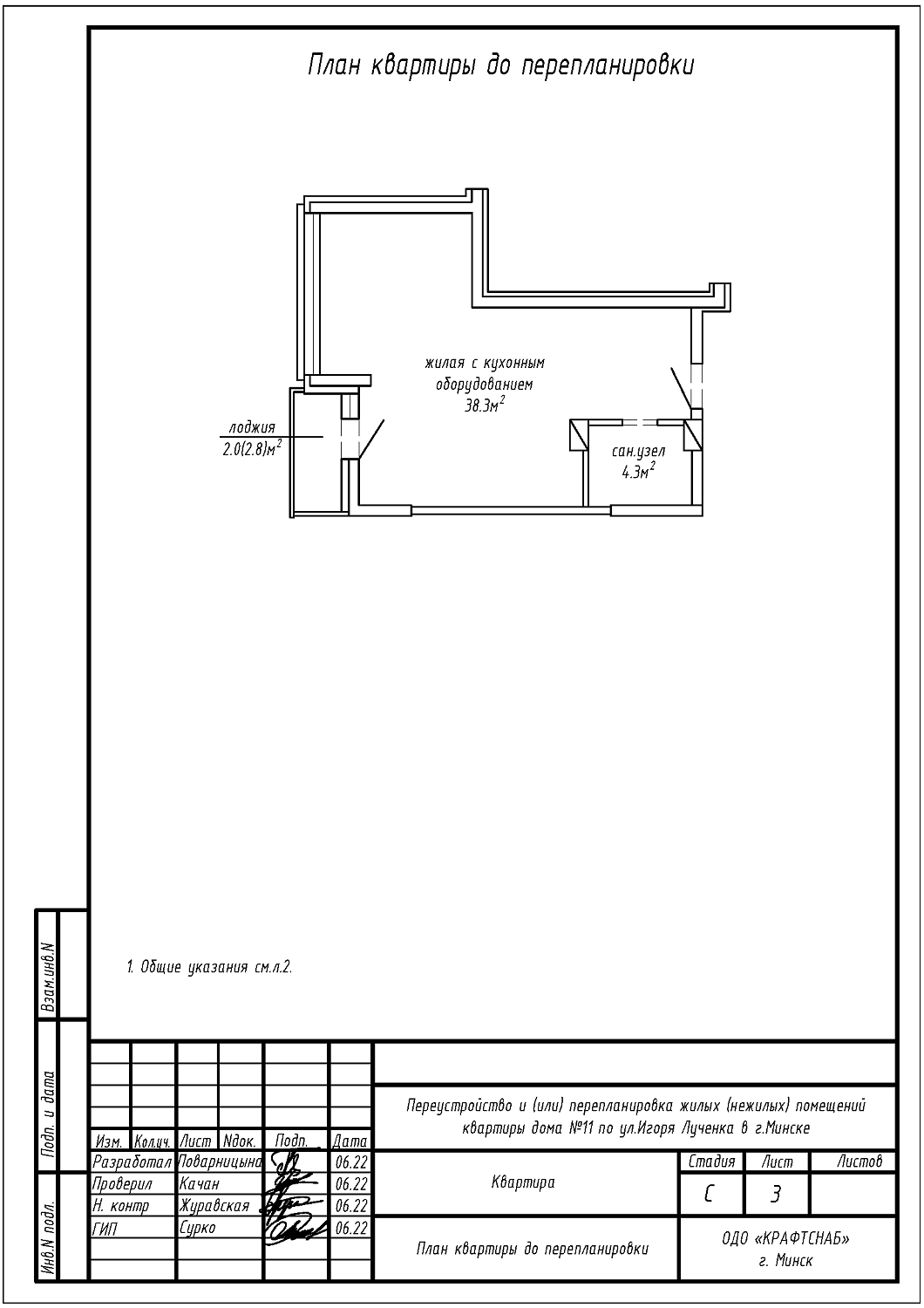
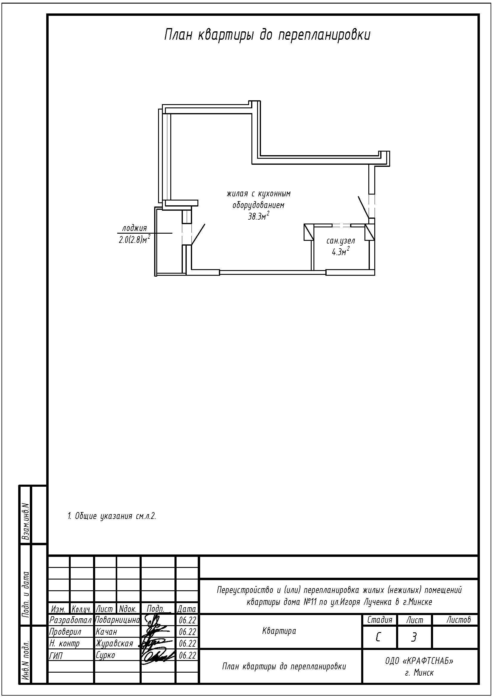
Перепланировка квартиры по ул. Игоря Лученка, 11 в ЖК «Минск Мир»
Пожелания заказчика:
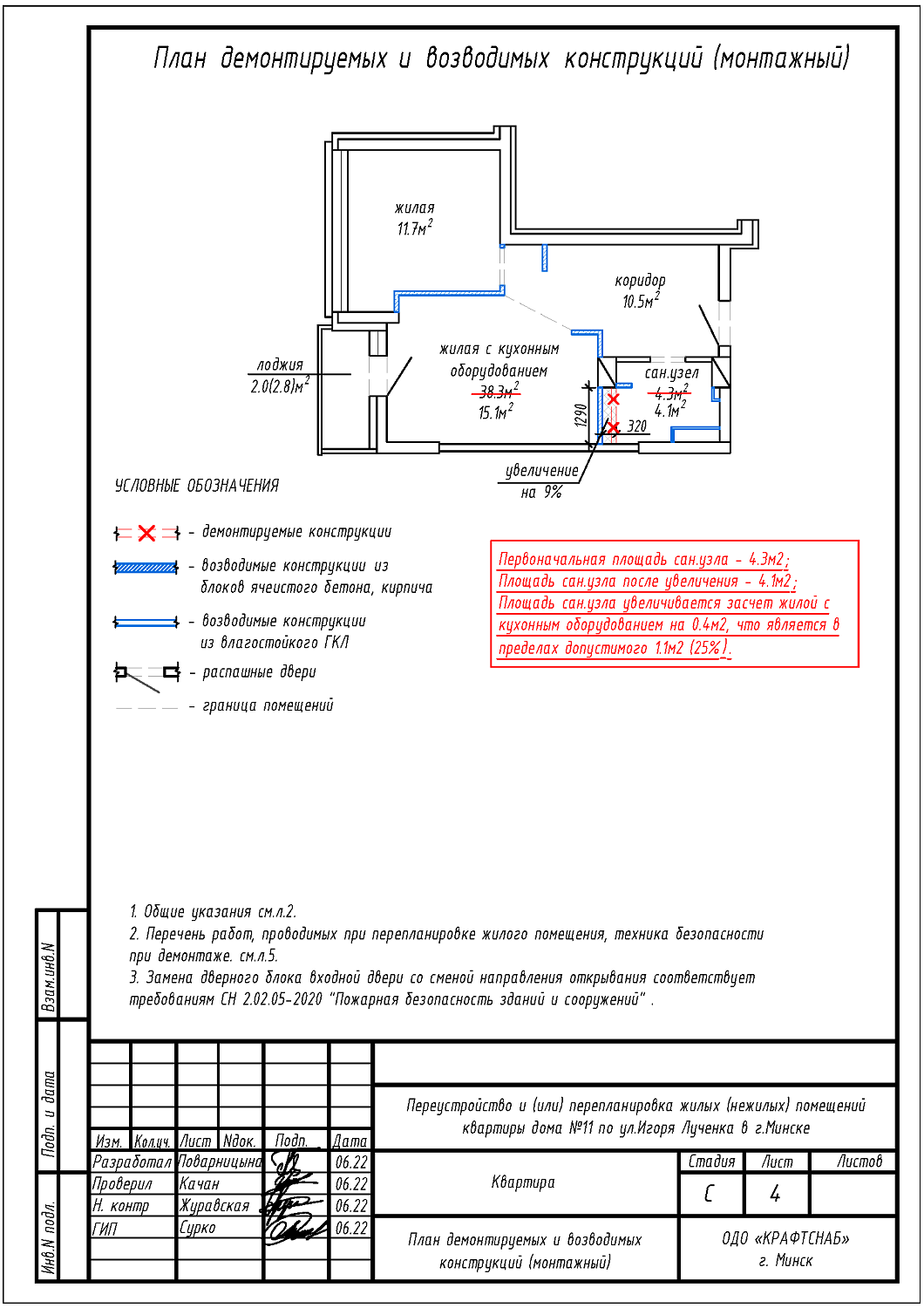
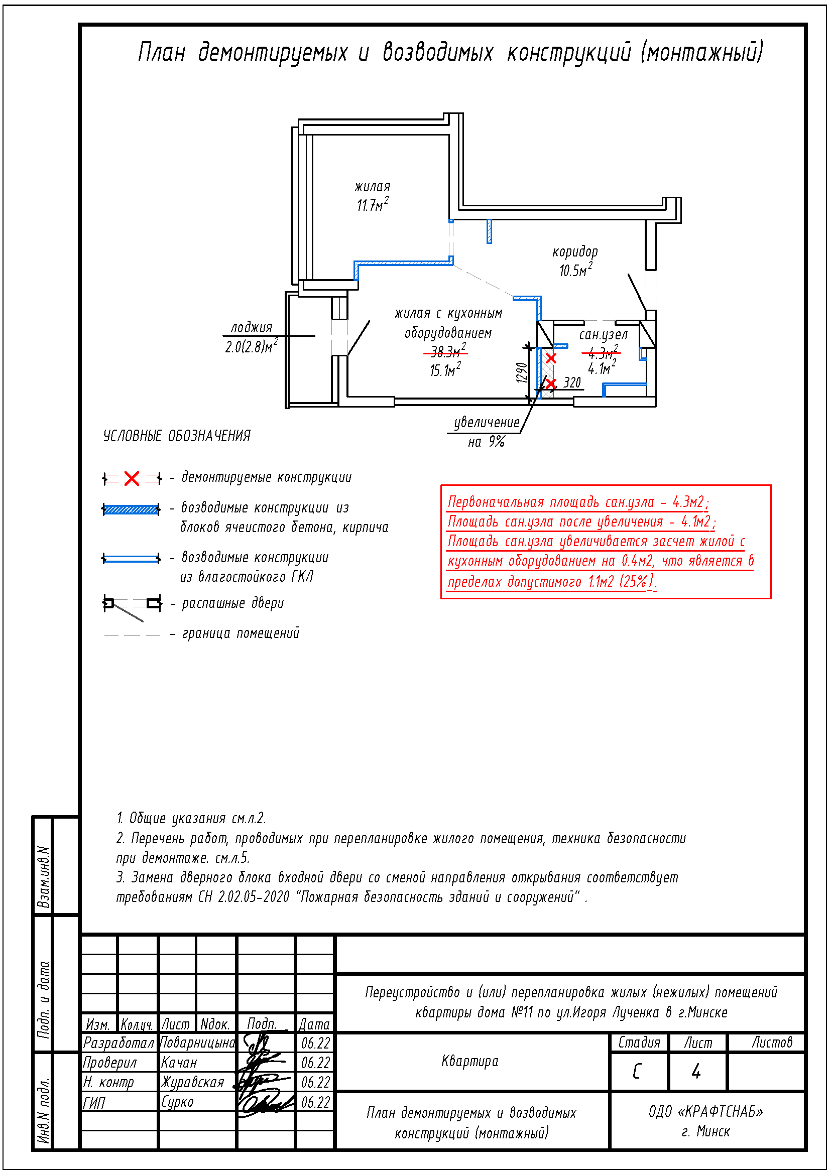
- Разделение общей жилой с кухонным оборудованием на жилую с кухонным оборудованием, жилую и коридор;
- Увеличение площади санузла, но не более чем на 25%.
Нами были разработаны следующие разделы проектной документации для согласования в исполкоме:
- АС - архитектурно-строительные решения.
