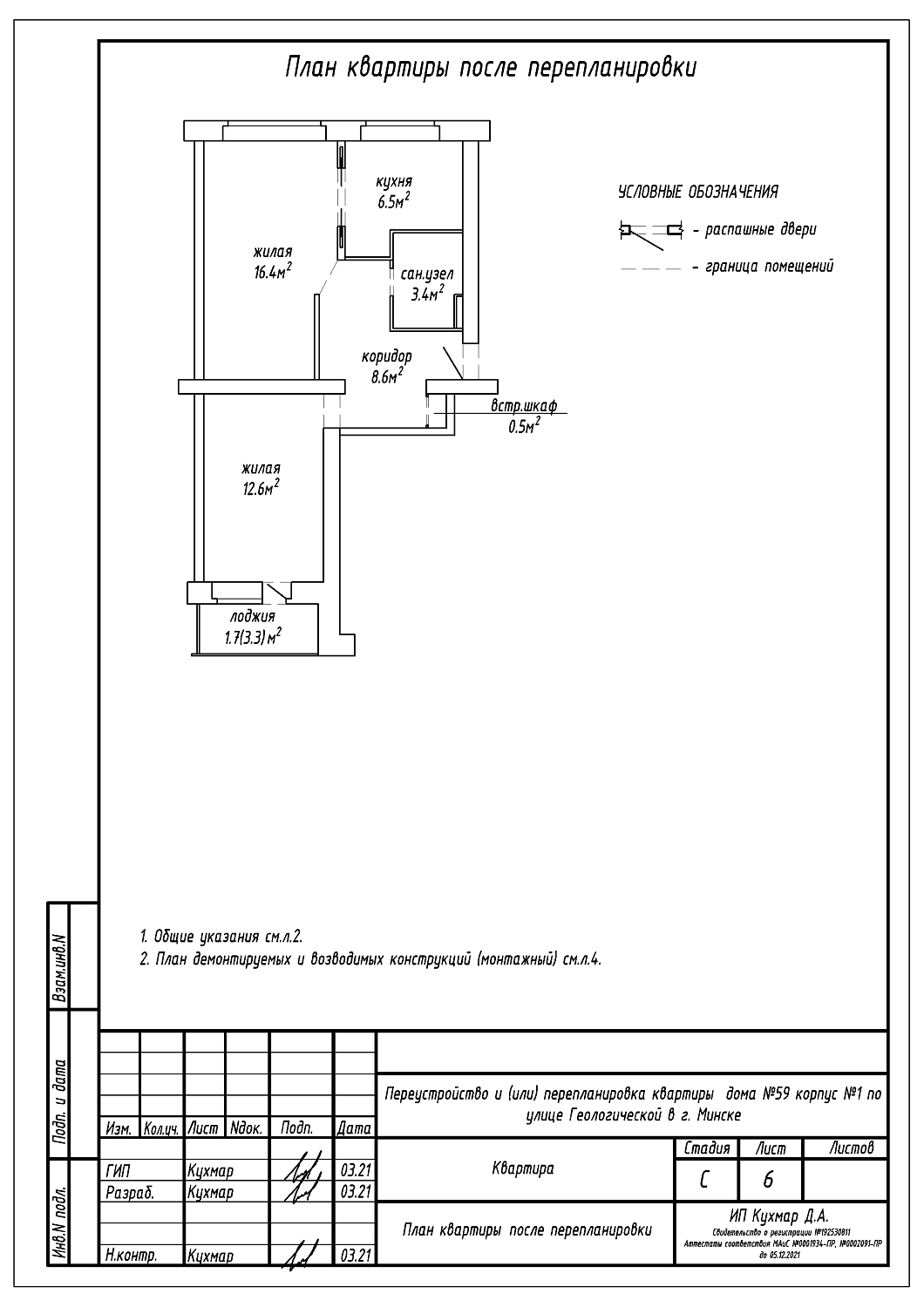
Перепланировка квартиры по ул. Геологическая, 59/1 в ЖК г.Минске
Пожелания заказчика:
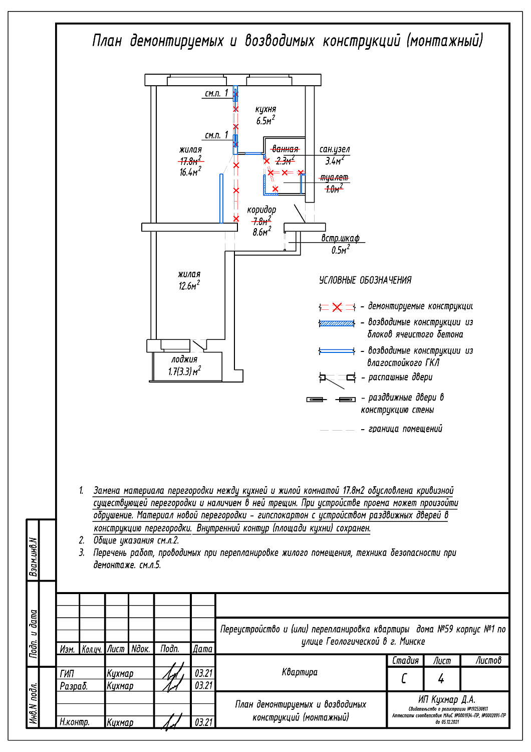
- Объединение ванной и туалета в единый санузел;
- Закладка дверного проема в кухню и устройство нового со стороны жилой комнаты 17.8 м2 с монтажом дверного блока в образованный проем;
- Демонтаж перегородки между жилой комнатой 17.8 м2, коридором 7.8 м2 и возведение фрагмента перегородки на площади жилой комнаты с устройством шкафа купе.
Нами были разработаны следующие разделы проектной документации для согласования в исполкоме:
- АС - архитектурно-строительные решения.
