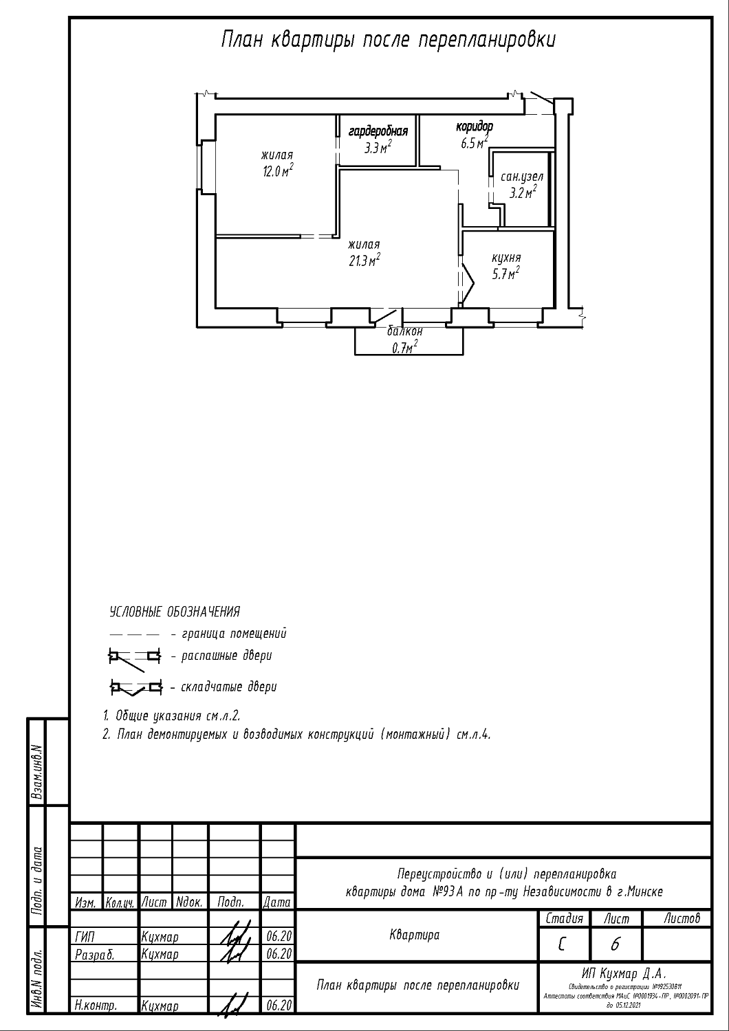
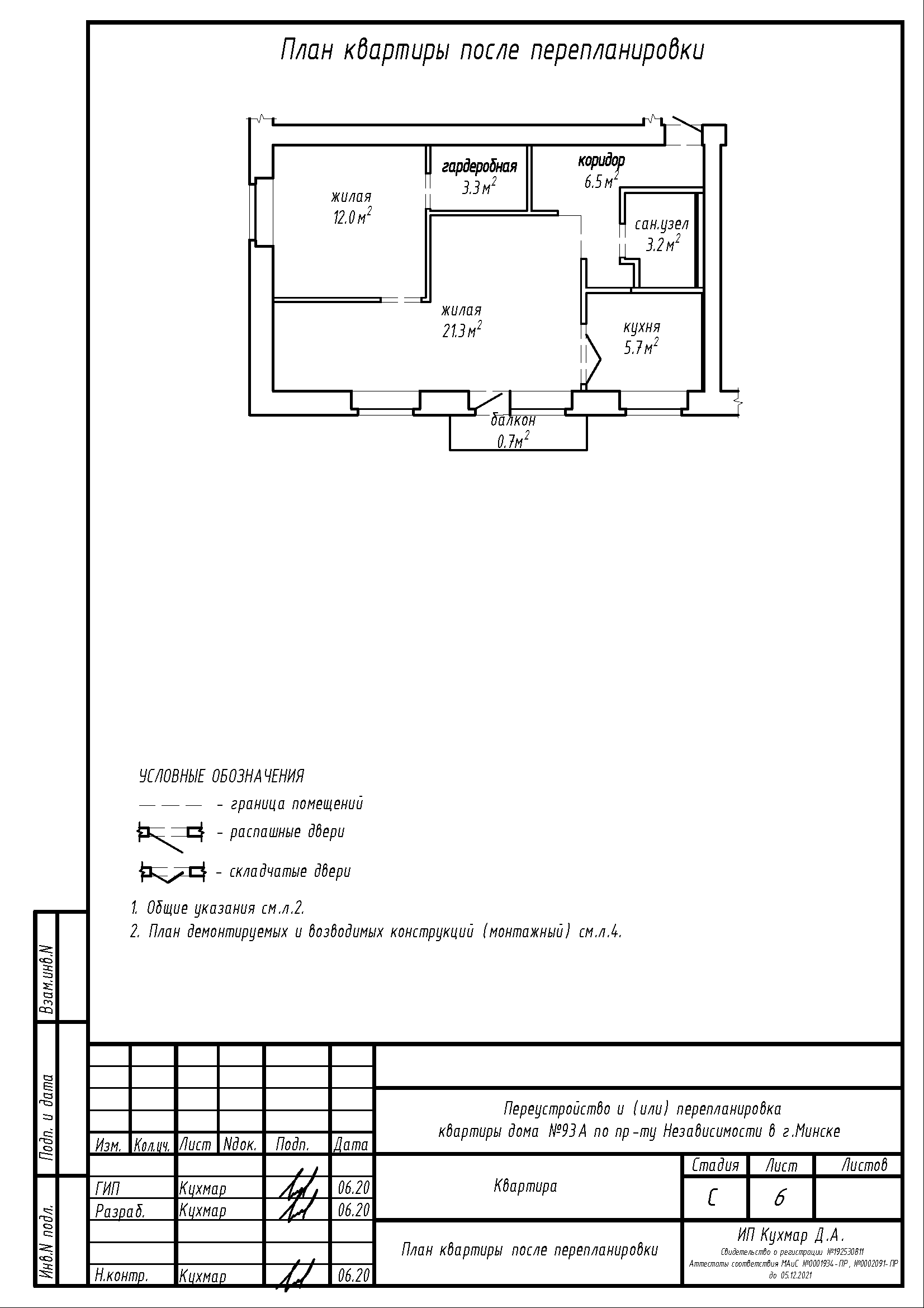
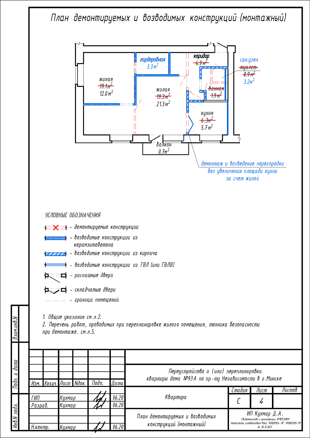
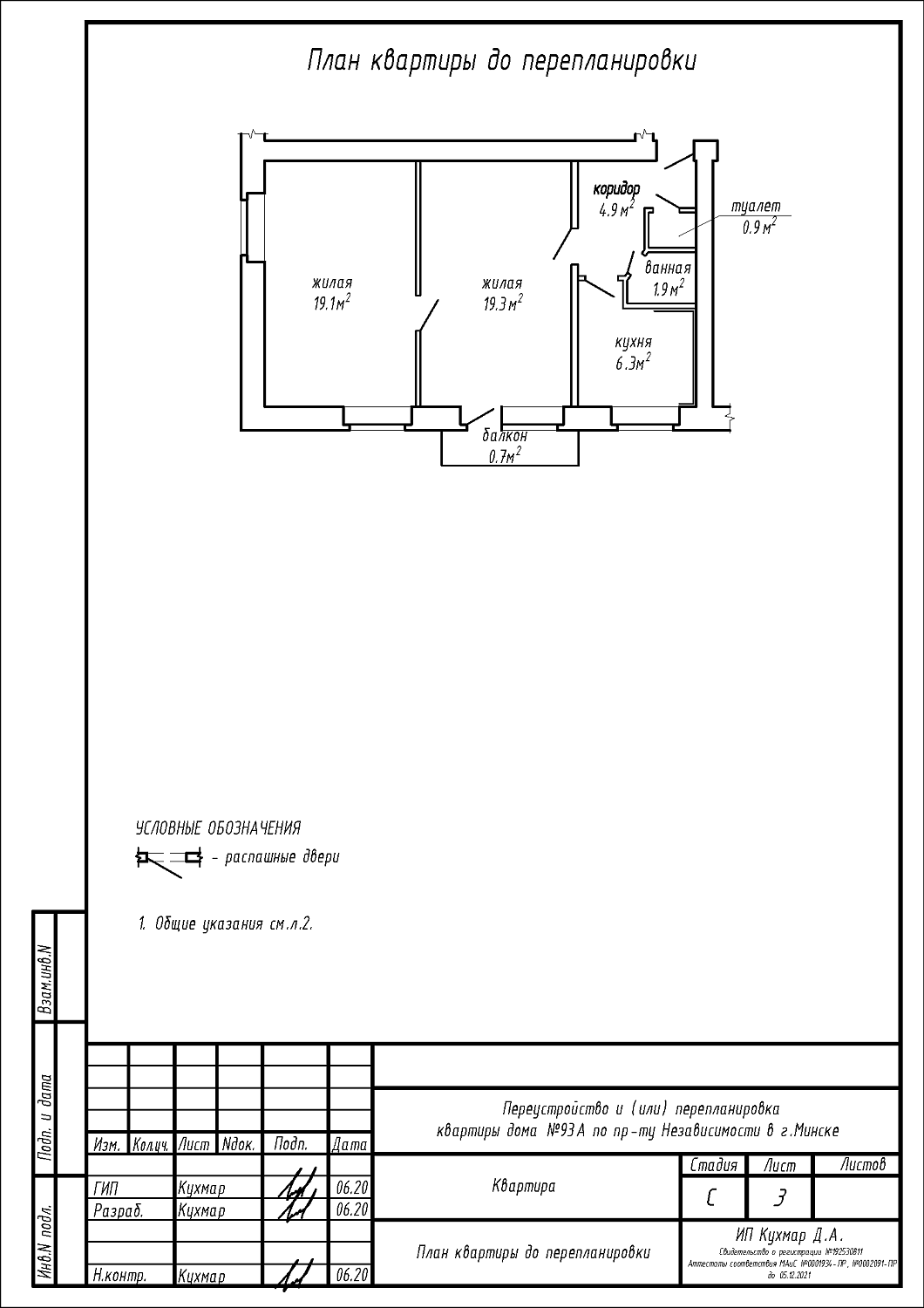
Перепланировка квартиры по пр-ту Независимости, 93А в г. Минске
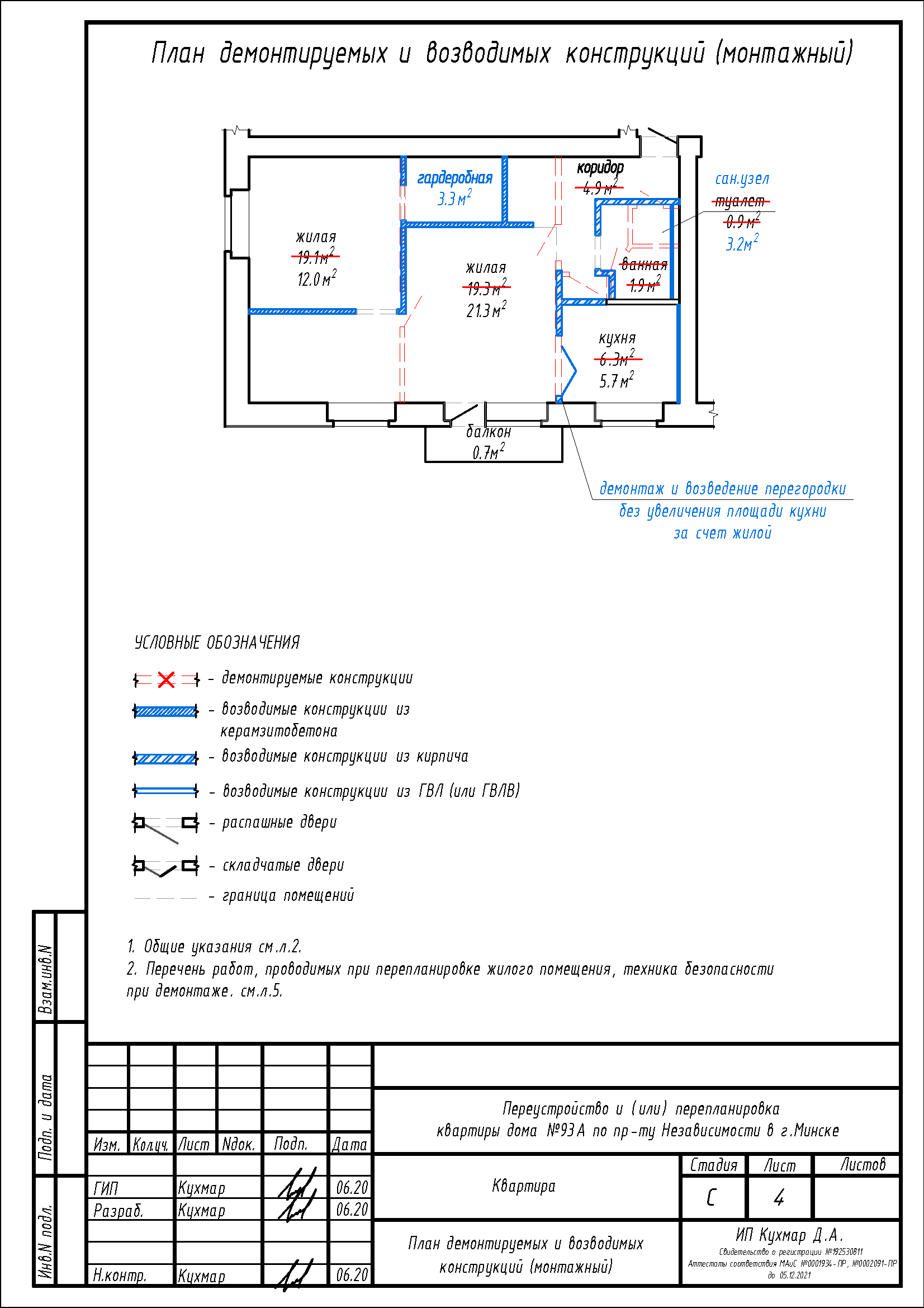
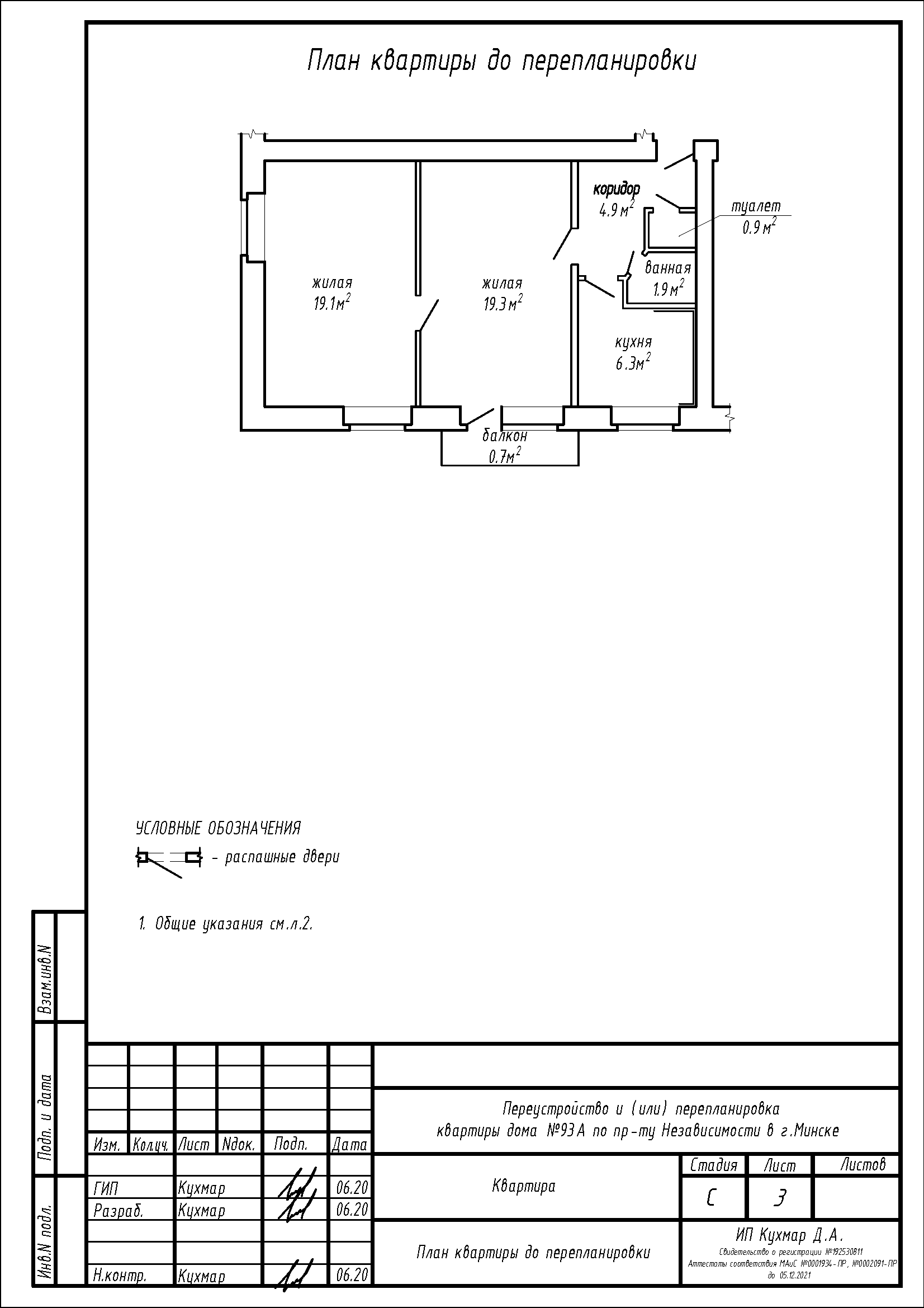
Пожелания заказчика:- Объединение ванной и туалета в единый санузел;
- Закладка дверного проёма между коридором и кухней;
- Устройство дверного проёма между кухней и жилой;
- Устройство кладовой на части площади жилой;
- Изменение площади жилых.
Нами были разработаны следующие разделы проектной документации для согласования в исполкоме:
- АС - архитектурно-строительные решения.
