Перепланировка квартиры по ул. Франциска Скорины, 5 в ЖК «Маяк Минска»
Пожелания заказчика:
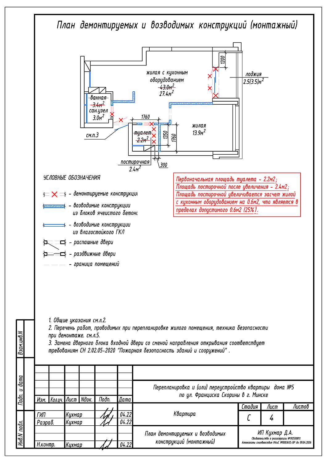
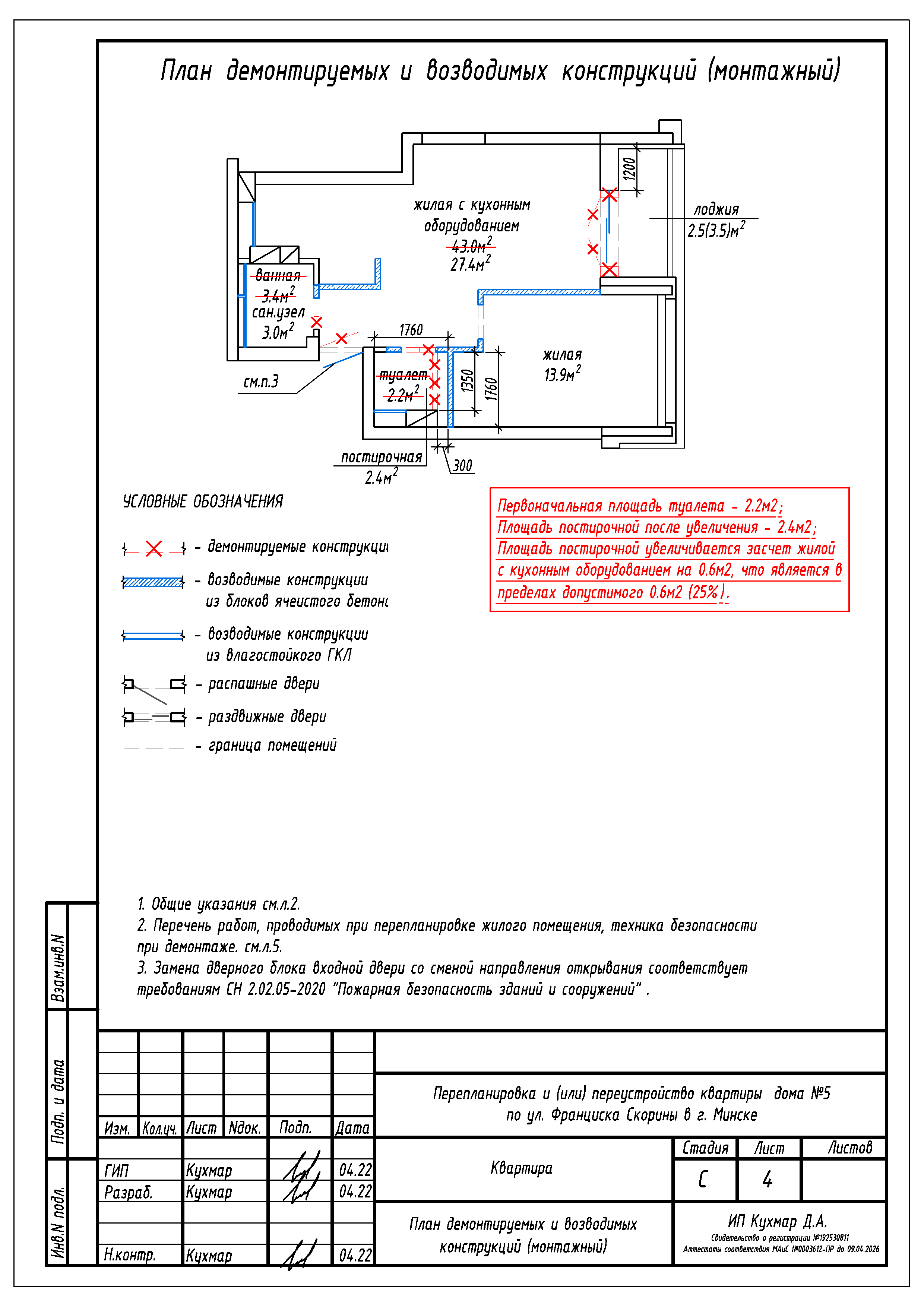
- Разделение общего помещения жилой с кухонным оборудованием на жилую с кухонным оборудованием и жилую;
- Устройство постирочной на площади существующего туалета; Увеличение за счёт части жилой с кухонным оборудованием;
- Устройство санузла на площади ванной;
- Смена направления открывания входной двери;
- Расширение дверного проема в стене между жилой с кухонным оборудованием и лоджией с последующим устройством дверного блока.
Нами были разработаны следующие разделы проектной документации для согласования в исполкоме:
- АС - архитектурно-строительные решения.
