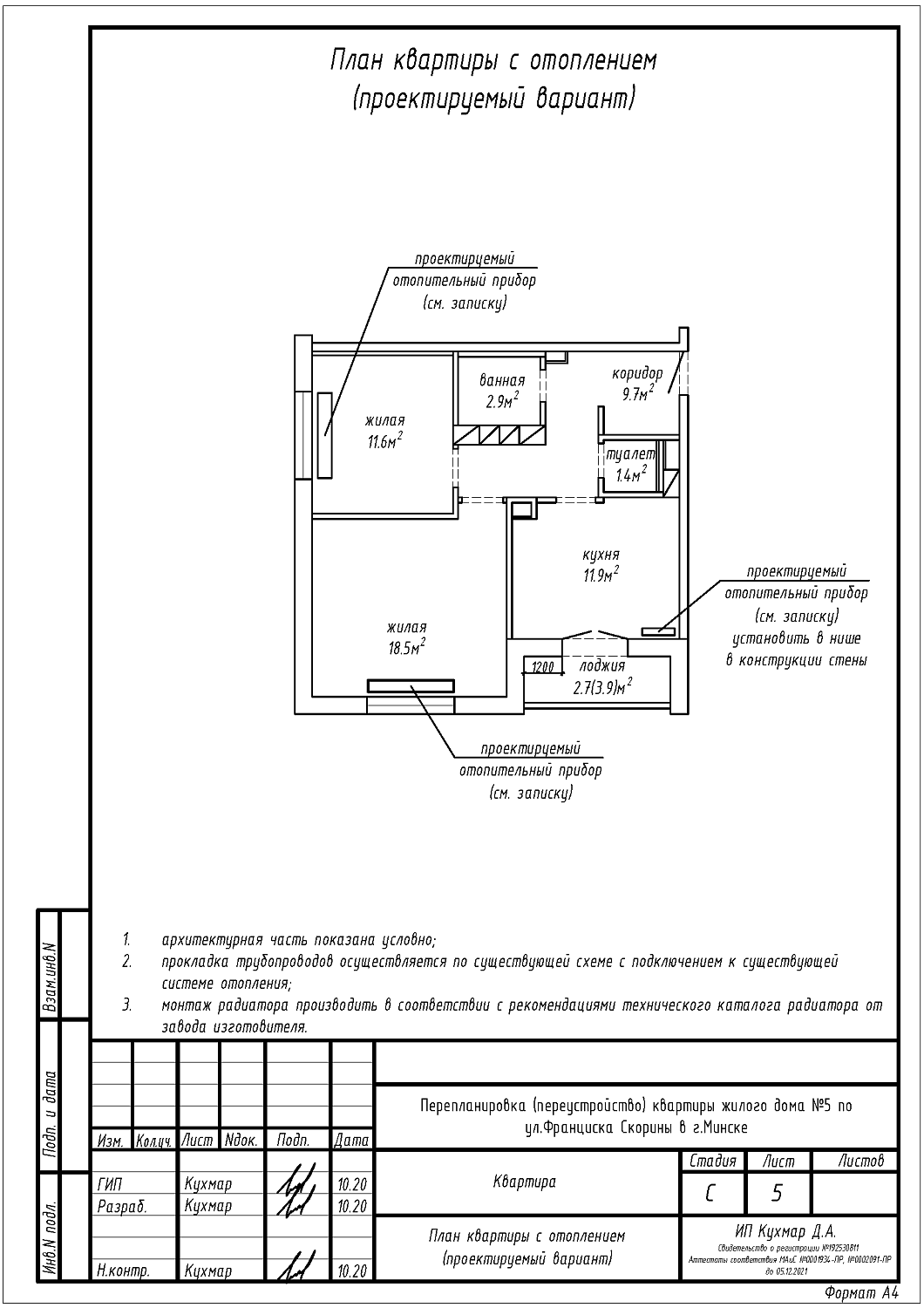
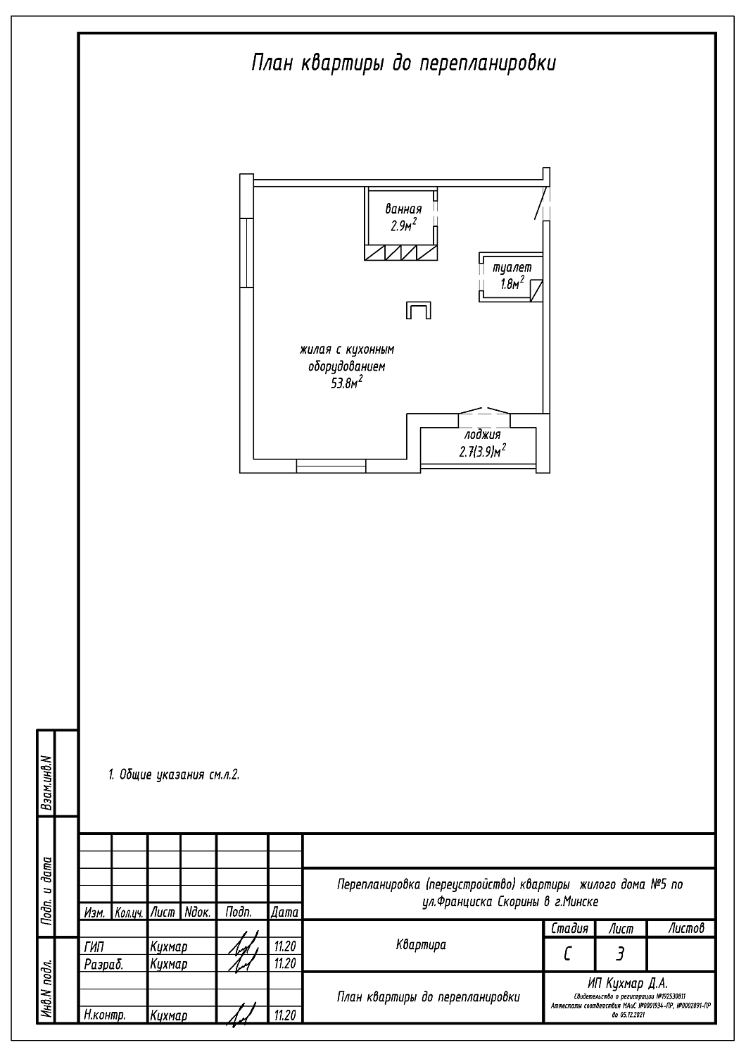
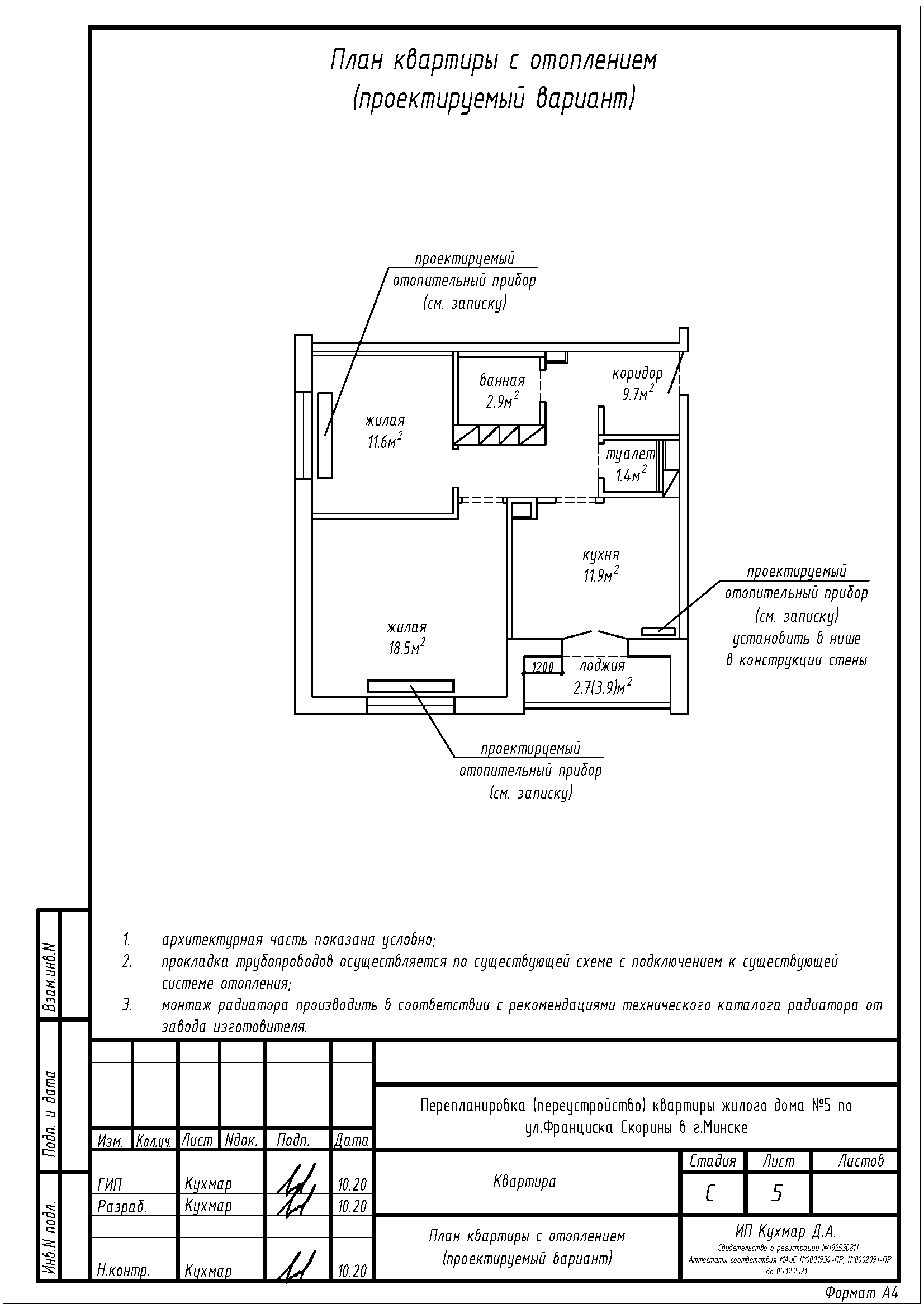
Перепланировка квартиры по ул. Франциска Скорины, 5 в ЖК «Маяк Минска»
Пожелания заказчика:
- Разделение общего помещения жилой с кухонным оборудованием на две отдельные жилые, кухню, коридор;
- Смещение дверного проёма в стене между жилой с кухонным оборудованием и лоджией;
- Смещение дверного проёма в стене между жилой с кухонным оборудованием и туалетом;
- Устройство зашивок из ГКЛ на части площади туалета;
- Замена и перенос отопительных приборов.
Нами были разработаны следующие разделы проектной документации для согласования в исполкоме:
- АС - архитектурно-строительные решения;
- ОВ - отопление и вентиляция.
