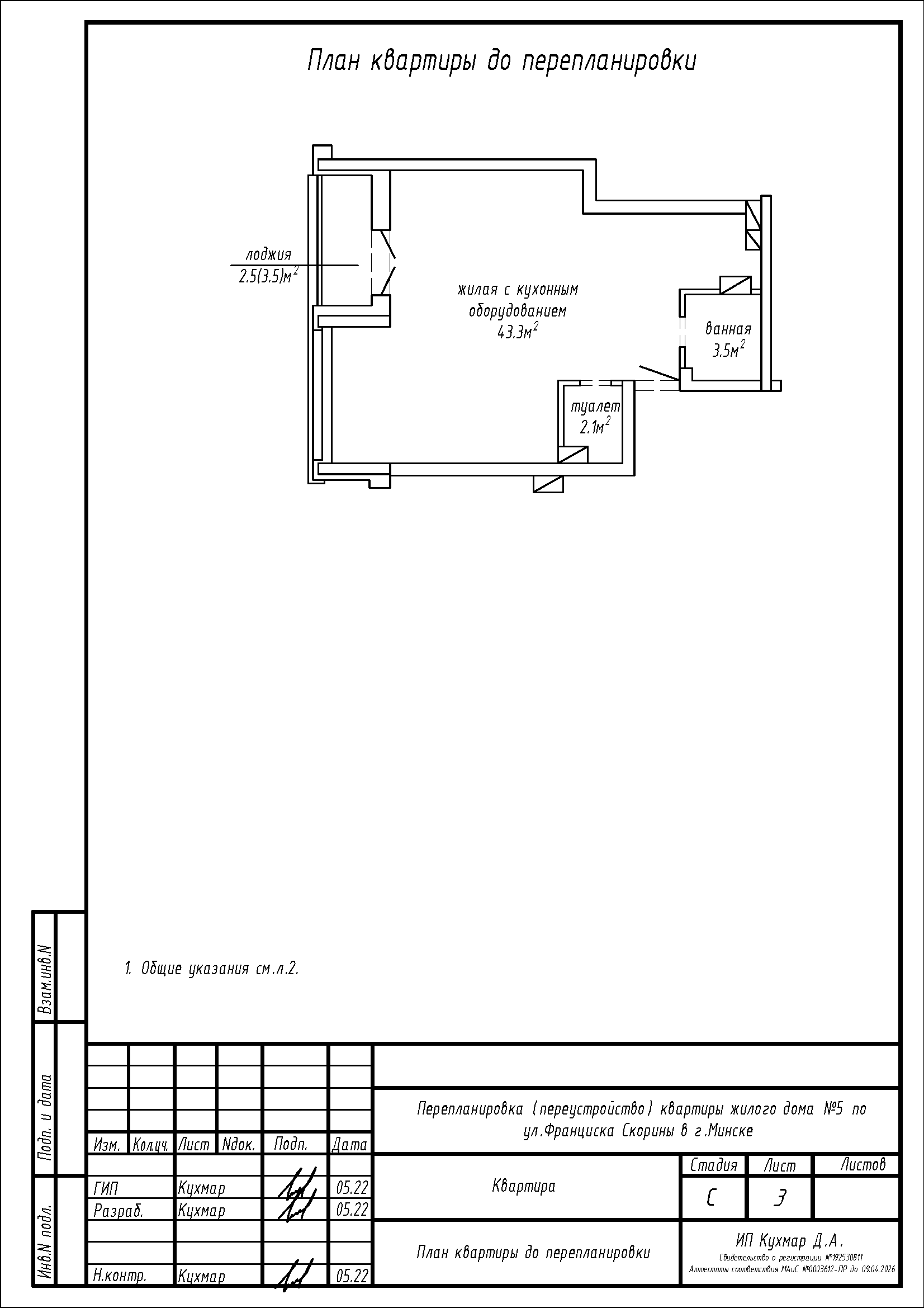
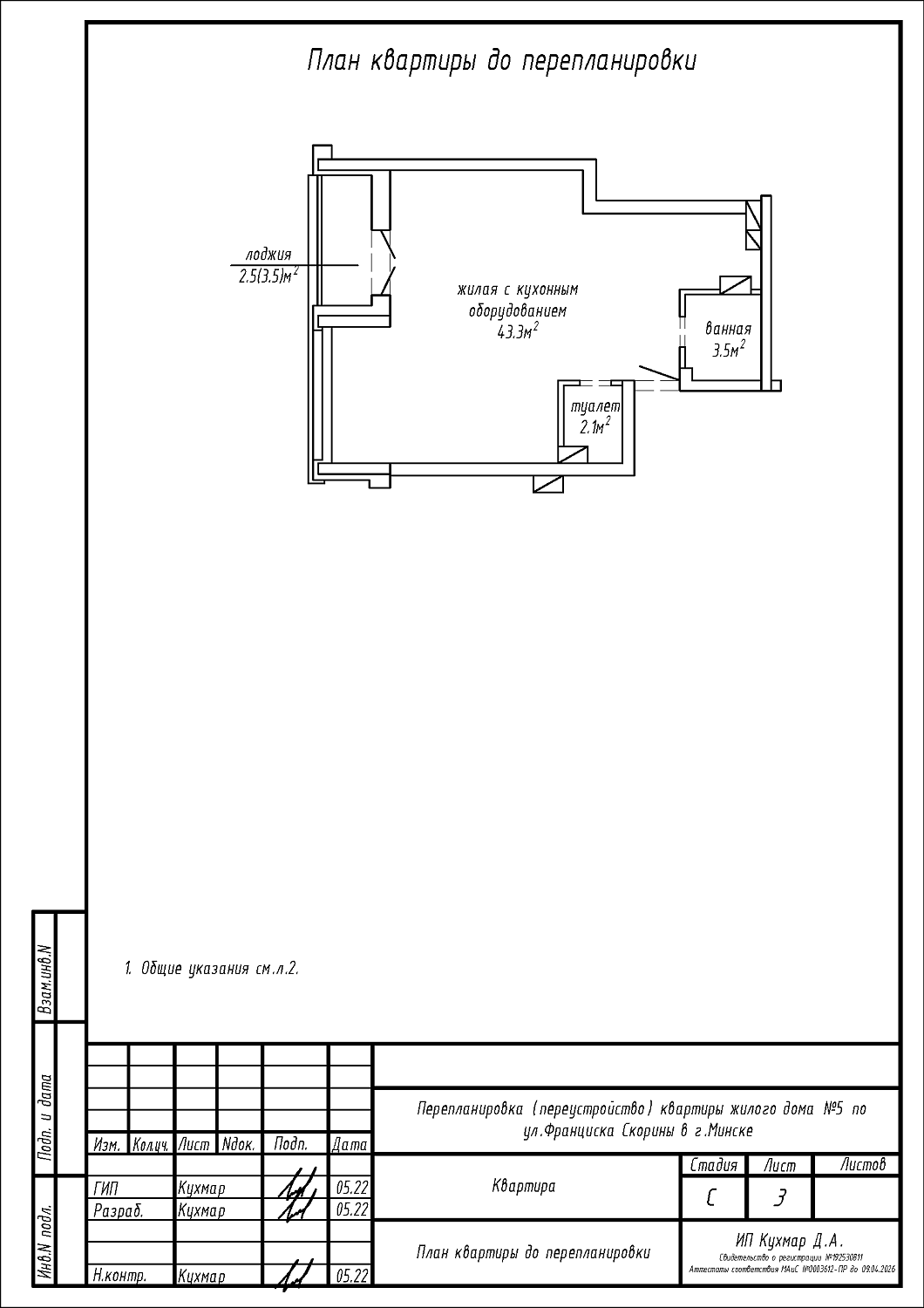
Перепланировка квартиры по ул. Франциска Скорины, 5 в ЖК «Маяк Минска»
Пожелания заказчика:
- Разделение общего помещения жилой с кухонным оборудованием на жилую с кухонным оборудованием, жилую и гардеробную;
- Изменение габаритов туалета;
- Изменение габаритов ванной.
Нами были разработаны следующие разделы проектной документации для согласования в исполкоме:
- АС - архитектурно-строительные решения.
