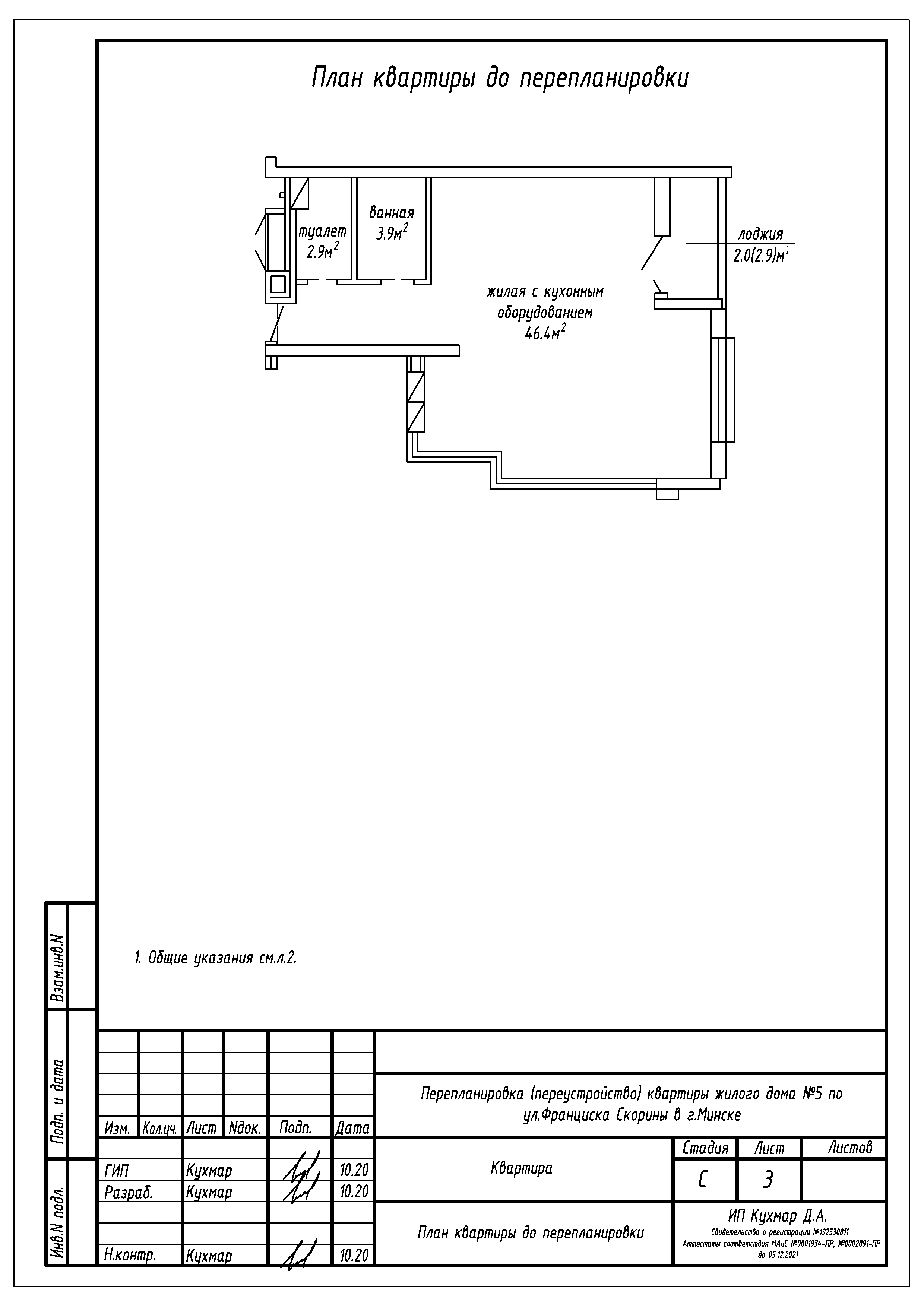
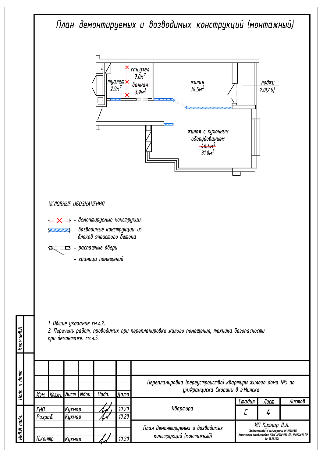
Перепланировка квартиры по ул. Франциска Скорины, 5 в ЖК «Маяк Минска»
Пожелания заказчика:
- Закладка дверного проёма между туалетом и жилой с кухонным оборудованием;
- Объединение туалета и ванной в единый санузел;
- Разделение общей жилой с кухонным оборудованием на жилую с кухонным оборудованием и жилую.
Нами были разработаны следующие разделы проектной документации для согласования в исполкоме:
- АС - архитектурно-строительные решения.
