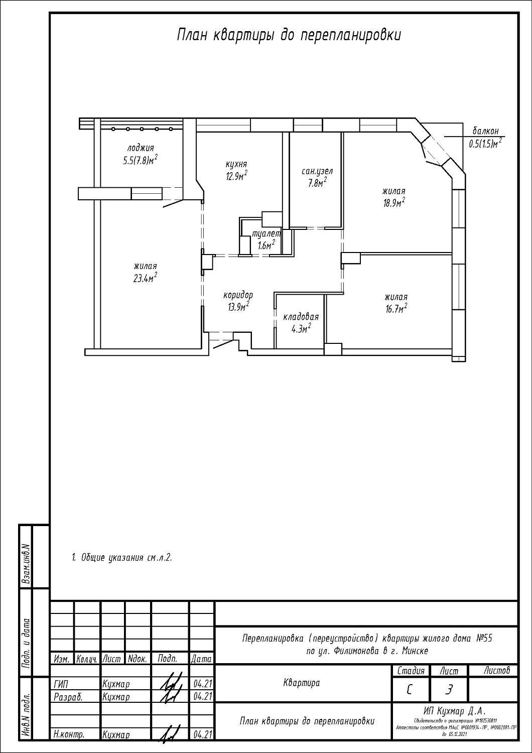
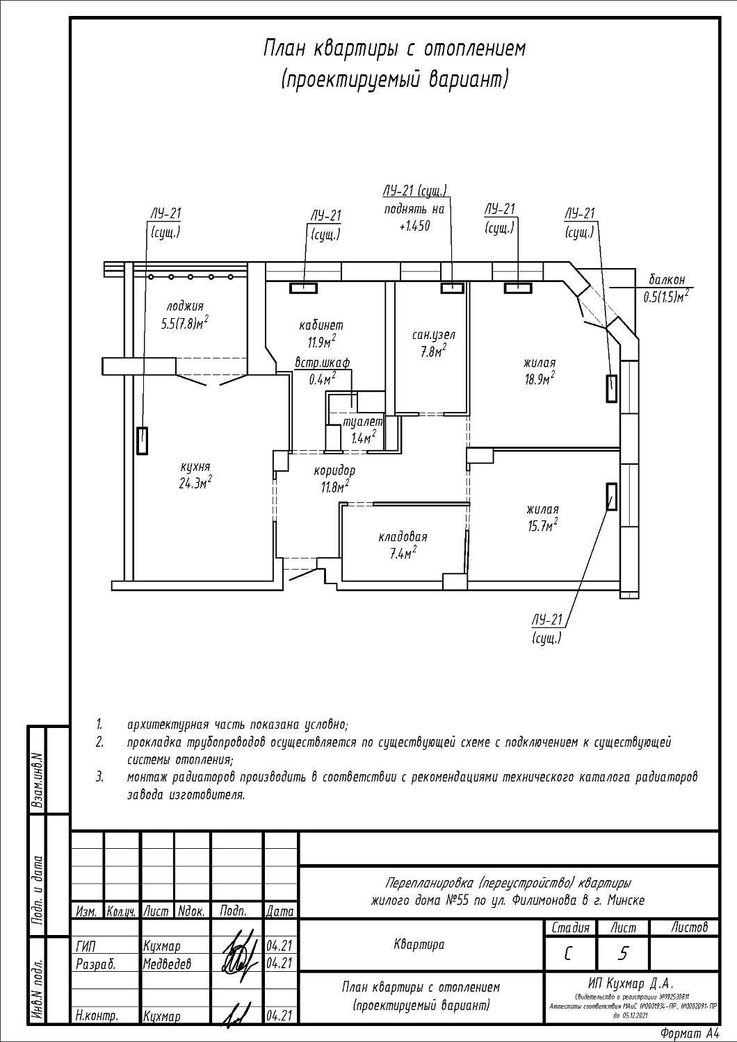
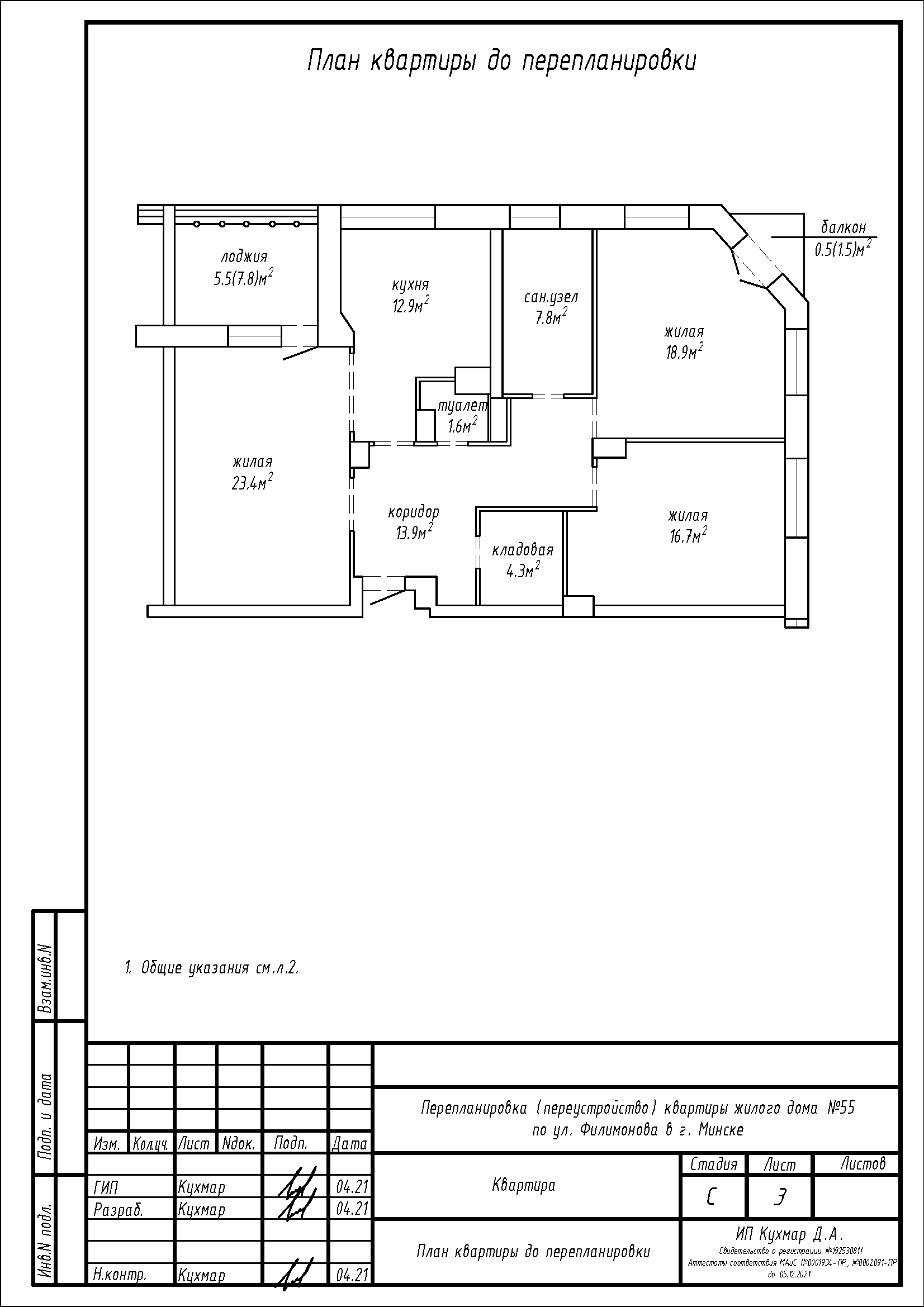
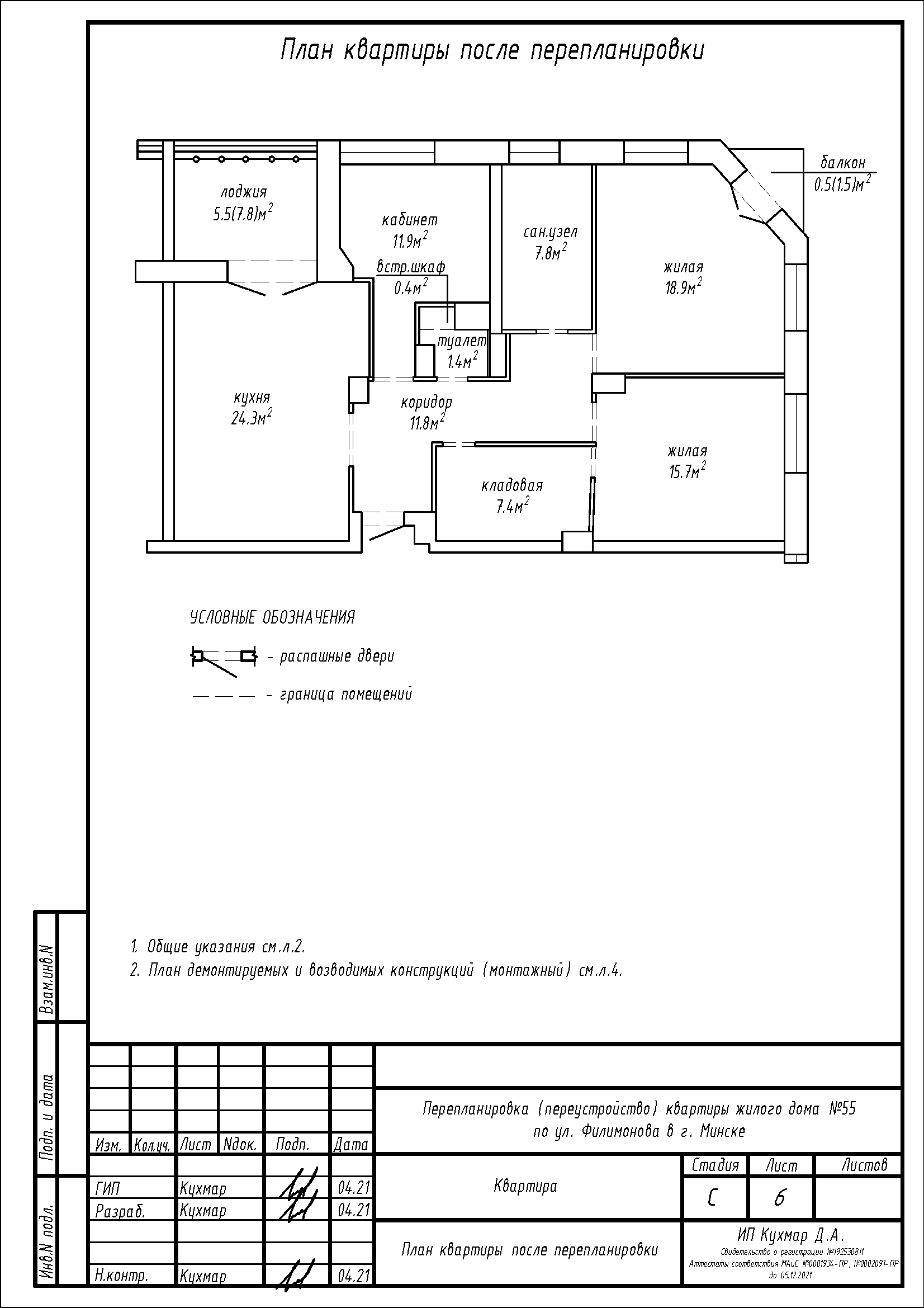
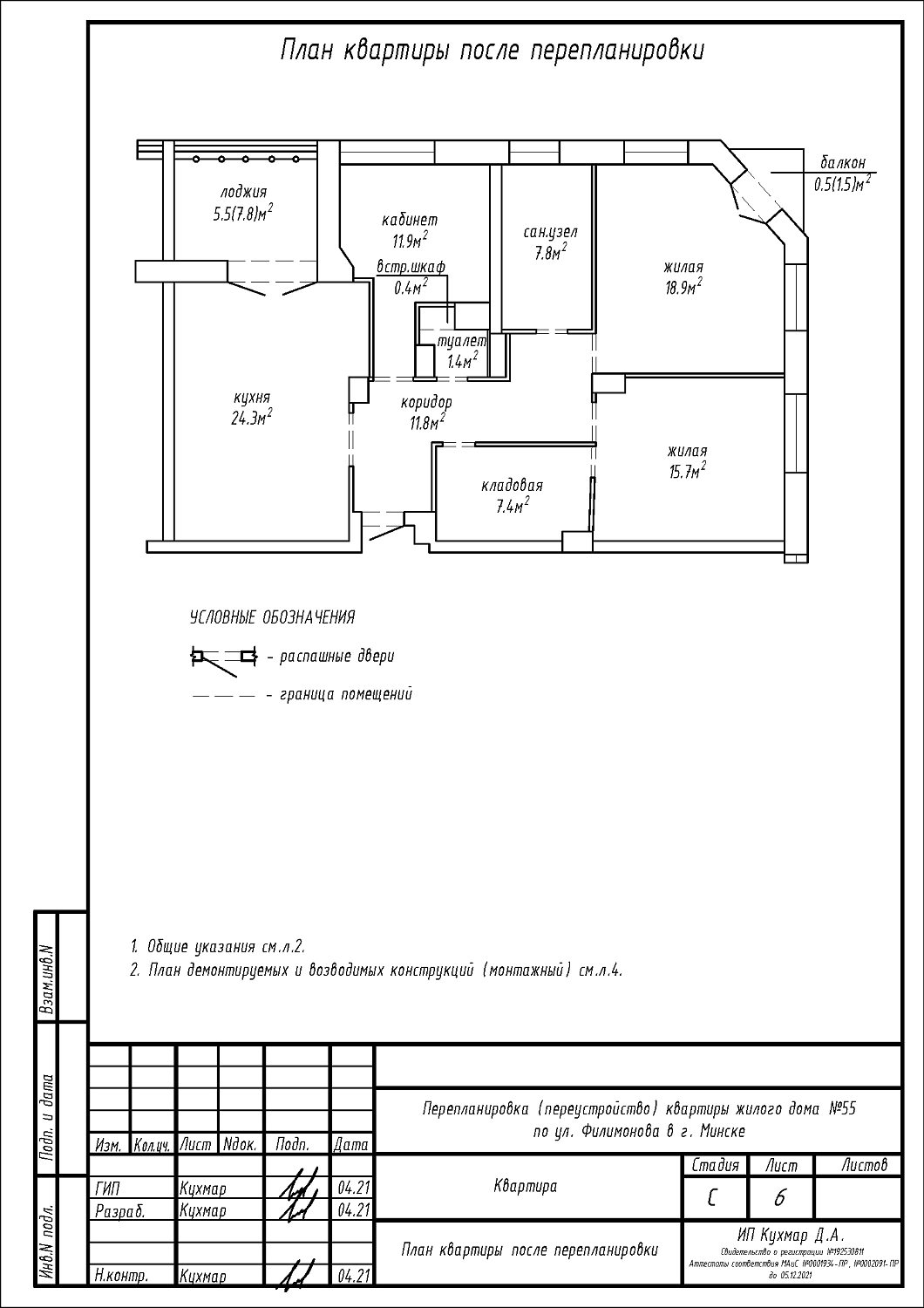
Перепланировка квартиры по ул. Фиилимонова, 55 в г. Минск
Пожелания заказчика:
- Перенос кухни в жилую комнату;
- Увеличение площади кладовой;
- Демонтаж подоконной части лоджии;
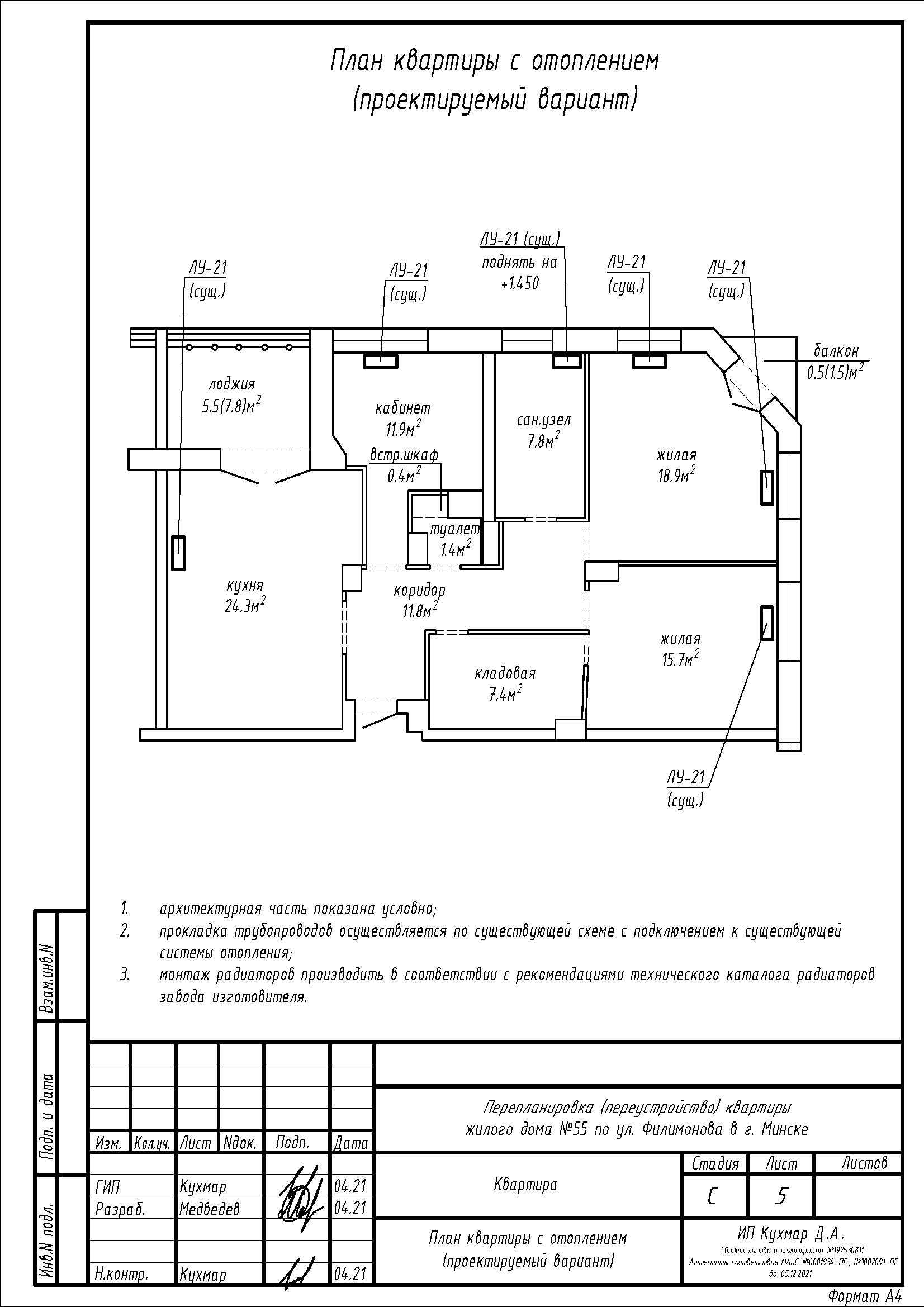
- Замена и перенос отопительных приборов (батареи).
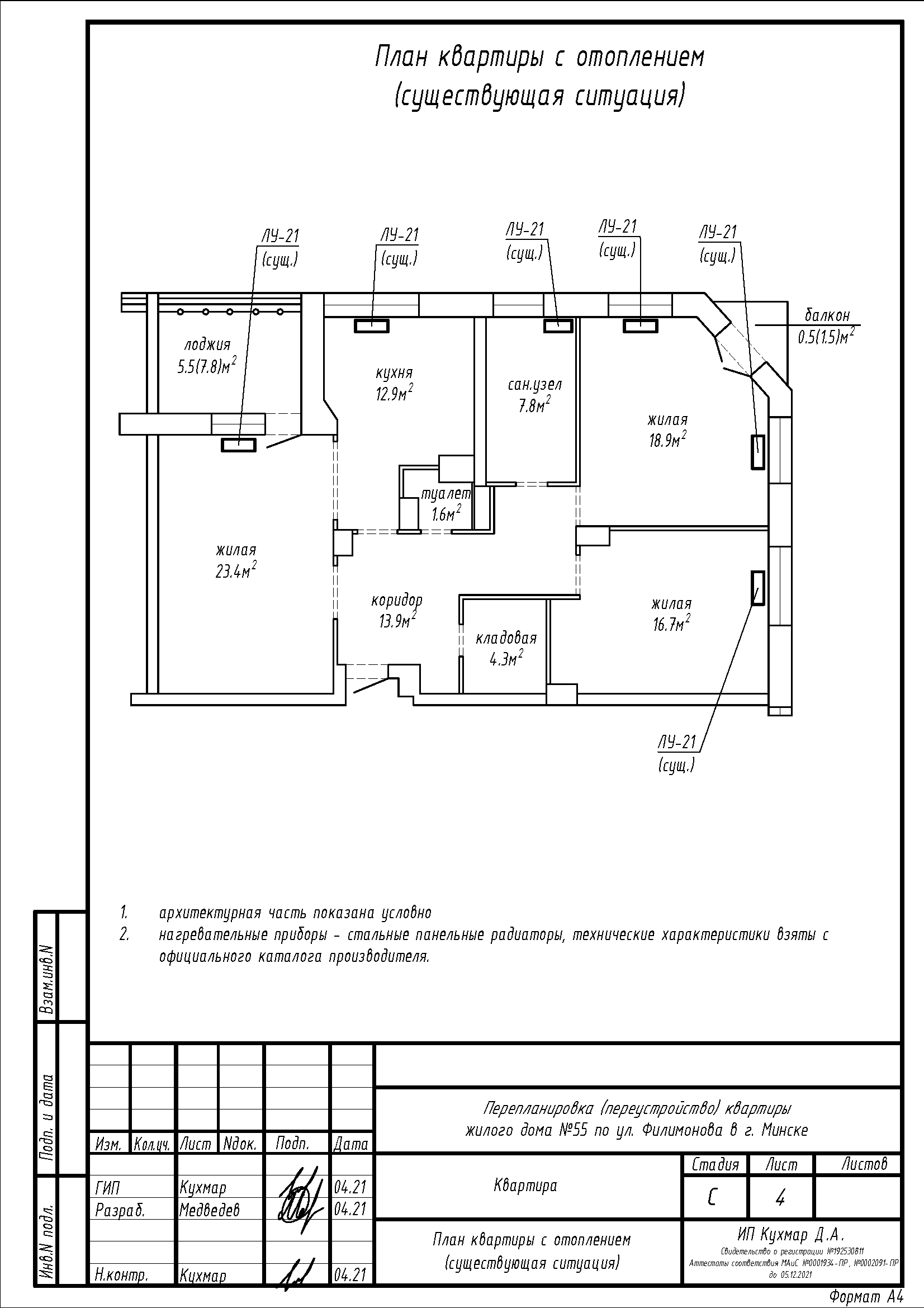
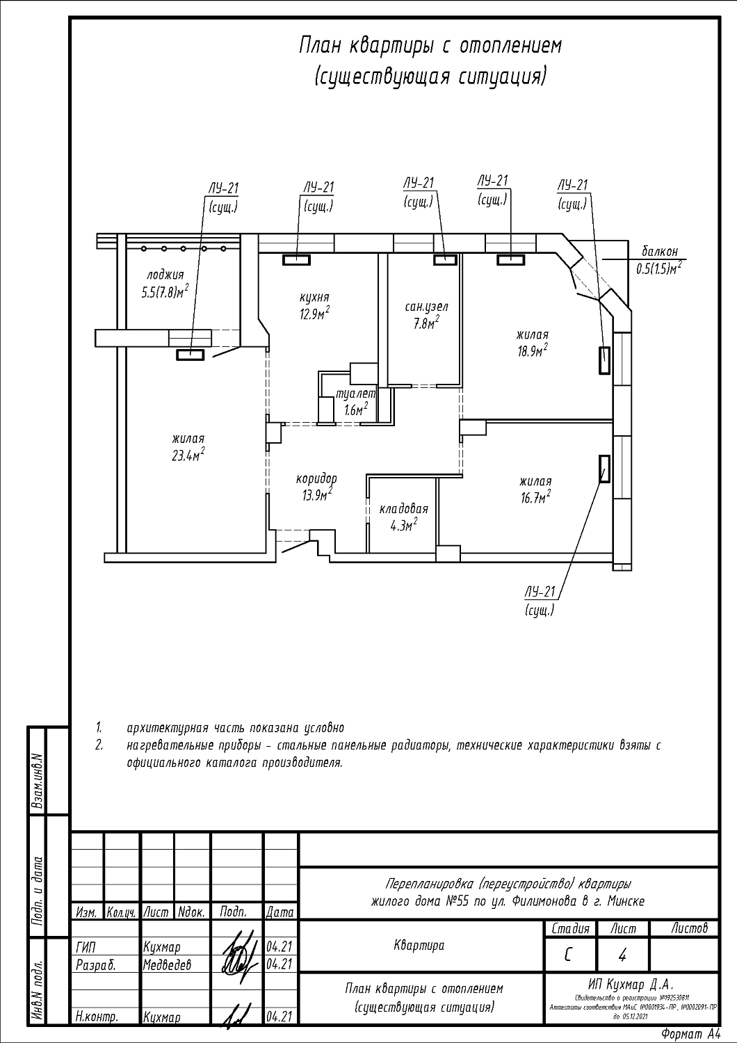
Нами были разработаны следующие разделы проектной документации для согласования в исполкоме:
- АС - архитектурно-строительные решения;
- ОВ - отопление и вентиляция.


