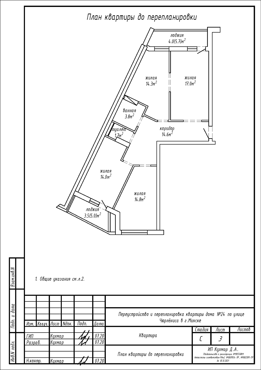
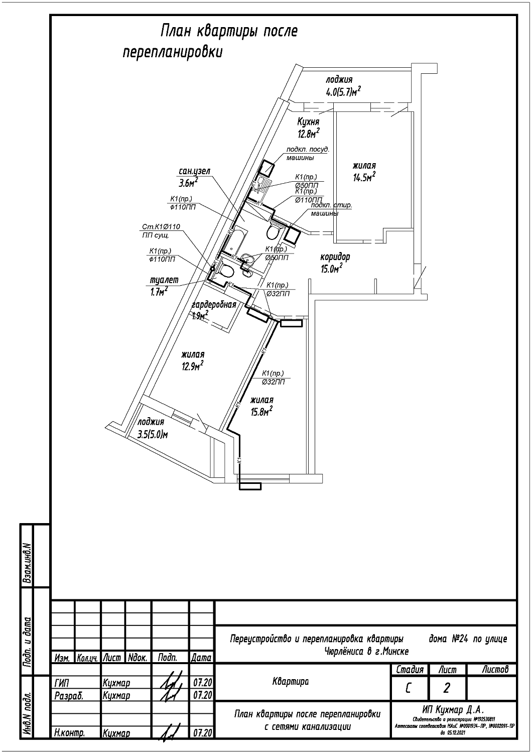
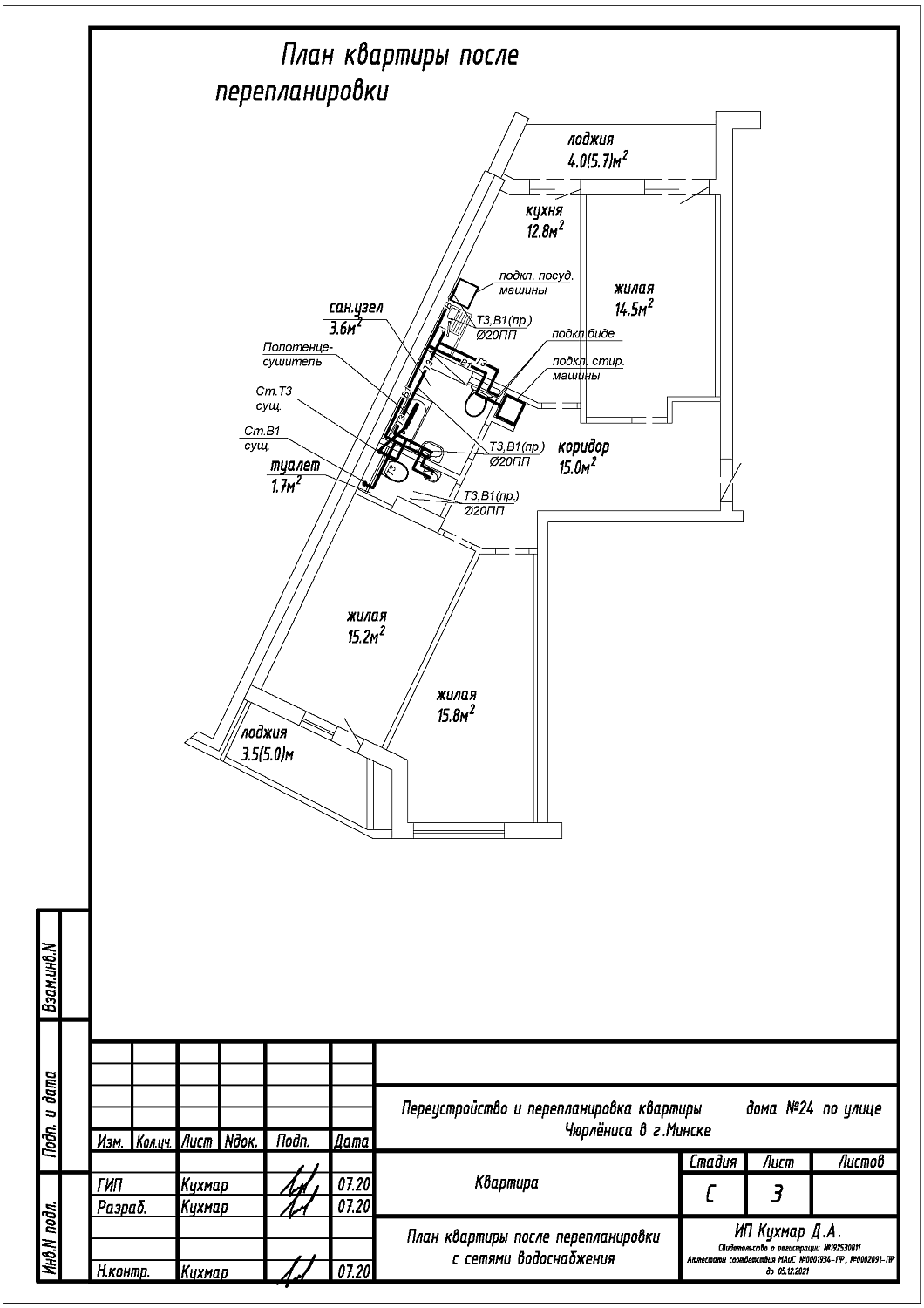
Перепланировка квартиры по ул. Чюрлёниса, 24 в г. Минске
Пожелания заказчика:
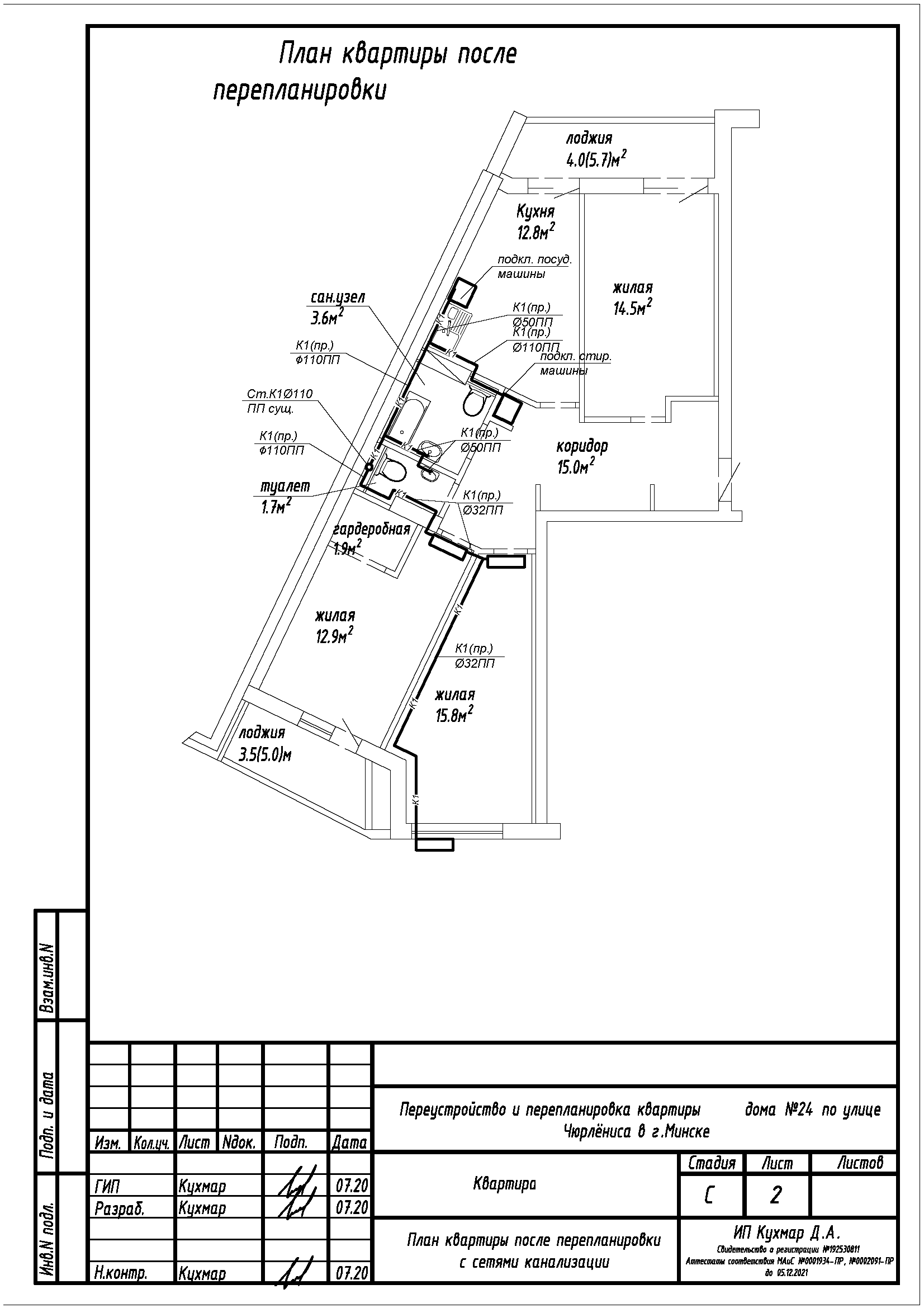
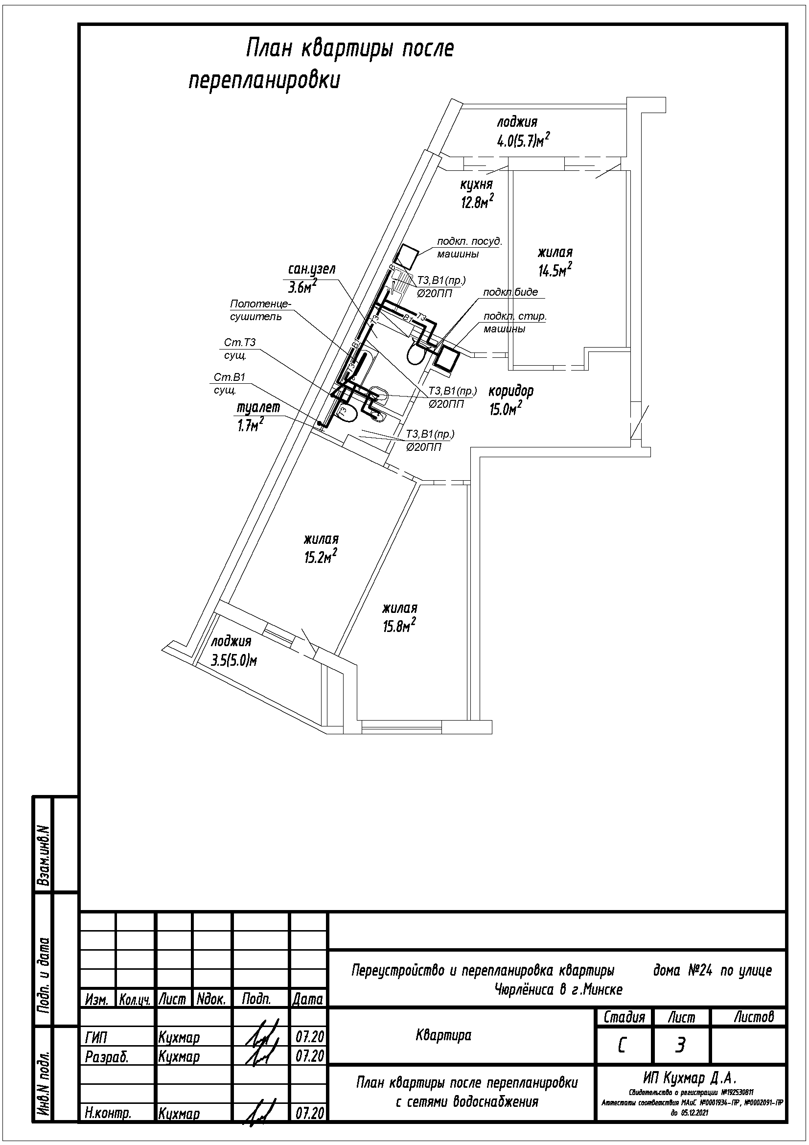
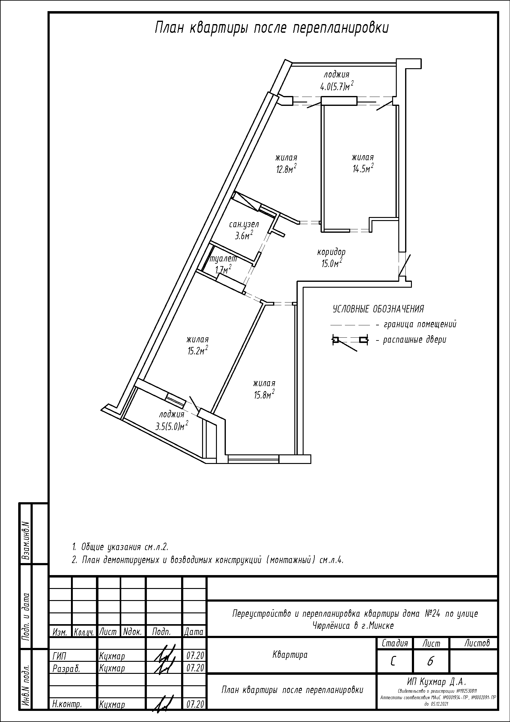
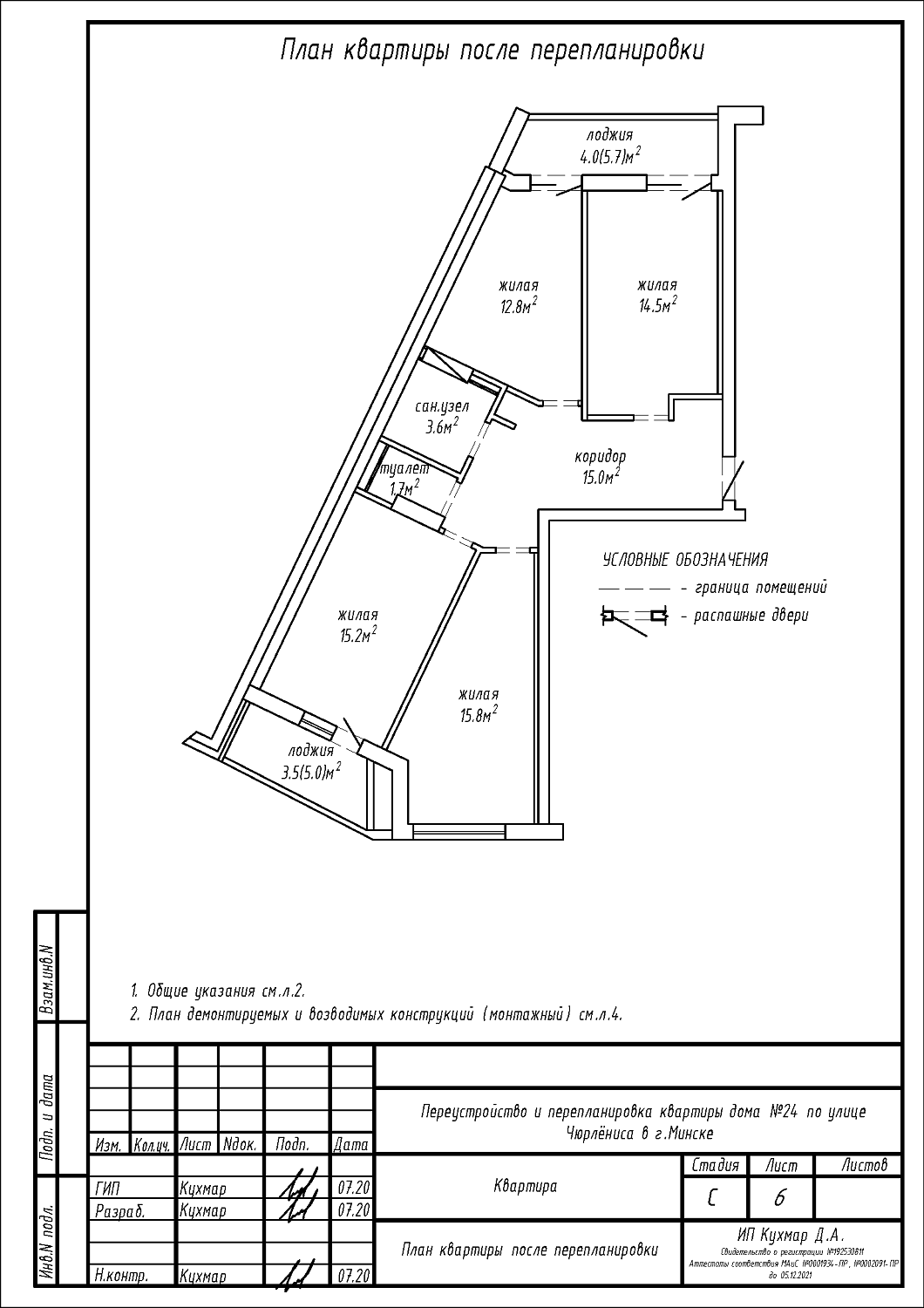
- Устройство санузла на площади ванной;
- Закладка дверного проема в перегородке между кухней 14.З м2 и жилой 17.0 м2;
- Замена дверного блока с целью изменения направления открывания входной двери;
- Демонтаж оконного и дверного блока с подоконной частью стены с последующим устройством нового оконного и дверного блока;
- Устройство звукоизоляции на части площади жилой 14.8 м2;
- Демонтаж перегородок с дверным проемом между коридором 14.6 м2 и кухней 14.3 м2 с последующим устройством перегородок с дверным проемом на части площади кухни 14.3 м2;
- Демонтаж перегородок с дверным проемом между коридором 14.6 м2 и жилой 17.0 м2 с последующим устройством перегородок с дверным проемом и звукоизоляции на части площади жилой 17.0 м2;
- Устройство перегородок с дверным проемом на части площади жилой 14.0 м2 с целью устройства гардеробной;
- Демонтаж перегородок с дверными проемами между жилой 14.0 м2, жилой 14.8 м2 и коридором 14.6 м2 с последующим устройством перегородок с дверными проемами на части площади коридора 14.6 м2;
- Перенос и замена существующих приборов отопления.
Нами были разработаны следующие разделы проектной документации для согласования в исполкоме:
- АС - архитектурно-строительные решения;
- ОВ - отопление и вентиляция;
- ВК - водоснабжение и канализация.
