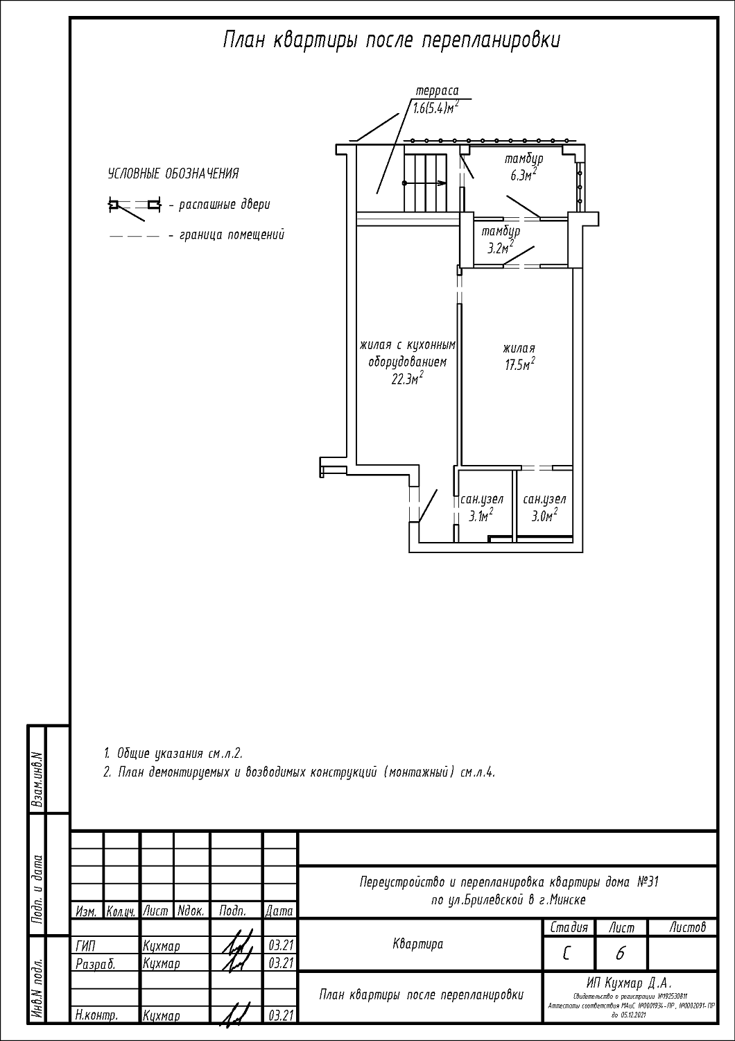
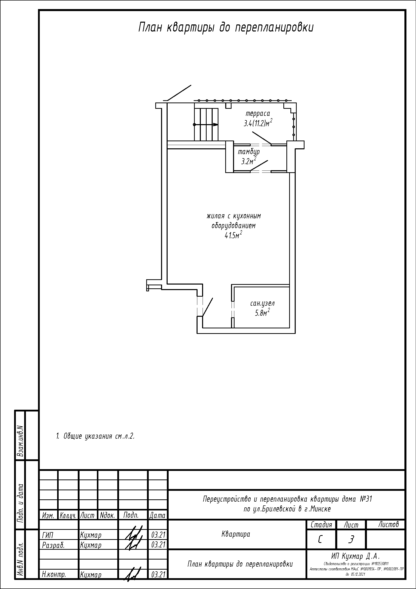
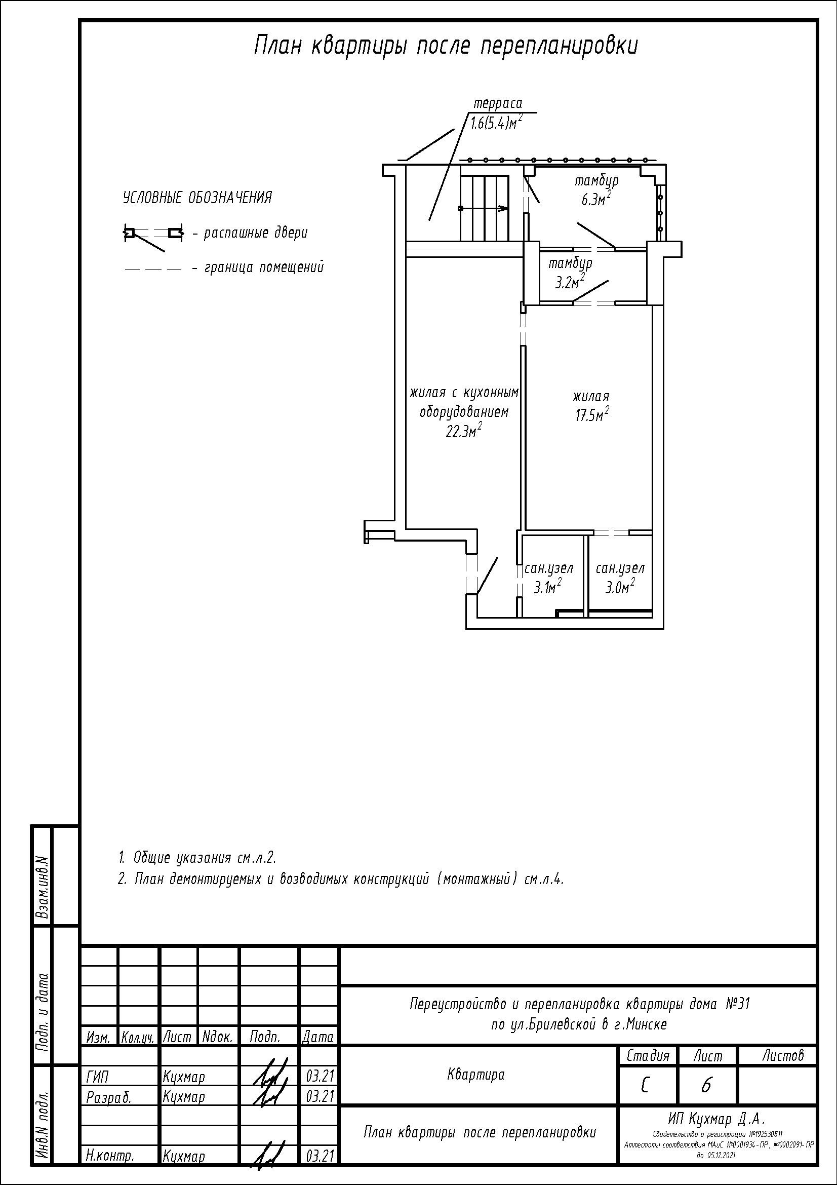
Перепланировка квартиры по ул. Брилевская, 31 в ЖК «Минск Мир»
Пожелания заказчика:
- Демонтаж перегородки между жилой с кухонным оборудованием и санузлом, с последующим устройством перегородок с дверными проемами на части площади жилой с кухонным оборудованием и санузла, с целью устройства жилой с кухонным оборудованием, жилой и двух санузлов;
- Устройство дверного проема в перегородке между жилой с кухонным оборудованием и санузлом;
- Устройство перегородки с дверным проемом на части площади террасы с частичным остеклением террасы с целью устройства тамбура.
Нами были разработаны следующие разделы проектной документации для согласования в исполкоме:
- АС - архитектурно-строительные решения.
