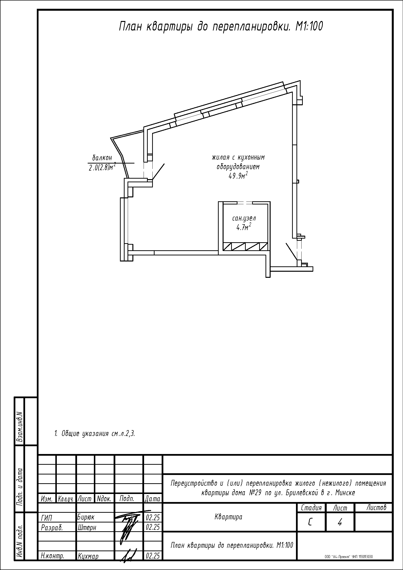
Перепланировка квартиры по ул. Брилевская, 29 в ЖК «Минск Мир» в г. Минске
Пожелания заказчика:
- Устройство перегородок с дверными проемами на части площади жилой с кухонным оборудованием 49.9 м2 с целью устройства жилой с кухонным оборудованием и двух жилых;
- Закладка дверного проема в перегородке между сан.узлом 4.7 м2 и жилой с кухонным оборудованием 49.9 м2;
- Устройство дверного проема в перегородке между сан.узлом 4.7 м2 и жилой с кухонным оборудованием 49.9м2;
- Смена направления открывания входной двери;
- Устройство зашивки ГКЛ на части площади сан.узла 4.7 м2.
Нами были разработаны следующие разделы проектной документации для согласования в исполкоме:
- АС - архитектурно-строительные решения.


