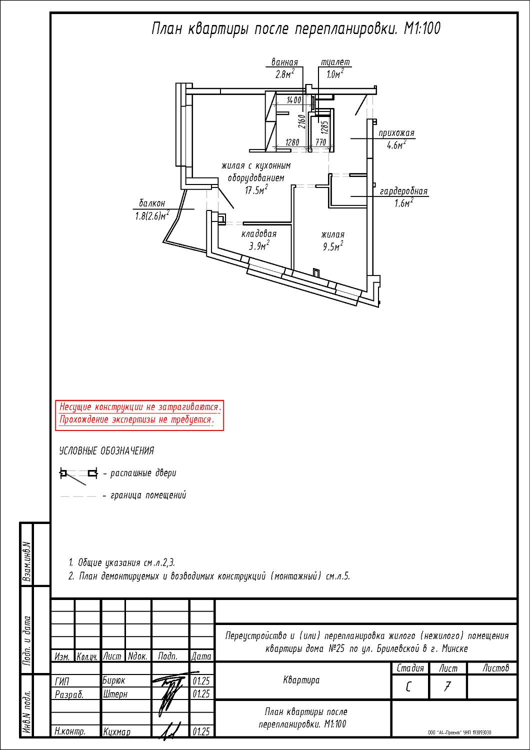
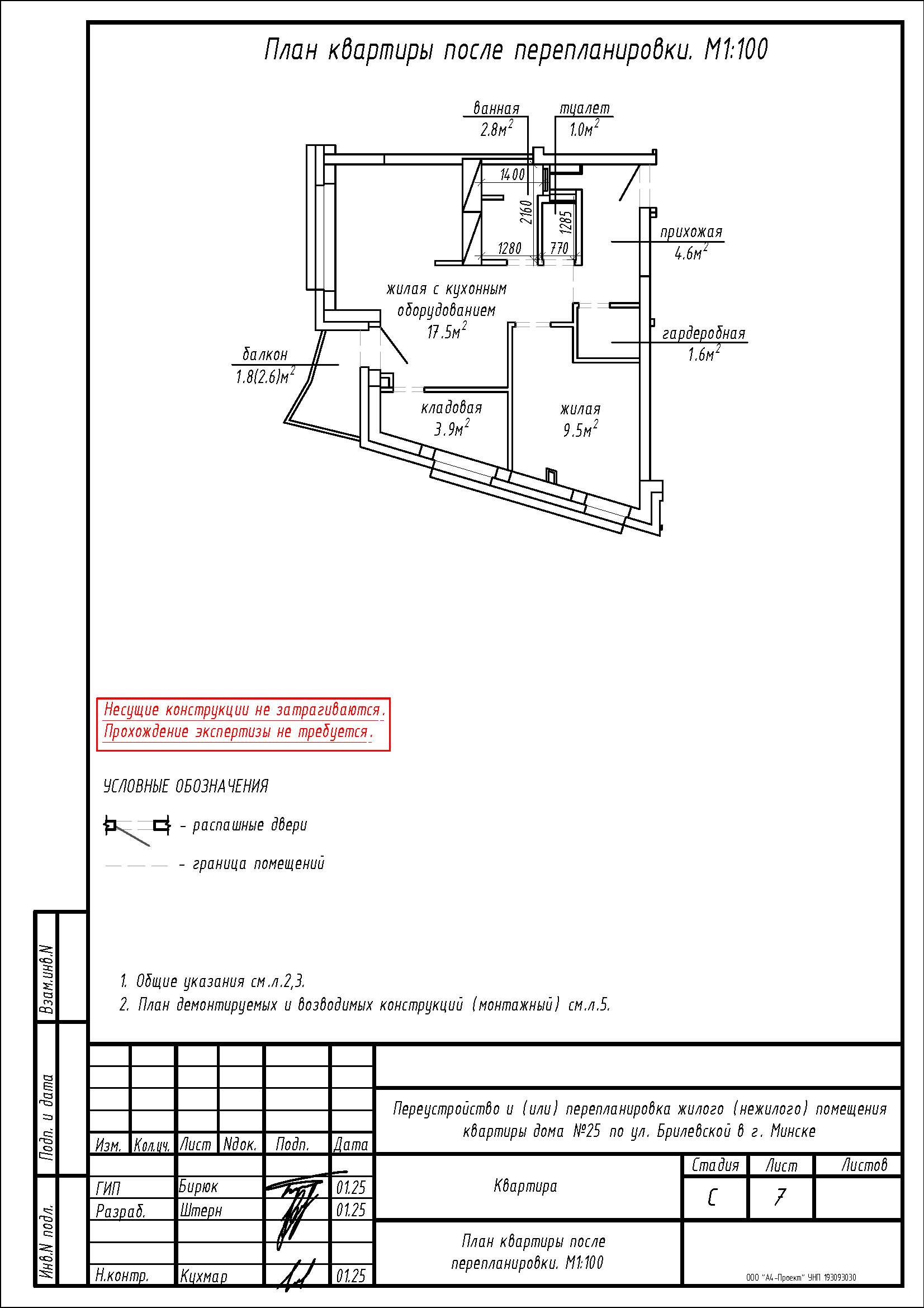
Перепланировка квартиры по ул. Брилевская, 25 в ЖК «Минск Мир» в г. Минске
Пожелания заказчика:
- Демонтаж части перегородки с дверным проемом между сан.узлом и жилой с кухонным оборудованием с последующим устройством перегородок с дверными проемами на части площади сан.узла и жилой с кухонным оборудованием с целью устройства туалета, ванной, жилой с кухонным оборудованием, жилой, кладовой, гардеробной и прихожей.
Нами были разработаны следующие разделы проектной документации для согласования в исполкоме:
- АС - архитектурно-строительные решения.


