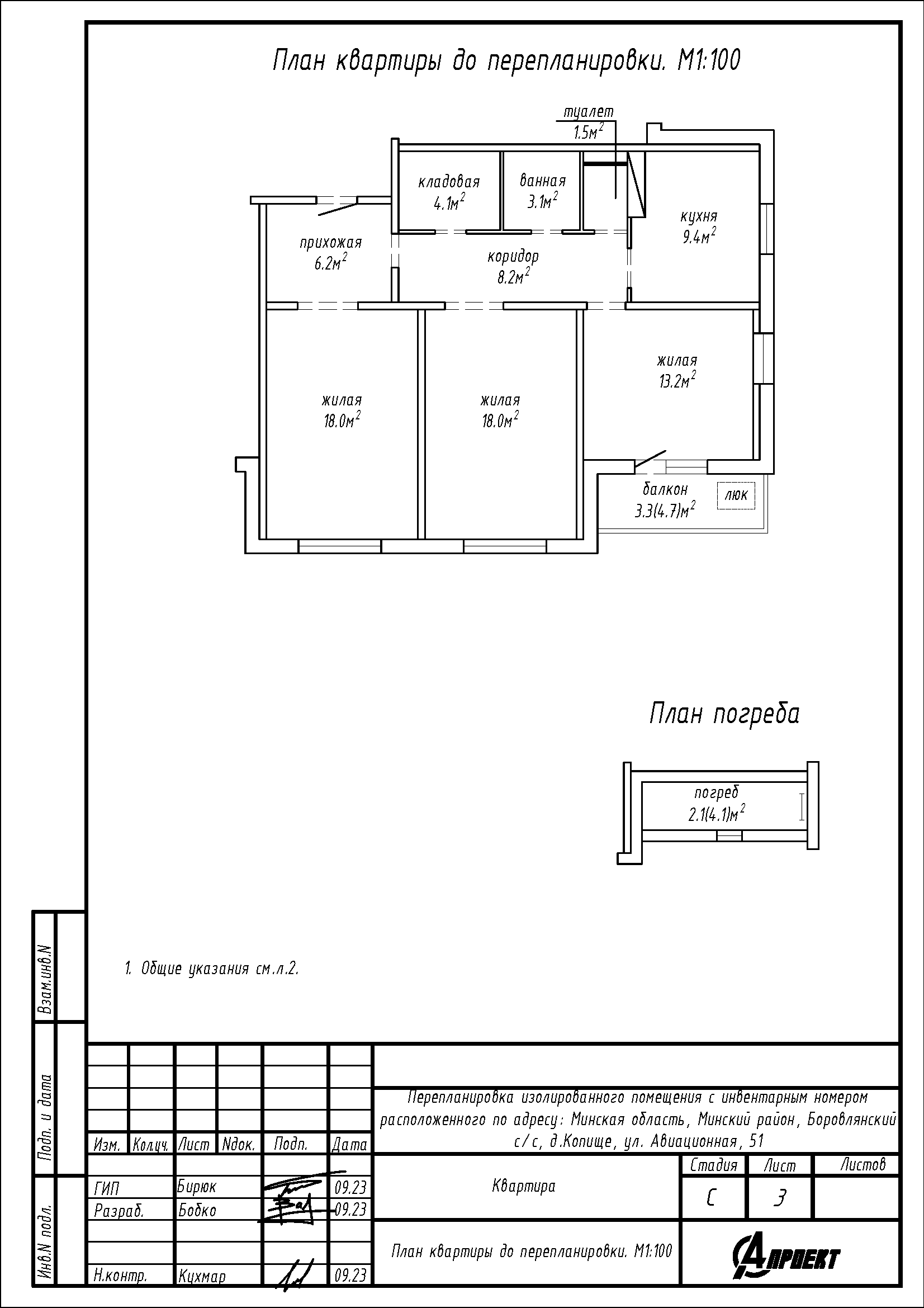
Перепланировка квартиры по ул. Авиационная, 51 в ЖК «Новая Боровая»
Пожелания заказчика:
- Устройство ванной на площади кладовой со смещением дверного проёма;
- Объединение ванной и туалета в единый санузел.
Нами были разработаны следующие разделы проектной документации для согласования в исполкоме:
- АС - архитектурно-строительные решения.
