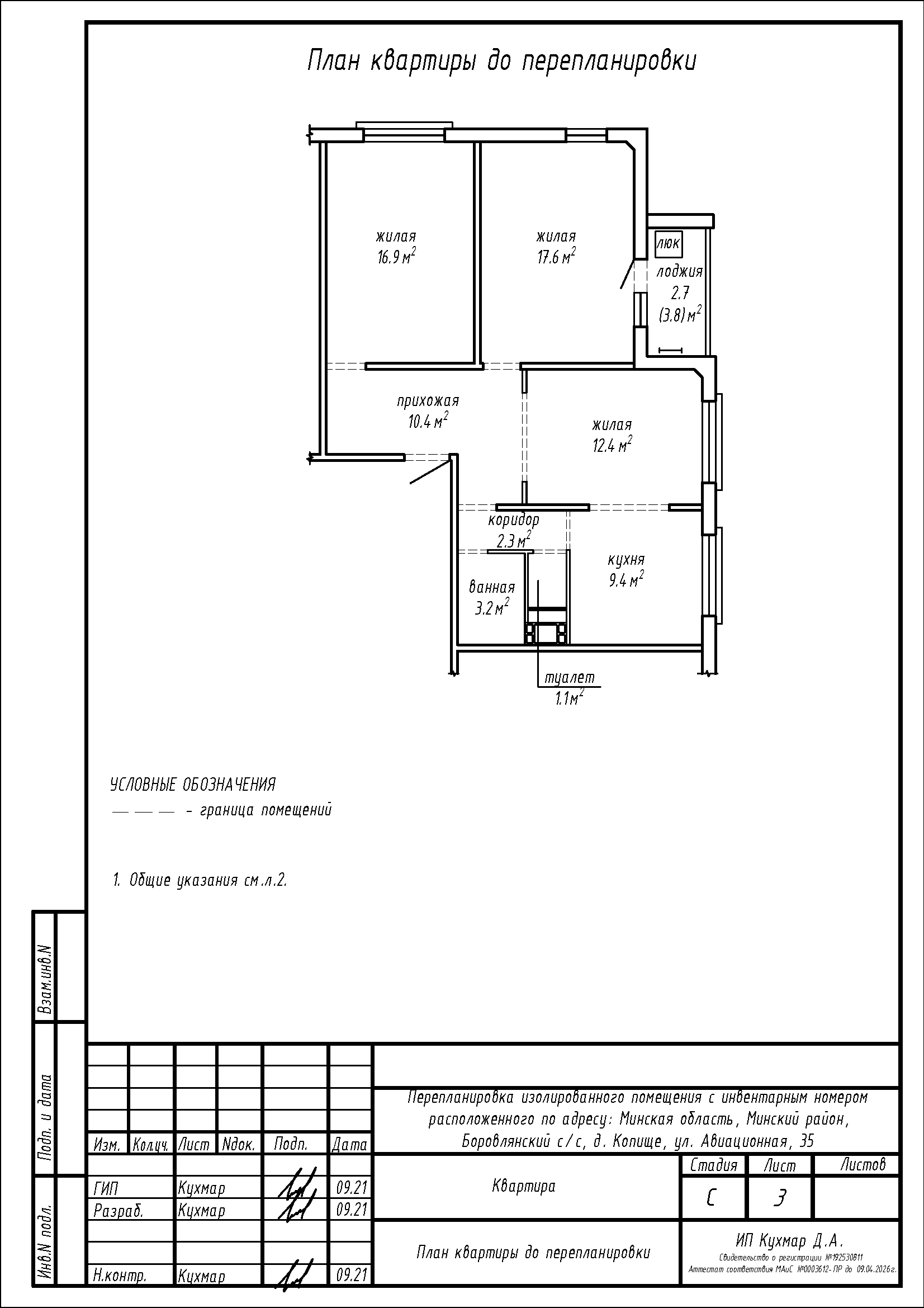
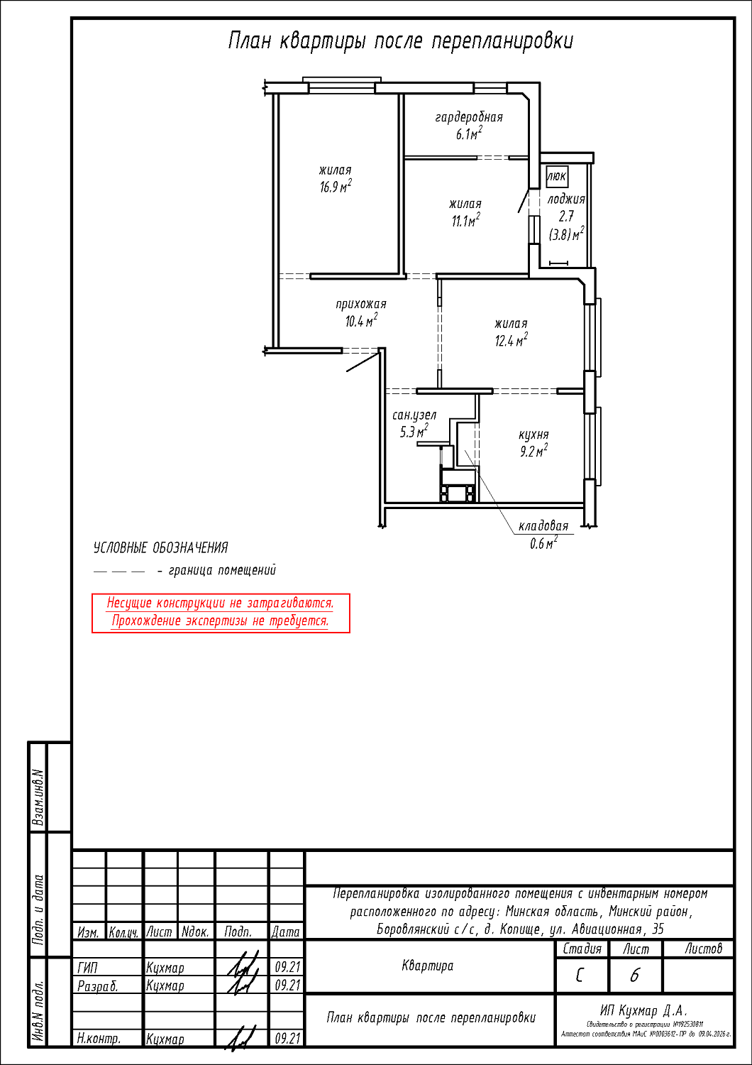
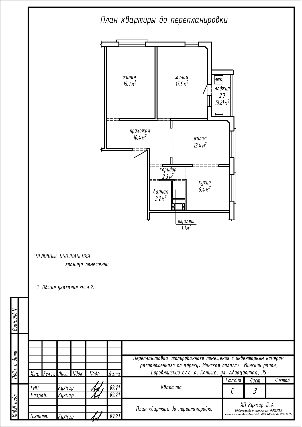
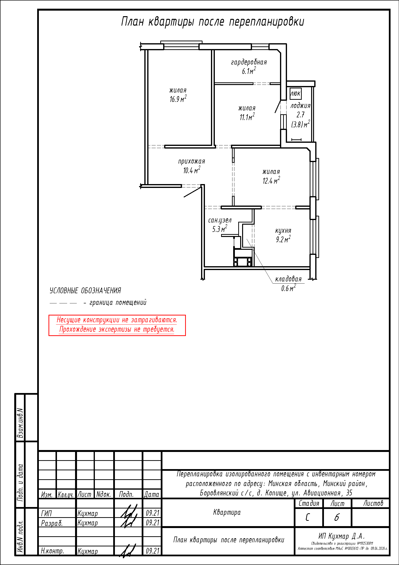
Перепланировка квартиры по ул. Авиационная, 35 в ЖК «Новая Боровая»
Пожелания заказчика:
- Устройство гардеробной на части площади жилой;
- Возведение перегородки между прихожей и жилой;
- Демонтаж перегородки между туалетом и кухней, с целью устройства на части площади туалета - кладовой;
- Закладка дверного проёма между коридором и кухней;
- Устройство санузла на площади ванной и коридора.
Нами были разработаны следующие разделы проектной документации для согласования в исполкоме:
- АС - архитектурно-строительные решения.
