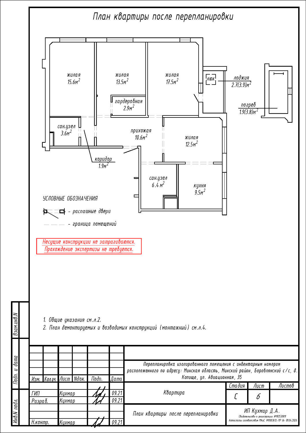
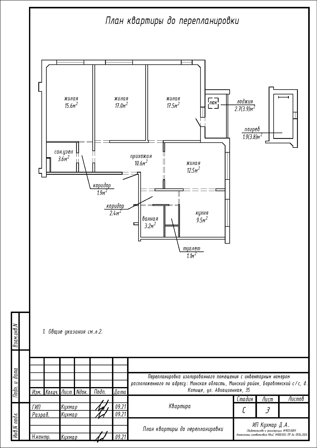
Перепланировка квартиры по ул. Авиационная, 35 в ЖК «Новая Боровая»
Пожелания заказчика:
- Объединение ванной и туалета в единый санузел;
- Закладка дверного проёма между кухней и коридором, с целью увеличения объединённого санузла;
- Устройство гардеробной на части площади жилой; устройство перегородки на части площади жилой;
- Сужение дверного проёма между кухней и жилой.
Нами были разработаны следующие разделы проектной документации для согласования в исполкоме:
- АС - архитектурно-строительные решения.
