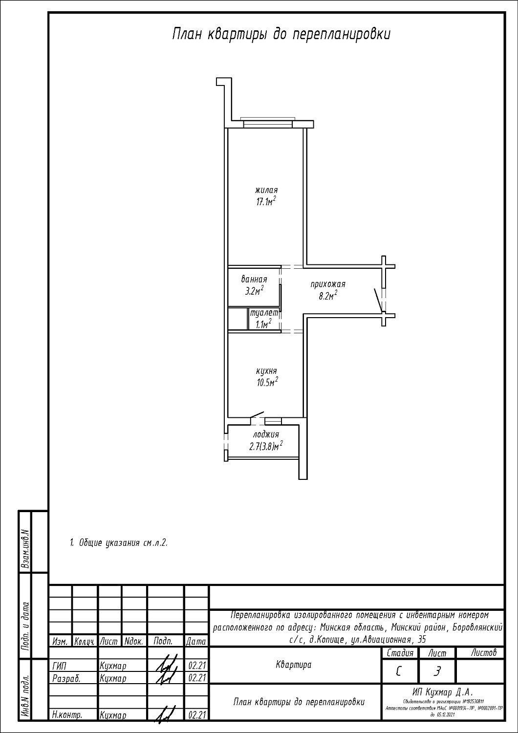
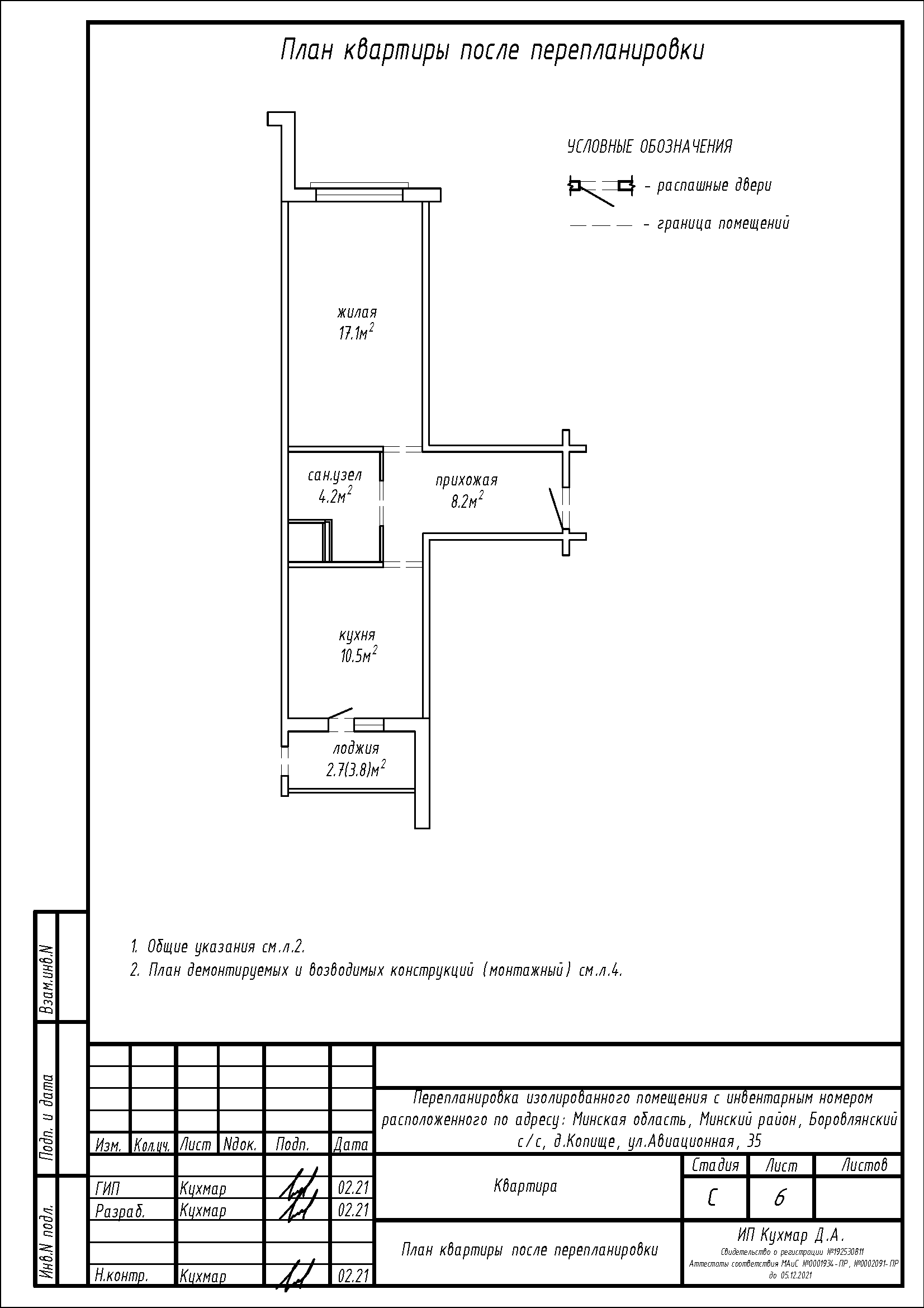
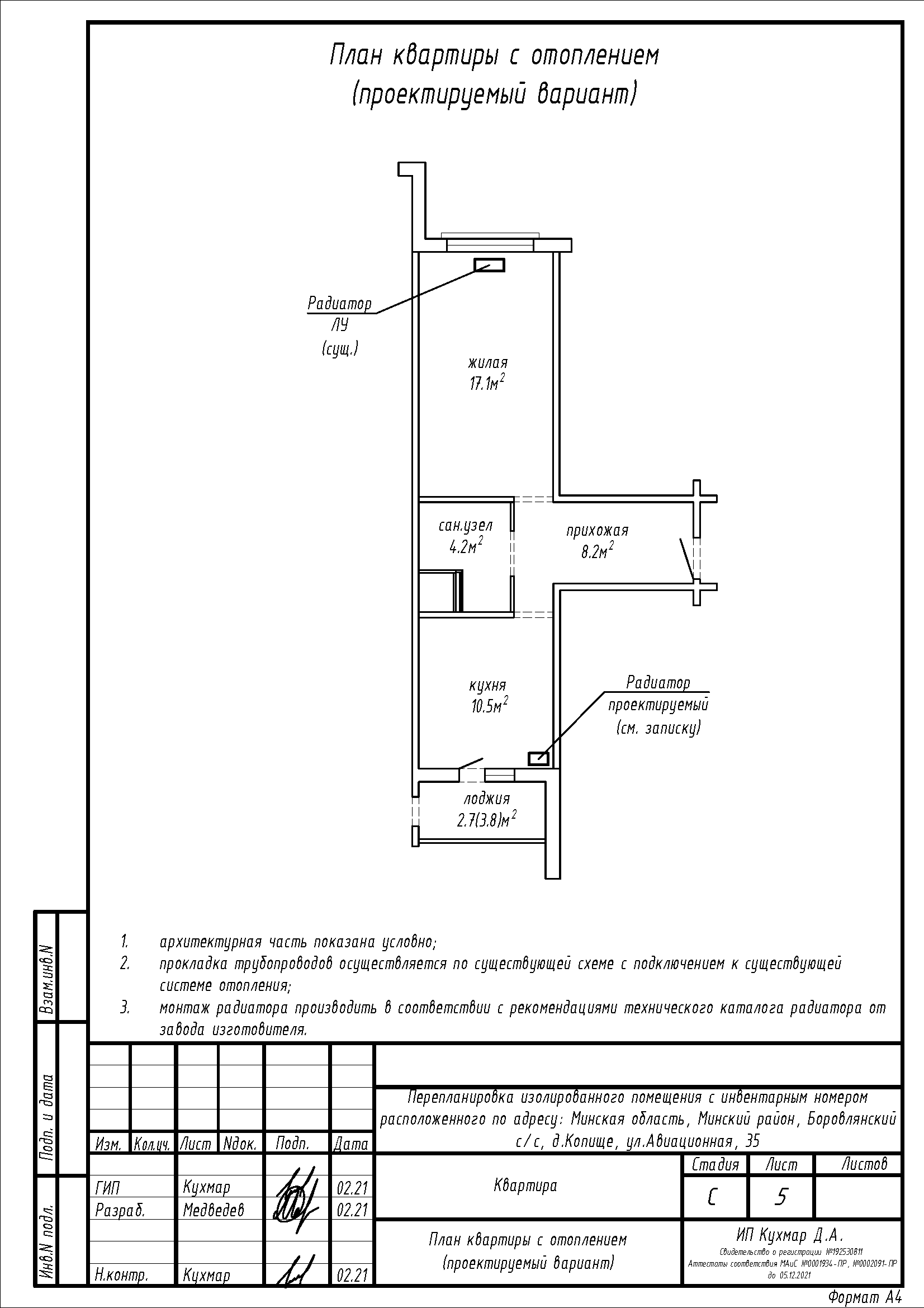
Перепланировка квартиры по ул. Авиационная, 35 в ЖК «Новая Боровая»
Пожелания заказчика:
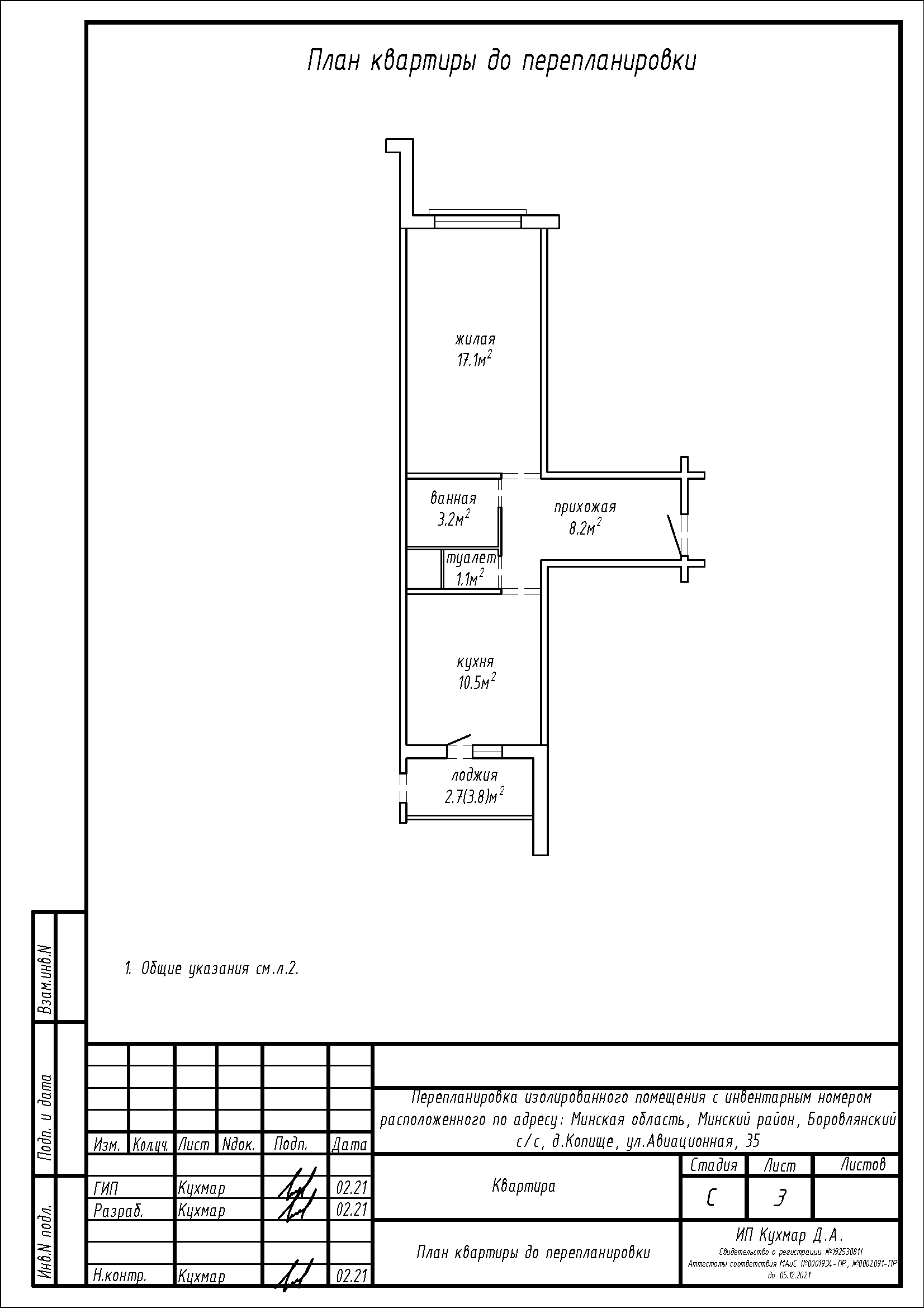
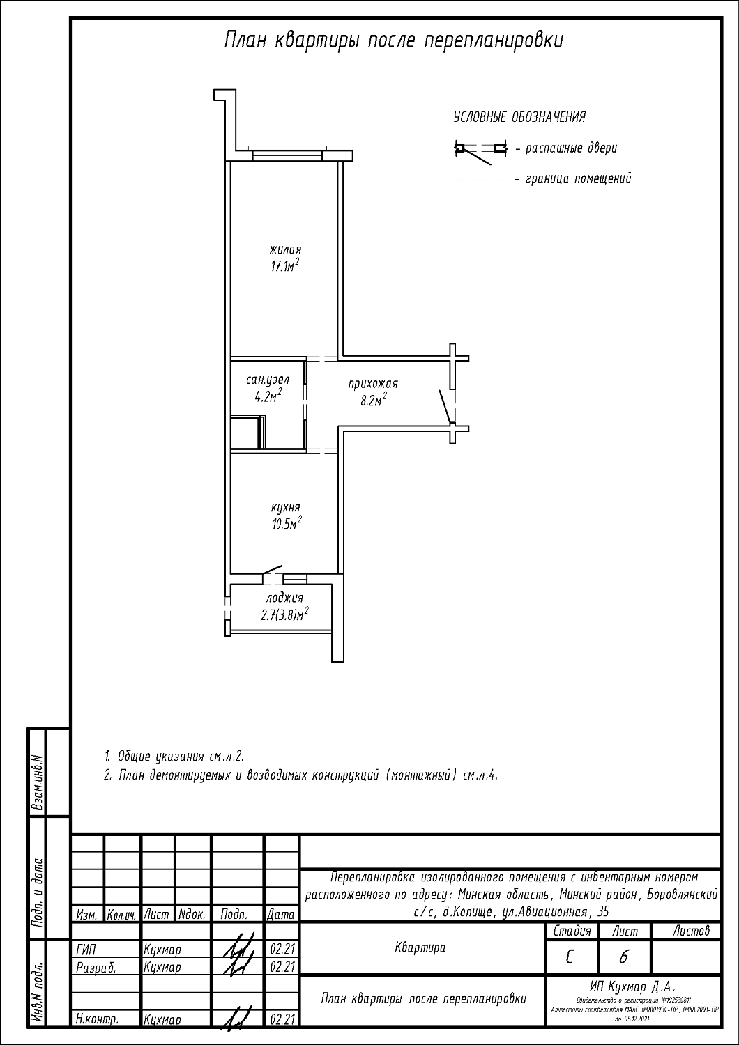
- Объединение существующих санузлов в единый санузел;
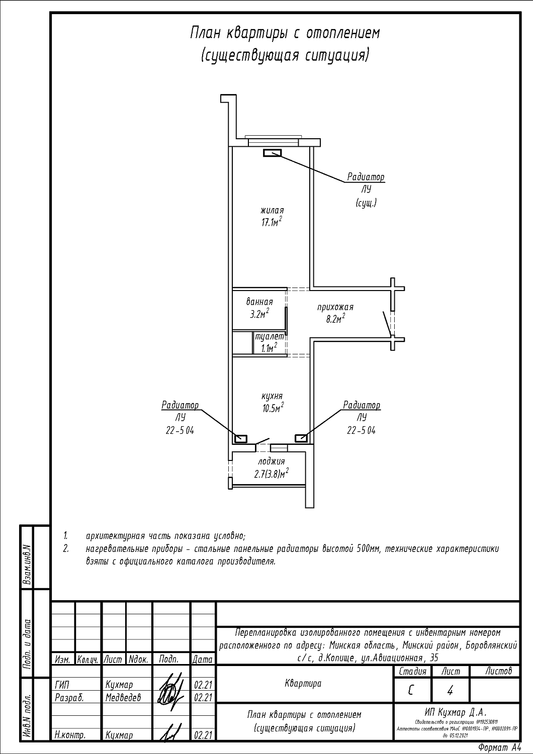
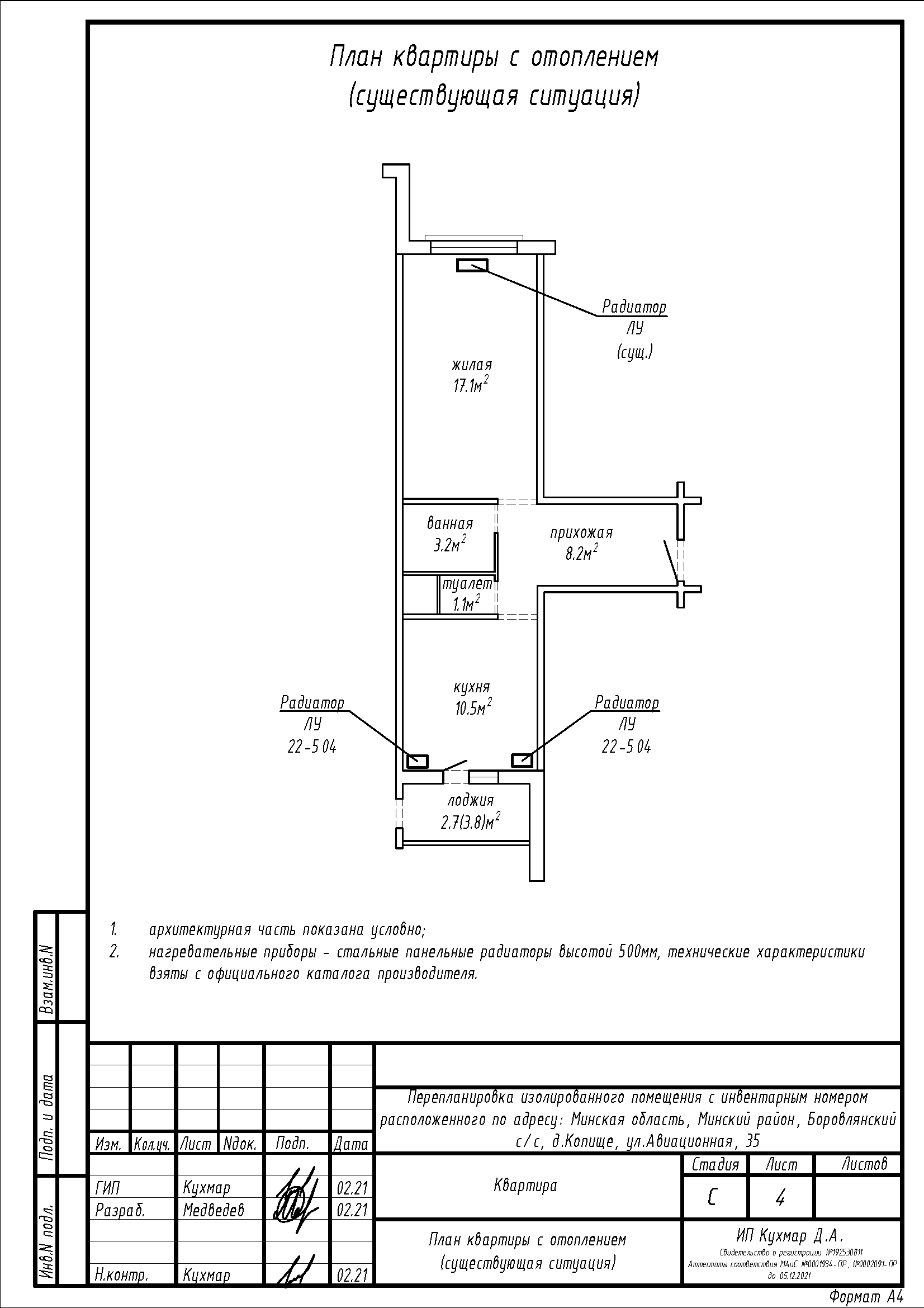
- Перенос и замена отопительного прибора.
Нами были разработаны следующие разделы проектной документации для согласования в исполкоме:
- АС - архитектурно-строительные решения;
- ОВ - отопление и вентиляция.
