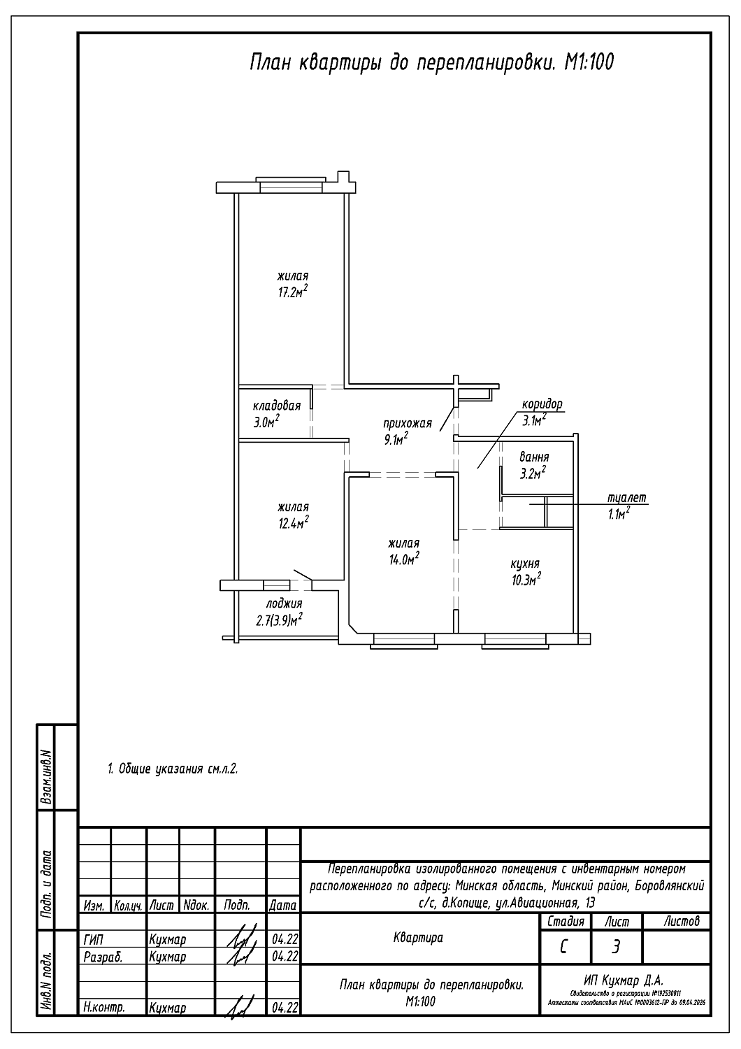
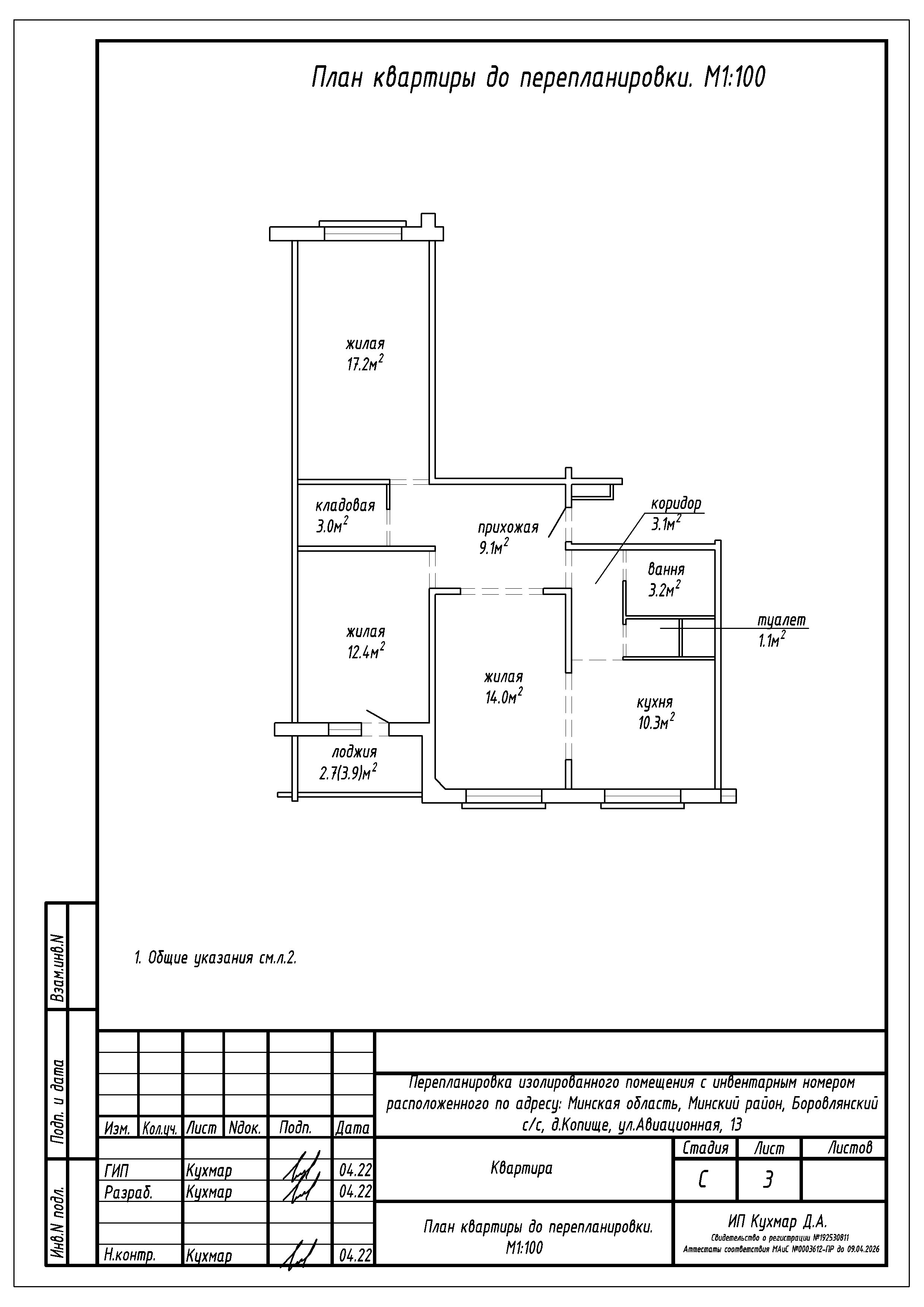
Перепланировка квартиры по ул. Авиационная, 13 в ЖК «Новая Боровая»
Пожелания заказчика:
- Сужение дверного проёма между коридором и жилой;
- Смена направления открывания входной двери;
- Устройство перегородки на части площади прихожей;
- Объединение ванной и туалета в единый санузел, увеличение за счёт части площади коридора;
- Изменение площади коридора;
- Устройство зашивки инсталляции в санузле.
Нами были разработаны следующие разделы проектной документации для согласования в исполкоме:
- АС - архитектурно-строительные решения.
