Перепланировка квартиры по ул. Авиации в р-не Сокол, в г. Минске
Пожелания заказчика:
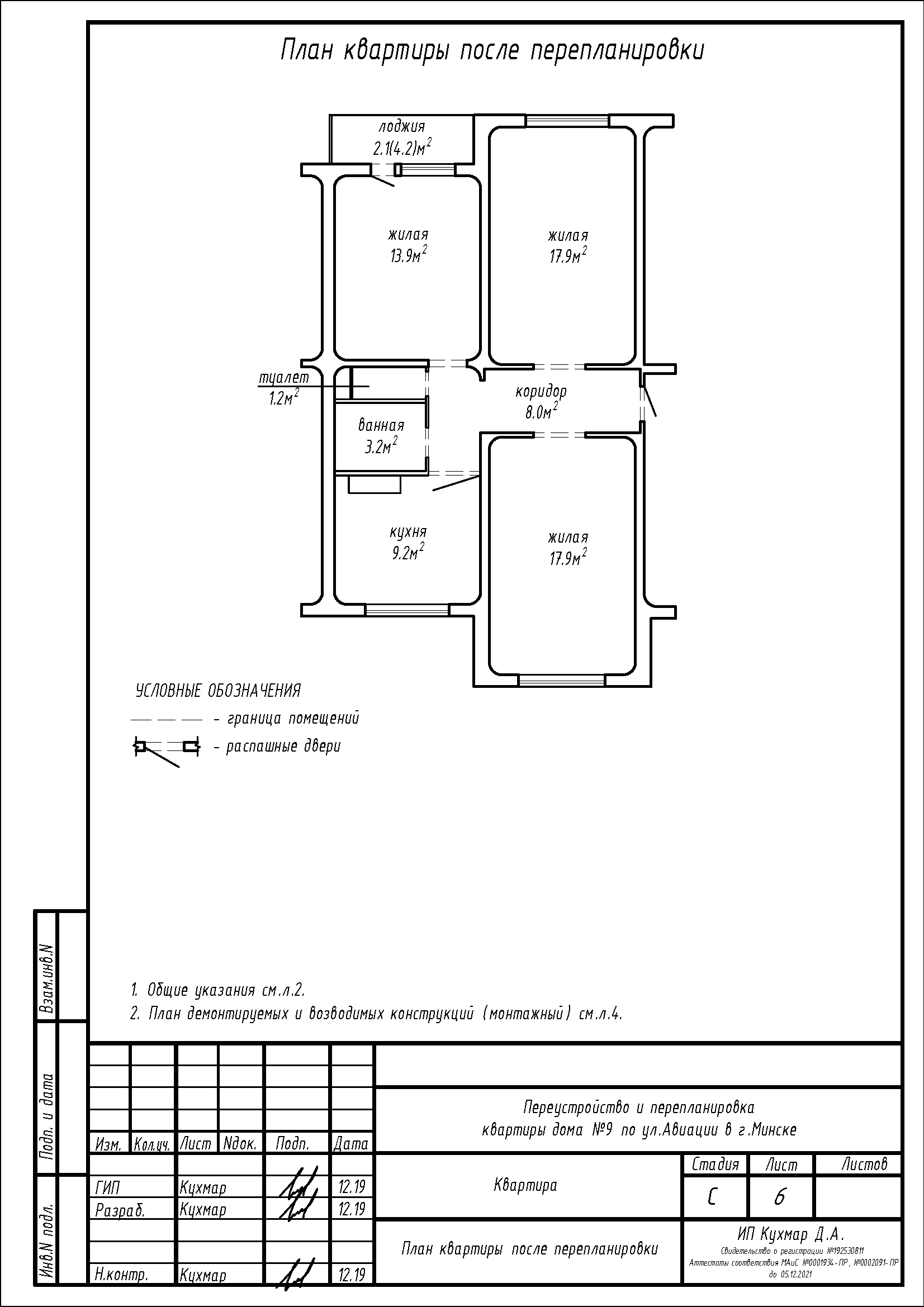
- Демонтаж перегородки с дверными проемами между туалетом, ванной и коридором с последующим возведением перегородки с дверными проемами с целью увелечения площади туалета и ванной;
- Демонтаж части перегородки на площади коридора;
- Демонтаж перегородок между шкафами коридором с целью увеличения площади коридора;
- Уменьшение дверного проема в перегородке между жилой и коридором;
- Уменьшение дверного проема в перегородке между коридором и жилой.
Нами были разработаны следующие разделы проектной документации для согласования в исполкоме:
- АС - архитектурно-строительные решения.
