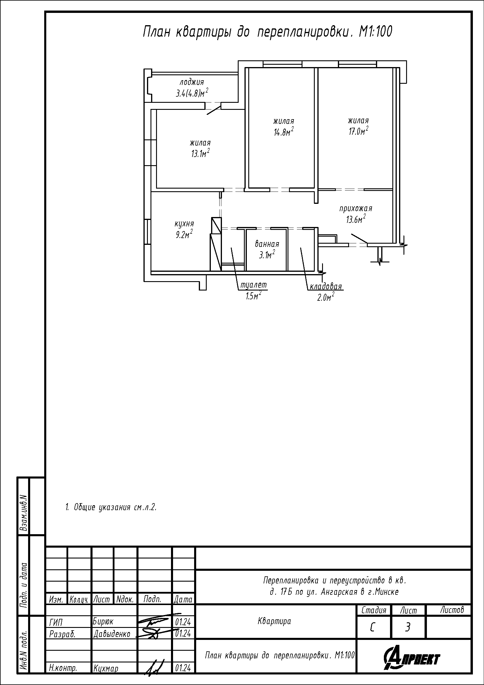
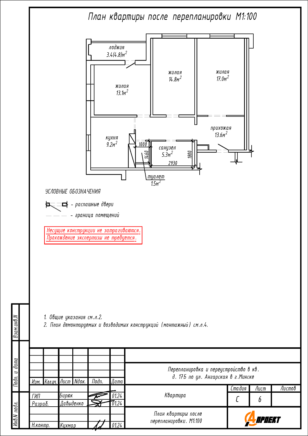
Перепланировка квартиры по ул. Ангарская, 17Б в г. Минске
Пожелания заказчика:
- Объединение ванной и кладовой в единое помещение ванная комната;
- Смещение дверного проёма в помещении кухни.
Нами были разработаны следующие разделы проектной документации для согласования в исполкоме:
- АС - архитектурно-строительные решения.
