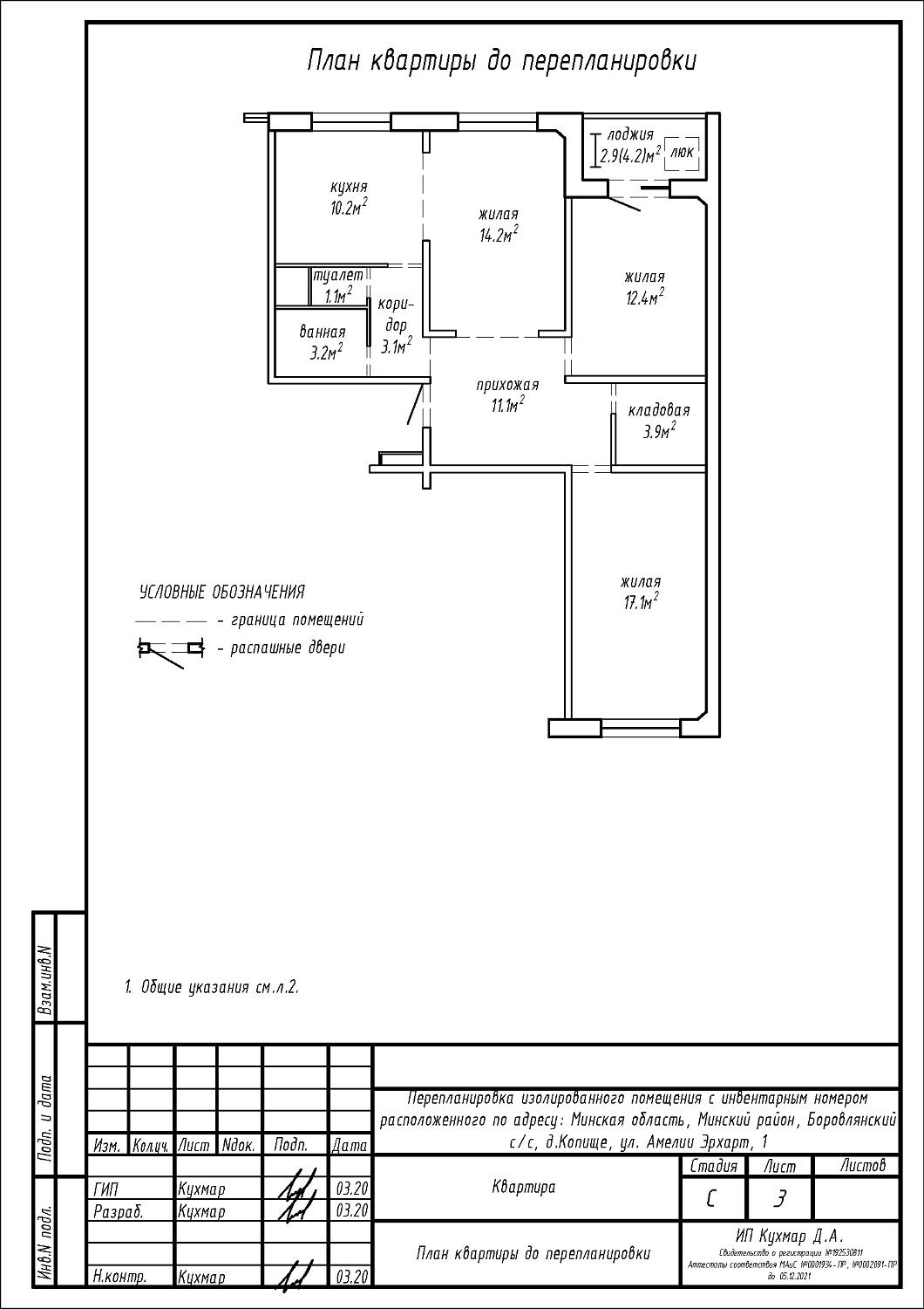
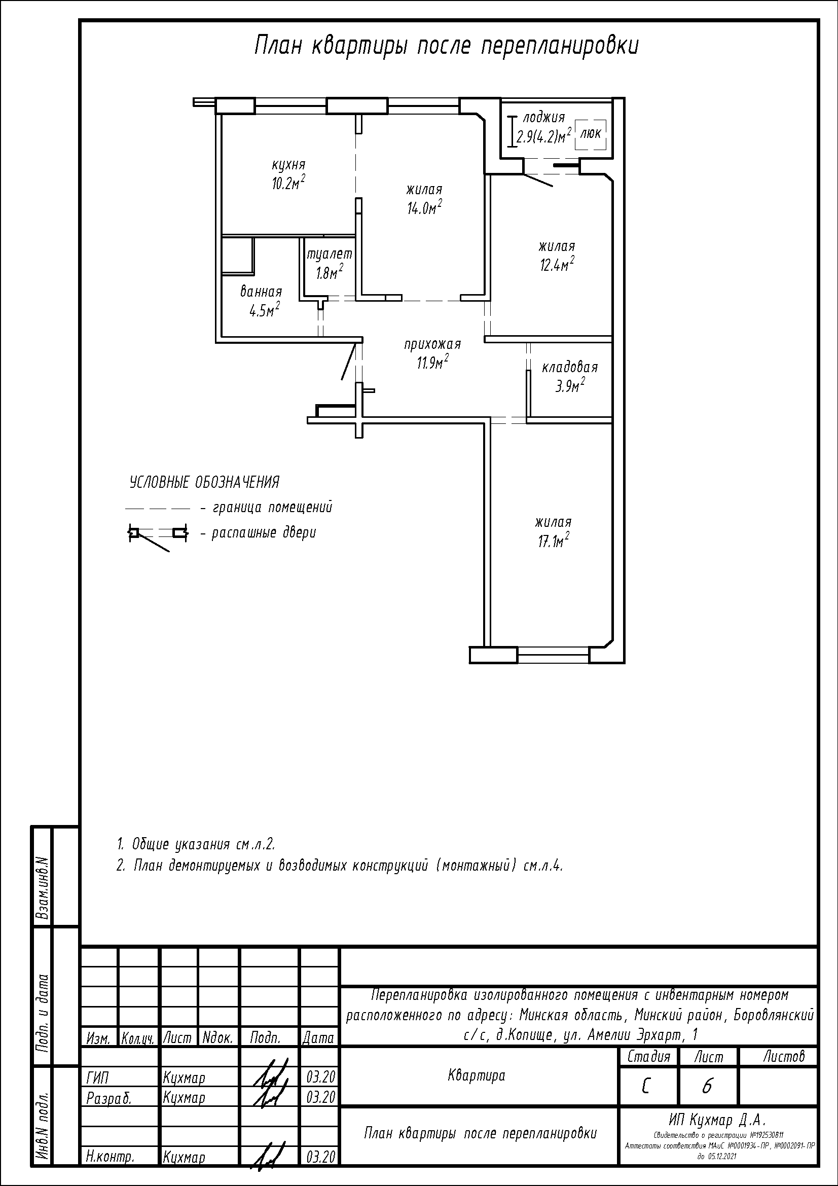
Перепланировка квартиры по ул. Амелии Эрхарт, 1 в ЖК «Новая Боровая»
Пожелания заказчика:
- Закладка дверного проёма в стене между кухней и коридором с целью устройства туалета на части площади коридора;
- Устройство ванной на площади туалета на части площади коридора;
- Устройство перегородки между кухней и жилой, жилой и прихожей. Возведение перегородки в прихожей.
Нами были разработаны следующие разделы проектной документации для согласования в исполкоме:
- АС - архитектурно-строительные решения.
