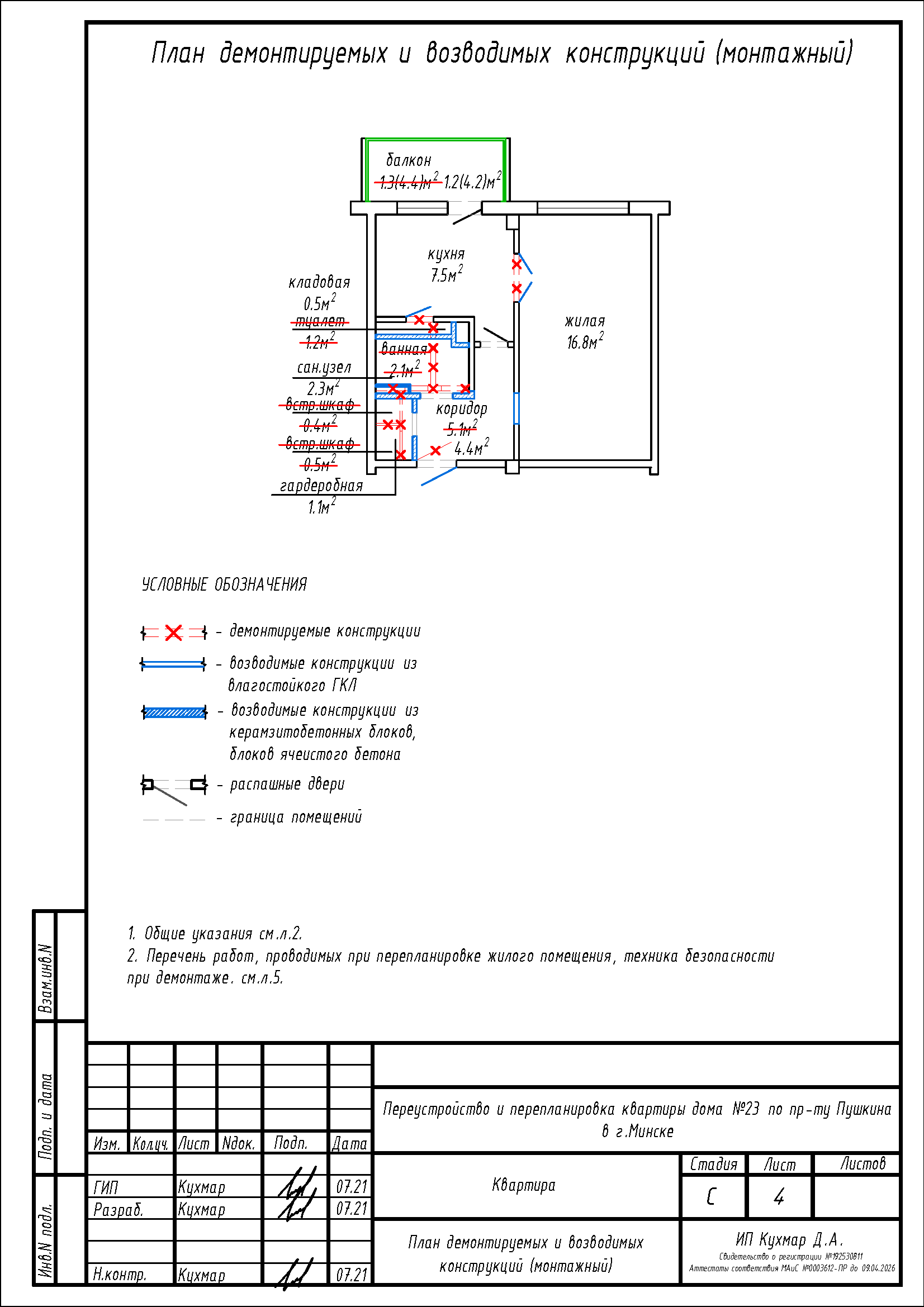
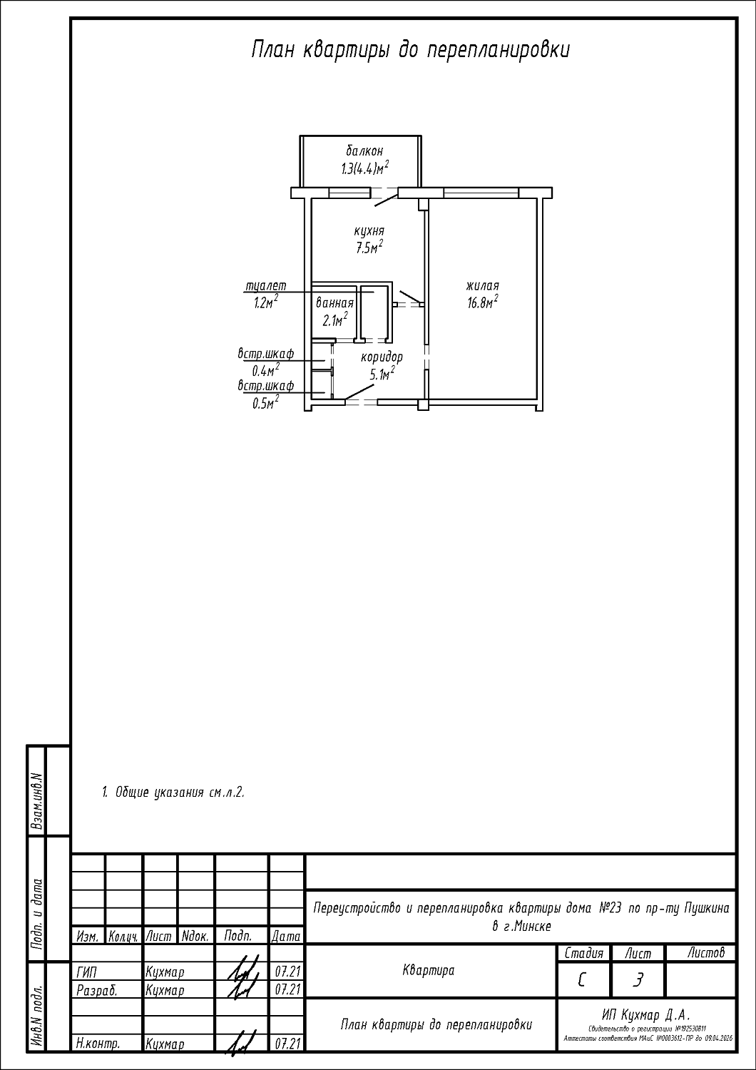
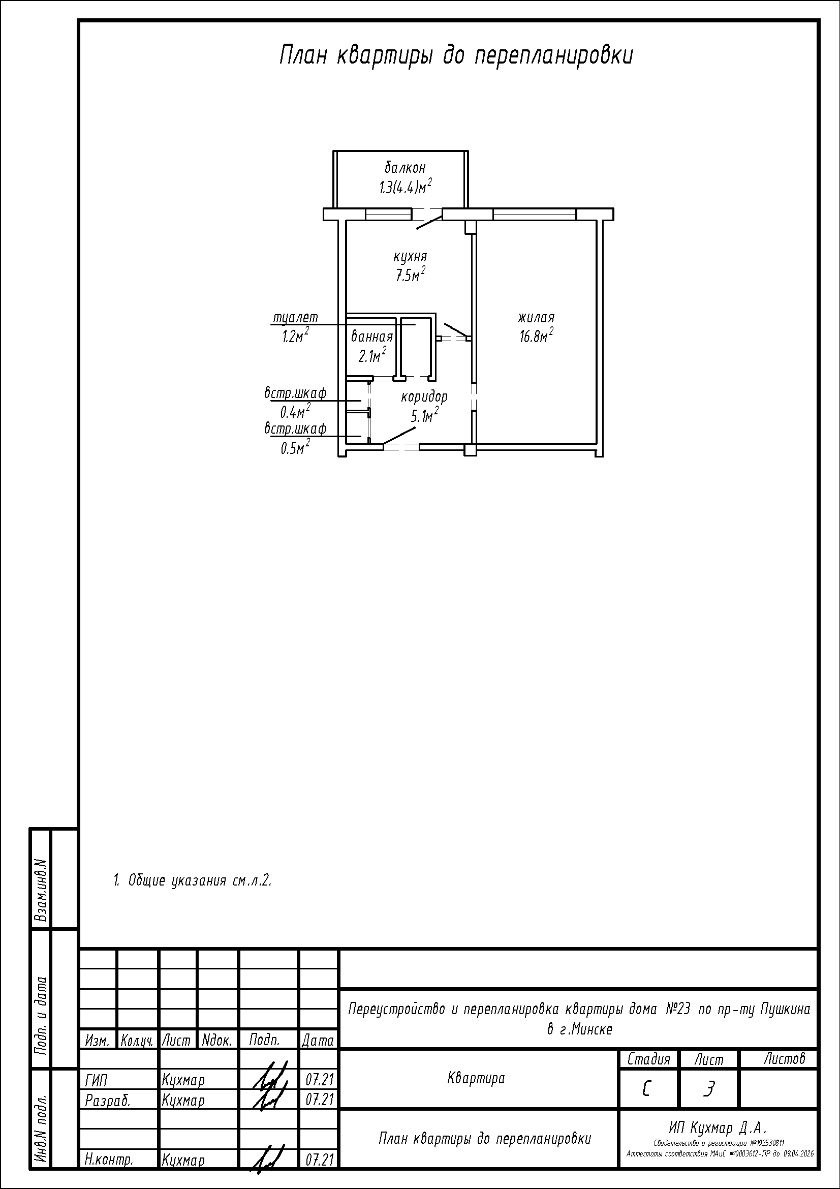
Перепланировка квартиры по пр-ту Пушкина, в г. Минске
Пожелания заказчика:
- Устройство проёма между кухней и жилой;
- Устройство кладовой на площади кухни;
- Смена направления открывания входной двери;
- Демонтаж встроенных шкафов; устройство гардеробной на их площади;
- Утепление балкона;
Нами были разработаны следующие разделы проектной документации для согласования в исполкоме:
- АС - архитектурно-строительные решения.
