Перепланировка квартиры по пр-ту Космонавтов, 37 в г. Гродно
Пожелания заказчика:
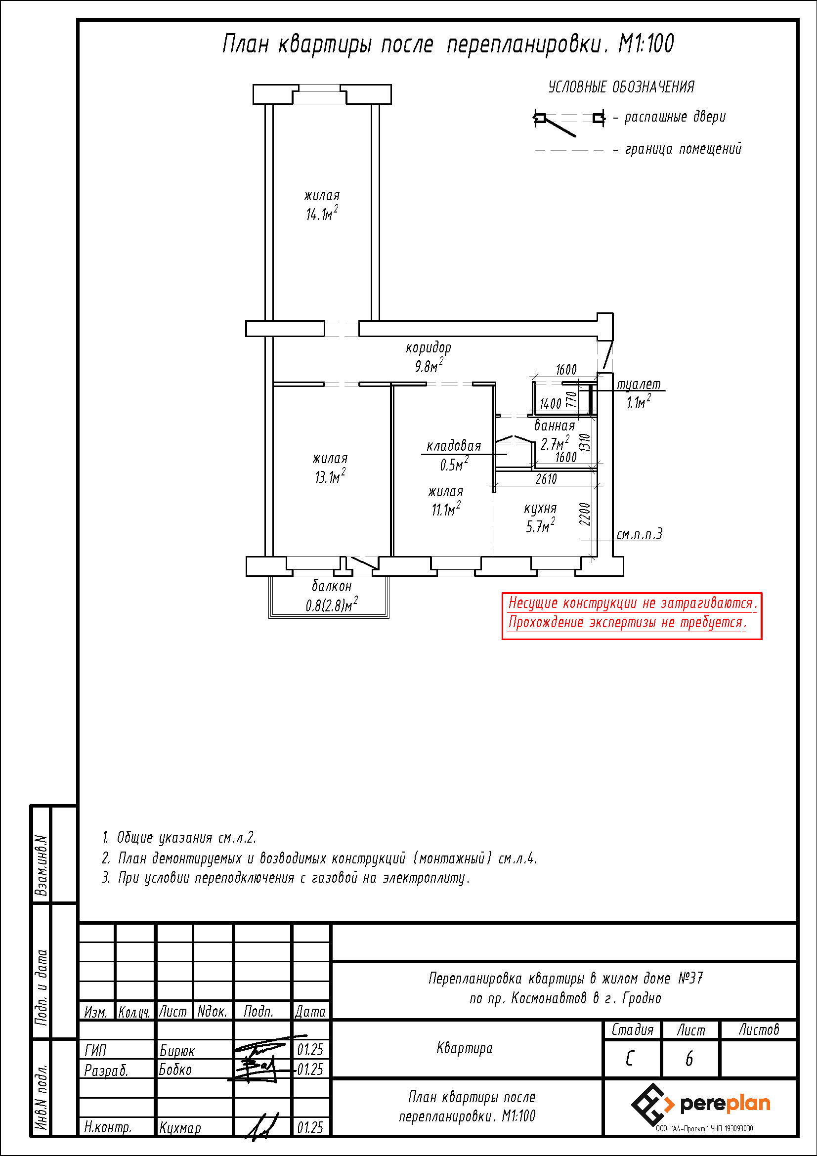
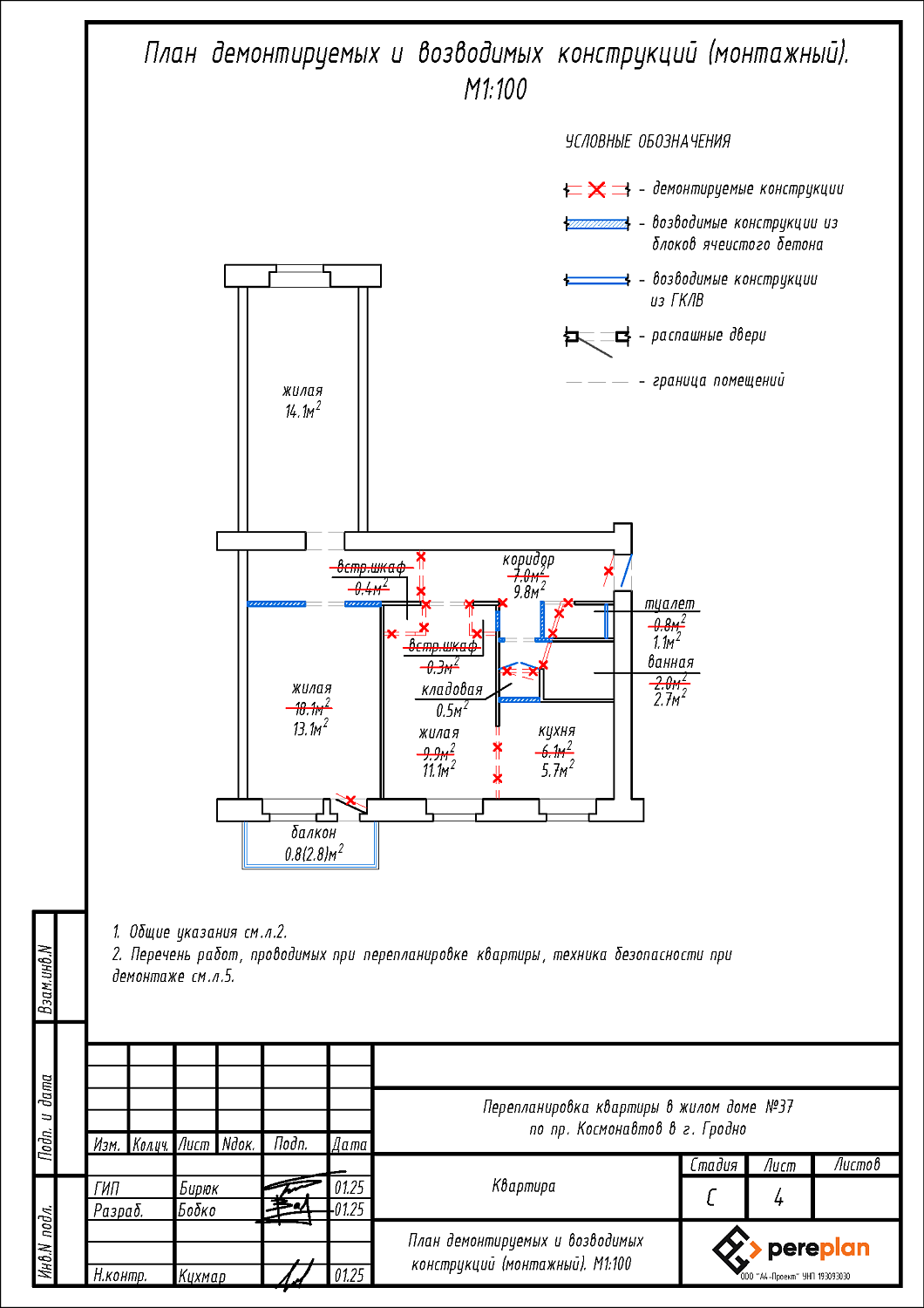
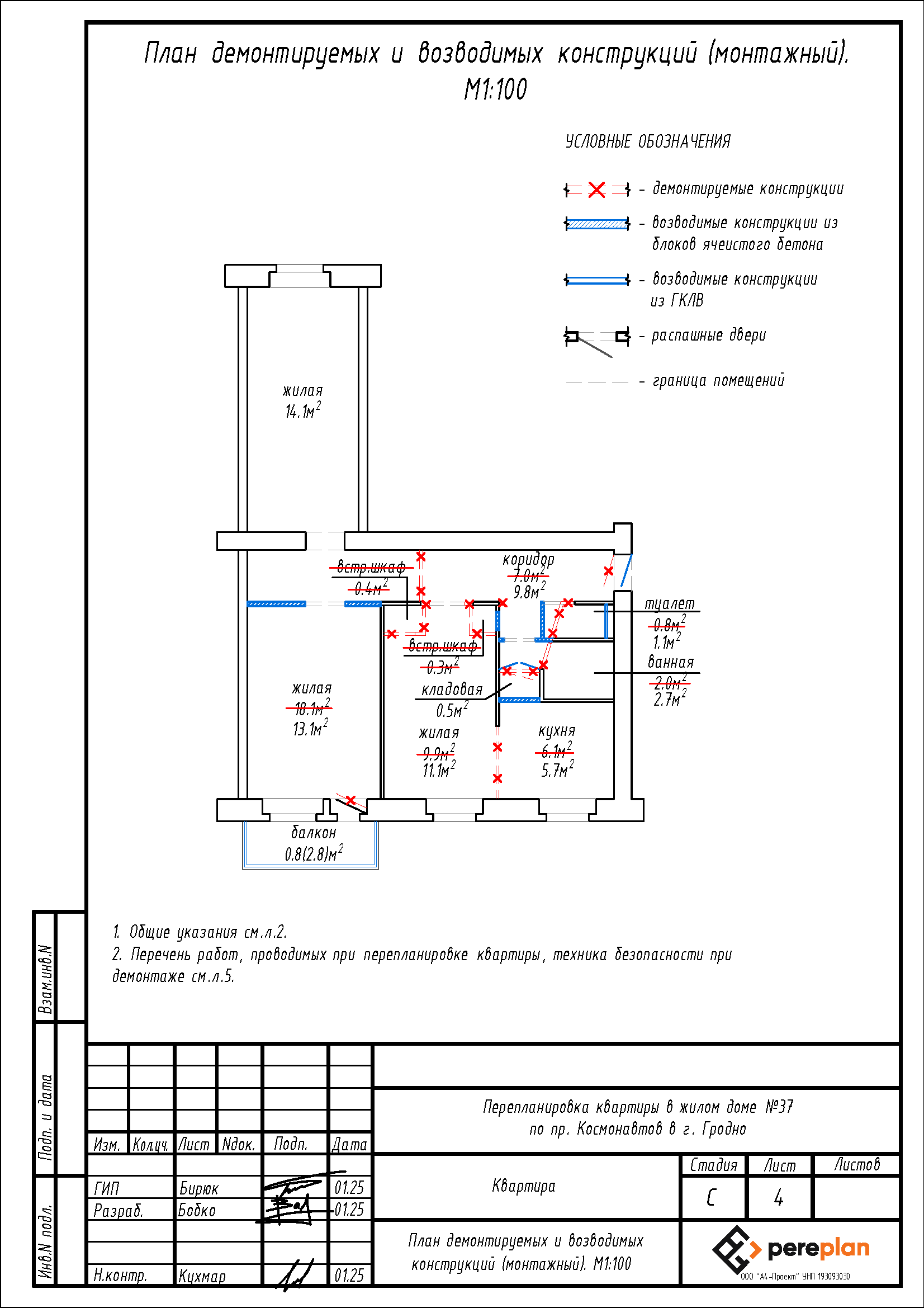
- Демонтаж части перегородки с дверным проемом между кухней 6.1 м2 и жилой 9.9 м2;
- Оборудование помещения кладовой за счет части площади кухни 6.1 м2 путем возведения перегородок;
- Увеличение площади туалета, ванной за счет части площади коридора 7.0 м2 путем демонтажа перегородок и возведения новых.
- Демонтаж встроенных шкафов, части перегородок в жилой комнате 9.9 м2 и коридоре;
- Увеличение площади коридора за счет части жилой комнаты 18.1 м2, путем устройства перегородки с дверным проемом с дверью;
- Смещение дверного блока входной двери и демонтаж одной балконной двери;
- Остекление балкона.
Нами были разработаны следующие разделы проектной документации для согласования в исполкоме:
- АС - архитектурно-строительные решения.


