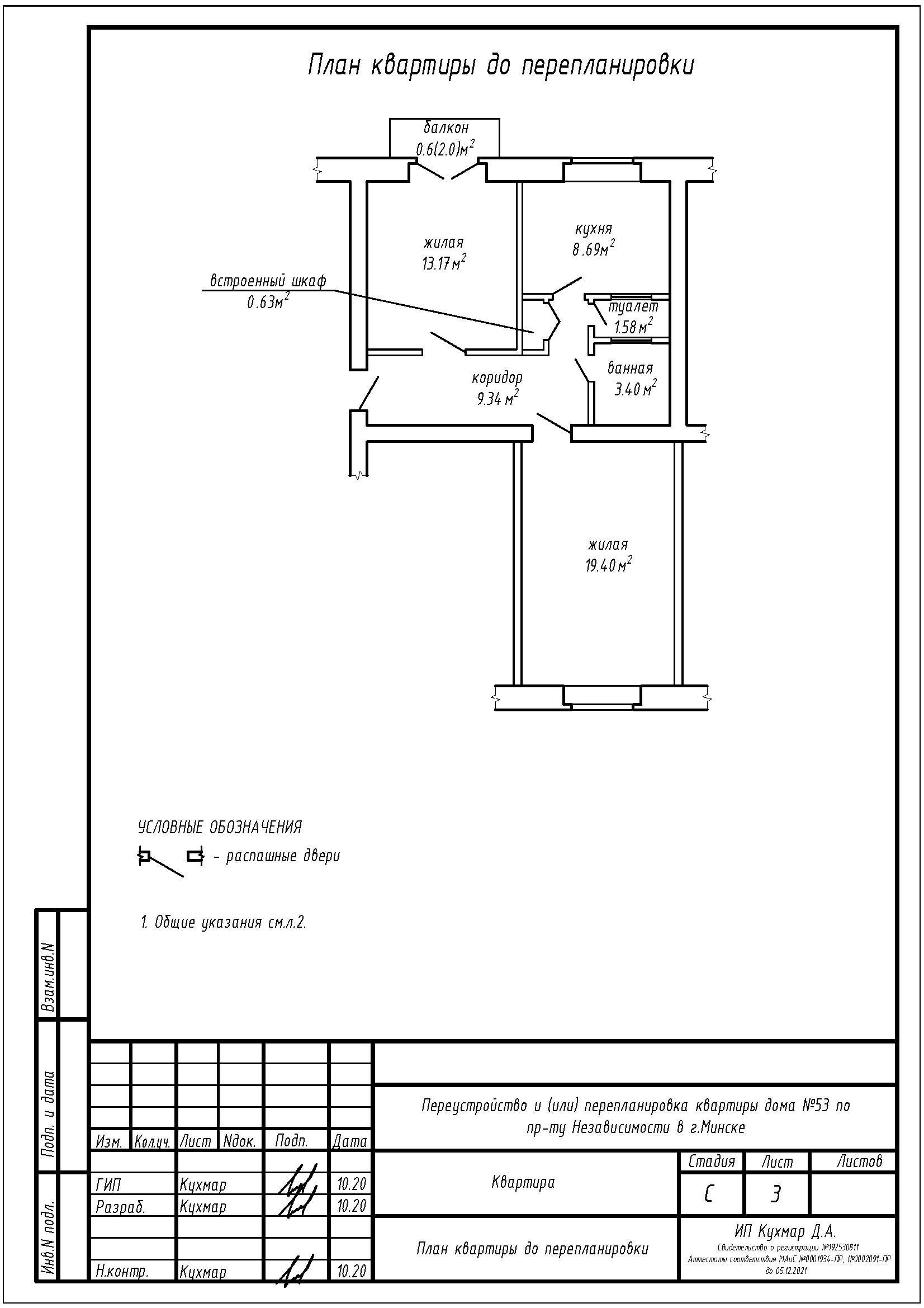
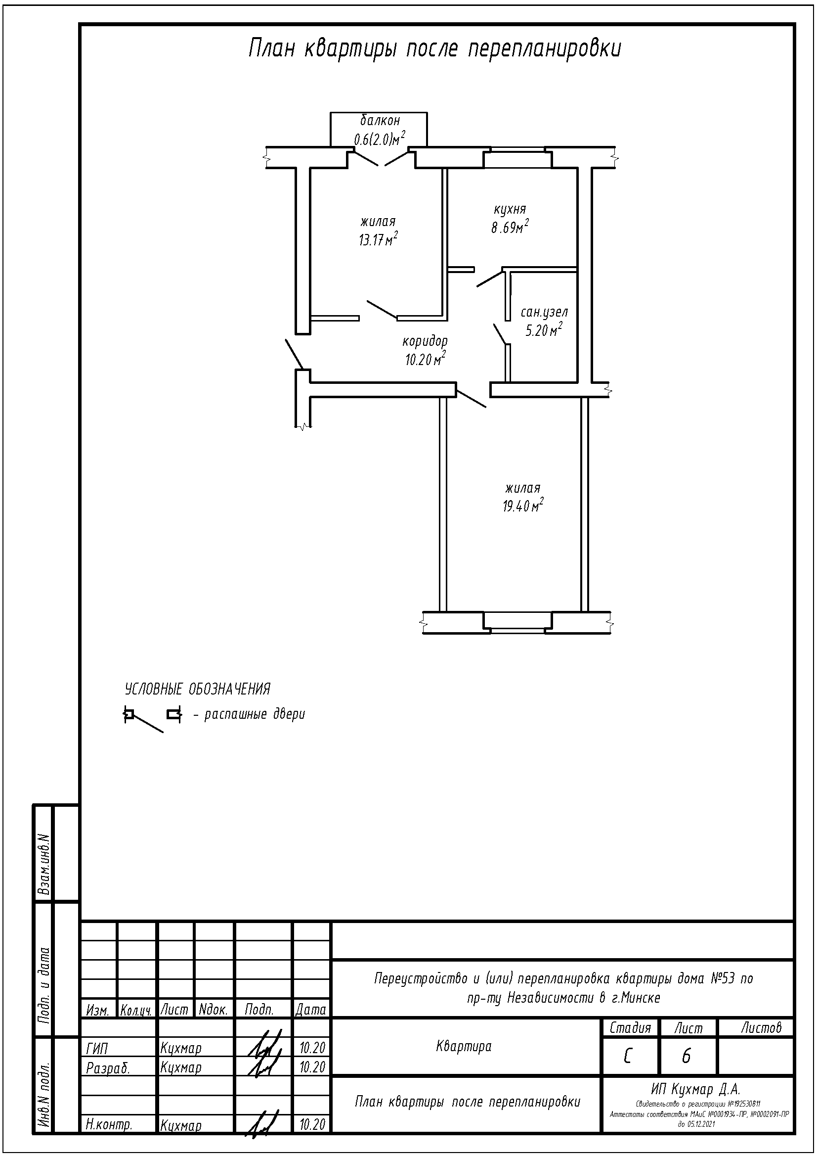
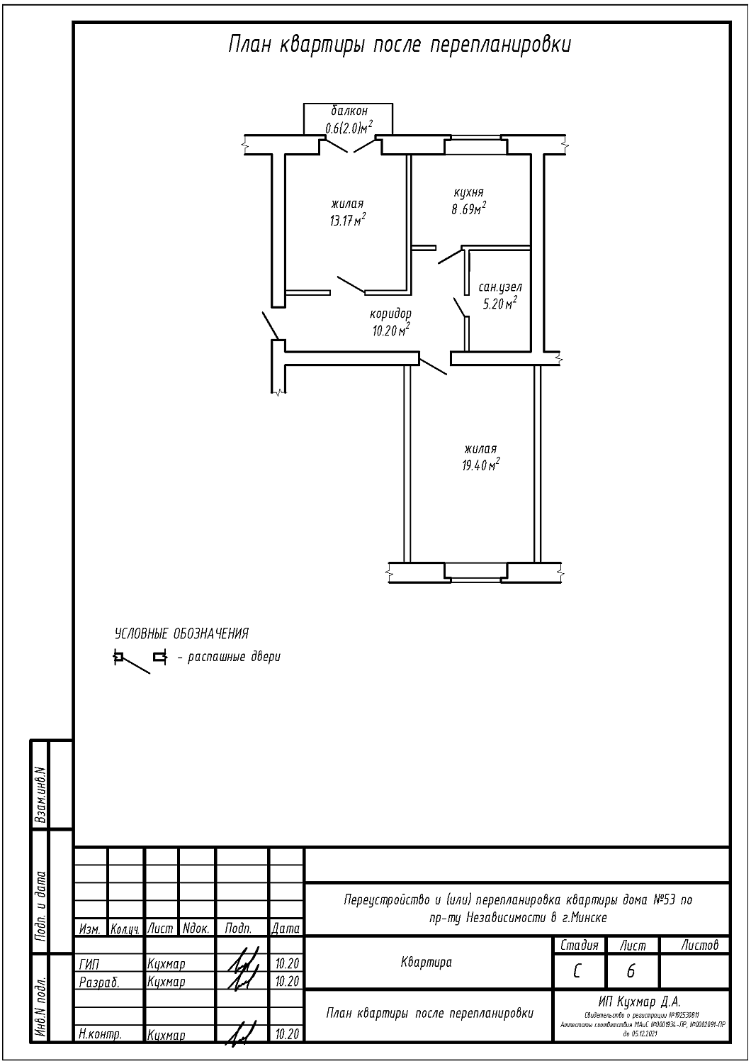
Перепланировка квартиры по пр-ту Независимости, 53 в г.Минске
Пожелания заказчика:
- Разделение жилой с кухонным оборудованием на жилую с кухонным оборудованием, жилую, коридор, гардеробную;
- Разделение санузла на отдельный туалет и санузел;
- Устройство зашивки коммуникаций и зашивки инсталляции в санузле;
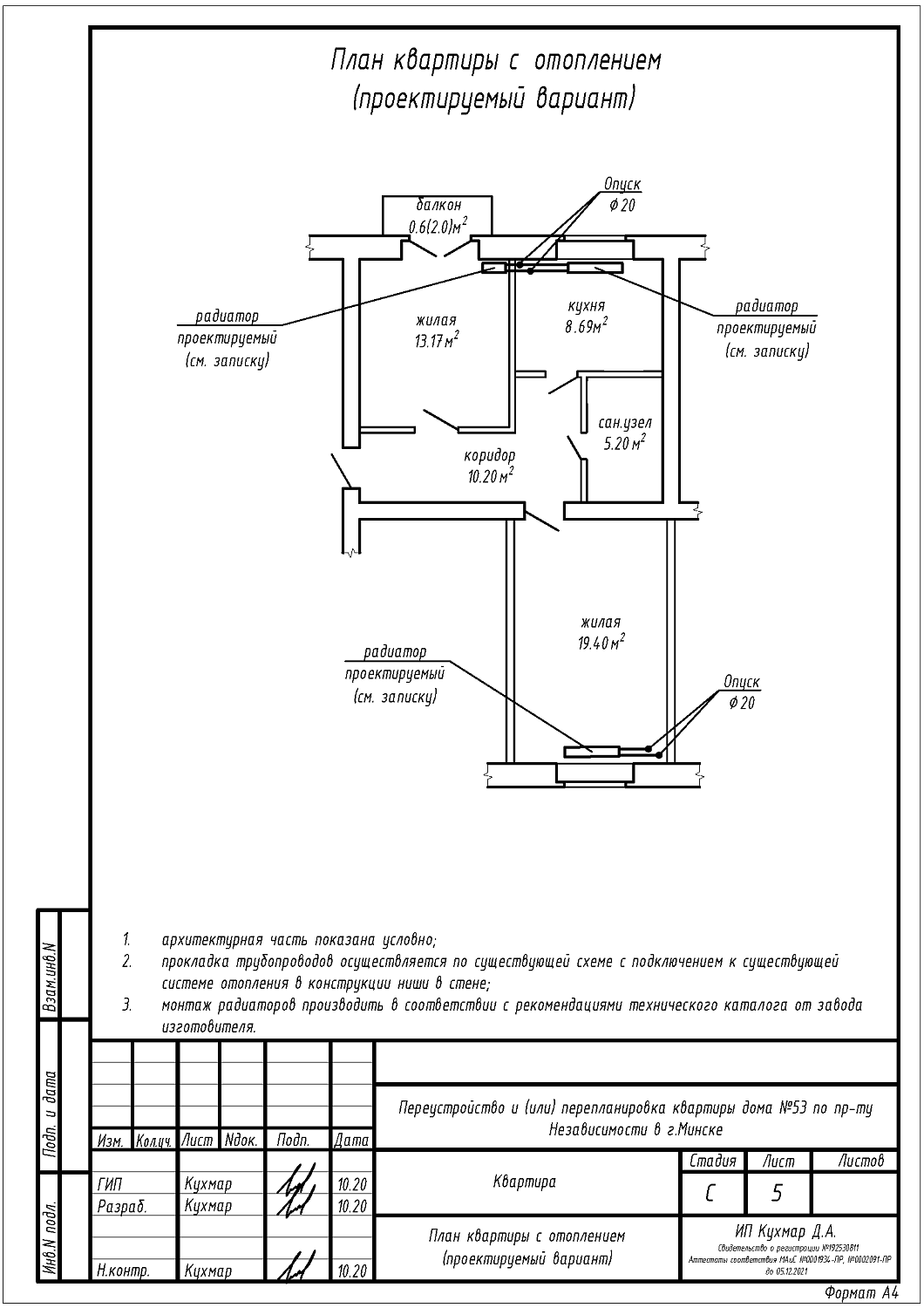
- Замена и перенос отопительных приборов.
Нами были разработаны следующие разделы проектной документации для согласования в исполкоме:
- АС - архитектурно-строительные решения;
- ОВ - отопление и вентиляция.
