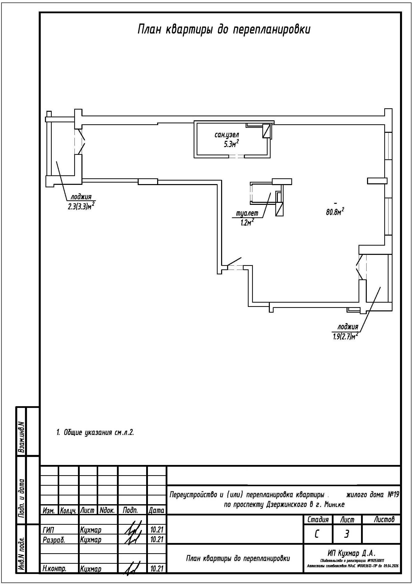
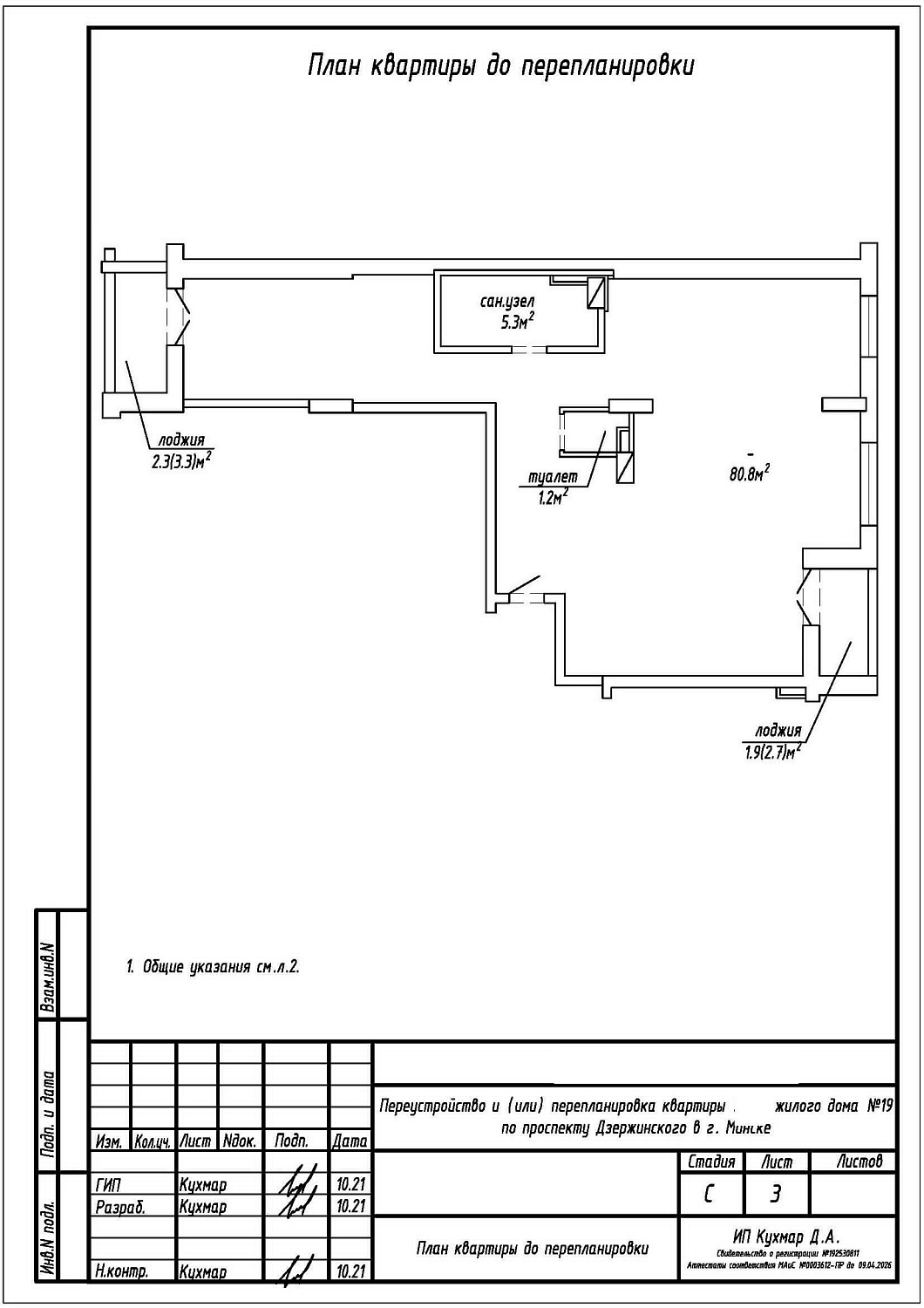
Перепланировка квартиры по пр-ту Дзержинского, 19 в ЖК «Гранд Хаус»
Пожелания заказчика:
- Демонтаж перегородок с дверным проемом между туалетом и жилой с кухонным оборудованием, перегородки между санузлом и жилой с кухонным оборудованием;
- Устройство перегородки в санузле, перегородок с дверным проемом в жилой с кухонным оборудованием с целью устройства ванной на части площади санузла, части площади жилой с кухонным оборудованием (не более 25% площади санузла);
- Устройство перегородок с дверными проемами и зашивок стен в жилой с кухонным оборудованием с целью устройства жилой с кухонным оборудованием, двух жилых комнат, двух гардеробных и коридора.
Нами были разработаны следующие разделы проектной документации для согласования в исполкоме:
- АС - архитектурно-строительные решения.
