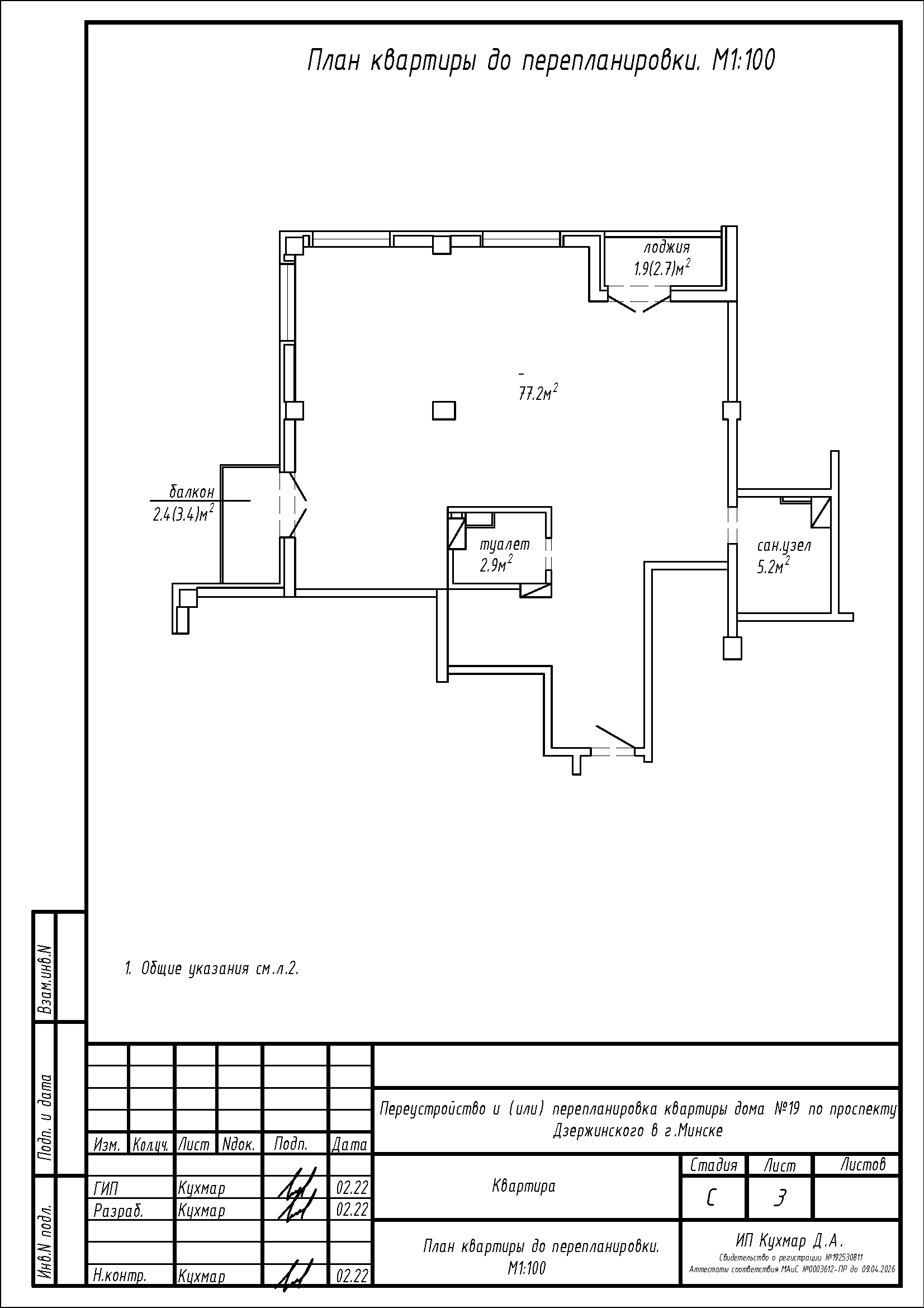
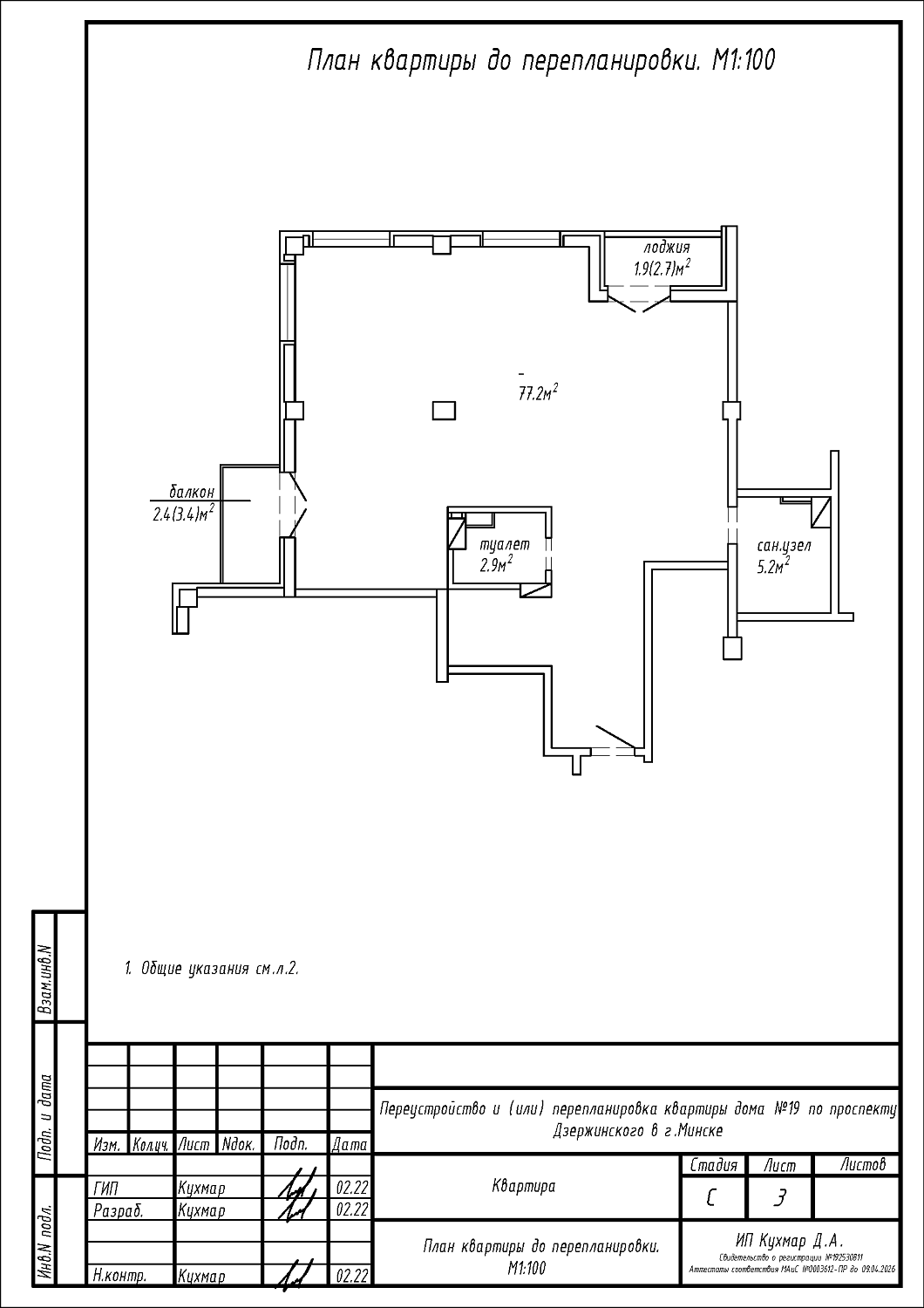
Перепланировка квартиры по пр-ту Дзержинского, 19 в ЖК «Гранд Хаус»
Пожелания заказчика:
- Демонтаж перегородок с дверным проемом между туалетом и жилой с кухонным оборудованием;;
- Устройство перегородок с дверным проемом в жилой с кухонным оборудованием с целью устройства туалета на площади туалета, части площади жилой с кухонным оборудованием (функциональная зона коридора);
- Устройство перегородок с дверными проемами в жилой с кухонным оборудованием с целью устройства кухни, трех жилых комнат, кладовой и коридора на части площади жилой с кухонным оборудованием;
- Устройство зашивок стояков труб в сан. узлах;
- Устройство перегородки в сан.узле.
Нами были разработаны следующие разделы проектной документации для согласования в исполкоме:
- АС - архитектурно-строительные решения.
