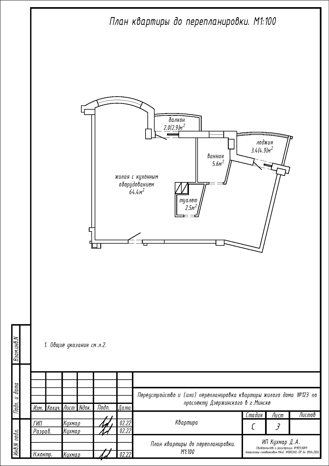
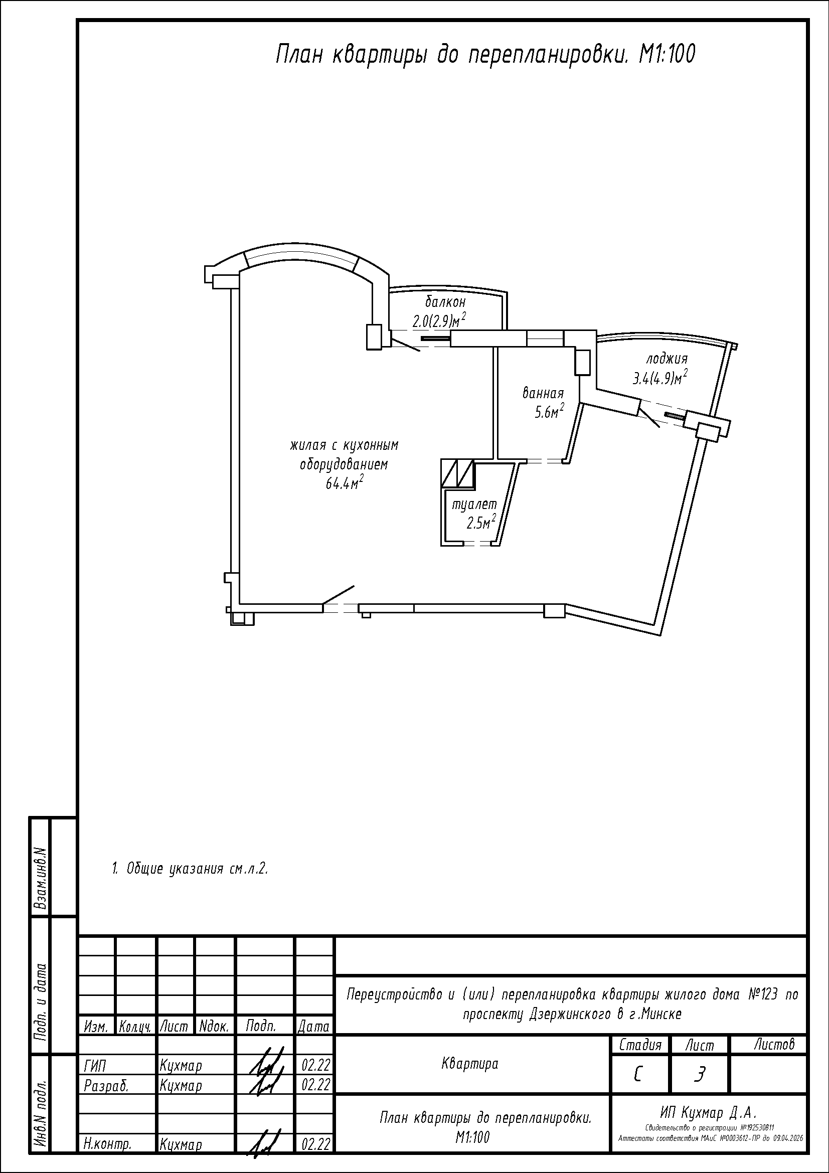
Перепланировка квартиры по пр-ту Дзержинского, 123 в ЖК «Мегаполис»
Пожелания заказчика:
- Демонтаж перегородок с дверным проемом между туалетом и жилой с кухонным оборудованием;
- Устройство перегородок с дверным проемом в жилой с кухонным оборудованием, перегородки в туалете с целью устройства туалета на части площади туалета, части площади жилой с кухонным оборудованием (функциональная зона коридора);
- Закладка дверного проема в перегородке между ванной и жилой с кухонным оборудованием, устройство перегородок с дверным проемом в жилой с кухонным оборудованием с целью устройства ванной на части площади туалета, части площади жилой с кухонным оборудованием (функциональная зона коридора);
- Устройство дверного проема в перегородке между ванной и жилой с кухонным оборудованием с целью устройства кладовой на площади ванной;
- Устройство перегородок с дверными проемами в жилой с кухонным оборудованием с целью устройства жилой с кухонным оборудованием, двух жилых комнат, гардеробной и коридора.
Нами были разработаны следующие разделы проектной документации для согласования в исполкоме:
- АС - архитектурно-строительные решения.
