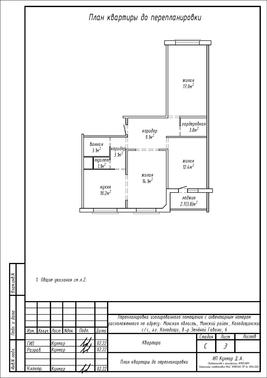
Перепланировка квартиры по бульвару Зелёная гавань, 6 в ЖК «Зелёная Гавань»
Пожелания заказчика:
- Объединение ванной и туалета в единый санузел;
- Увеличение санузла за счет площади коридора;
- Закладка дверного проёма между кухней и коридором;
- Устройство кладовой на части площади коридора и части площади кухни.
Нами были разработаны следующие разделы проектной документации для согласования в исполкоме:
- АС - архитектурно-строительные решения.
