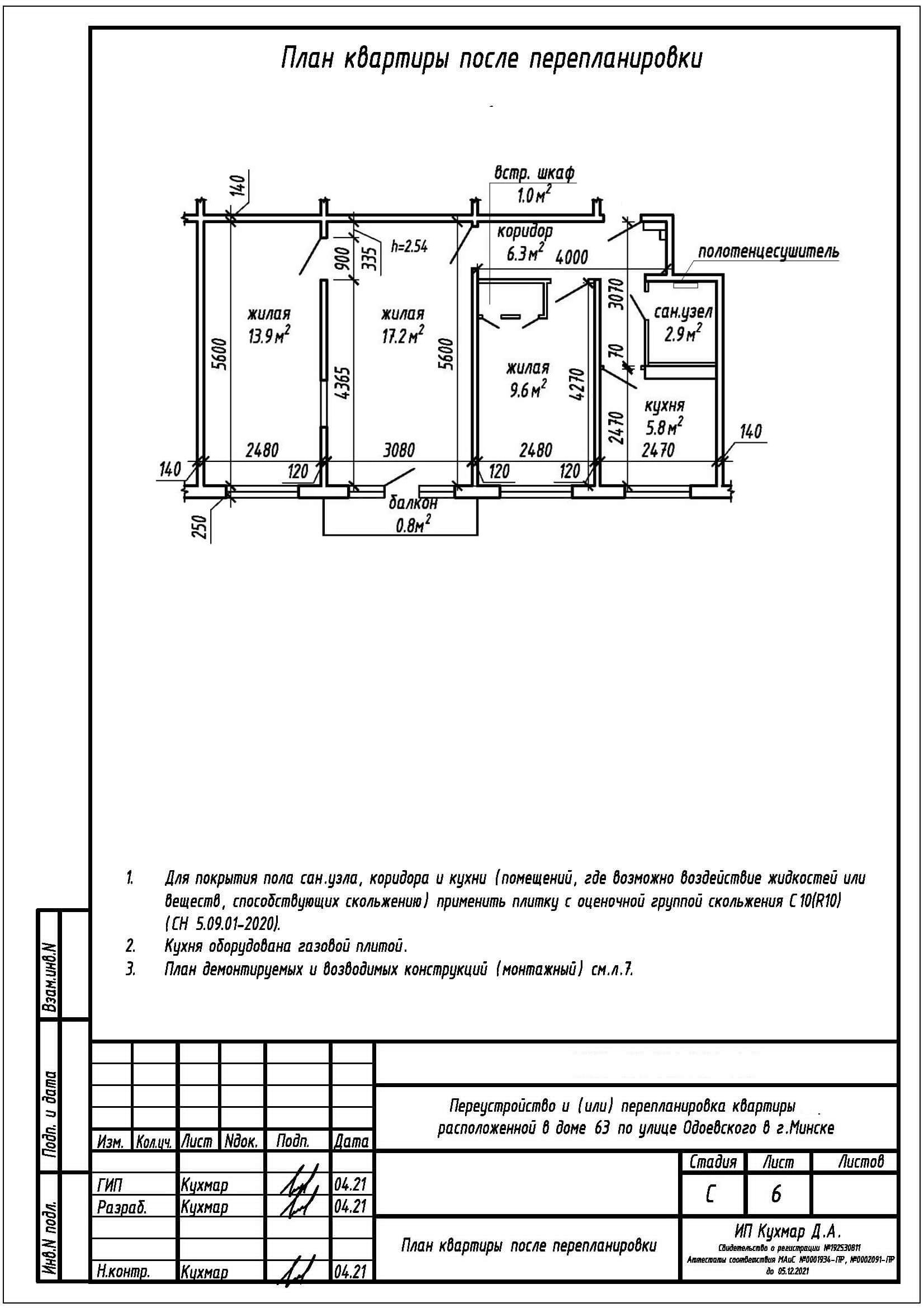
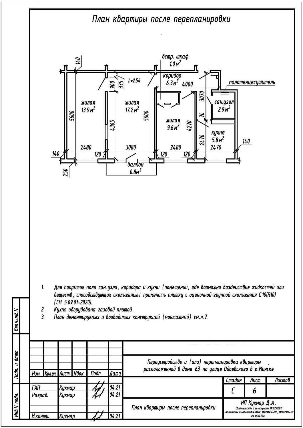
Перепланировка квартиры по ул. Одоевского, 63 в г. Минске
Пожелания заказчика:
- Перенос дверного проёма в несущей стене между жилой 13,9 м2 и жилой 17,2 м2.
Нами были разработаны следующие разделы проектной документации для согласования в исполкоме:
- АС - архитектурно-строительные решения.
