Перепланировка квартиры по ул. Одинцова, 54 в г. Минске
Пожелания заказчика:
- Объединение ванной и туалета в единый санузел;
- Смена направления открывания входной двери;
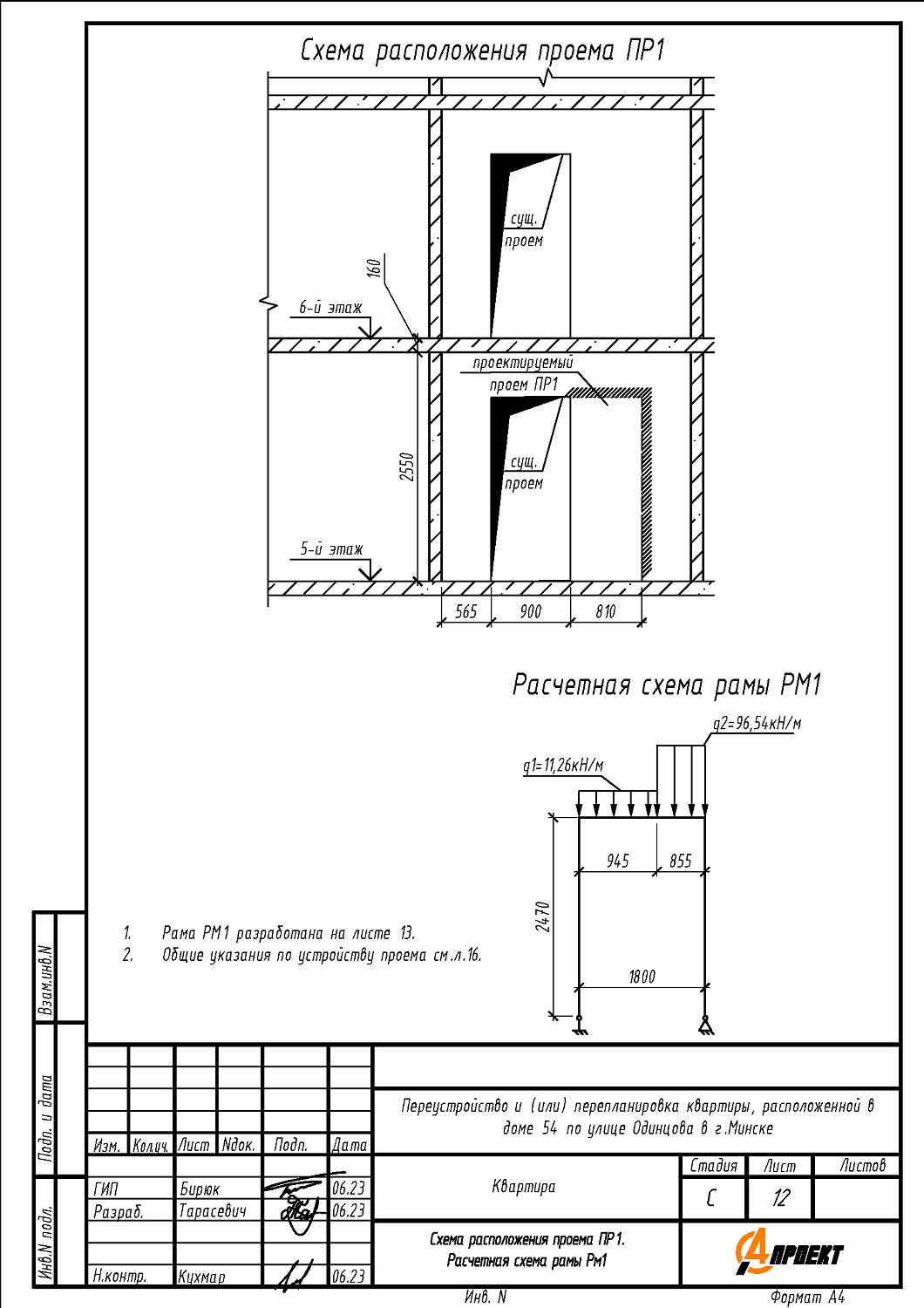
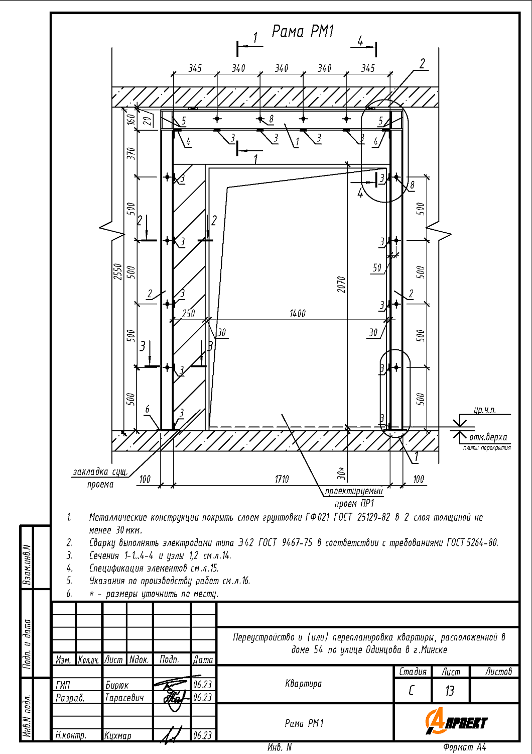
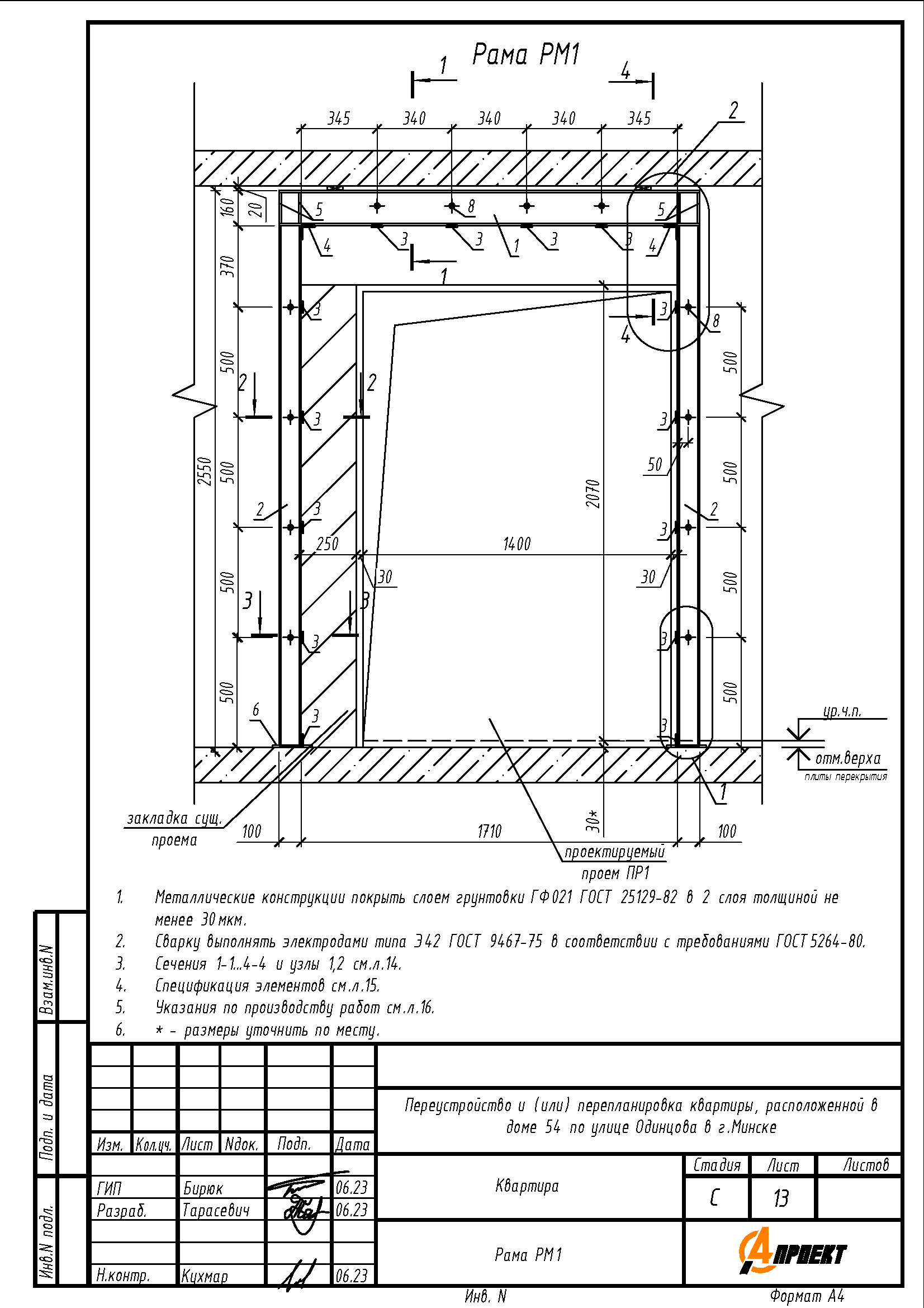
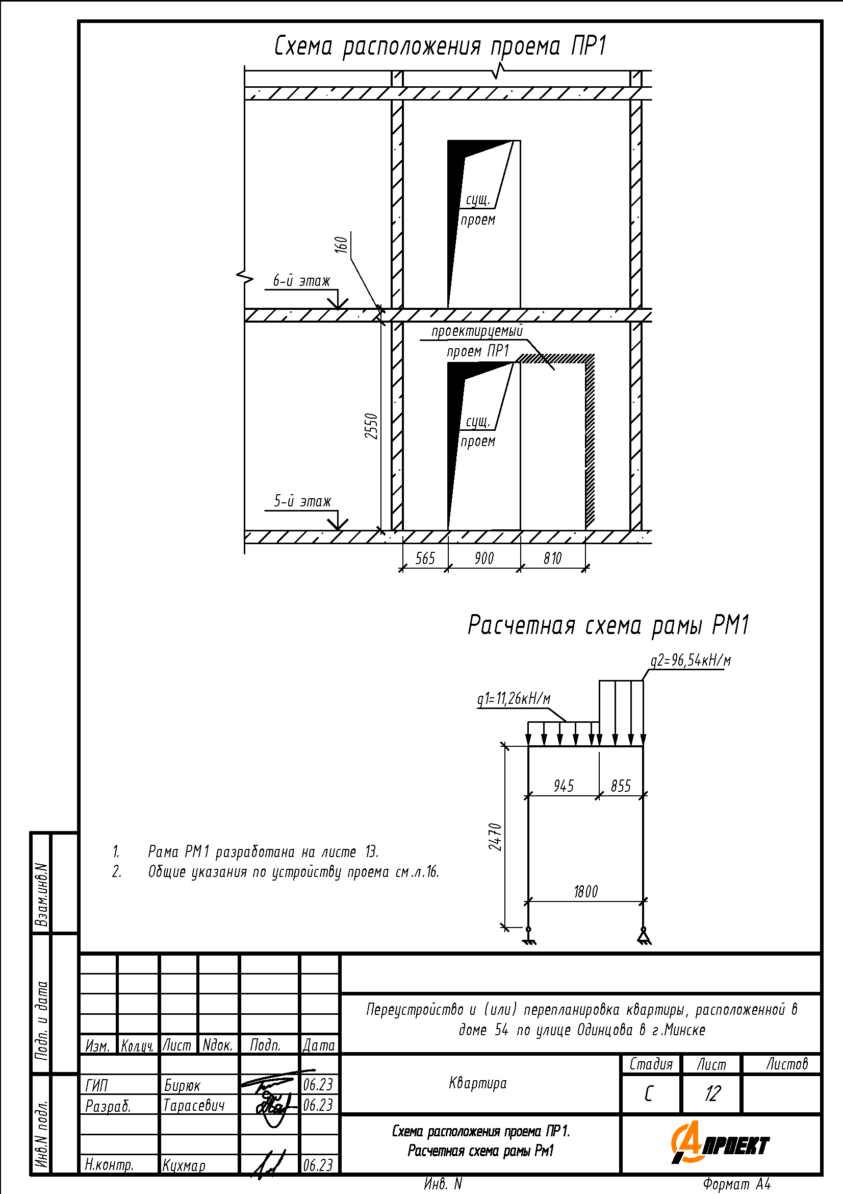
- Пробивка дверного проёма в несущей стене между жилой и коридором, с последующей частичной закладкой;
- Устройство перегородки на площади коридора;
- Демонтаж подоконной части в стене между лоджией и жилой с последующей заменой дверного блока;
- Перенос радиатора отопления.
Нами были разработаны следующие разделы проектной документации для согласования в исполкоме:
- АС - архитектурно-строительные решения;
- ОВ - отопление и вентиляция.
