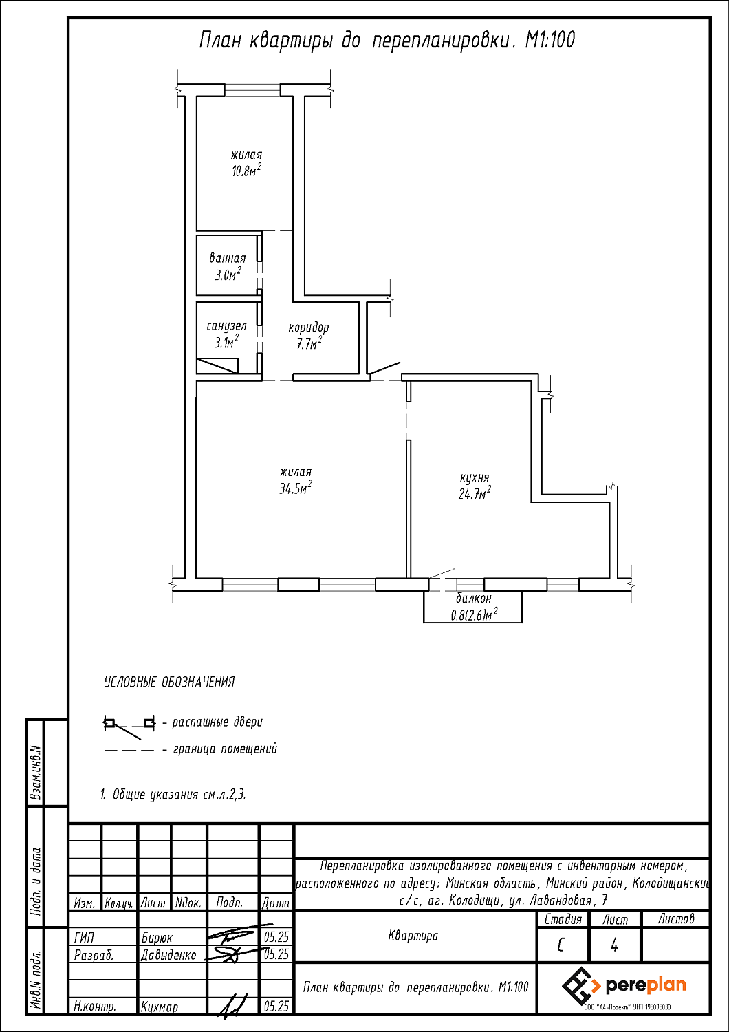
Перепланировка квартиры по ул. Лавандовая, 7 в ЖК «Зелёная Гавань»
Пожелания заказчика:
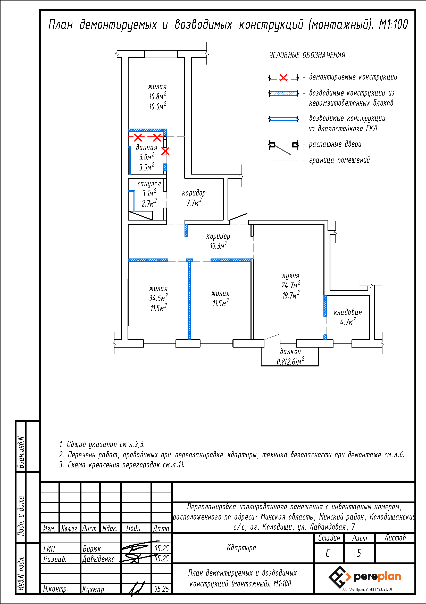
- Изменение площади кухни за счет устройства перегородки с дверным проемом на площади кухни с последующим образованием нового помещения;
- Устройство перегородок, в том числе дверного проема, на площади жилой с последующим образованием новых помещений;
- Демонтаж части перегородки дверного проема между коридором и ванной с последующим устройством перегородки дверного проема между коридором и ванной (смещение дверного проема): изменение площади жилой, ванной за счет демонтажа перегородки между ванной и жилой с последующим устройством перегородок на площади жилой;
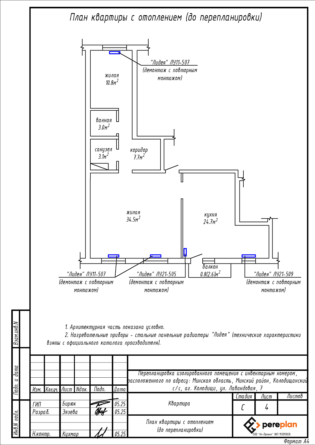
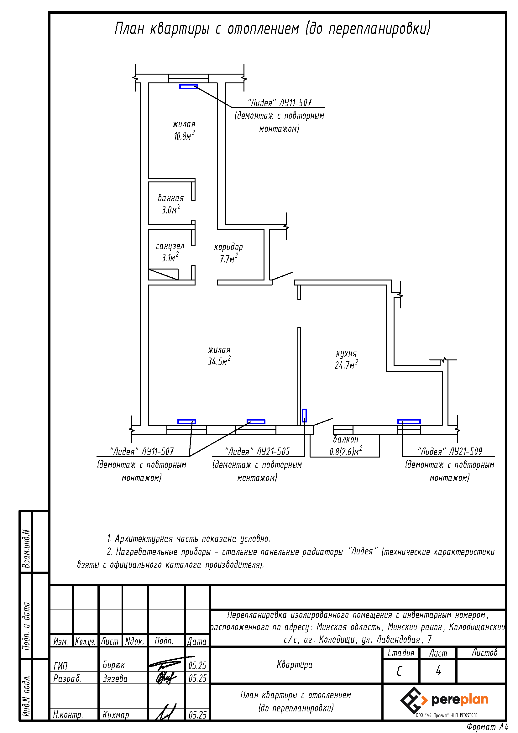
- Перенос отопительных приборов.
Нами были разработаны следующие разделы проектной документации для согласования в исполкоме:
- АС - архитектурно-строительные решения;
- ОВ - отопление и вентиляция.
