Реконструкция квартиры по ул. Кленовая Аллея, 43 в ЖК «Зелёная Гавань»
Пожелания заказчика:
- Строительство пристройки (веранда);
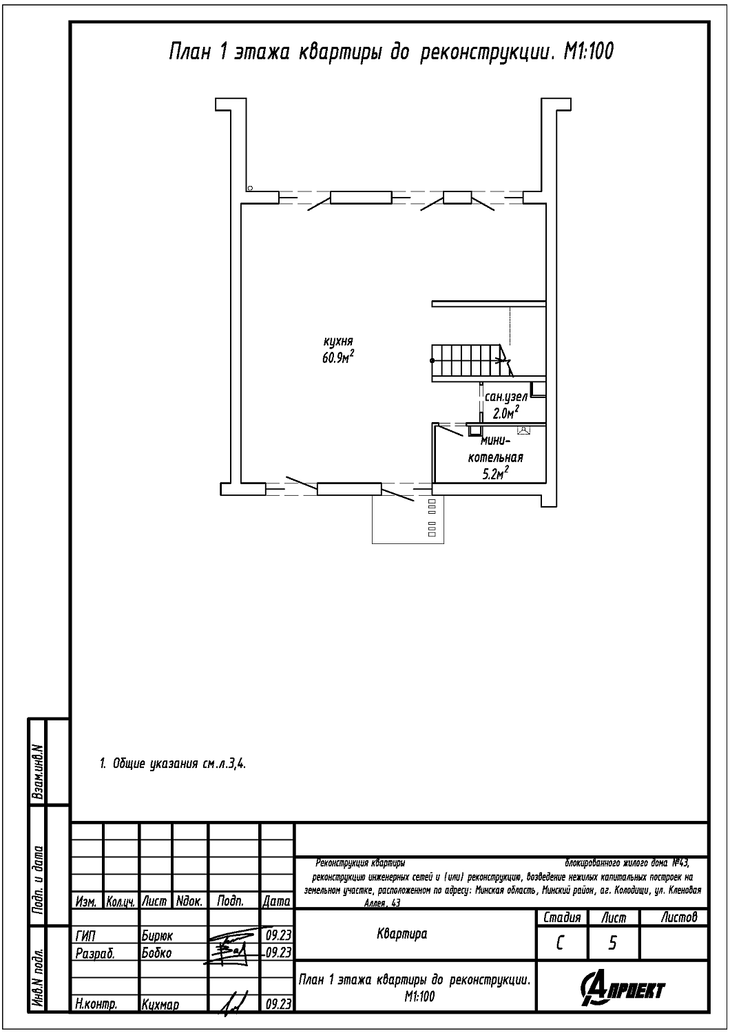
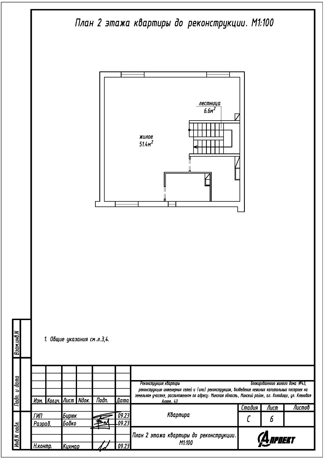
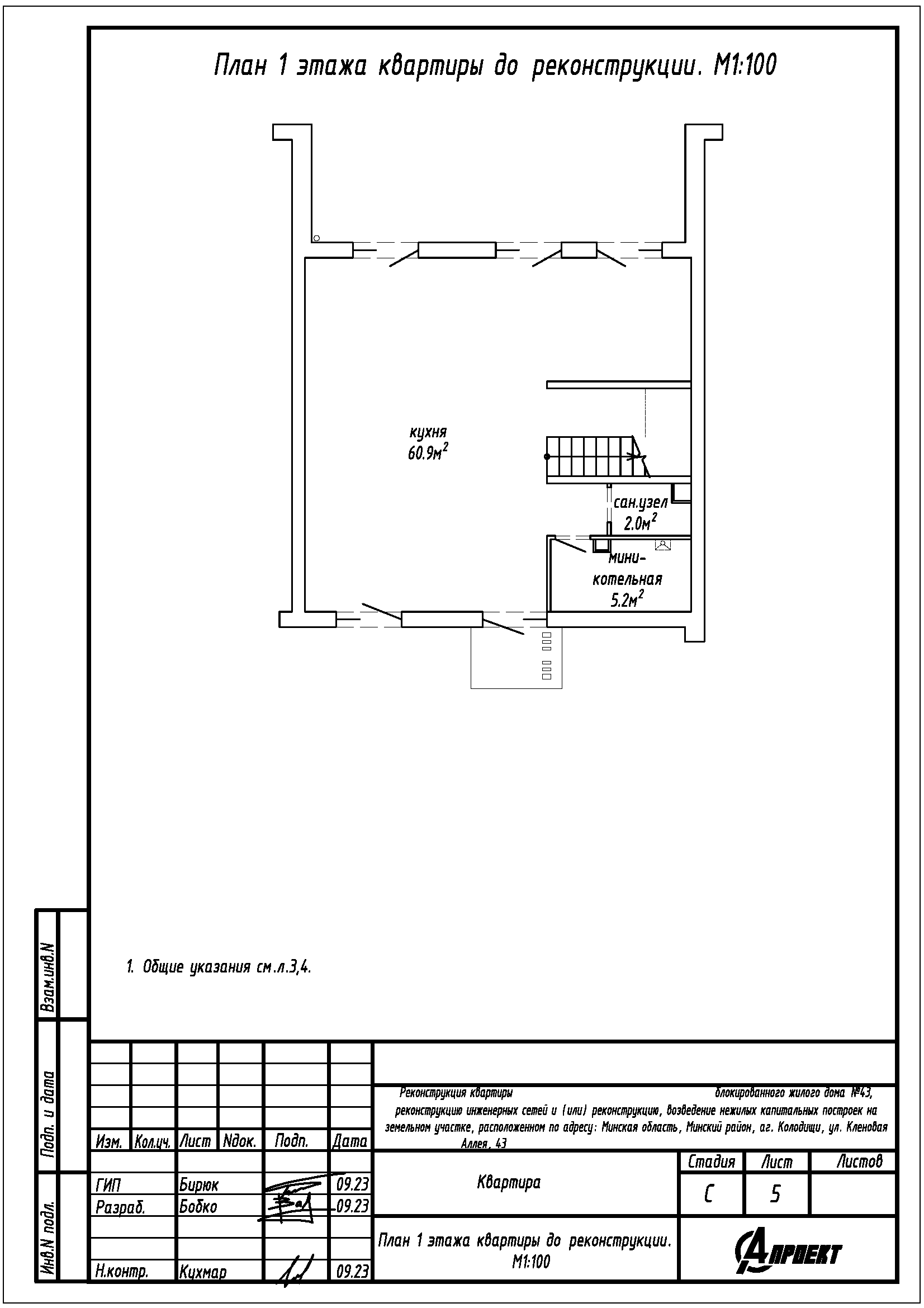
- Изменение количества и общей площади жилых и нежилых помещений квартиры путем демонтажа и устройства перегородок с дверным проемом с последующим образованием новых помещений;
- Строительство хоз. блока;
Нами были разработаны следующие разделы проектной документации для согласования в исполкоме:
- АС - архитектурно-строительные решения.
