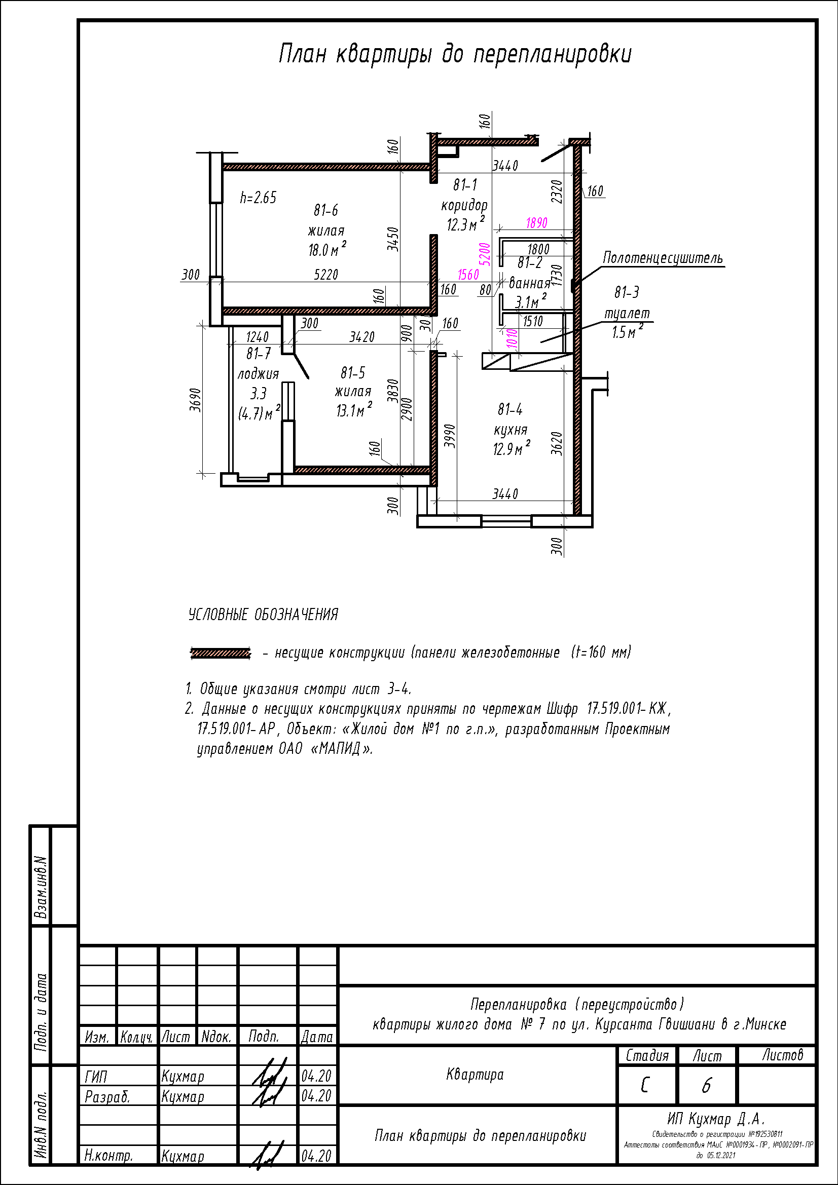
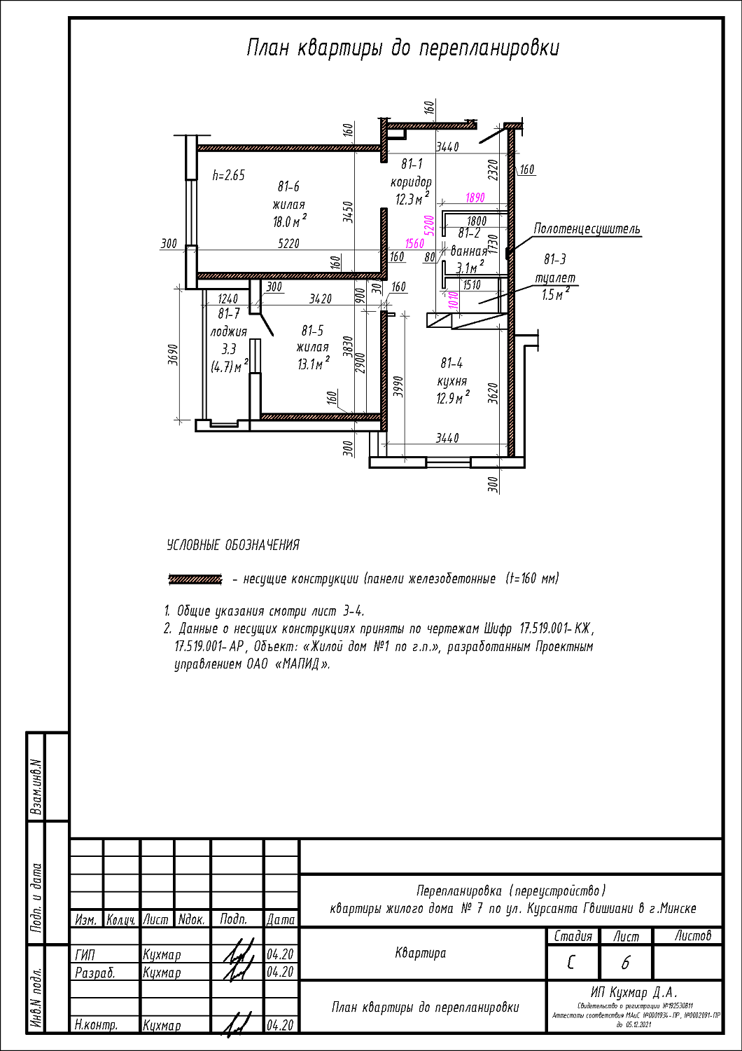
Перепланировка квартиры по ул. Курсанта Гвишиани, в ЖК «Мармелад»
Пожелания заказчика:
- Устройство дверного проёма в несущей стене между жилой и кухней;
- Сужение дверного проёма между кухней и коридором;
- Устройство гардеробной на части площади жилой;
- Устройство зашивки в туалете;
- Устройство зашивки на части площади кухни.
Нами были разработаны следующие разделы проектной документации для согласования в исполкоме:
- АС - архитектурно-строительные решения.
