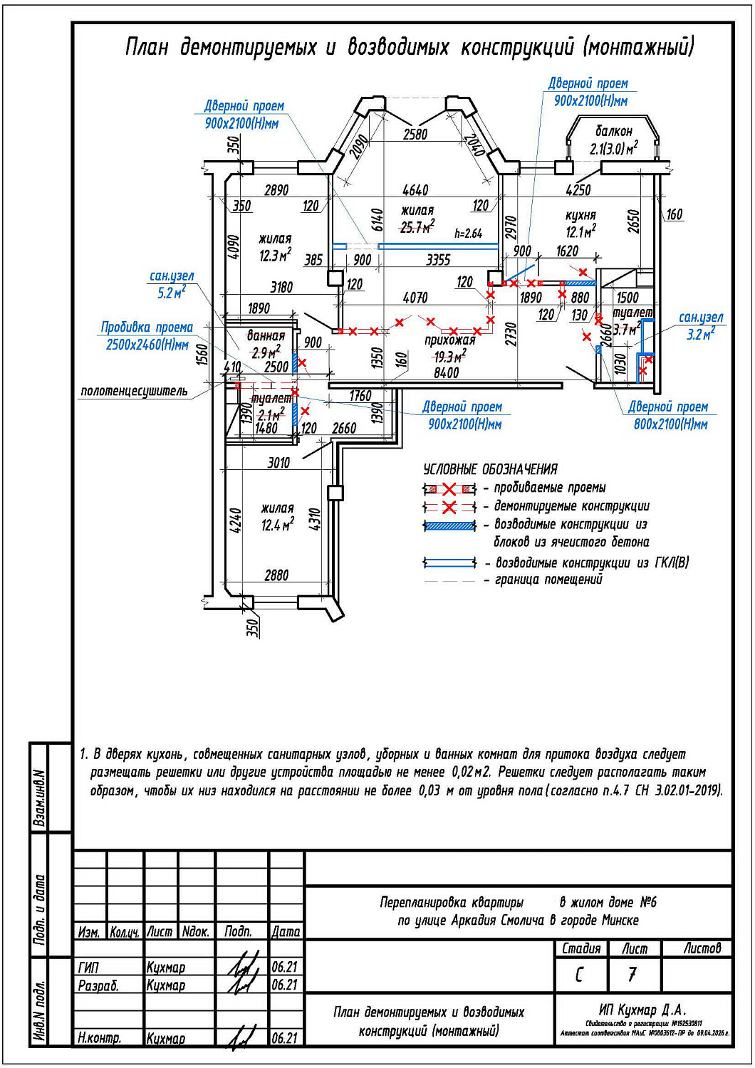
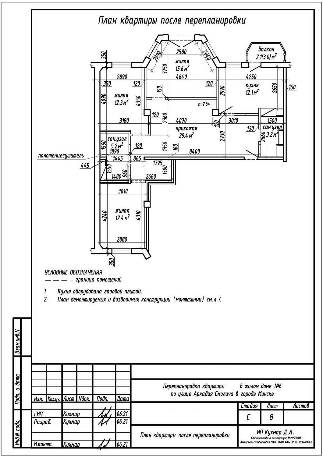
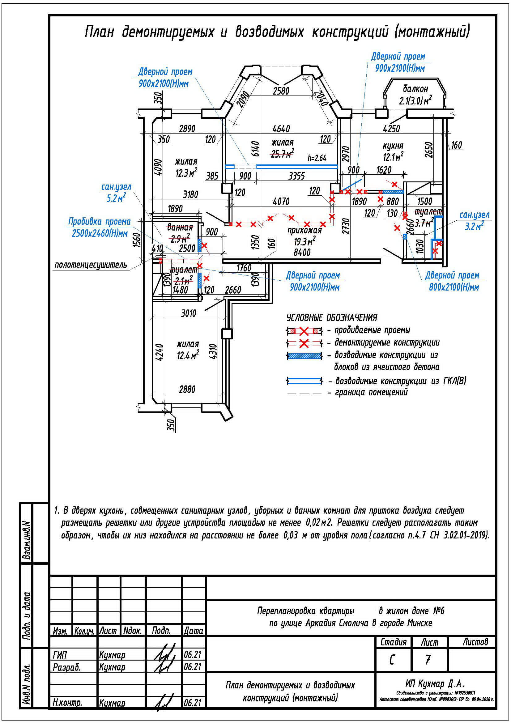
Перепланировка квартиры по ул. Аркадия Смолича, 6 в г. Минске
Пожелания заказчика:
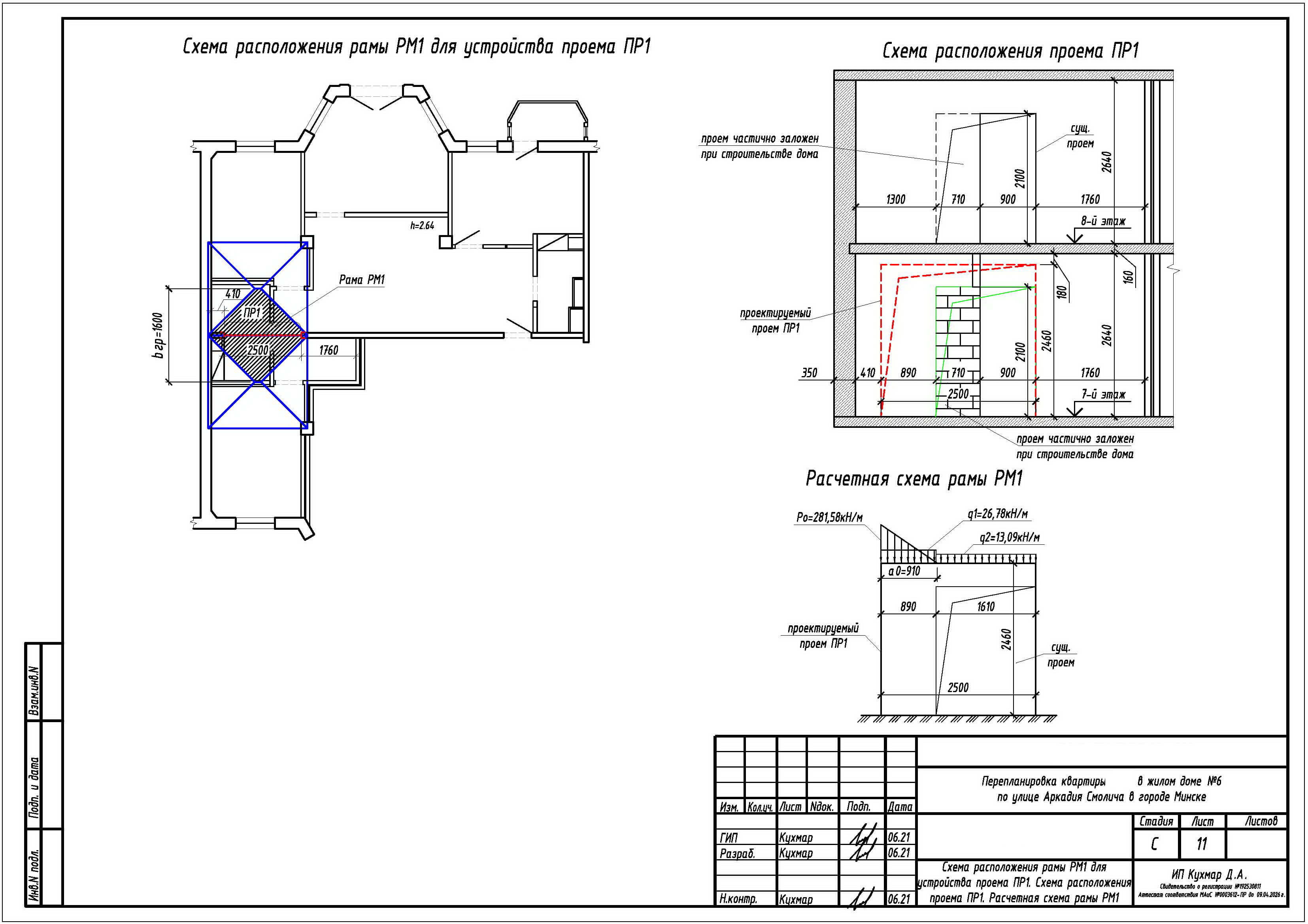
- Объединение туалета и ванной в санузел за счет демонтажа части несущей стены;
- Демонтаж перегородок между жилой и прихожей;
- Увеличение площади прихожей за счет жилой;
- Сдвиг дверного проема между кухней и прихожей;
- Устройство санузла на площади туалета.
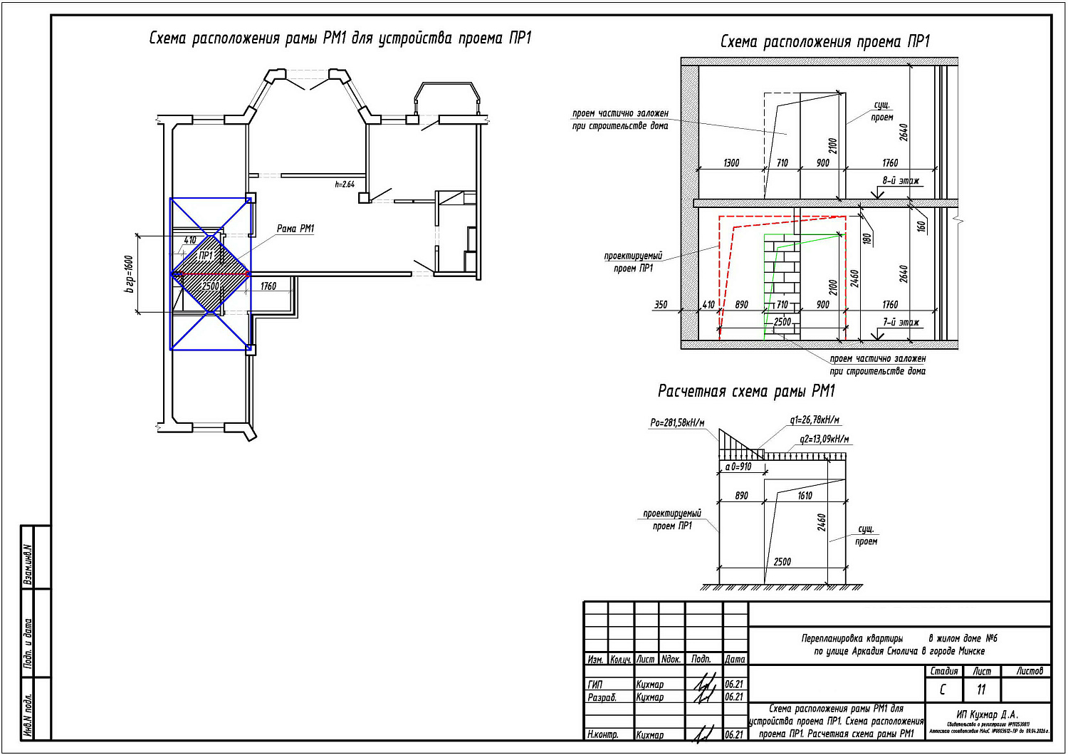
Нами были разработаны следующие разделы проектной документации для согласования в исполкоме:
- АС - архитектурно-строительные решения.
