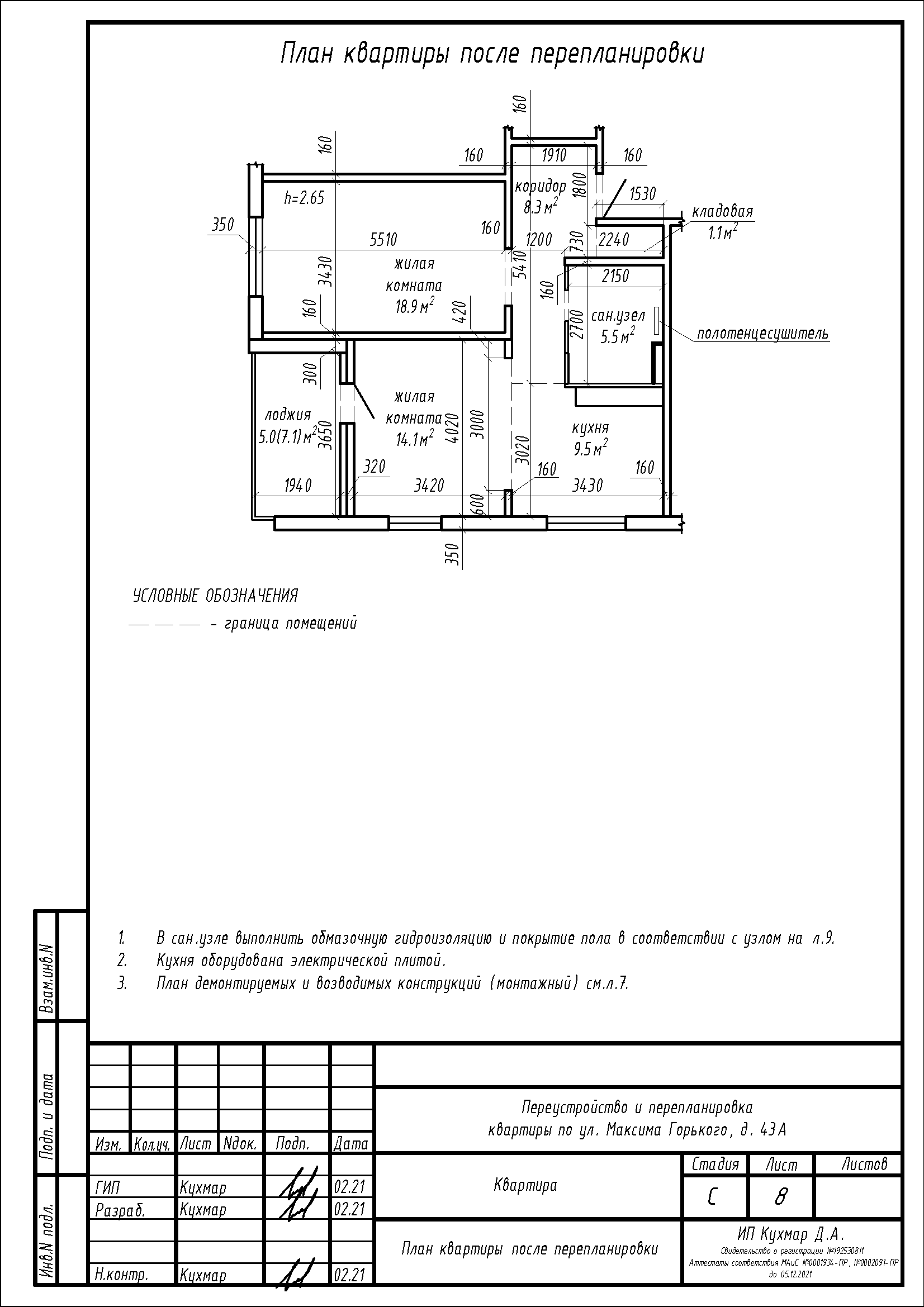
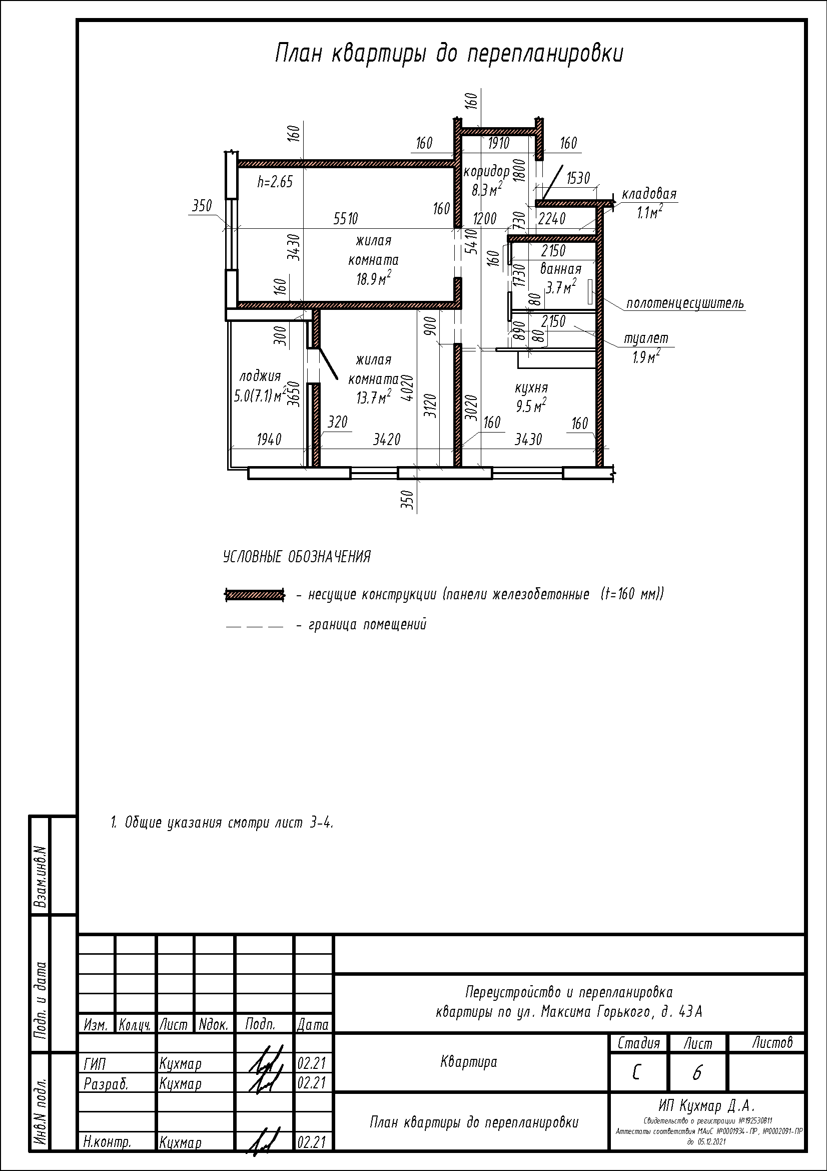
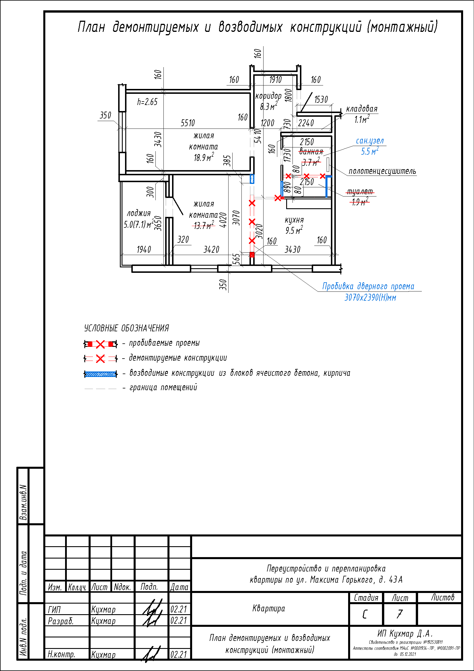
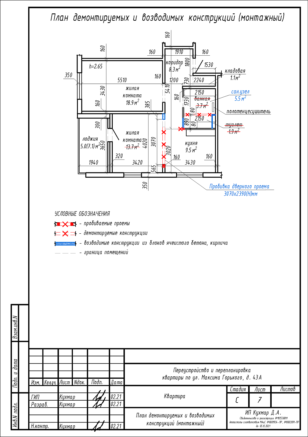
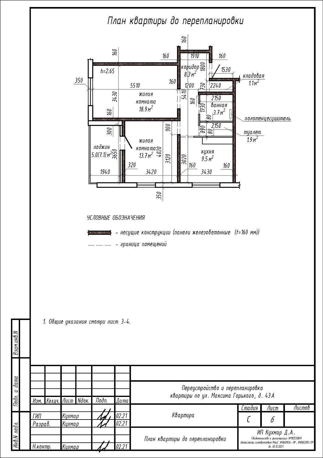
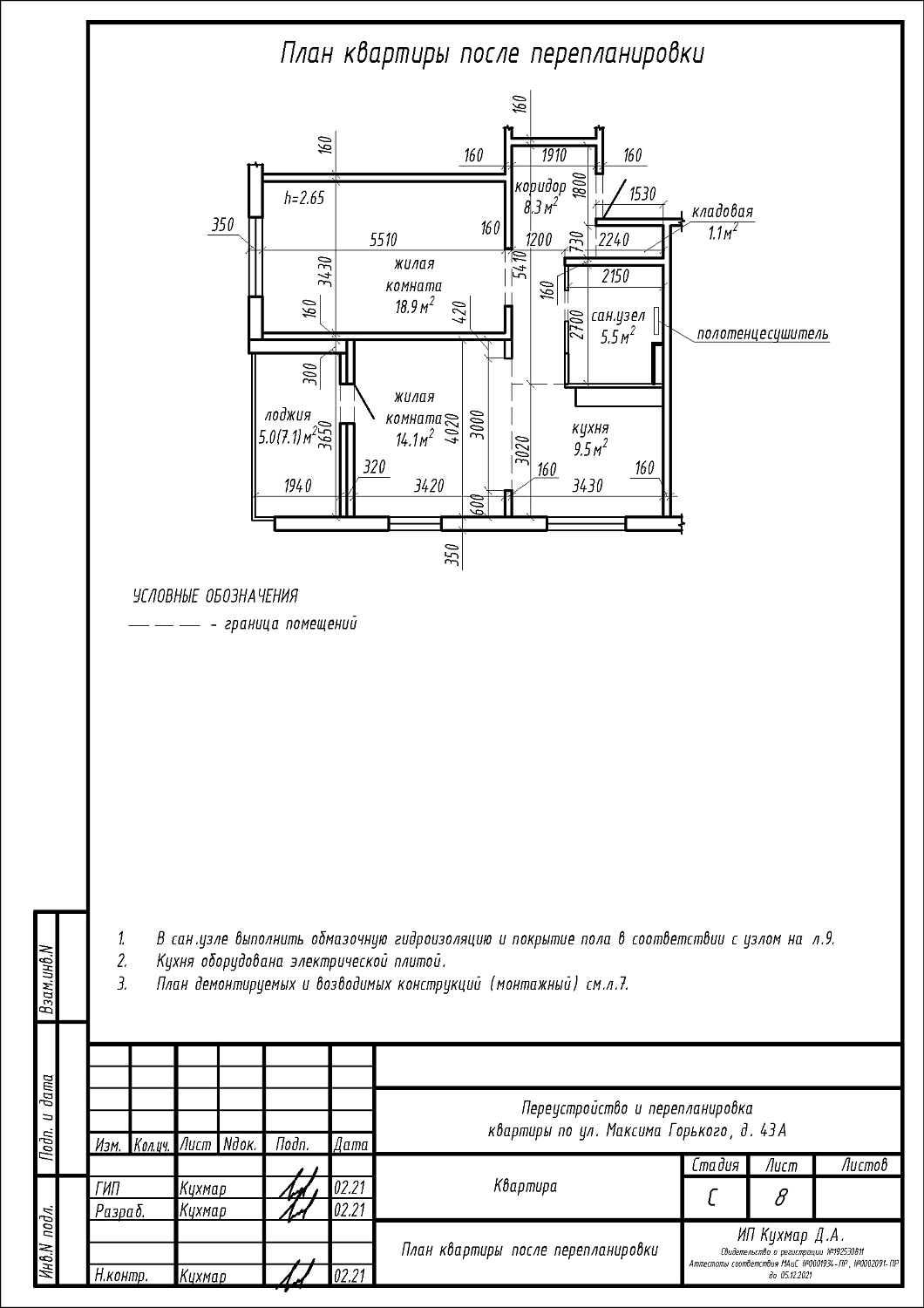
Перепланировка квартиры по ул. Горького, 43А в г. Бобруйске
Пожелания заказчика:
- Устройство совмещенного санузла;
- Демонтаж части перегородки между кухней 9.5 м2 и коридором 8.З м2;
- Демонтаж части перегородки в несущей стене между кухней 9.5 м2 и жилой комнатой 13.7 м2.
Нами были разработаны следующие разделы проектной документации для согласования в исполкоме:
- АС - архитектурно-строительные решения.
